Размещено на портале Архи.ру (www.archi.ru)

04.09.2017

Простор для обучения

Мария Трошина
Объект:
Хорошевская гимназия «Хорошкола»
Адрес:
Россия, Москва. ул. Народного Ополчения, д. 9 А
Мастерская:
А-Проект.К
РОКВУЛ
Авторский коллектив:
Руководители проекта: А. Добашин, Д. Капралов
Архитекторы «А-Проект»: Ю. Солдатенкова, А. Дмитриев, О. Сафронова, Е. Мирошкина, А. Шорин, И. Рубакова
Главный конструктор: И. Гримайло
Главный инженер: С. Шевченко
Металлические, светопрозрачные и фасадные конструкции: Т. Никушкина, А. Мельник, С. Федорченко

Новое здание частной гимназии в Хорошево-Мневниках – пример архитектуры, ориентированной на новейшие тенденции проектирования школьных зданий. К тому же некоторые технические приемы здесь использованы впервые в России.

Хорошевская гимназия. Фотография © Анатолий Белов / предоставлена КРОСТ
Хорошевская гимназия. Фотография © Анатолий Белов / предоставлена КРОСТ

Хорошевская гимназия – вторая часть образовательного проекта «Хорошкола». Первая была открыта в 2013 в 82 квартале Хорошево-Мневников и представляет собой детский сад с прогимназией. Проект оказался настолько успешным, что заказчик решил продолжить его средней школой для 5-11 классов. Новое здание расположено по соседству, в жилом комплексе Wellton park между Карамышевской набережной Москвы-реки и проспектом Маршала Жукова. Школа, построенная по проекту архитектурного подразделения компании «Крост» – «А Проект» – только что открылась; но в нее все еще водят экскурсии, поскольку здание отличается новациями как архитектурными и строительными, так и педагогическими – гимназия, по замыслу ее создателей, должна стать моделью идеальной среды для формирования человека будущего. Ее архитектура привлекла к себе внимание еще на стадии проекта: в 2016 году «Хорошкола»-2 вошла в шорт-лист WAF в номинации «Проект образовательного учреждения», в 2017 – заняла первое место в категории «Концепция общеобразовательных учреждений» на международном конкурсе инновационных проектов Re-thinking The Future.
Хорошевская гимназия. Проект © А-Проект
Хорошевская гимназия. Проект © А-Проект

Что же сделало проект, спроектированный и реализованный всего за два с половиной года, таким успешным и привлекательным?

Во-первых, в процессе проектирования активно участвовали преподаватели и психологи: во многих странах это непременная часть процесса – в России же пока новация. В основу образовательной концепции положены три ключевых принципа: IQ – интеллектуальные навыки, EQ – эмоциональное развитие и VQ – жизненная энергия. Работая над проектом, архитекторы использовали опыт передовых школ Финляндии, признанного флагмана в области творческого поиска образовательных новшеств; финские школы они посетили и исследовали лично, также как и известную школу UWC в Дилижане, построенную архитекторами бюро Тима Флинна по заказу RD Group. Учли и опыт «Хорошколы»-1, построенной при участии норвежского бюро 70ºN arkitektur as.
 
Прозрачность и простор
Хорошевская гимназия.  Фотография © Анатолий Белов / предоставлена КРОСТ
Хорошевская гимназия. Фотография © Анатолий Белов / предоставлена КРОСТ

Результатом исследования актуальных тенденций и откликом на пожелания педагогов стали визуальная проницаемость и открытость, незамкнутость большинства пространств. Из одной части здания можно увидеть другую «на прострел», благодаря чему люди в здании постоянно находятся в зоне визуального контакта. Прозрачны также высокие стеклянные двери Schorghuber, кроме того, между кабинетами устроены вертикальные витражи от пола до потолка. Проницаемость обеспечивает ненавязчивый надзор: «Такая завязка пространства – один из самых ценных эффектов, которые мы получили в этом здании, – говорят архитекторы «А-Проект». – С одной стороны это красиво, а с другой – создает ощущение безопасности, так как, находясь в любом месте, ученик не будет чувствовать себя изолированным. Этот пассивный надзор также заставляет человека все время держать себя в форме, чувствовать, что он на виду. Для детей важный навык – понимать, что они в обществе».
Хорошевская гимназия. Проект © А-Проект
Хорошевская гимназия. Проект © А-Проект
Хорошевская гимназия. Проект © А-Проект
Хорошевская гимназия. Проект © А-Проект

Здание прозрачно внутри, прозрачно и снаружи: множество витражей и окон обеспечивают обилие естественного света. Стекло – прочный закаленный триплекс. Проветривается школа, как и полагается при использовании витражного остекления, с помощью щелевых клапанов – но не обыкновенных, а увеличенных по высоте: компания Schuko по заказу «Кроста» разработала клапаны высотой 3,6 м для окон высотой 4 м.
Слева – щель для проветривания, справа одна из лестниц. Хорошевская гимназия, А-Проект. Фотография © Мария Трошина
Слева – щель для проветривания, справа одна из лестниц. Хорошевская гимназия, А-Проект. Фотография © Мария Трошина

Прозрачность дополняет простор: архитекторы заложили в проекте запас по высоте этажей и по ширине коридоров, отступив от нормативов примерно на метр в бóльшую сторону – ученики не должны ощущать нехватки ни света, ни места.

Денис Капралов,
заместитель генерального директора Концерна «КРОСТ» и руководитель бюро «А-Проект»: 

«Все началось с проекта детского сада, совмещенного с начальной школой. Это был эксперимент группы энтузиастов, которые верили в свою идею и стремились создать совершенно новую концепцию объекта образования», – рассказывает Денис Капралов, заместитель генерального директора Концерна «КРОСТ» и руководитель бюро «А-Проект.

Школа должна была стать моделью некой идеальной среды для формирования человека будущего. При этом перед нами стояла цель вместить все необходимые для современного образовательного процесса помещения, выполнить нормативы, уложиться в бюджет – и сделать все это красиво».

Парящие лестницы
Поскольку основной корпус широкий, квадратный в плане, для освещения ему потребовался атриум, который должен стать главным общественным пространством и коммуникационным ядром школы. Он перекрыт зенитным витражом 24х12 м на четырехэтажной высоте – более 20 м от пола, и окружен высокими – 1,35 м – ограждениями из безимпостного стекла, прозрачными и безопасными.
Хорошевская гимназия. Атриум. Фотография © Анатолий Белов / предоставлена КРОСТ
Хорошевская гимназия. Атриум. Фотография © Анатолий Белов / предоставлена КРОСТ

Атриум пересекают, связывая между собой этажи и напоминая о Хогвартсе, три длинные (16 м) и необычно тонкие (из толщина косоуров всего полметра) лестницы. Они легко парят в пространстве, превращаясь из коммуникационного узла в главный визуальный акцент, эффектное ядро пространства, почти аттракцион.

Добиться столь тонкого силуэта: если бы лестницы были металлические, толщина их косоуров составляла бы метр с лишним, а тут полметра – архитекторы смогли благодаря использованию фибробетона «Фиброль», отечественного аналога французского материала Ductal, который, в частности, Заха Хадид использовала в лондонской «Парящей лестнице»). По прочности этот материал равен стали, а его износостойкость в 6–8 раз выше, чем у обычного бетона. Помимо превосходных физических и эстетических свойств: тонкости, пластичности и возможности разных цветовых решений, в конструкциях не используется традиционная арматура – ее роль играют волокна, входящие в состав композитного материала.
Хорошевская гимназия. Фотография © А-Проект
Хорошевская гимназия. Фотография © А-Проект
Хорошевская гимназия. Проект © А-Проект
Хорошевская гимназия. Проект © А-Проект

Изящные лестницы в атриуме дополнят три крупномерных живых дерева высотой от 8 до 12 метров. Для их корневой системы в полуподземном этаже предусмотрена система полива и подвешенные на перекрытиях без опоры на фундамент бетонные «кадки»: глубиной 2 м и диаметром 2,5 м, а также система полива и дренажа. «Выбрать деревья было непросто – рассказывает архитектор Юлия Солдатенкова, – в атриуме все время будет плюсовая температура, а деревьям средней полосы и даже средиземноморским требуется в течение года период с температурой по меньшей мере около 0°. Мы могли выбирать только из экваториальных пород, но решили обойтись без пальм – хотелось видеть что-то, более традиционное. Поэтому остановились на фикусах».
Хорошевская гимназия. Атриум. Фотография © Анатолий Белов / предоставлена КРОСТ
Хорошевская гимназия. Атриум. Фотография © Анатолий Белов / предоставлена КРОСТ

 
Многофункциональность
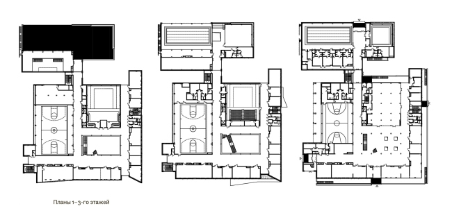
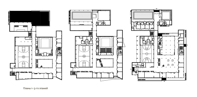
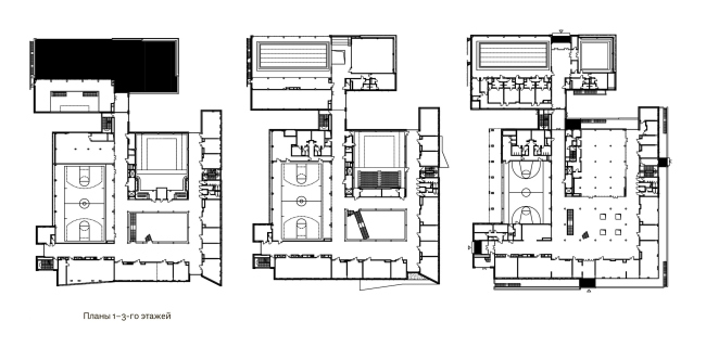
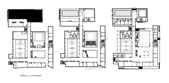
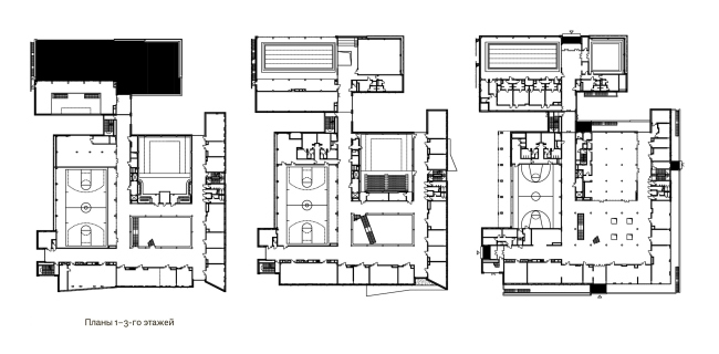
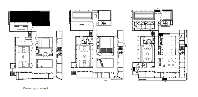
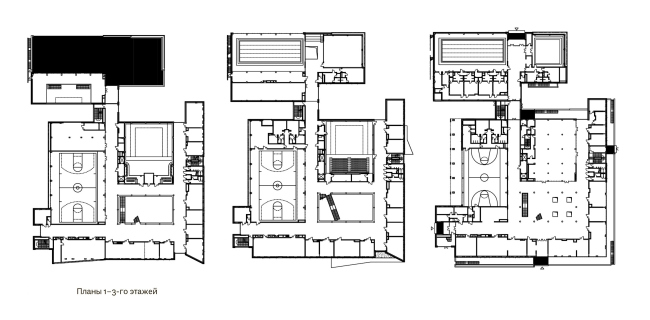
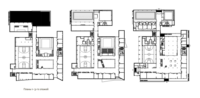
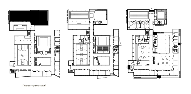
Помимо классных комнат, размещенных вдоль южного и восточного фасадов, лучше всего освещаемых солнцем, в школе есть все необходимое для гармоничного обучения: 4-этажном квадратном объеме главного здания уместились двухсветный спортзал и двухъярусный театральный зал с балконом и большой сценой. Под театральным залом в первом этаже расположена столовая, под ней в полуподвальном этаже – кухня. Технические помещения, также как и кабинеты администрации – вообще все пространства «для взрослых», даже кабинет директора – здесь перенесли под землю, оставив надземные этажи детям. Впрочем, минус-первый этаж не означает темный: он получает достаточно естественного света через широкие приямки, настолько большие, что им больше подходит определение «патио». Верхний этаж отдан старшеклассникам: там расположен форум для их занятий, а также научный кластер, объединяющий биологическую, физическую и химическую лабораторию, классы для занятий робототехникой, 3D-моделированием, цифровыми технологиями.
Хорошевская гимназия. Проект © А-Проект
Хорошевская гимназия. Проект © А-Проект
Хорошевская гимназия. Проект © А-Проект
Хорошевская гимназия. Проект © А-Проект

Стеклянный переход соединяет основной корпус с протяженной пристройкой: в ней расположены 25-метровый бассейн, зал борьбы, хореографический и тренажерный залы. Во внеурочное время эта часть здания будет доступна для занятий детей и взрослых из окружающих домов, для чего предусмотрены отдельный вход, вестибюль и гардероб. Такого рода совместное использование – тоже актуальная тенденция: здание работает и вечером, и по выходным, почти никогда не простаивая.

«Очень важно, что школа изначально планировалось не как изолированное здание, а как социально-культурный центр квартала. Разделив ее на собственно классы и публичные пространства, можно разработать сценарии использования последних после уроков. Здание максимально работает даже в тот момент, когда основные его «пользователи» уже отдыхают дома», – говорит Денис Капралов.
 
Авангард и нейтралитет
Через двухсветный витраж бассейна снаружи будет видна репродукция картины «Полет» Марка Шагала, установленная на его внутренней торцевой стене. В этом он вторит бассейну прогимназии, украшенному «Купанием красного коня» Петрова-Водкина, и продолжает важную для Wellton park-а в целом тему картин авангарда – в ЖК имеется собственная галерея произведений 1920-х годов.
Хорошевская гимназия. Бассейн. Фотография (с) Анатолий Белов / предоставлена КРОСТ
Хорошевская гимназия. Бассейн. Фотография (с) Анатолий Белов / предоставлена КРОСТ

Но вкрапление яркой картины становится скорее исключением, чем правилом – интерьеры школы нарочито сдержанны по цвету, и это тоже – одна из новых тенденций, она пришла на смену приевшемуся радужному разноцветью школьных зданий, столь популярному в 2000-е. Была выбрана единая цветовая гамма для всего здания: оттенки серого и светлое дерево, плюс много стекла. Хотя от «финского» приема бетонных стен и пола пришлось отказаться по техническим соображениям, решение интерьеров осталось подчеркнуто нейтральным: стены оштукатурены и окрашены в светло-серый цвет, полы отделаны серым покрытием Nora с повышенной износостойкостью, в коридорах использованы реечные металлические потолки Албес, имитирующие натуральное дерево (использовать настоящее запрещают пожарные нормы), в классах – акустические потолки Гиродизайн из негорючего волокнистого материала цвета светлого дерева. «Когда здание начнет жить, оно наполнится цветом: мебелью, детскими работами…», – говорят архитекторы.
Акустические потолки. Хорошевская гимназия, А-Проект. Фотография © Мария Трошина
Акустические потолки. Хорошевская гимназия, А-Проект. Фотография © Мария Трошина

 
Бетонный лес
Если поработать с фактурой бетона в интерьерах архитекторам не удалось, то фасады целиком подчинены взаимодействию стеклянных и бетонных поверхностей. Здесь использован стеклофибробетон, произведенный на собственном заводе компании «Крост» – «Бетон 224». Это пластичный материал, позволяющий создавать прочные конструкции любой формы, размера, фактуры и цвета. В здании «Хорошколы» сочетаются два вида текстур: одна, сдержанно-серая, имитирует травертин – для нее строители использовали формообразующую опалубку немецкого производства. Часть этих панелей сохранила натуральный цвет, их лишь покрыли гидрофобным составом, часть – тонировали более темным оттенком.
Хорошевская гимназия. Атруим. Фотография © Анатолий Белов / предоставлена КРОСТ
Хорошевская гимназия. Атруим. Фотография © Анатолий Белов / предоставлена КРОСТ

Вторая текстура – коричневатая и имитирует дерево, так как облицовку натуральным деревом было невозможно использовать по требованиям огнестойкости фасадных материалов. Собственное производство позволило «А.Проекту» экспериментировать с вариантами. Отвергнув стандартный формлайнер, архитекторы использовали для создания опалубки натуральное дерево с углубленной – брашированной – фактурой, и получили в итоге эффект разнообразной, почти живой «древесины из бетона». Поверхность, подчеркнутая тонировкой, даже с близкого расстояния почти неотличима от натурального дерева.
с
с

Между тем сочетание «каменных» и «деревянных» поверхностей – во внешнем образе здания школы играет лишь подчиненную роль. Главную скрипку играет мотив, который архитекторы с долей условности называют «хворостом» – крупная решетка скрещенных под разными углами тонких бетонных балок, похожих на укрупненное стилизованное изображение древесных ветвей. Архитекторы разместили его перед панорамными витражами и подчинили наклонным линиям контуры окон, а кое-где – даже наклон опор за стеклами, задав таким образом фасадам общий танцующий ритм.

Больше всего ажурного «хвороста» на западном фасаде, перед витражом спортивного зала – с этой стороны узор кажется почти-настоящим лесом – так рисовали лес в лучших мультфильмах 1970-х, обобщенно, но узнаваемо. Переплетение линий целиком закрывает и стеклянные фасады залов хореографии и борьбы.
Хорошевская гимназия. В процессе строительства. Фотография © А-Проект
Хорошевская гимназия. В процессе строительства. Фотография © А-Проект
Хорошевская гимназия. Атруим. Фотография © Анатолий Белов / предоставлена КРОСТ
Хорошевская гимназия. Атруим. Фотография © Анатолий Белов / предоставлена КРОСТ
Хорошевская гимназия. Атруим. Фотография © Анатолий Белов / предоставлена КРОСТ
Хорошевская гимназия. Атруим. Фотография © Анатолий Белов / предоставлена КРОСТ
Хорошевская гимназия. Атруим. Фотография © Анатолий Белов / предоставлена КРОСТ
Хорошевская гимназия. Атруим. Фотография © Анатолий Белов / предоставлена КРОСТ
Хорошевская гимназия. Фотография © А-Проект
Хорошевская гимназия. Фотография © А-Проект
Спортзал. Хорошевская гимназия, А-Проект. Фотография © Мария Трошина
Спортзал. Хорошевская гимназия, А-Проект. Фотография © Мария Трошина

Ажурные бетонные решетки изготовлены на фабрике «Мажино», также входящей в состав концерна «Крост». На основе архитектурных чертежей конструкторы разработали систему крепления деталей: основную сложность при разработке этих элементов представлял будущий монтаж обширного витража за ними и возможность его демонтировать при необходимости (например, если окно разобьется). Элементы оштукатурены и окрашены в белый цвет.
***

Свет, простор, прозрачность, силуэт ажурного леса на фасаде и деревья внутри – здание гимназии определенно противоречит всему, что мы привыкли считать «школярским». В то же время оно не избыточно, не «кричит», избегает броского, работая с пространством и светом. Заявлена амбициозная цель – школа должна стать «моделью идеальный среды для формирования человека будущего». Архитектура, пожалуй, соответствует задаче в ее сегодняшнем понимании – теперь дело за педагогами; гимназия приняла первых учеников в пятницу, первого сентября. 
Хорошевская гимназия. Проект © А-Проект
Хорошевская гимназия. Проект © А-Проект
Хорошевская гимназия. Проект © А-Проект
Хорошевская гимназия. Проект © А-Проект
Хорошевская гимназия. Проект © А-Проект
Хорошевская гимназия. Проект © А-Проект
Хорошевская гимназия. Проект © А-Проект
Хорошевская гимназия. Проект © А-Проект
Хорошевская гимназия. Проект © А-Проект
Хорошевская гимназия. Проект © А-Проект
Хорошевская гимназия. Проект © А-Проект
Хорошевская гимназия. Проект © А-Проект
Хорошевская гимназия. Проект © А-Проект
Хорошевская гимназия. Проект © А-Проект
Хорошевская гимназия. Проект © А-Проект
Хорошевская гимназия. Проект © А-Проект