Размещено на портале Архи.ру (www.archi.ru)

15.08.2017

Элеватор в стальных доспехах

Нина Фролова
Объект:
Жилой комплекс The Silo
Адрес:
Дания, None, Копенгаген.
Мастерская:
Cobe

Жилой комплекс The Silo по проекту бюро COBE – бывший зерновой элеватор в гавани Копенгагена.

Жилой комплекс The Silo/ Ajnj © Rasmus Hjortshøj – COAST
Жилой комплекс The Silo/ Ajnj © Rasmus Hjortshøj – COAST

Элеваторы – легко узнаваемые, по-своему эффектные сооружения, но приспособить их под иную функцию непросто. Тем не менее, это происходит не так редко: уже много лет в таком объекте в Осло устроено студенческое общежитие, этой осенью в кейптаунском порту в элеваторе откроется музей африканского искусства по проекту Томаса Хезервика, а в мае 2017 первые жильцы въехали в квартиры The Silo, превращенного из промышленного сооружения в дом архитекторами бюро COBE.
 
Жилой комплекс The Silo/ Ajnj © Rasmus Hjortshøj – COAST
Жилой комплекс The Silo/ Ajnj © Rasmus Hjortshøj – COAST

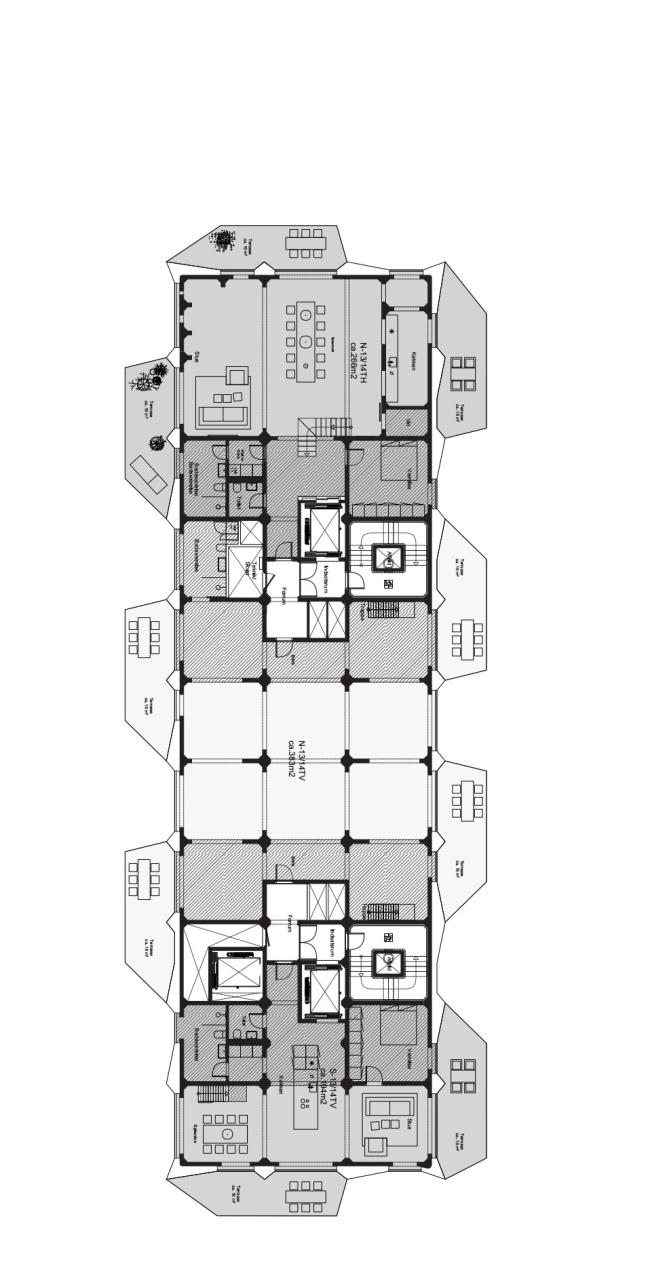
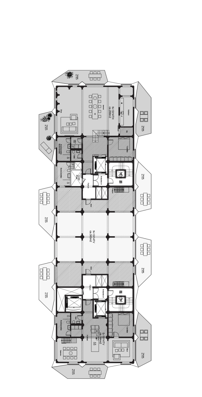
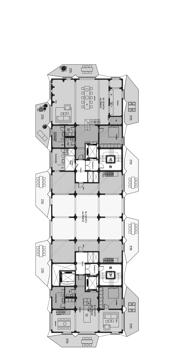
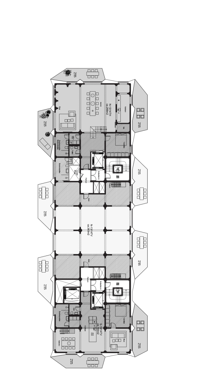
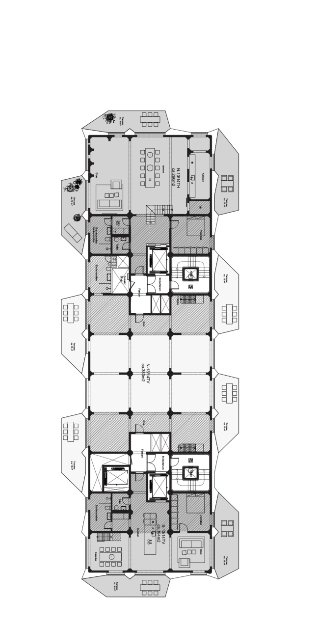
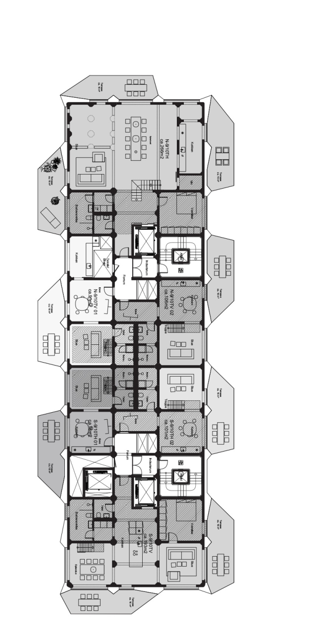
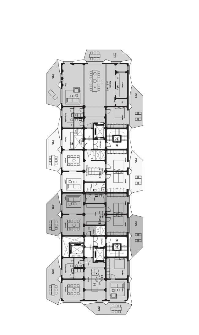
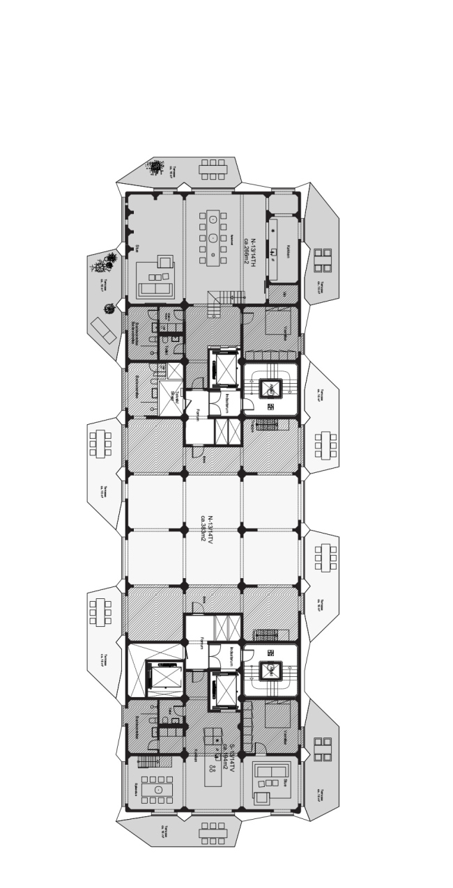
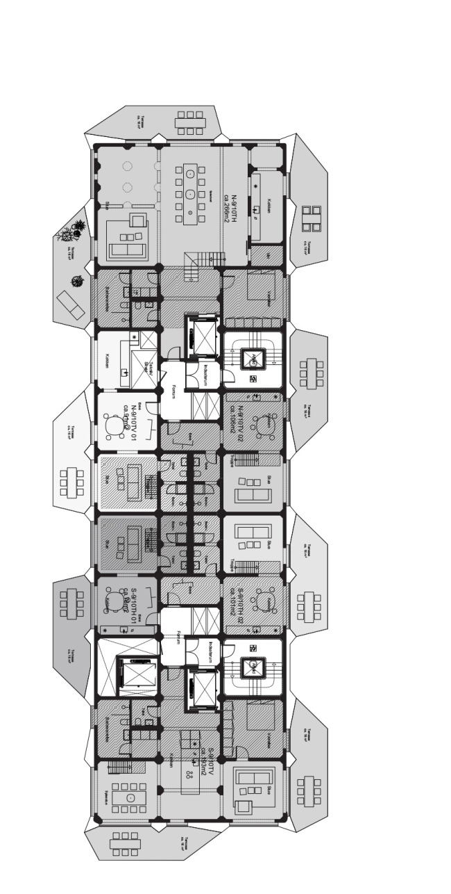
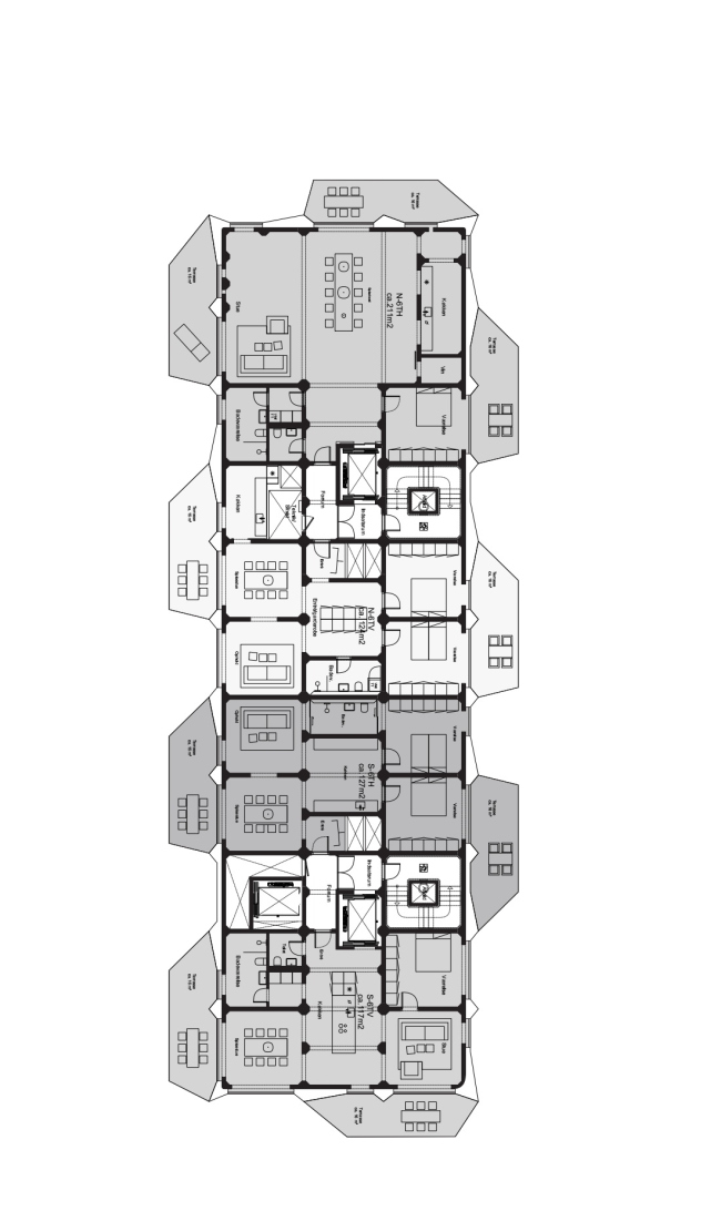
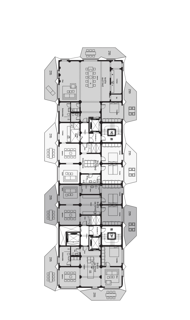
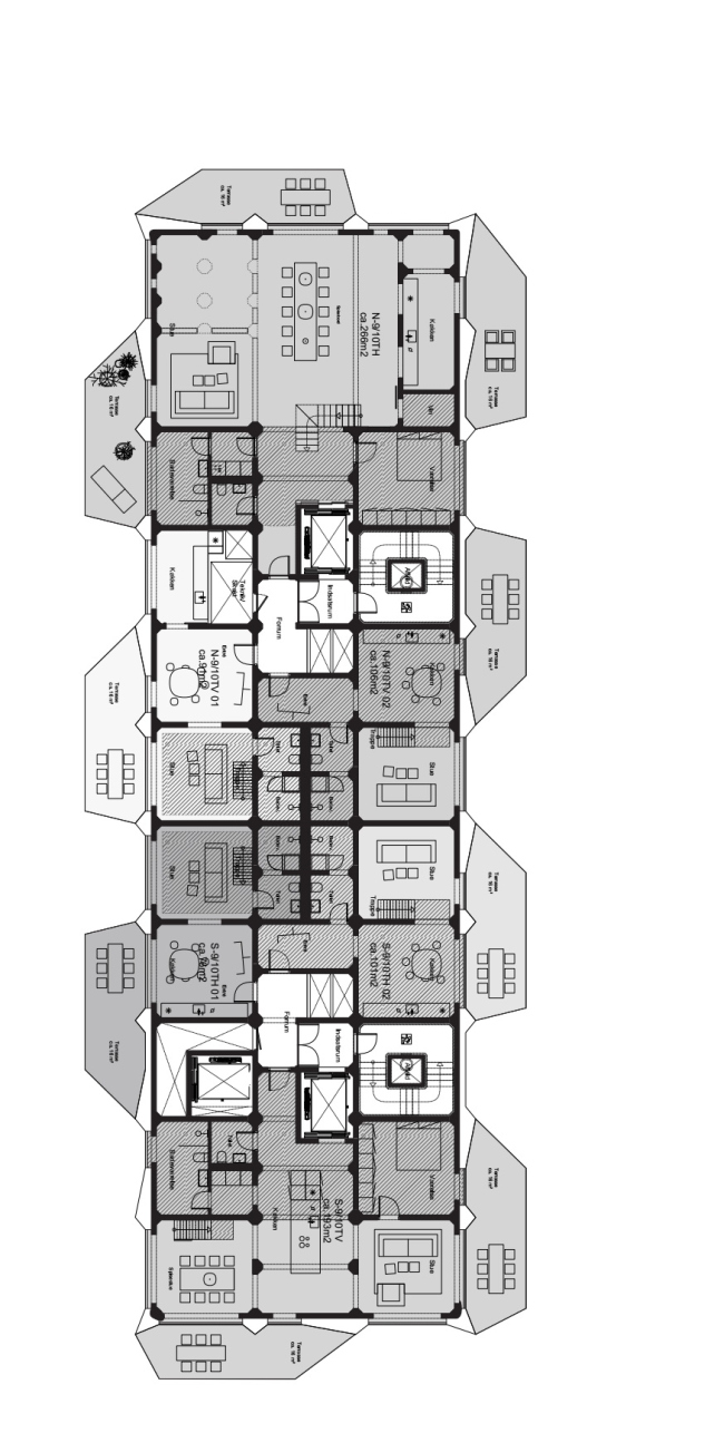
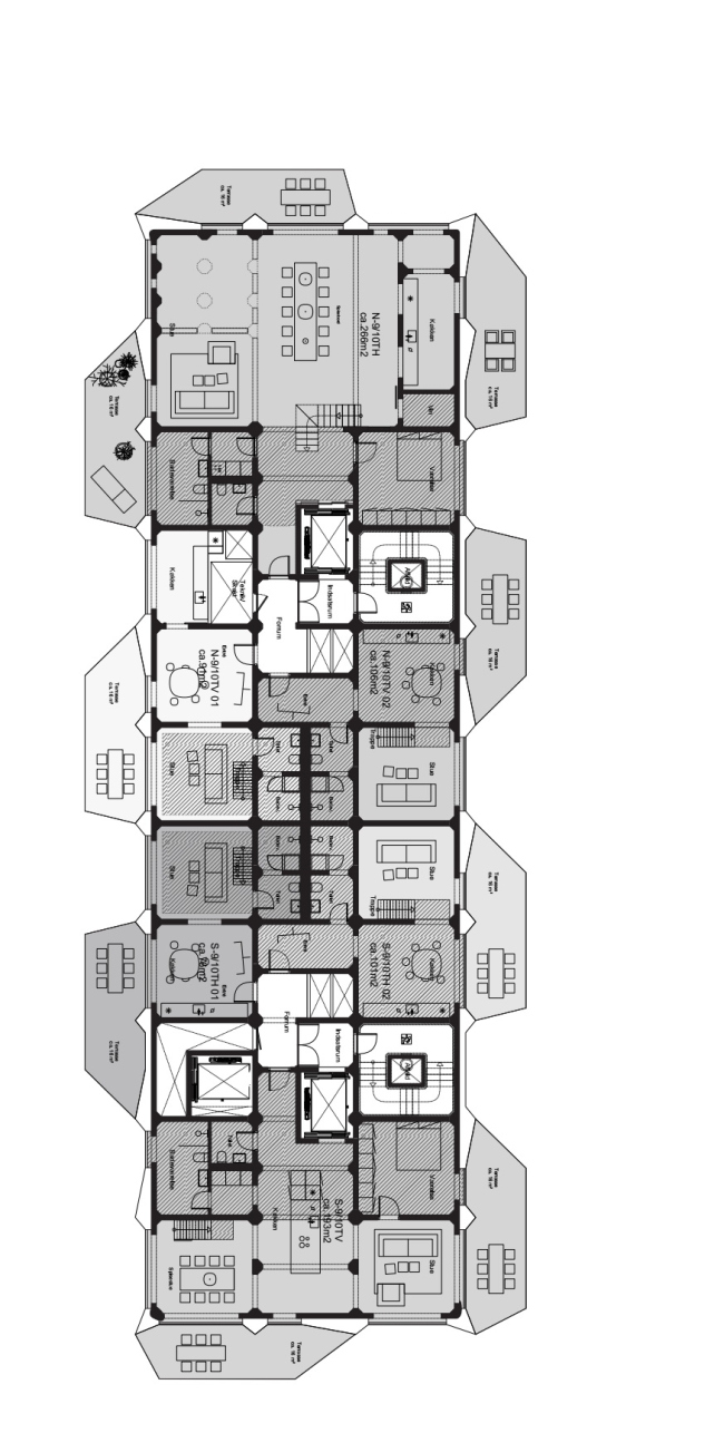
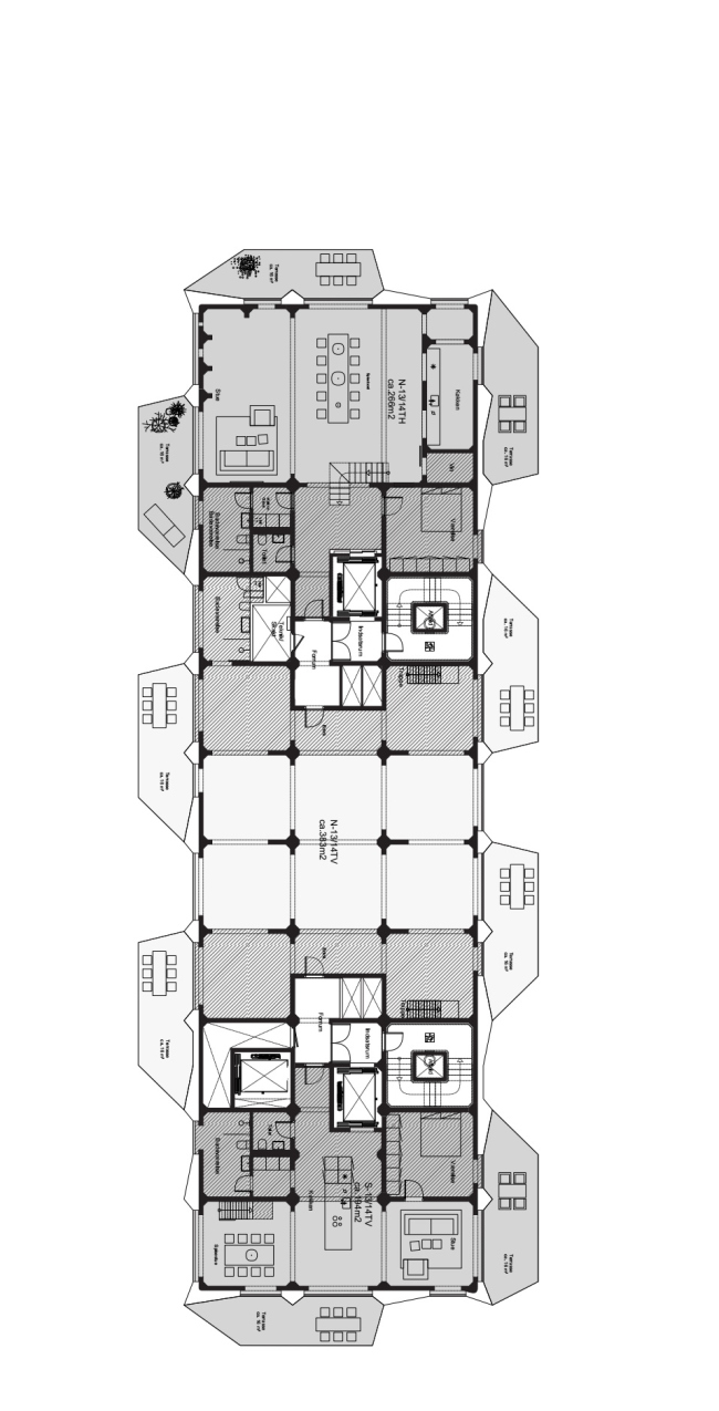
The Silo общей площадью 10 000 м2 расположен в Норхавн, Северной гавани Копенгагена, которая превращается сейчас из индустриальной зоны в район смешанной застройки. В жилом комплексе есть 38 квартир на одном или нескольких уровнях общей площадью от 106 до 401 м2, причем высота потолков достигает в отдельных случаях семи метров, а несколько из этих жилищ сохранили грубый бетон оригинальных стен элеватора. Все жильцы получили панорамные окна и балконы, причем рамы помещены с внешней стороны и не видны из интерьера.
 
Жилой комплекс The Silo/ Ajnj © Rasmus Hjortshøj – COAST
Жилой комплекс The Silo/ Ajnj © Rasmus Hjortshøj – COAST

Самое заметное в проекте – это фасад из оцинкованной стали. Он закрывает бетонные стены элеватора, но подчеркивает его промышленную суть и прошлое всего района – и сразу после монтажа, и потемнев со временем.
 
Жилой комплекс The Silo/ Ajnj © Rasmus Hjortshøj – COAST
Жилой комплекс The Silo/ Ajnj © Rasmus Hjortshøj – COAST

Первый из 17 этажей сооружения занят пространством для различных мероприятий, а наверху, в стеклянном блоке помещен ресторан, превращающийся в темное время суток в своего рода фонарь; оттуда открываются виды на город и море.
 
Жилой комплекс The Silo/ Ajnj © Rasmus Hjortshøj – COAST
Жилой комплекс The Silo/ Ajnj © Rasmus Hjortshøj – COAST

По мысли архитекторов, The Silo – одновременно и жилище, и привлекающая посетителей достопримечательность; особенно важным для них был сам факт ревитализации индустриального наследия, которая позволяет сохранить историю города, превращая в общественном сознании «промышленный мусор» в ценные и важные объекты.
Жилой комплекс The Silo/ Ajnj © Rasmus Hjortshøj – COAST
Жилой комплекс The Silo/ Ajnj © Rasmus Hjortshøj – COAST
Жилой комплекс The Silo/ Ajnj © Rasmus Hjortshøj – COAST
Жилой комплекс The Silo/ Ajnj © Rasmus Hjortshøj – COAST
Жилой комплекс The Silo/ Ajnj © Rasmus Hjortshøj – COAST
Жилой комплекс The Silo/ Ajnj © Rasmus Hjortshøj – COAST
Жилой комплекс The Silo/ Ajnj © Rasmus Hjortshøj – COAST
Жилой комплекс The Silo/ Ajnj © Rasmus Hjortshøj – COAST
Жилой комплекс The Silo/ Ajnj © Rasmus Hjortshøj – COAST
Жилой комплекс The Silo/ Ajnj © Rasmus Hjortshøj – COAST
Жилой комплекс The Silo/ Ajnj © Rasmus Hjortshøj – COAST
Жилой комплекс The Silo/ Ajnj © Rasmus Hjortshøj – COAST
Жилой комплекс The Silo/ Ajnj © Rasmus Hjortshøj – COAST
Жилой комплекс The Silo/ Ajnj © Rasmus Hjortshøj – COAST
Жилой комплекс The Silo/ Ajnj © Rasmus Hjortshøj – COAST
Жилой комплекс The Silo/ Ajnj © Rasmus Hjortshøj – COAST
Жилой комплекс The Silo/ Ajnj © Rasmus Hjortshøj – COAST
Жилой комплекс The Silo/ Ajnj © Rasmus Hjortshøj – COAST
Жилой комплекс The Silo/ Ajnj © Rasmus Hjortshøj – COAST
Жилой комплекс The Silo/ Ajnj © Rasmus Hjortshøj – COAST
Жилой комплекс The Silo/ Ajnj © Rasmus Hjortshøj – COAST
Жилой комплекс The Silo/ Ajnj © Rasmus Hjortshøj – COAST
Жилой комплекс The Silo/ Ajnj © Rasmus Hjortshøj – COAST
Жилой комплекс The Silo/ Ajnj © Rasmus Hjortshøj – COAST
Жилой комплекс The Silo/ Ajnj © Rasmus Hjortshøj – COAST
Жилой комплекс The Silo/ Ajnj © Rasmus Hjortshøj – COAST
Жилой комплекс The Silo/ Ajnj © Rasmus Hjortshøj – COAST
Жилой комплекс The Silo/ Ajnj © Rasmus Hjortshøj – COAST
Жилой комплекс The Silo/ Ajnj © Rasmus Hjortshøj – COAST
Жилой комплекс The Silo/ Ajnj © Rasmus Hjortshøj – COAST
Жилой комплекс The Silo/ Ajnj © Rasmus Hjortshøj – COAST
Жилой комплекс The Silo/ Ajnj © Rasmus Hjortshøj – COAST
Жилой комплекс The Silo/ Ajnj © Rasmus Hjortshøj – COAST
Жилой комплекс The Silo/ Ajnj © Rasmus Hjortshøj – COAST
Жилой комплекс The Silo/ Ajnj © Rasmus Hjortshøj – COAST
Жилой комплекс The Silo/ Ajnj © Rasmus Hjortshøj – COAST
Жилой комплекс The Silo/ Ajnj © Rasmus Hjortshøj – COAST
Жилой комплекс The Silo/ Ajnj © Rasmus Hjortshøj – COAST
Жилой комплекс The Silo/ Ajnj © Rasmus Hjortshøj – COAST
Жилой комплекс The Silo/ Ajnj © Rasmus Hjortshøj – COAST
Жилой комплекс The Silo/ Ajnj © Rasmus Hjortshøj – COAST
Жилой комплекс The Silo/ Ajnj © Rasmus Hjortshøj – COAST
Жилой комплекс The Silo/ Ajnj © Rasmus Hjortshøj – COAST
Жилой комплекс The Silo/ Ajnj © Rasmus Hjortshøj – COAST
Жилой комплекс The Silo/ Ajnj © COBE
Жилой комплекс The Silo/ Ajnj © COBE
Жилой комплекс The Silo/ Ajnj © COBE
Жилой комплекс The Silo/ Ajnj © COBE
Жилой комплекс The Silo/ Ajnj © COBE
Жилой комплекс The Silo/ Ajnj © COBE
Жилой комплекс The Silo/ Ajnj © COBE
Жилой комплекс The Silo/ Ajnj © COBE
Жилой комплекс The Silo/ Ajnj © COBE
Жилой комплекс The Silo/ Ajnj © COBE
Жилой комплекс The Silo/ Ajnj © COBE
Жилой комплекс The Silo/ Ajnj © COBE