Размещено на портале Архи.ру (www.archi.ru)

10.08.2017

Оболочка для виртуального мира

Нина Фролова
Объект:
Штаб-квартира телекомпании «Аль-Джазира»
Адрес:
Катар, None, Доха.
Мастерская:
Veech x Veech

Новые студии для штаб-квартиры телекомпании «Аль-Джазира» в столице Катара по проекту бюро Veech x Veech.

Штаб-квартира телекомпании «Аль-Джазира». Новое крыло © Hufton+Crow
Штаб-квартира телекомпании «Аль-Джазира». Новое крыло © Hufton+Crow

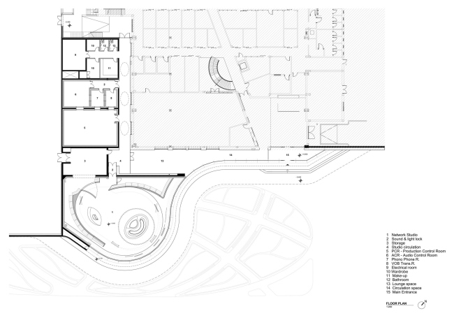
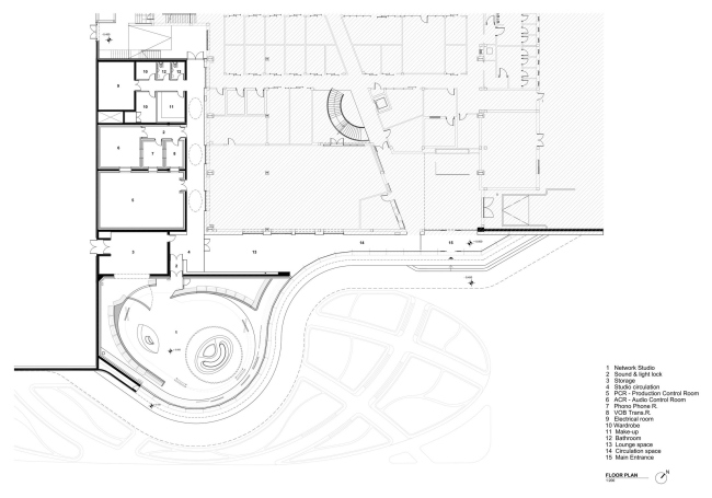
Новое крыло штаб-квартиры «Аль-Джазиры» в Дохе вмещает две студии – для новостных программ на арабском языке и для съемок передач сети в целом: проект был приурочен к 20-летию телекомпании, отмечавшемуся в ноябре 2016. В план бюро Veech x Veech также включены 7,450 м2 благоустройства, которые будут реализованы в 2018.
 
Штаб-квартира телекомпании «Аль-Джазира». Новое крыло © Hufton+Crow
Штаб-квартира телекомпании «Аль-Джазира». Новое крыло © Hufton+Crow

Для венских архитекторов это уже второй заказ от «Аль-Джазиры», вещающей на арабском, английском и сербском для 310 млн зрителей в более чем 100 странах: до того Veech x Veech спроектировали для нее телестудию в самом высоком лондонском небоскребе The Shard. Медиакомпания принадлежит катарскому правительству, и потому в ответ на ее большое влияние в регионе в недавнем ультиматуме Катару, объявленном Саудовской Аравией, Египтом, ОАЭ и Бахрейном, в числе прочих значилось требование закрыть «Аль-Джазиру».
 
Штаб-квартира телекомпании «Аль-Джазира». Новое крыло © Hufton+Crow
Штаб-квартира телекомпании «Аль-Джазира». Новое крыло © Hufton+Crow
Штаб-квартира телекомпании «Аль-Джазира». Студия  сети «Аль-Джазира» © Hufton+Crow
Штаб-квартира телекомпании «Аль-Джазира». Студия сети «Аль-Джазира» © Hufton+Crow
Штаб-квартира телекомпании «Аль-Джазира». Студия  сети «Аль-Джазира» © Hufton+Crow
Штаб-квартира телекомпании «Аль-Джазира». Студия сети «Аль-Джазира» © Hufton+Crow

Однако телекомпания продолжает успешно вести вещание – в том числе из новой части своей штаб-квартиры. Здание перекрыто 36-метровой кровлей-консолью с глубоким выносом, защищающим остекленный фасад от палящего солнца. К этому фасаду в интерьере свободного плана примыкает студия сети «Аль-Джазира»: умеренность естественного освещения обеспечивают поляризационные фильтры, а для создания выглядящего в кадре эффектно пространства использованы встроенные светодиоды, технологии визуализации, эффекта присутствия и дополненной реальности. Структура интерьера вдохновлена асимметричным каллиграфическим логотипом телекомпании.
 
Штаб-квартира телекомпании «Аль-Джазира». Студия  сети «Аль-Джазира» © Hufton+Crow
Штаб-квартира телекомпании «Аль-Джазира». Студия сети «Аль-Джазира» © Hufton+Crow

Арабская новостная студия, напротив, изолирована от внешнего пространства. Она сочетает собственно вещательную студию (три комплекса декораций) с «производственными» рабочими зонами на 100 сотрудников. 3D-графика с эффектом присутствия и регулируемые зоны светодиодов помогают легко менять освещение и колорит интерьера в зависимости от транслируемого сюжета.
 
Штаб-квартира телекомпании «Аль-Джазира». Студия новостей на арабском языке © Hufton+Crow
Штаб-квартира телекомпании «Аль-Джазира». Студия новостей на арабском языке © Hufton+Crow
Штаб-квартира телекомпании «Аль-Джазира». Студия новостей на арабском языке © Hufton+Crow
Штаб-квартира телекомпании «Аль-Джазира». Студия новостей на арабском языке © Hufton+Crow

Медиаархитектура – одно из направлений специализации Veech x Veech. Среди их других проектов такого типа – студии разного типа для австрийского общественного телевидения ORF и компании Red Bull Media House, выставочный дизайн и т.д.
Штаб-квартира телекомпании «Аль-Джазира». Новое крыло © Hufton+Crow
Штаб-квартира телекомпании «Аль-Джазира». Новое крыло © Hufton+Crow
Штаб-квартира телекомпании «Аль-Джазира». Новое крыло © Hufton+Crow
Штаб-квартира телекомпании «Аль-Джазира». Новое крыло © Hufton+Crow
Штаб-квартира телекомпании «Аль-Джазира». Новое крыло © Hufton+Crow
Штаб-квартира телекомпании «Аль-Джазира». Новое крыло © Hufton+Crow
Штаб-квартира телекомпании «Аль-Джазира». Новое крыло © Hufton+Crow
Штаб-квартира телекомпании «Аль-Джазира». Новое крыло © Hufton+Crow
Штаб-квартира телекомпании «Аль-Джазира». Новое крыло © Hufton+Crow
Штаб-квартира телекомпании «Аль-Джазира». Новое крыло © Hufton+Crow
Штаб-квартира телекомпании «Аль-Джазира». Студия  сети «Аль-Джазира» © Hufton+Crow
Штаб-квартира телекомпании «Аль-Джазира». Студия сети «Аль-Джазира» © Hufton+Crow
Штаб-квартира телекомпании «Аль-Джазира». Студия  сети «Аль-Джазира» © Hufton+Crow
Штаб-квартира телекомпании «Аль-Джазира». Студия сети «Аль-Джазира» © Hufton+Crow
Штаб-квартира телекомпании «Аль-Джазира». Студия  сети «Аль-Джазира» © Hufton+Crow
Штаб-квартира телекомпании «Аль-Джазира». Студия сети «Аль-Джазира» © Hufton+Crow
Штаб-квартира телекомпании «Аль-Джазира». Студия  сети «Аль-Джазира» © Hufton+Crow
Штаб-квартира телекомпании «Аль-Джазира». Студия сети «Аль-Джазира» © Hufton+Crow
Штаб-квартира телекомпании «Аль-Джазира». Студия  сети «Аль-Джазира» © Hufton+Crow
Штаб-квартира телекомпании «Аль-Джазира». Студия сети «Аль-Джазира» © Hufton+Crow
Штаб-квартира телекомпании «Аль-Джазира». Студия новостей на арабском языке © Hufton+Crow
Штаб-квартира телекомпании «Аль-Джазира». Студия новостей на арабском языке © Hufton+Crow
Штаб-квартира телекомпании «Аль-Джазира». Студия новостей на арабском языке © Hufton+Crow
Штаб-квартира телекомпании «Аль-Джазира». Студия новостей на арабском языке © Hufton+Crow
Штаб-квартира телекомпании «Аль-Джазира». Студия новостей на арабском языке © Hufton+Crow
Штаб-квартира телекомпании «Аль-Джазира». Студия новостей на арабском языке © Hufton+Crow
Штаб-квартира телекомпании «Аль-Джазира». Студия новостей на арабском языке © Hufton+Crow
Штаб-квартира телекомпании «Аль-Джазира». Студия новостей на арабском языке © Hufton+Crow
Штаб-квартира телекомпании «Аль-Джазира». Студия новостей на арабском языке © Hufton+Crow
Штаб-квартира телекомпании «Аль-Джазира». Студия новостей на арабском языке © Hufton+Crow
Штаб-квартира телекомпании «Аль-Джазира». Студия новостей на арабском языке © Hufton+Crow
Штаб-квартира телекомпании «Аль-Джазира». Студия новостей на арабском языке © Hufton+Crow
Штаб-квартира телекомпании «Аль-Джазира». Студия новостей на арабском языке © Hufton+Crow
Штаб-квартира телекомпании «Аль-Джазира». Студия новостей на арабском языке © Hufton+Crow
Штаб-квартира телекомпании «Аль-Джазира». Студия новостей на арабском языке © Hufton+Crow
Штаб-квартира телекомпании «Аль-Джазира». Студия новостей на арабском языке © Hufton+Crow
Штаб-квартира телекомпании «Аль-Джазира». Новое крыло © Hufton+Crow
Штаб-квартира телекомпании «Аль-Джазира». Новое крыло © Hufton+Crow
Штаб-квартира телекомпании «Аль-Джазира». Новое крыло © Hufton+Crow
Штаб-квартира телекомпании «Аль-Джазира». Новое крыло © Hufton+Crow
Штаб-квартира телекомпании «Аль-Джазира». Новое крыло © Hufton+Crow
Штаб-квартира телекомпании «Аль-Джазира». Новое крыло © Hufton+Crow
Штаб-квартира телекомпании «Аль-Джазира». Новое крыло © Hufton+Crow
Штаб-квартира телекомпании «Аль-Джазира». Новое крыло © Hufton+Crow
Штаб-квартира телекомпании «Аль-Джазира». Новое крыло © Hufton+Crow
Штаб-квартира телекомпании «Аль-Джазира». Новое крыло © Hufton+Crow
Штаб-квартира телекомпании «Аль-Джазира». Новое крыло © Hufton+Crow
Штаб-квартира телекомпании «Аль-Джазира». Новое крыло © Hufton+Crow