Размещено на портале Архи.ру (www.archi.ru)

09.08.2017

Семейное гнездо

Объект:
Дом на Волге
Адрес:
Россия,
Мастерская:
Бородавченко и партнеры
Авторский коллектив:
Руководитель мастерской: А.Г. Бородавченко
Архитекторы: П.В. Дерюгин, Е.В. Ширяева, А. Олоеде
Ландшафтный дизайн: фирма «Ли Эр»

Частный дом с видом на Волгу и со старым деревенским домом, сохраненным как музей.

Дом на Волге © Бородавченко и партнеры
Дом на Волге © Бородавченко и партнеры

Архитекторы бюро Александра Бородавченко знакомы с заказчиком дома на Волге давно: 15 лет назад они уже построили для него один дом в поселке Грибово. Новый дом построен на участке, который принадлежит заказчику с 1950-х годов – к этому времени восходит деревянный дом, который было решено сохранить и превратить в своего рода летний домик-музей, хранящий семейные реликвии. Его западную половину заключили в новый «чехол» темного дерева с террасой, а восточную оставили в подлинном виде – послевоенного деревенского дома.
Дом на Волге. Старый дом «Музей» © Бородавченко и партнеры
Дом на Волге. Старый дом «Музей» © Бородавченко и партнеры
Дом на Волге © Бородавченко и партнеры
Дом на Волге © Бородавченко и партнеры


Новый дом – подчеркнуто современной архитектуры, следует заветам Корбюзье и Райта. Белые стены со вставками темных панелей древесно-полимерного композита подчеркивают горизонтали. Консоли несколько усложняют силуэт. Панорамные окна «в пол», балконы, террасы и эксплуатируемая плоская кровля позволяют любоваться окрестностями в любых ракурсах. Безусловное достоинство участка – вид на Волгу. К реке обращен северный торец дома и хотя север – по определению не лучшая ориентация, в данном случае панорама позволяет, как поясняют авторы, созерцать и закат, и рассвет. Для чего северная стена дома в трех этажах выше цоколя стала почти полностью стеклянной. 
Дом на Волге © Бородавченко и партнеры
Дом на Волге © Бородавченко и партнеры
Дом на Волге © Бородавченко и партнеры
Дом на Волге © Бородавченко и партнеры
Дом на Волге © Бородавченко и партнеры
Дом на Волге © Бородавченко и партнеры
Дом на Волге © Бородавченко и партнеры
Дом на Волге © Бородавченко и партнеры
Дом на Волге © Бородавченко и партнеры
Дом на Волге © Бородавченко и партнеры
Дом на Волге © Бородавченко и партнеры
Дом на Волге © Бородавченко и партнеры
Дом на Волге © Бородавченко и партнеры
Дом на Волге © Бородавченко и партнеры
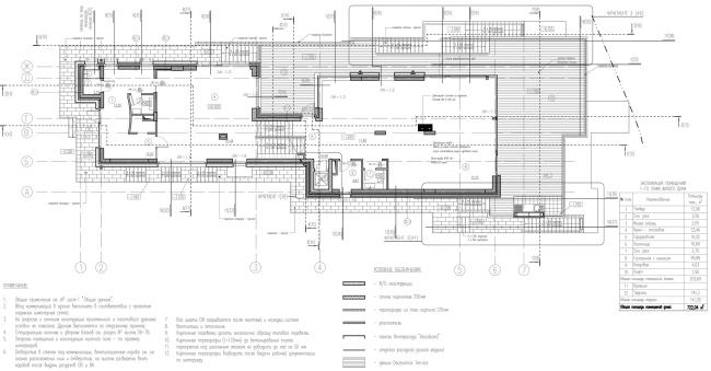
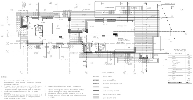
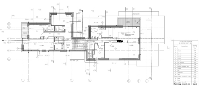
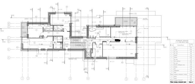
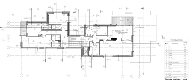
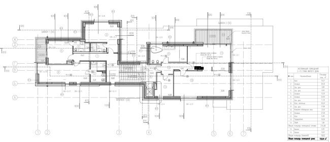
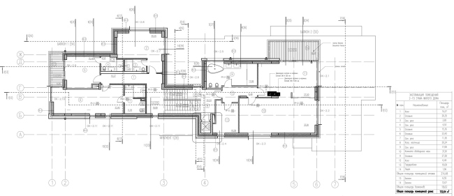
Дом на Волге. План 1 этажа © Бородавченко и партнеры
Дом на Волге. План 1 этажа © Бородавченко и партнеры
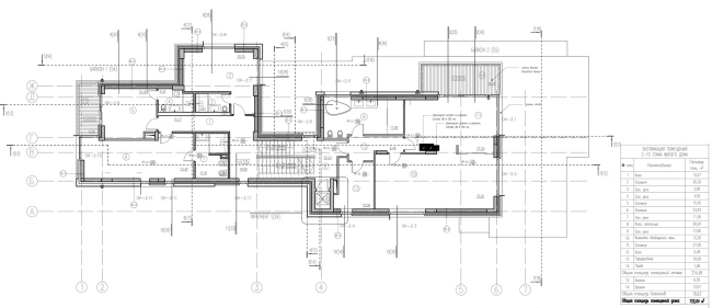
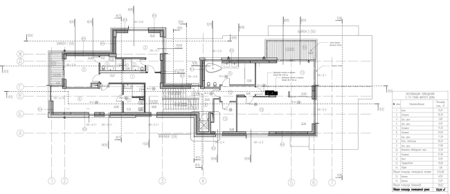
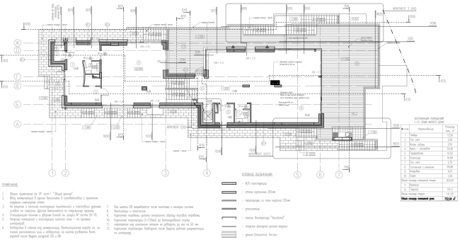
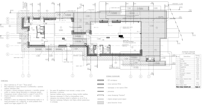
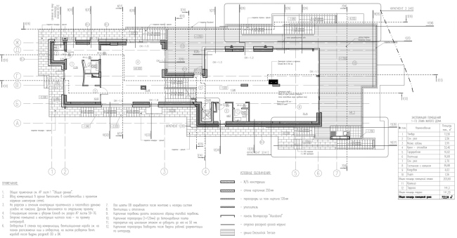
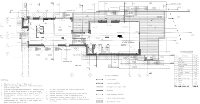
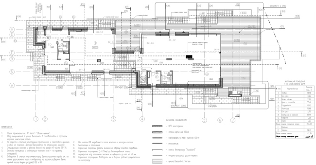
Дом на Волге. План 2 этажа © Бородавченко и партнеры
Дом на Волге. План 2 этажа © Бородавченко и партнеры