Размещено на портале Архи.ру (www.archi.ru)

07.08.2017

Три восьмерки

Нина Фролова
Объект:
Центр проектирования Huawei Technological Factory
Адрес:
Китай, None, Пекин.
Мастерская:
gmp

Пекинский центр проектирования для компании Huawei по проекту gmp Architekten.

Центр проектирования Huawei Technological Factory © Christian Gahl
Центр проектирования Huawei Technological Factory © Christian Gahl

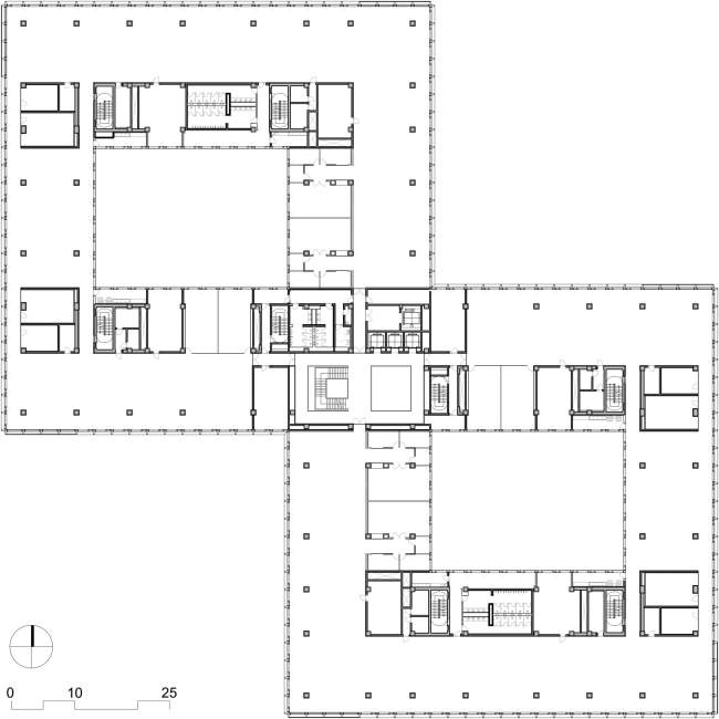
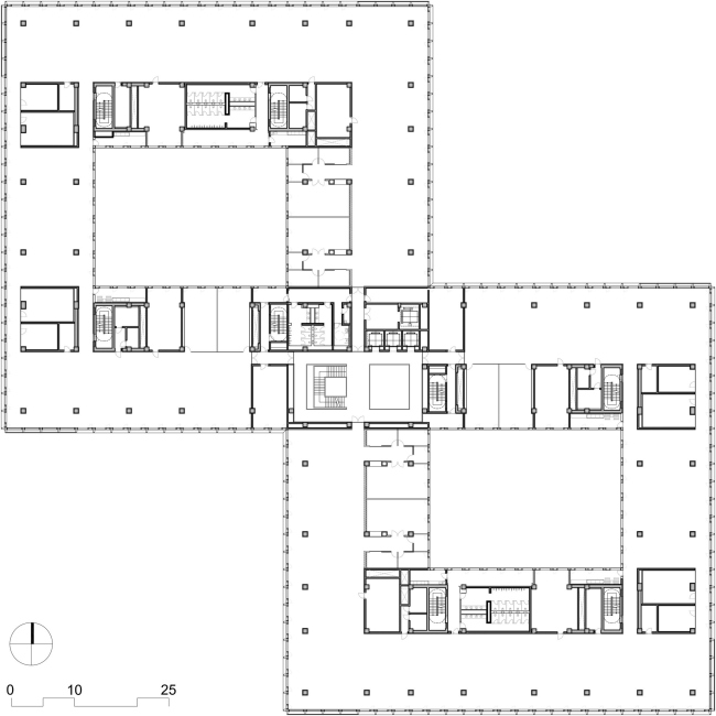
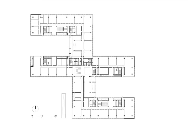
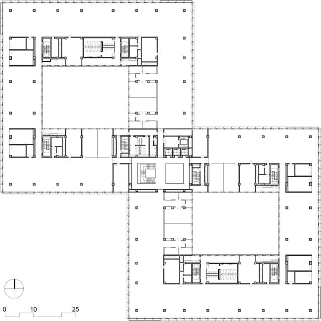
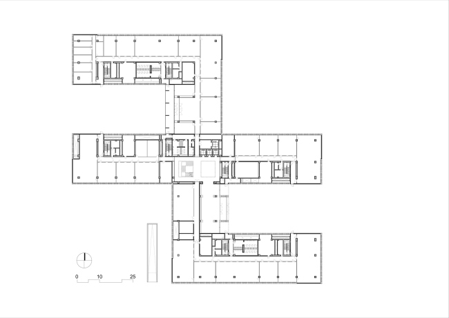
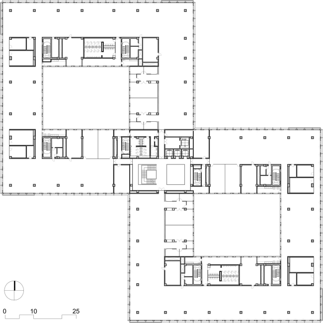
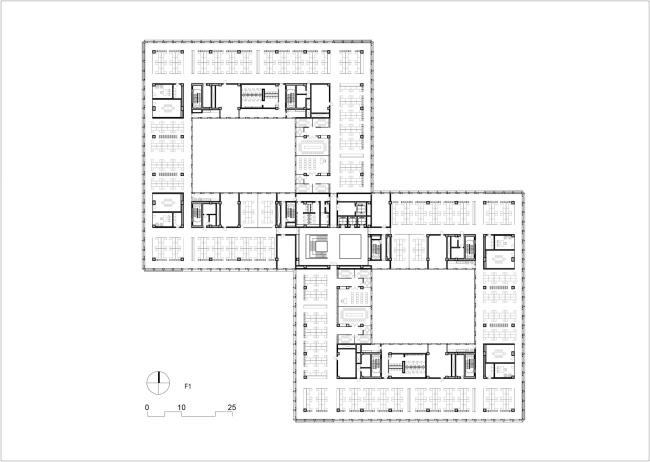
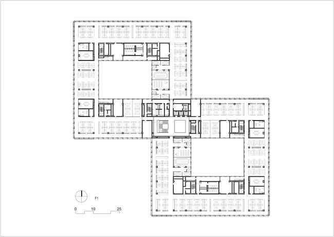
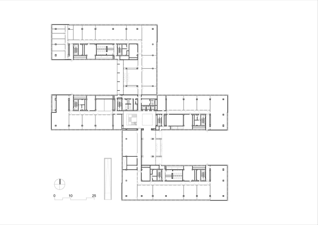
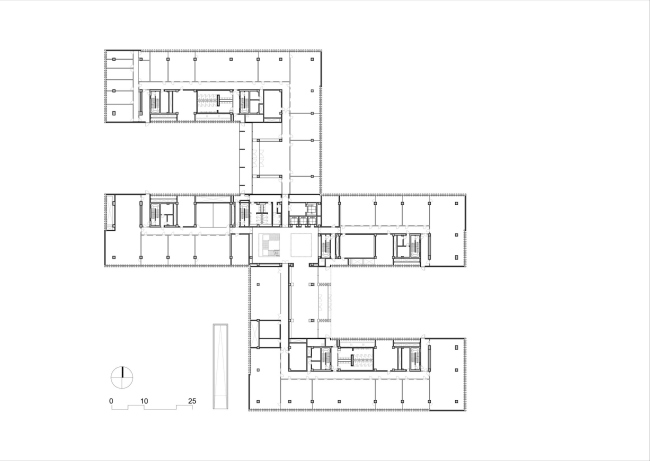
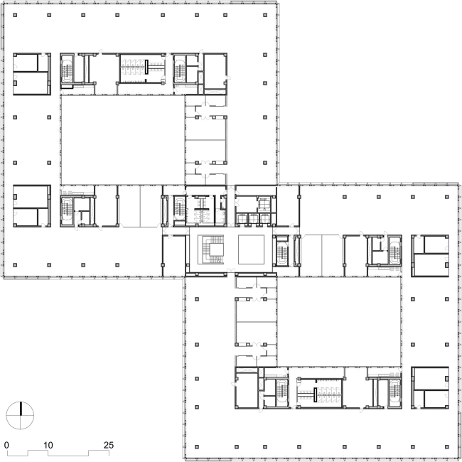
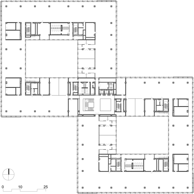
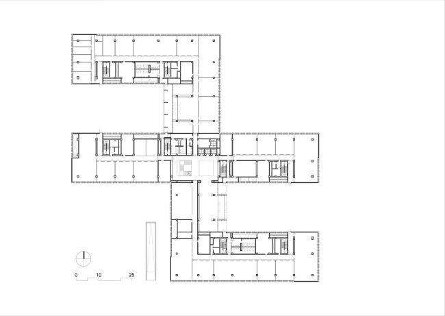
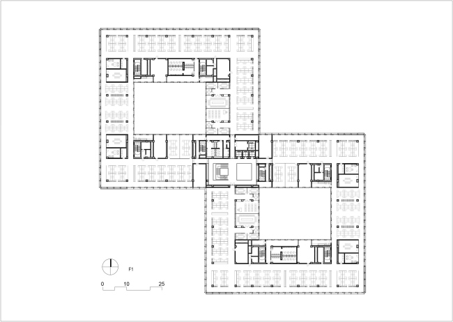
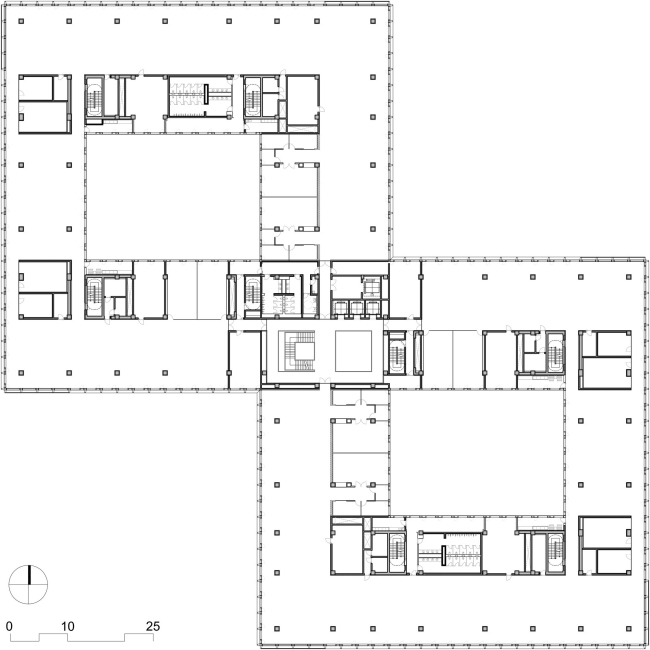
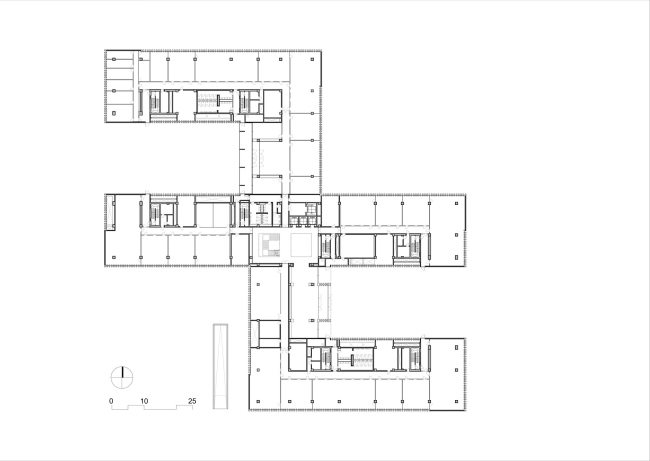
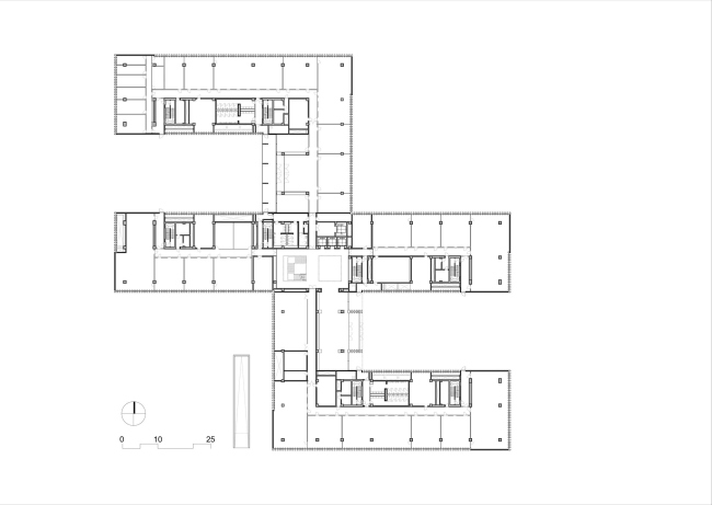
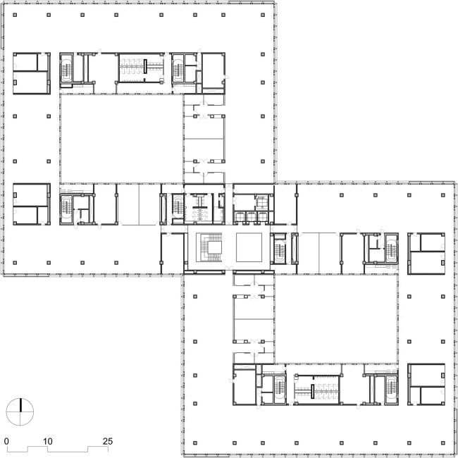
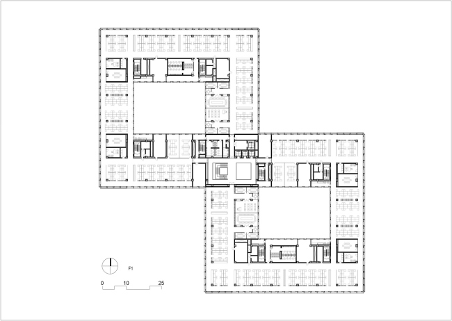
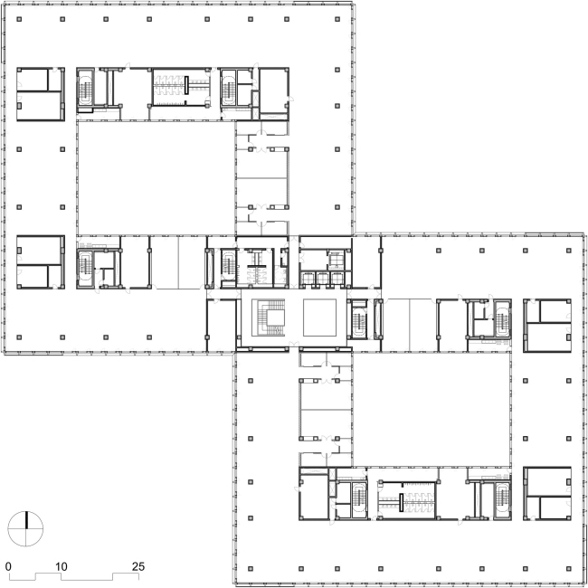
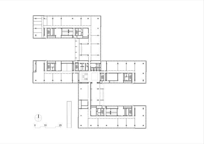
Комплекс R&D в Пекине – уже третье подобное сооружение бюро gmp для Huawei: до этого были проекты в Шэньчжэне и Чэнду. Столичный центр исследований и проектирования (общая площадь 85 000 м2) расположен в «природном» технопарке Чжунгуаньцунь: свободная планировка по образцу кампуса позволила почти все рабочие места связать с зеленой зоной снаружи.
 
Центр проектирования Huawei Technological Factory © Christian Gahl
Центр проектирования Huawei Technological Factory © Christian Gahl

Три корпуса R&D имеют план в виде «угловатых» восьмерок, составленных из двух квадратов каждая. Их нижние части получили облицовку из светлого камня, верхние половины обшиты темным металлом. Главную роль в ансамбле играет белое, но при этом более закрытое здание столовой, где также расположен главный вестибюль всего комплекса.
Центр проектирования Huawei Technological Factory © Christian Gahl
Центр проектирования Huawei Technological Factory © Christian Gahl
Центр проектирования Huawei Technological Factory © Christian Gahl
Центр проектирования Huawei Technological Factory © Christian Gahl
Центр проектирования Huawei Technological Factory © Christian Gahl
Центр проектирования Huawei Technological Factory © Christian Gahl
Центр проектирования Huawei Technological Factory © Christian Gahl
Центр проектирования Huawei Technological Factory © Christian Gahl
Центр проектирования Huawei Technological Factory © Christian Gahl
Центр проектирования Huawei Technological Factory © Christian Gahl
Центр проектирования Huawei Technological Factory © Christian Gahl
Центр проектирования Huawei Technological Factory © Christian Gahl
Центр проектирования Huawei Technological Factory © gmp Architekten / RLA Rehwaldt
Landschaftsarchitekten
Центр проектирования Huawei Technological Factory © gmp Architekten / RLA Rehwaldt Landschaftsarchitekten
Центр проектирования Huawei Technological Factory © gmp Architekten
Центр проектирования Huawei Technological Factory © gmp Architekten
Центр проектирования Huawei Technological Factory © gmp Architekten
Центр проектирования Huawei Technological Factory © gmp Architekten
Центр проектирования Huawei Technological Factory © gmp Architekten
Центр проектирования Huawei Technological Factory © gmp Architekten
Центр проектирования Huawei Technological Factory © gmp Architekten
Центр проектирования Huawei Technological Factory © gmp Architekten