Размещено на портале Архи.ру (www.archi.ru)

04.08.2017

В фирменном цвете

Нина Фролова
Объект:
Культурный центр Carmen Würth Forum
Адрес:
Германия, None, Кюнцельзау. Am Forumsplatz 1, 74653 Künzelsau

Культурный центр Carmen Würth Forum близ Штутгарта по проекту берлинского офиса David Chipperfeld Architects.

Культурный центр Carmen Würth Forum. Первая очередь строительства
Культурный центр Carmen Würth Forum. Первая очередь строительства
Фото © Simon Menges

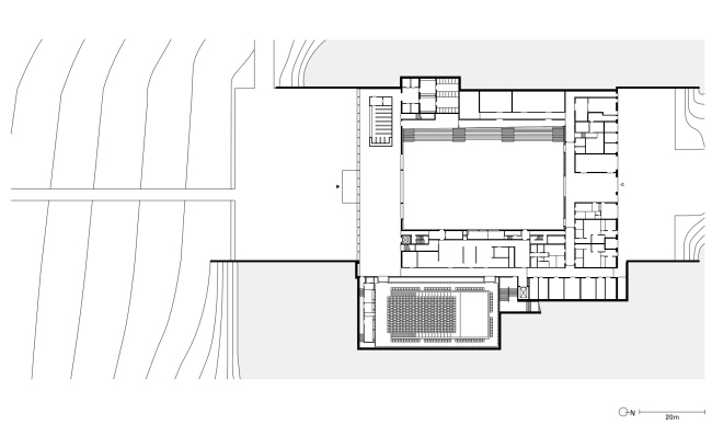
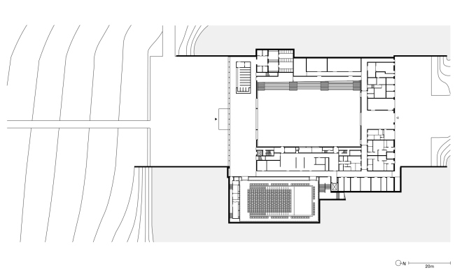
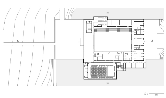
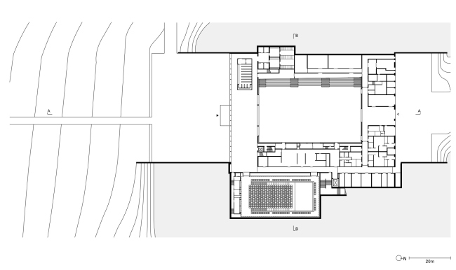
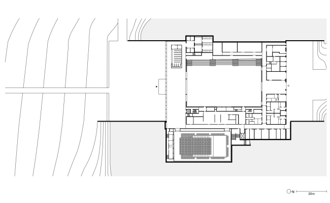
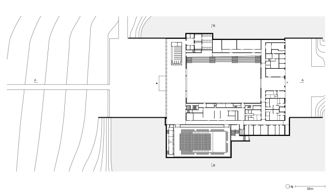
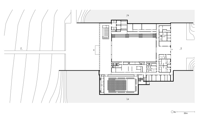
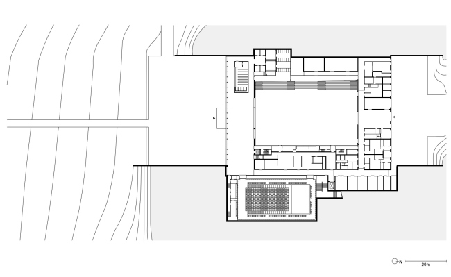
Carmen Würth Forum – детище миллиардера Райнхольда Вюрта, главы группы Würth – производителя крепежного материала, инструмента и т.п. Сейчас рядом с кампусом его компании в Кюнцельзау завершена первая очередь проекта, включающая в себя многофункциональное пространство для мероприятий на 3500 человек и концертный зал камерной музыки на 600 зрителей. Во второй стадии строительства – музей для художественной коллекции семейства Вюрт и мощности для использования комплекса в качестве конференц-центра.
 
Культурный центр Carmen Würth Forum. Первая очередь строительства
Культурный центр Carmen Würth Forum. Первая очередь строительства
Фото © Simon Menges

Расположение названного в честь жены Райнхольда «Форума» на окраине города, среди полей, обусловили его небольшую высоту: оба зала вписаны в холм, частично оказавшись под землей. Ведущие к ним дворы ограничены бетонными подпорными стенками, чья слоистая структура напоминает о характерной для местности осадочных породах. В большем, южном, дворе, ведущем к главном входу, можно проводить концерты на открытом воздухе – на аудиторию в 10 000 зрителей.
 
Культурный центр Carmen Würth Forum. Первая очередь строительства
Культурный центр Carmen Würth Forum. Первая очередь строительства
Фото © Simon Menges

Собственно постройка – вполне неомодернистская, с остеклением и металлическими профилями фасадов. Красный цвет, широко использованный в фойе и обоих залах – фирменный для группы Würth. Концертный зал полностью обшит изнутри древесиной каштана.
Культурный центр Carmen Würth Forum. Первая очередь строительства
Культурный центр Carmen Würth Forum. Первая очередь строительства
Фото © Simon Menges
Культурный центр Carmen Würth Forum. Первая очередь строительства
Культурный центр Carmen Würth Forum. Первая очередь строительства
Фото © Simon Menges
Культурный центр Carmen Würth Forum. Первая очередь строительства
Культурный центр Carmen Würth Forum. Первая очередь строительства
Фото © Simon Menges
Культурный центр Carmen Würth Forum. Генплан обеих очередей строительства
Культурный центр Carmen Würth Forum. Генплан обеих очередей строительства
© David Chipperfield Architects
Культурный центр Carmen Würth Forum. Первая очередь строительства
Культурный центр Carmen Würth Forum. Первая очередь строительства
© David Chipperfield Architects
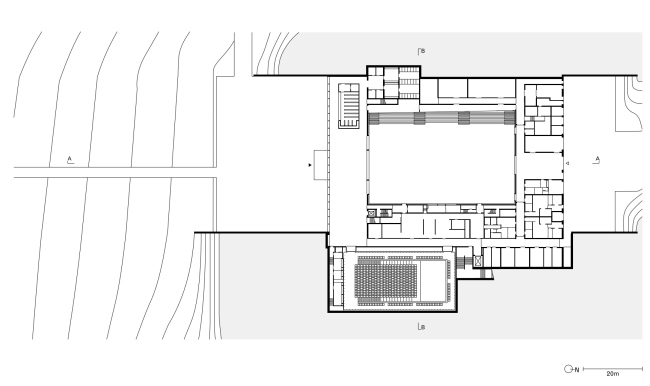
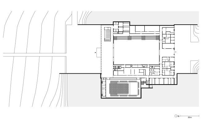
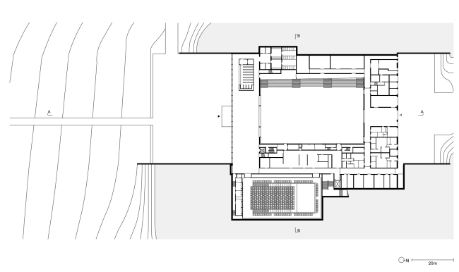
Культурный центр Carmen Würth Forum. Первая очередь строительства
Культурный центр Carmen Würth Forum. Первая очередь строительства
© David Chipperfield Architects
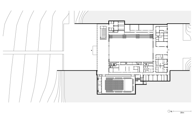
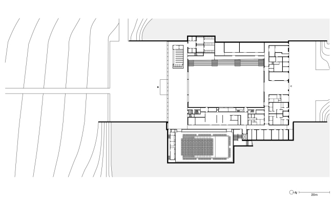
Культурный центр Carmen Würth Forum. Первая очередь строительства
Культурный центр Carmen Würth Forum. Первая очередь строительства
© David Chipperfield Architects
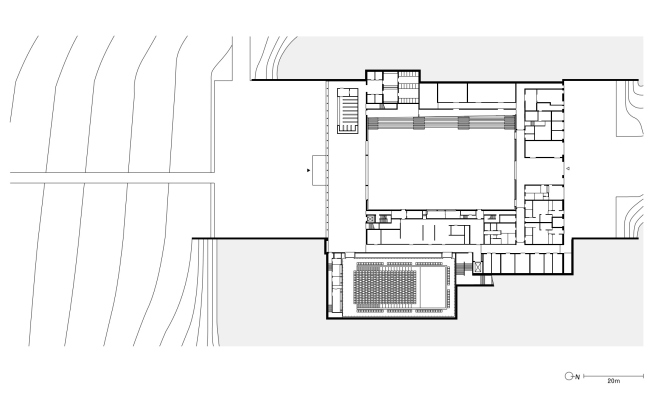
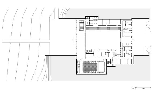
Культурный центр Carmen Würth Forum. Первая очередь строительства
Культурный центр Carmen Würth Forum. Первая очередь строительства
© David Chipperfield Architects
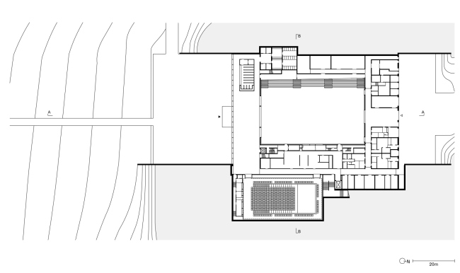
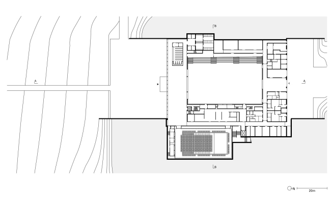
Культурный центр Carmen Würth Forum. Первая очередь строительства
Культурный центр Carmen Würth Forum. Первая очередь строительства
© David Chipperfield Architects
Культурный центр Carmen Würth Forum. Первая очередь строительства
Культурный центр Carmen Würth Forum. Первая очередь строительства
© David Chipperfield Architects