Размещено на портале Архи.ру (www.archi.ru)

02.08.2017

Связь с природой

Нина Фролова
Объект:
Вилла Рюпен
Адрес:
Дания, None, Орхус.
Мастерская:
C. F. Møller

Вилла Рюпен на окраине Орхуса по проекту бюро C. F. Møller.

Вилла Рюпен © Julian Weyer
Вилла Рюпен © Julian Weyer

Идея проекта – в обеспечении тесной связи дома с природой. Вилла находится на границе жилого района и леса, и во все стороны – к лесу и саду – открыта деревянными террасами и обширными поверхностями остекления.
 
Вилла Рюпен © Julian Weyer
Вилла Рюпен © Julian Weyer
Вилла Рюпен © Julian Weyer
Вилла Рюпен © Julian Weyer
Вилла Рюпен © Julian Weyer
Вилла Рюпен © Julian Weyer

Кроме стекла и дерева, архитекторы использовали напоминающие черепицу терракотовые плитки: ими покрыты фасады.
 
Вилла Рюпен © Julian Weyer
Вилла Рюпен © Julian Weyer
Вилла Рюпен © Julian Weyer
Вилла Рюпен © Julian Weyer
Вилла Рюпен © Julian Weyer
Вилла Рюпен © Julian Weyer

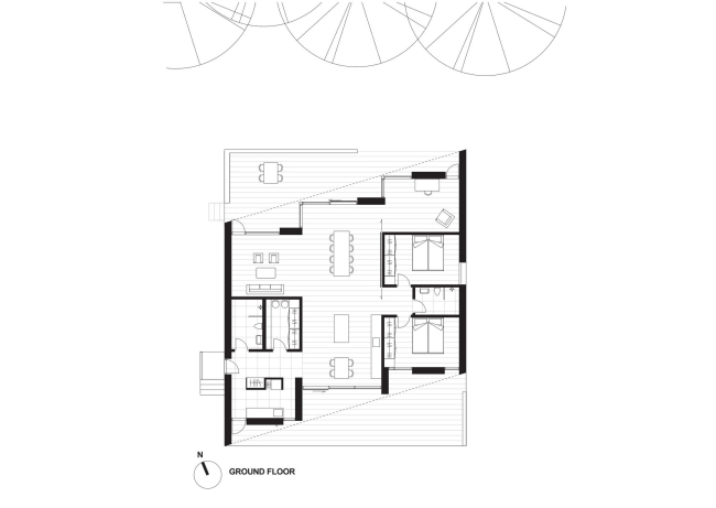
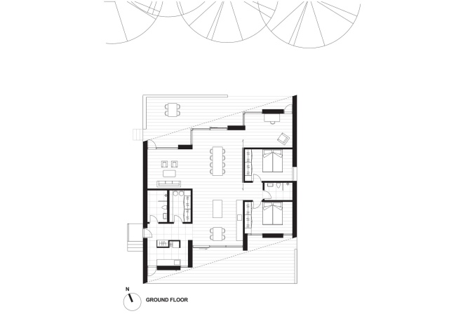
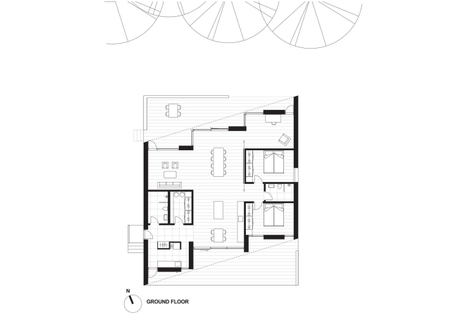
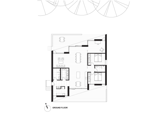
Планировка виллы может меняться в зависимости от нужд владельцев. Сейчас это три обращенные на восток спальни и серия общих комнат.
Вилла Рюпен © Julian Weyer
Вилла Рюпен © Julian Weyer
Вилла Рюпен © Julian Weyer
Вилла Рюпен © Julian Weyer
Вилла Рюпен © Julian Weyer
Вилла Рюпен © Julian Weyer
Вилла Рюпен © Julian Weyer
Вилла Рюпен © Julian Weyer
Вилла Рюпен © Julian Weyer
Вилла Рюпен © Julian Weyer
Вилла Рюпен © Julian Weyer
Вилла Рюпен © Julian Weyer
Вилла Рюпен © Julian Weyer
Вилла Рюпен © Julian Weyer
Вилла Рюпен © Julian Weyer
Вилла Рюпен © Julian Weyer
Вилла Рюпен © Julian Weyer
Вилла Рюпен © Julian Weyer
Вилла Рюпен © C. F. Møller
Вилла Рюпен © C. F. Møller
Вилла Рюпен © C. F. Møller
Вилла Рюпен © C. F. Møller
Вилла Рюпен © C. F. Møller
Вилла Рюпен © C. F. Møller