Размещено на портале Архи.ру (www.archi.ru)

21.08.2017

Образ жизни в аренду

Наталья Мурадова
Объект:
Арендный поселок «Дарьино-Успенское»
Адрес:
Россия, Московская обл., Москва.
Архитектор:
Роман Леонидов
Мастерская:
АБ Романа Леонидова

Бюро Романа Леонидова спроектировало коттеджный поселок Дарьино-Успенское, разрушив архитектурными решениями стереотипы об образе жизни на Рублевке.

Дом Лесной. Арендный поселок «Дарьино-Успенское» © Архитектурное бюро Романа Леонидова
Дом Лесной. Арендный поселок «Дарьино-Успенское» © Архитектурное бюро Романа Леонидова

Поселок Дарьино-Успенское расположен в Одинцовском районе, в трех километрах от Рублево-Успенского шоссе. Участок площадью 55 гектаров находится в центре территории, которую принято считать самым респектабельным районом Подмосковья, между Николино и Лапино. На востоке он соседствует с академическими дачами Новодарьино, на севере – с поселком «Дипломат», на западе – с Ново-Николино, а по его южной границе протекает ручей, за которым стоит новый храм Николая Чудотворца. Примерно две трети Дарьино-Успенского когда-то было пахотным полем, к северу от которого начинается смешанный лес.

Сначала заказчики планировали плотно застроить крупный кластер на юго-востоке будущего поселка. Для него Роман Леонидов сделал генплан, где дома были скомпонованы в форме листков клевера. Затем заказчик перенес первую очередь в северную часть, в лесную зону, число объектов существенно сократили и иначе расставили по участку. Сейчас территории сданной в эксплуатацию первой очереди и спроектированной второй разделены клинообразным участком, который нарезали на лоты и выставили на продажу без построек.
Генплан. Арендный поселок «Дарьино-Успенское» © Архитектурное бюро Романа Леонидова
Генплан. Арендный поселок «Дарьино-Успенское» © Архитектурное бюро Романа Леонидова

Особенность Дарьино-Успенского в том, что этот поселок – арендный, жилье в нем изначально проектировалось для сдачи внаем, а не на продажу. Перед бюро Романа Леонидова стояла задача разработать два типовых проекта, которые будут отличаться друг от друга по площади. В том, что касается материалов и технологии, конкретики было меньше. Заказчики делали выбор уже по факту стройки, чтобы оценить затраты экспериментальным путем. Так в поселке появился один дом из бруса, один фахверковый, а остальные – каркасно-щитовые, поскольку на них и решили остановиться.
Больше всего в поселке блокированных двухэтажных таунхаусов с площадями жилых секций по 240 м2, их десять. Еще три дома – трехэтажные коттеджи по 500 м2, их так и называют в проекте – Большие. Единственный в своем роде Лесной дом – тот, что из бруса – стоит отдельно, в самой чаще.
Дом №3 Блочный. Арендный поселок «Дарьино-Успенское» © Архитектурное бюро Романа Леонидова
Дом №3 Блочный. Арендный поселок «Дарьино-Успенское» © Архитектурное бюро Романа Леонидова

По большому счету, вся первая очередь поселка находится в лесу, что в значительной степени определило его архитектурный образ. В отличие от большей части Рублевки, дома Дарьино-Успенского выглядят предельно открытыми. Ни у коттеджей, ни у таунхаусов нет ни заборов, ни собственных отгороженных участков. Более того, Роман Леонидов настоял на том, чтобы вокруг домов не было отмосток, вместо них по периметру высадили растения. Поселок выглядит «европеизированным», и это впечатление усиливают остекленные входные двери и отсутствие цоколя.
Дом Блочный. Арендный поселок «Дарьино-Успенское» © Архитектурное бюро Романа Леонидова
Дом Блочный. Арендный поселок «Дарьино-Успенское» © Архитектурное бюро Романа Леонидова

Асфальтированными задуманы только подъездные дороги, остальные же дорожки и тропинки были спроектированы из древесины лиственницы. Свайный фундамент, отказ от отмосток и привычного мощения также были продиктованы желанием сохранить ландшафт: они не создают замкнутого контура в почве и не нарушают сложившуюся циркуляцию воды, то есть не несут вреда старым деревьям, часть из которых при других решениях была бы обречена на гибель.
Дом Лесной. Арендный поселок «Дарьино-Успенское» © Архитектурное бюро Романа Леонидова
Дом Лесной. Арендный поселок «Дарьино-Успенское» © Архитектурное бюро Романа Леонидова

В объемно-пространственном решении легко распознать «почерк» бюро Романа Леонидова: прямоугольная геометрия фасадов, отсутствие лишних деталей, односкатные кровли.
Несмотря на то, что поселок застроен по типовому проекту, однообразным он не выглядит. Во-первых, благодаря нерегулярной расстановке: лишь пять домов расположены аккуратно вдоль дороги, остальные же рассредоточены между деревьями. Во-вторых, из-за фасадных материалов: часть таунхаусов отделана досками, другая – фиброцементными панелями, имитирующими кладку, поэтому они кажутся разными, хотя на самом деле существенно не отличаются.
Дом №2 Блочный. Арендный поселок «Дарьино-Успенское» © Архитектурное бюро Романа Леонидова
Дом №2 Блочный. Арендный поселок «Дарьино-Успенское» © Архитектурное бюро Романа Леонидова

У блокированных домов нет общих стен, секции предельно открыты окружающему пространству, но существуют автономно. Они объединены не столько конструктивно, сколько визуально. Роль смычки выполняют гаражные навесы. Гаражей как таковых, ни вынесенных, ни встроенных, нет: «Как показывает практика использование таунхаусов в Подмосковье, гаражи практически нигде не используются по своему прямому назначению. Автомобиль чаще всего все равно остается снаружи дома, а гараж превращается либо в спортзал, либо во еще во что-то», – объясняет Роман Леонидов.
Дом № 1 Блочный. Арендный поселок «Дарьино-Успенское» © Архитектурное бюро Романа Леонидова
Дом № 1 Блочный. Арендный поселок «Дарьино-Успенское» © Архитектурное бюро Романа Леонидова

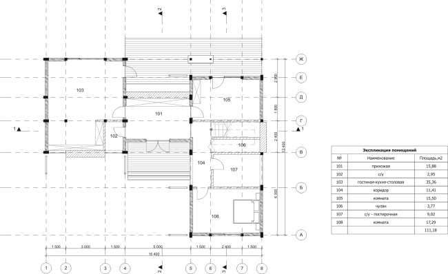
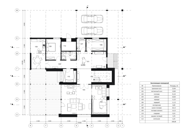
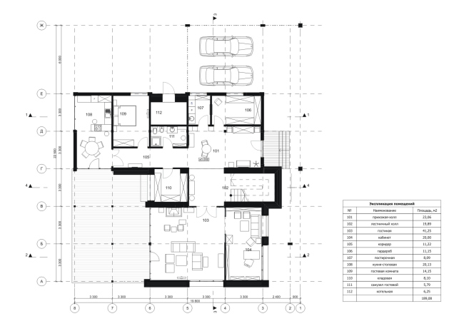
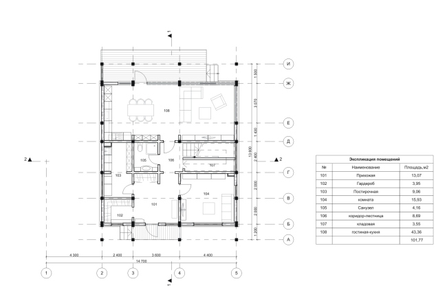
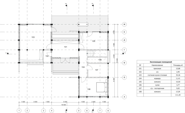
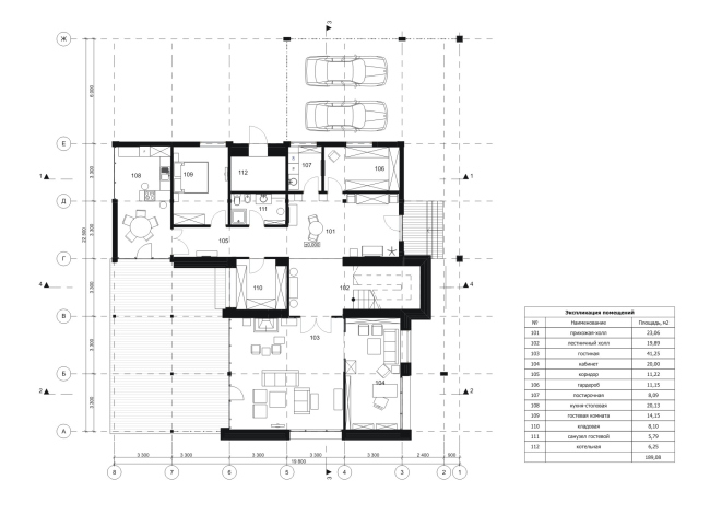
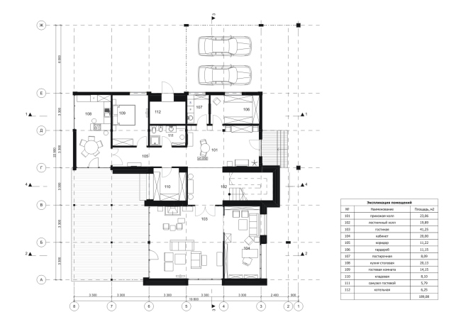
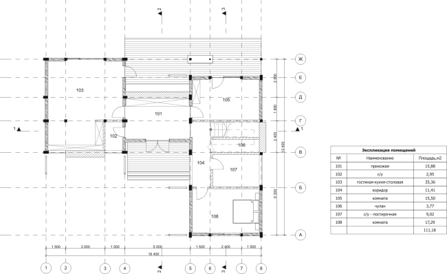
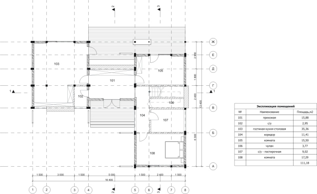
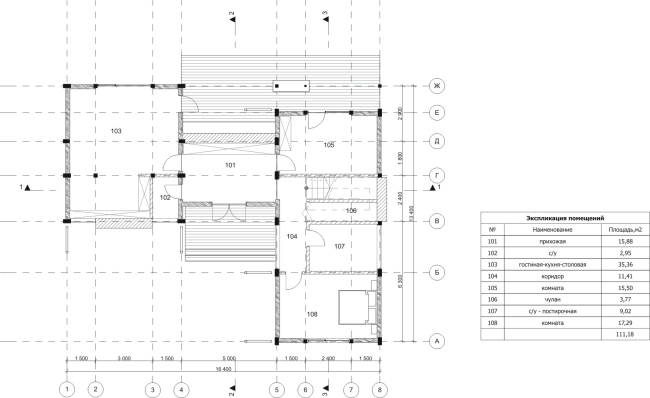
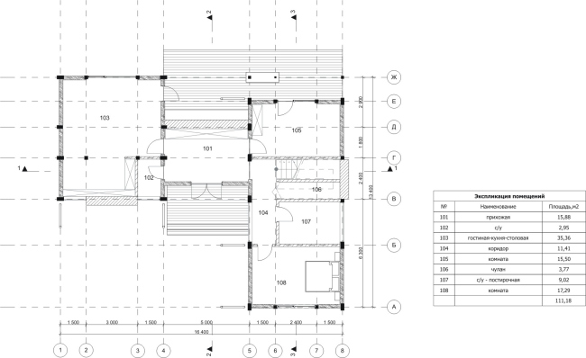
Со стороны переднего фасада первый этаж почти полностью остеклен, и во всю его длину тянется открытая терраса. Над ней находится большой балкон с редкой горизонтальной металлической решеткой. Дверь с террасы ведет в кухню-столовую и зону гостиной. С противоположной стороны расположен еще один вход в дом – через прихожую. По одну сторону от нее находятся гардеробная и постирочная, по другую – изолированная комната. Роль «буферной» территории между гостевой зоной, открытой на террасу, и приватно-хозяйственной выполняют санузел и лестница, ведущая на второй этаж.
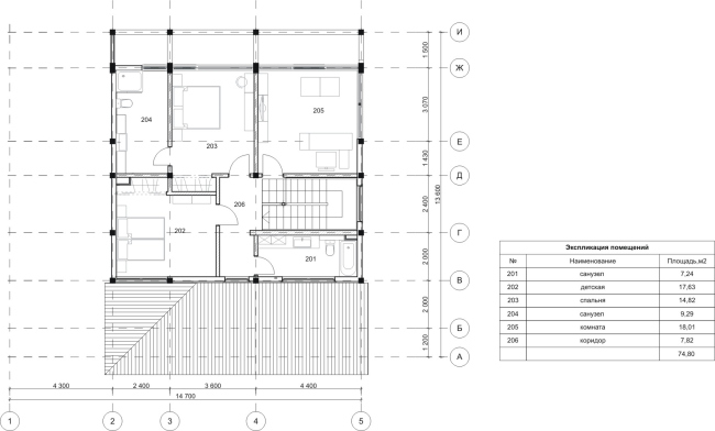
Дом Блочный. План, 1 этаж. Арендный поселок «Дарьино-Успенское» © Архитектурное бюро Романа Леонидова
Дом Блочный. План, 1 этаж. Арендный поселок «Дарьино-Успенское» © Архитектурное бюро Романа Леонидова

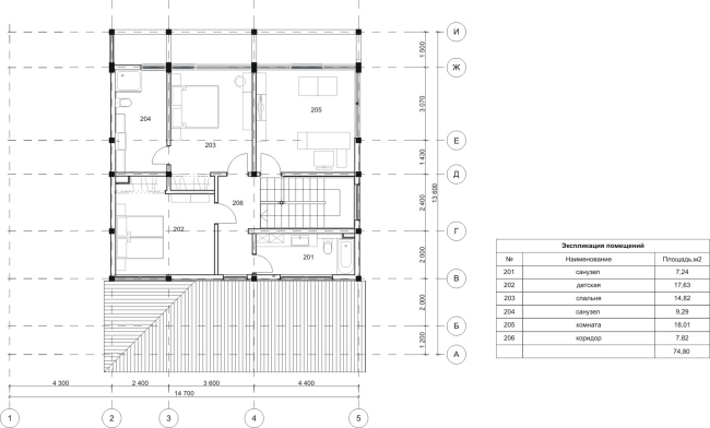
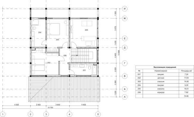
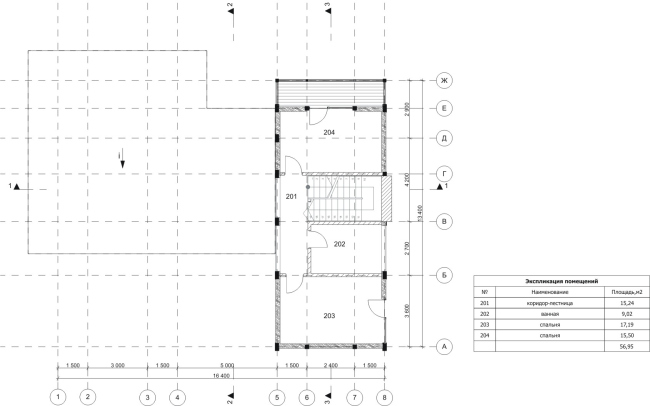
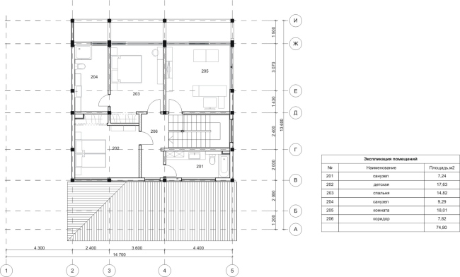
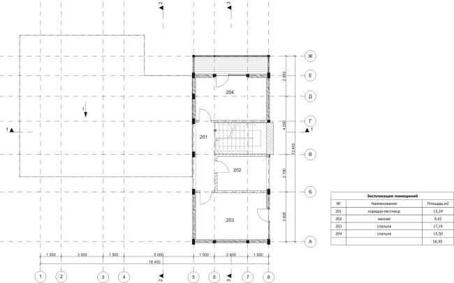
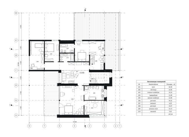
Торцы в верхней части второго этажа по проекту должны были быть стеклянными, чтобы создавать ощущение парящей в воздухе кровли, а окна – в пол. Однако от витражей отказались по экономическим соображением, а от больших окон – из опасений, что арендаторов смутит отсутствие традиционных настенных радиаторов. В итоге постройка немного потеряла в выразительности, но функционально пострадала не слишком: кровля опускается над санузлом, лестницей и детской, а остальные две комнаты второго этажа выходят на передний фасад, и помимо окон достаточно большого размера, у них есть еще выход на балкон.
Дом Блочный. План, 2 этаж. Арендный поселок «Дарьино-Успенское» © Архитектурное бюро Романа Леонидова
Дом Блочный. План, 2 этаж. Арендный поселок «Дарьино-Успенское» © Архитектурное бюро Романа Леонидова

«Большие дома» состоят из трех разновысотных прямоугольных объемов. В отделке их фасадов использованы три цвета – темно-коричневый, бежевый и белый. На центральном – темном и самом высоком – блоке окна вытянуты по вертикали, на остальных – по горизонтали. Границы цветов игнорируют границы геометрические, благодаря чему дома выглядят легкими и компактными, несмотря на свои размеры.
Дом Большой. Арендный поселок «Дарьино-Успенское» © Архитектурное бюро Романа Леонидова
Дом Большой. Арендный поселок «Дарьино-Успенское» © Архитектурное бюро Романа Леонидова

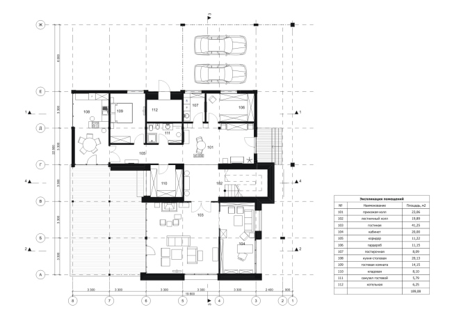
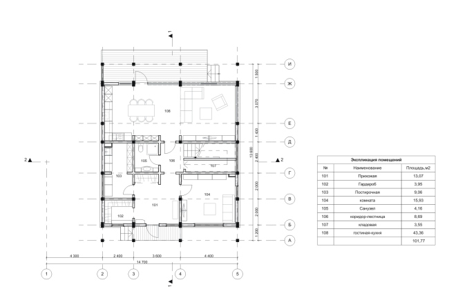
Просторный балкон служит гаражным навесом, рассчитанным на два автомобиля. Под ним также находится вход в котельную. Два входа в дом расположены в «гостевом» горизонтальном секторе: с одной стороны можно войти через прихожую-холл, а с другой – через столовую, которая в этом варианте домов уже отделена от кухни. В той же части дома находится гостевая спальня и санузел. Во втором поперечном «отсеке» находится лестничный холл и кладовая, в третьем – большая гостиная и кабинет.
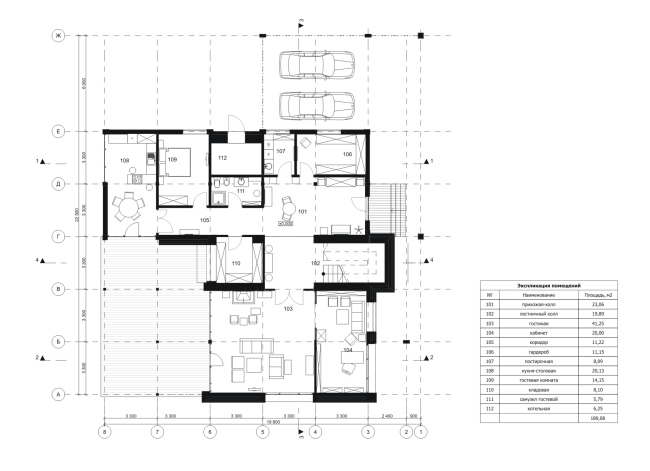
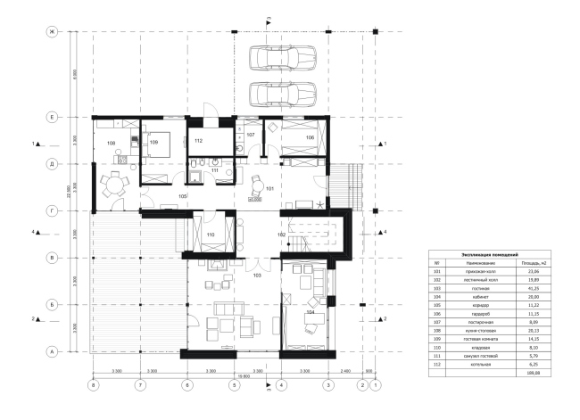
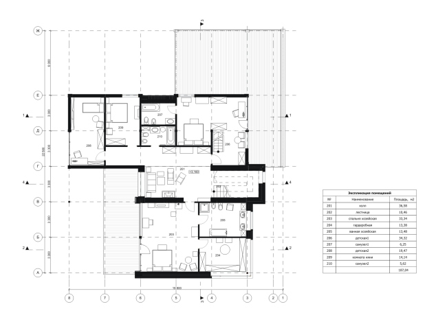
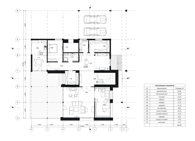
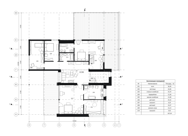
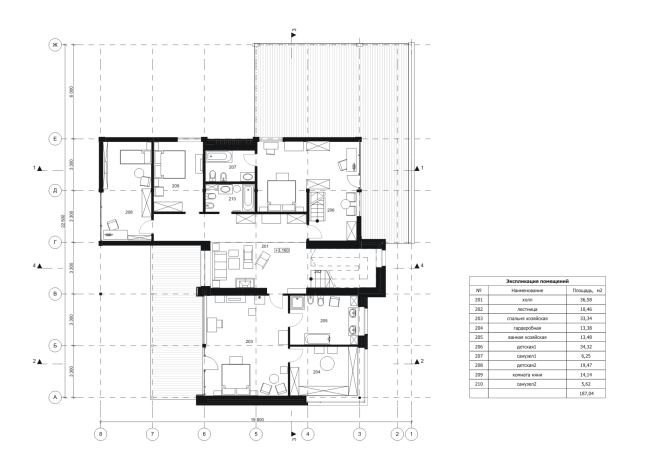
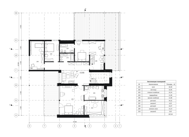
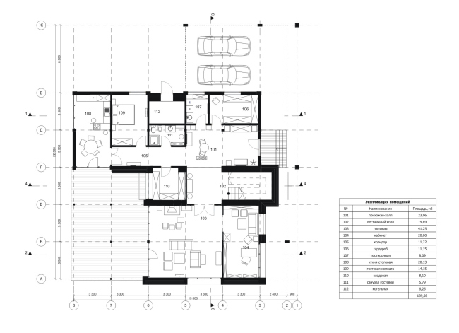
Дом Большой. План, 1 этаж. Арендный поселок «Дарьино-Успенское» © Архитектурное бюро Романа Леонидова
Дом Большой. План, 1 этаж. Арендный поселок «Дарьино-Успенское» © Архитектурное бюро Романа Леонидова

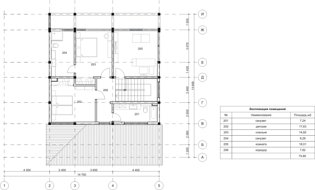
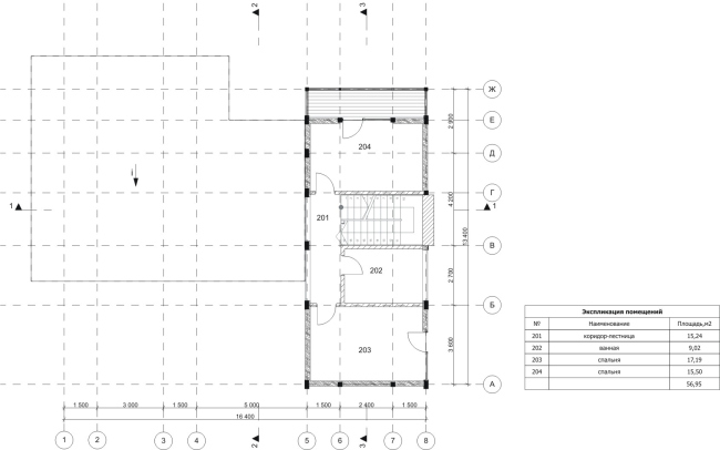
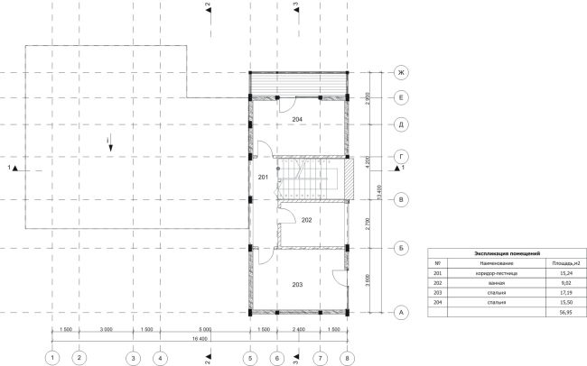
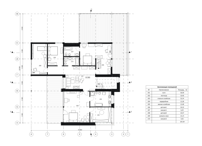
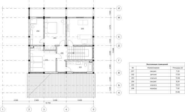
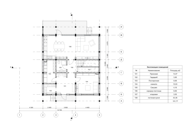
На втором этаже расположены хозяйская спальня и две детские, разделенные комнатой няни. Одна из детских очень просторная, c собственным санузлом, и к тому же двухсветная, с антресолью. С противоположного, переднего, фасада на третьем уровне находится помещение, оборудованное для приготовления пищи, с просторным балконом, подходящим для завтраков и семейных обедов на открытом воздухе.
Дом Большой. План, 2 этаж. Арендный поселок «Дарьино-Успенское» © Архитектурное бюро Романа Леонидова
Дом Большой. План, 2 этаж. Арендный поселок «Дарьино-Успенское» © Архитектурное бюро Романа Леонидова
Дом Блочный. Арендный поселок «Дарьино-Успенское» © Архитектурное бюро Романа Леонидова
Дом Блочный. Арендный поселок «Дарьино-Успенское» © Архитектурное бюро Романа Леонидова

Расположение домов в Дарьино-Успенском не вписывается ни в какой определенный геометрический паттерн: они кажутся разбросанными по благоустроенному участку с подстриженными кустарниками, газонами и расставленными вдоль дорожек предметами современной скульптуры из личной коллекции владельцев поселка. Для жильцов обустроена детская площадка с батутом, зона пикников и большой общий шатер. Открытый характер архитектуры Дарьино-Успенского во многом соответствует тому, что его территория стала единым общественным пространством. «Снимая здесь жилье, человек приобретает образ жизни», – говорит автор проекта Роман Леонидов.
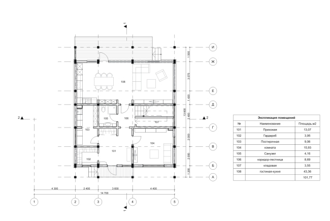
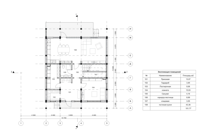
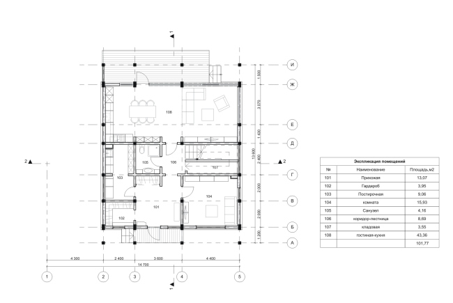
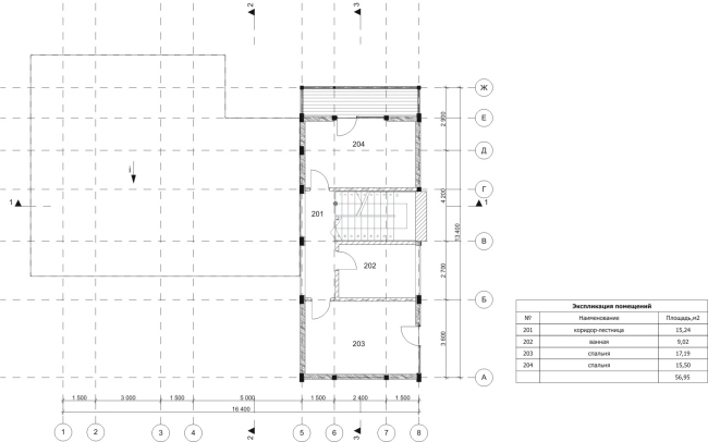
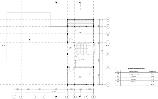
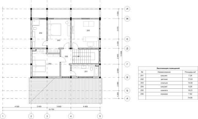
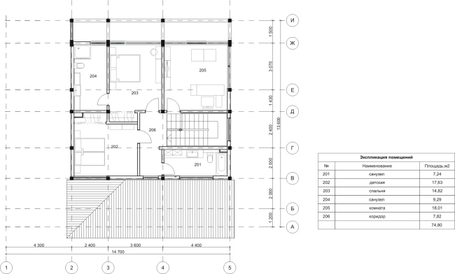
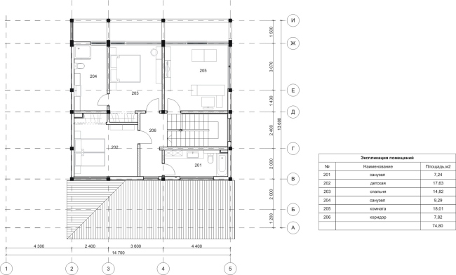
Дом Лесной. План, 2 этаж. Арендный поселок «Дарьино-Успенское» © Архитектурное бюро Романа Леонидова
Дом Лесной. План, 2 этаж. Арендный поселок «Дарьино-Успенское» © Архитектурное бюро Романа Леонидова
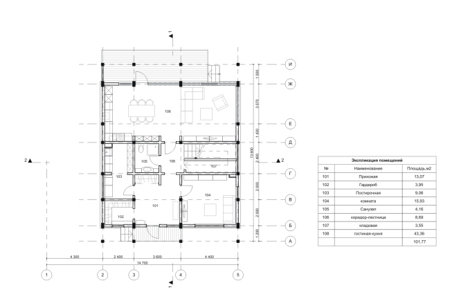
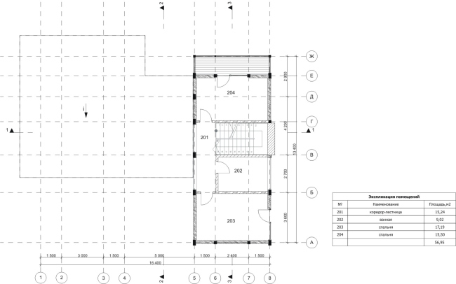
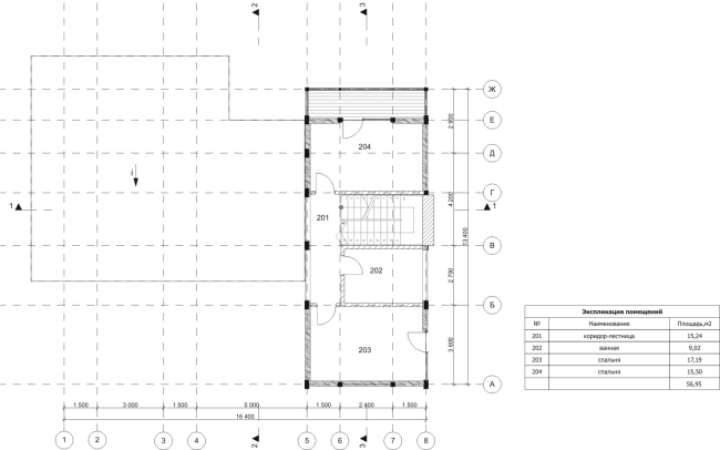
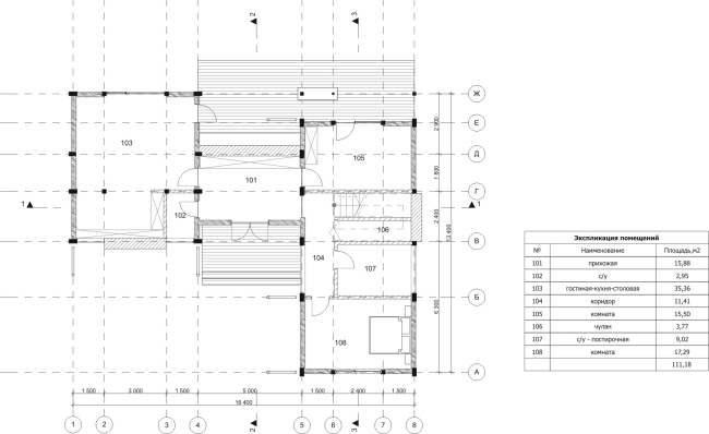
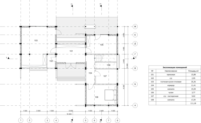
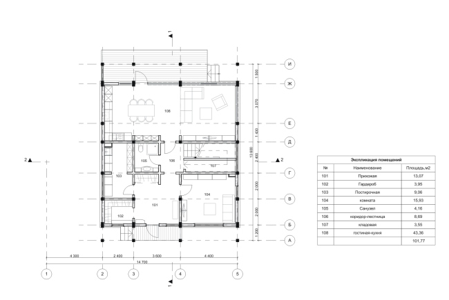
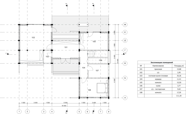
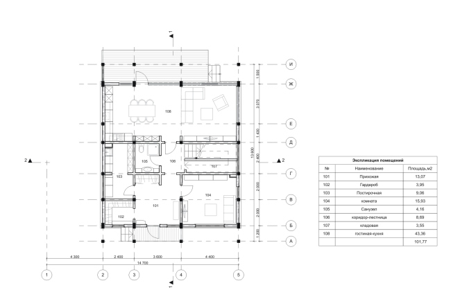
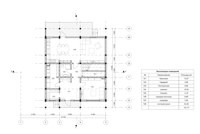
Дом Лесной. План, 1 этаж. Арендный поселок «Дарьино-Успенское» © Архитектурное бюро Романа Леонидова
Дом Лесной. План, 1 этаж. Арендный поселок «Дарьино-Успенское» © Архитектурное бюро Романа Леонидова