Размещено на портале Архи.ру (www.archi.ru)

27.07.2017

Горизонтали власти

Арсений Матвеев
Объект:
Административное здание B30
Адрес:
Нидерланды, None, Гаага. Bezuidenhoutseweg 30
Мастерская:
KAAN Architecten

Реконструкция исторического правительственного комплекса B30 в Гааге по проекту бюро KAAN Architecten и Braaksma & Roos.

Административное здание B30 © Karin Borghouts
Административное здание B30 © Karin Borghouts

Величественное здание с четкой иерархической структурой, выстроенное в 1917 по проекту Даниела Кнюттела для министерства экономики, – образчик неоренессансного стиля и символ нидерландского государства того периода. Спустя сто лет памятник архитектуры «первой категории» получил новую жизнь: здесь разместили пять разных ведомств, провозгласив B30 «мозговым центром» правительства. Для этого потребовалось создать там современное офисное пространство, среду для взаимодействия пользователей, интуитивно понятный план и открытость публике.
 
Административное здание B30 © Karin Borghouts
Административное здание B30 © Karin Borghouts

Бюро KAAN Architecten в сотрудничестве с реставраторами Braaksma & Roos обратились к исторической основе памятника: в основе их концепции – один из вариантов Кнюттела. Было решено удалить более поздние наслоения, в первую очередь – плоды реконструкции 1994 года архитектора Ханса Рёйссенарса. Его дополнения противопоставлялись исторической структуре, а кроме того были сочтены не соответствующими концепции гибкого офисного пространства, так как приоритет в его время был отдан наращиванию площадей.
 
Административное здание B30 © Karin Borghouts
Административное здание B30 © Karin Borghouts

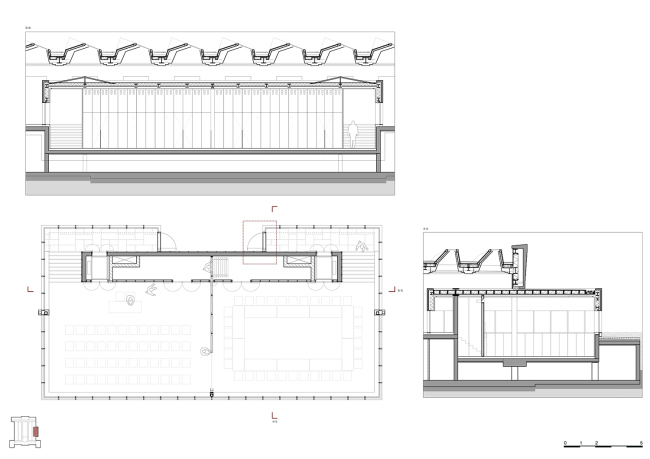
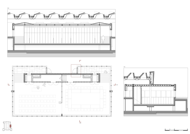
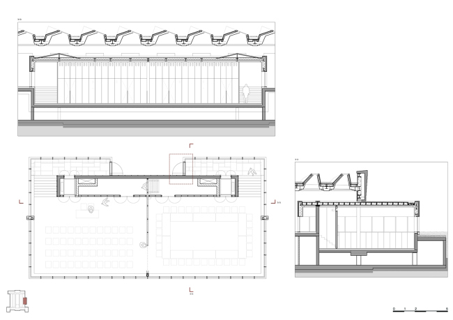
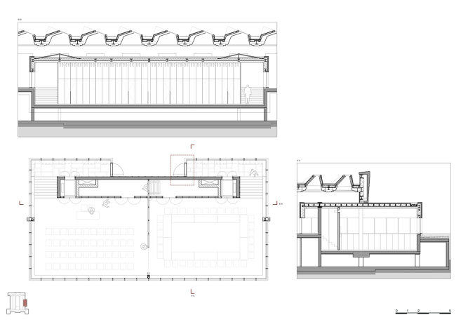
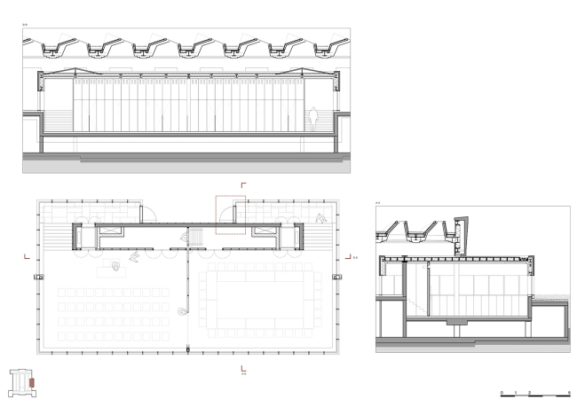
Надстройку, искажавшую пропорции внутреннего двора, разобрали вместе с резавшими его по вертикали конструкциями. Высота атриума сократилась на треть. На месте громоздких пристроек по бокам от здания появились просторные фойе и вновь разбиты сады. Созданы пространства для взаимодействия, востребованные сотрудниками и посетителями B30: фойе для семинаров включает в себя комнаты для совещаний и аудиторию, рабочее фойе – зоны для работы и отдыха, бар и библиотеку.
 
Административное здание B30 © Karin Borghouts
Административное здание B30 © Karin Borghouts

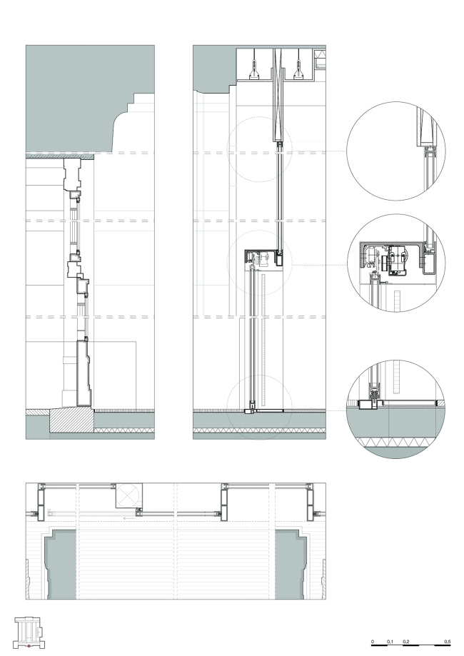
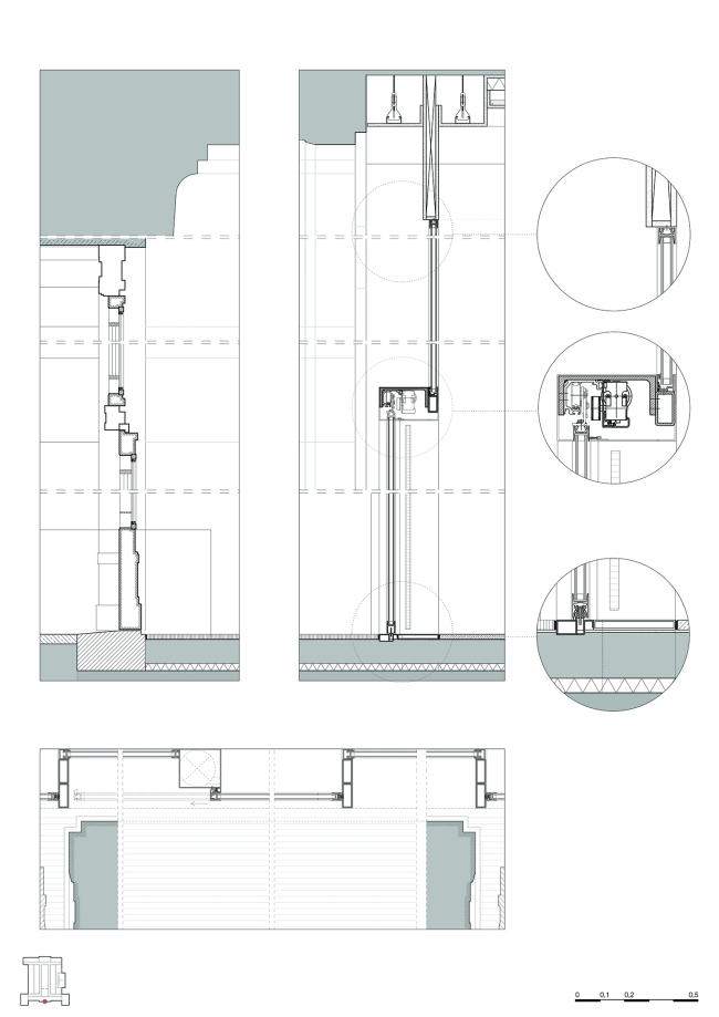
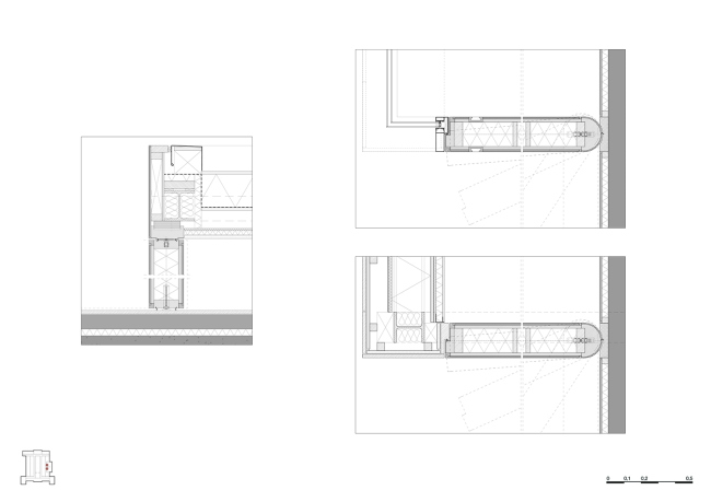
Визуальные связи и прозрачность усилены во всех горизонтальных направлениях. В боковых фойе – огромные поворотные окна в полированных алюминиевых оправах. На главном фасаде до цоколя расширены проёмы первых этажей. Этот ярус стал открытым для публики, при этом отреставрирована входная группа с парадной лестницей, ведущей к бывшему кабинету министра. Структура же боковых флигелей полностью пересмотрена: коридоры выстроили в прямую и понятную схему, упростилась навигация. В интерьерах доминирует белый цвет.
 
Административное здание B30 © Karin Borghouts
Административное здание B30 © Karin Borghouts

Потолки атриума и фойе решены в едином стиле. В них прорезаны световые фонари треугольной формы, наклон которых обеспечивает оптимальное освещение. Форма фонарей с квадратным основанием вторит историческим кессонам. На полу атриума художник Роб Бирза выложил мозаику – абстракцию сада, связывающую двор с боковыми садами и Гаагским лесом позади сооружения.
 
Административное здание B30 © Sebastian van Damme
Административное здание B30 © Sebastian van Damme

Реконструкция задумана правительственным агентством недвижимости и осуществлена крупным консорциумом, выбранным в результате международного конкурса. Здание отдали частному инвестору в управление на 30 лет по контракту жизненного цикла. Стоимость реконструкции составила 31 миллион евро. Общая площадь обновлённого комплекса – 21000 м2.
Административное здание B30 © Sebastian van Damme
Административное здание B30 © Sebastian van Damme
Административное здание B30 © Karin Borghouts
Административное здание B30 © Karin Borghouts
Административное здание B30 © Karin Borghouts
Административное здание B30 © Karin Borghouts
Административное здание B30 © Karin Borghouts
Административное здание B30 © Karin Borghouts
Административное здание B30 © Sebastian van Damme
Административное здание B30 © Sebastian van Damme
Административное здание B30 © Karin Borghouts
Административное здание B30 © Karin Borghouts
Административное здание B30 © Sebastian van Damme
Административное здание B30 © Sebastian van Damme
Административное здание B30 © Karin Borghouts
Административное здание B30 © Karin Borghouts
Административное здание B30 © Karin Borghouts
Административное здание B30 © Karin Borghouts
Административное здание B30 © Karin Borghouts
Административное здание B30 © Karin Borghouts
Административное здание B30 © Karin Borghouts
Административное здание B30 © Karin Borghouts
Административное здание B30 © Karin Borghouts
Административное здание B30 © Karin Borghouts
Административное здание B30 © Karin Borghouts
Административное здание B30 © Karin Borghouts
Административное здание B30 © Sebastian van Damme
Административное здание B30 © Sebastian van Damme
Административное здание B30 © Sebastian van Damme
Административное здание B30 © Sebastian van Damme
Административное здание B30 © Karin Borghouts
Административное здание B30 © Karin Borghouts
Административное здание B30 © Karin Borghouts
Административное здание B30 © Karin Borghouts
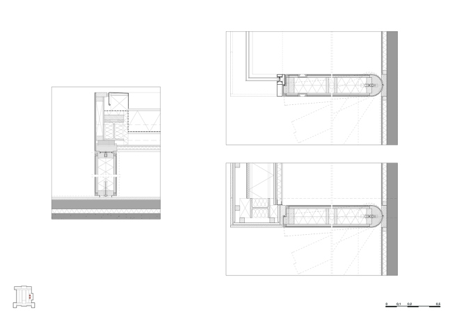
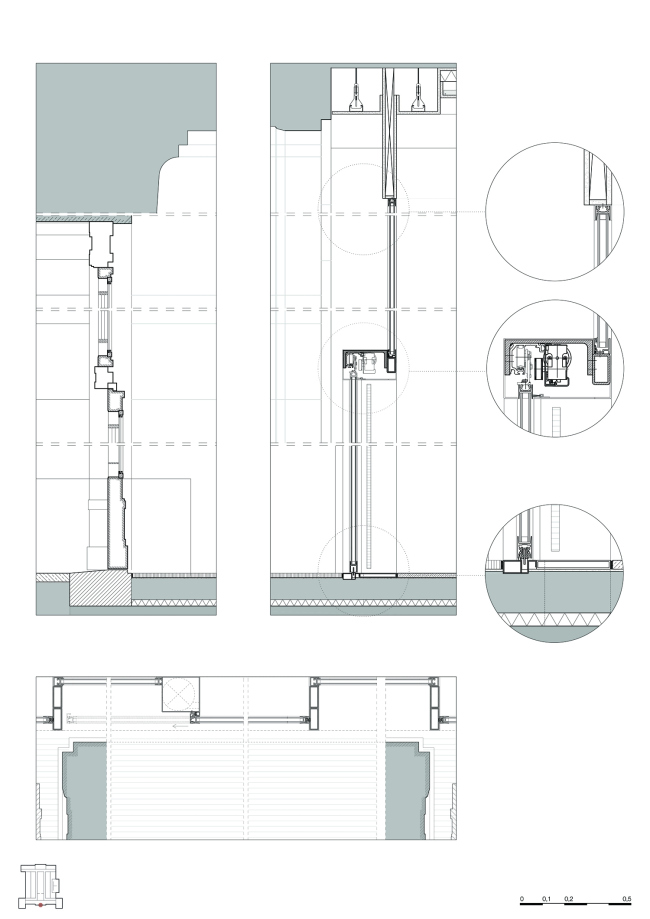
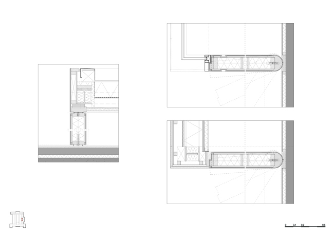
Административное здание B30 © KAAN Architecten
Административное здание B30 © KAAN Architecten
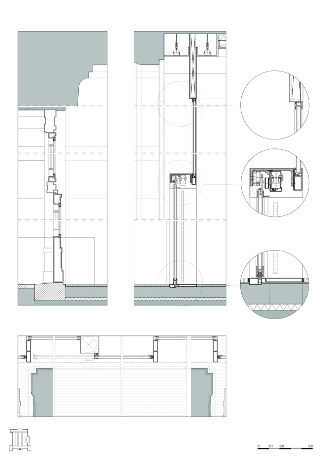
Административное здание B30 © KAAN Architecten
Административное здание B30 © KAAN Architecten
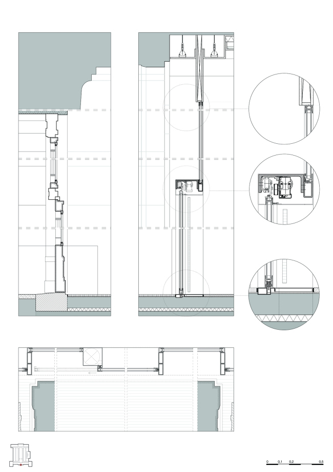
Административное здание B30 © KAAN Architecten
Административное здание B30 © KAAN Architecten
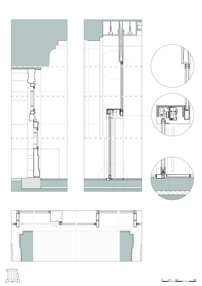
Административное здание B30 © KAAN Architecten
Административное здание B30 © KAAN Architecten
Административное здание B30 © KAAN Architecten
Административное здание B30 © KAAN Architecten
Административное здание B30 © KAAN Architecten
Административное здание B30 © KAAN Architecten
Административное здание B30 © KAAN Architecten
Административное здание B30 © KAAN Architecten
Административное здание B30 © KAAN Architecten
Административное здание B30 © KAAN Architecten
Административное здание B30 © KAAN Architecten
Административное здание B30 © KAAN Architecten
Административное здание B30 © KAAN Architecten
Административное здание B30 © KAAN Architecten
Административное здание B30 © KAAN Architecten
Административное здание B30 © KAAN Architecten
Административное здание B30 © KAAN Architecten
Административное здание B30 © KAAN Architecten
Административное здание B30 © KAAN Architecten
Административное здание B30 © KAAN Architecten
Административное здание B30 © KAAN Architecten
Административное здание B30 © KAAN Architecten
Административное здание B30 © KAAN Architecten
Административное здание B30 © KAAN Architecten
Административное здание B30 © KAAN Architecten
Административное здание B30 © KAAN Architecten
Административное здание B30 © KAAN Architecten
Административное здание B30 © KAAN Architecten