Размещено на портале Архи.ру (www.archi.ru)

17.08.2017

Видоискатель

Наталья Мурадова
Объект:
ЖК «Олимп»
Адрес:
Россия, Пенза. ул. Мира 74Б
Мастерская:
sp architect
Авторский коллектив:
Руководитель, гл. архитектор – Сергей Попрядухин
ГАП – Игорь Кудряшов

Главный сюжет 17-этажного жилого комплекса в Пензе – вид на лес, почти бескрайний.

ЖК «Олимп». Общий вид комплекса по ул. Окружная со стороны Арбеково © sp architect
ЖК «Олимп». Общий вид комплекса по ул. Окружная со стороны Арбеково © sp architect

ЖК комфорт-класса «Олимп» планируется построить на западной окраине Пензы, в конце улицы Мира рядом с Окружной улицей и обширным Арбековским лесом, на границе микрорайона Новая Западная поляна, который входит в район Западный холм – в отличие от севера и юга города, не промышленный, а зеленый, экологичный и по пензенским меркам элитный, но застроенный неплотно. Рядом, ближе к восточной, обращенной в городу границе того квартала, строится еще один 17-этажный жилой дом, другого застройщика.
ЖК «Олимп». Ситуационный план © sp architect
ЖК «Олимп». Ситуационный план © sp architect

Комплекс «Олимп» состоит из пяти 17-этажных башен, расставленных на расстоянии 23-25 м друг от друга на Г-образном стилобате, выстроенном по контуру двух улиц. Лаконичные параллелепипеды башен планируется облицевать HPL-панелями двух контрастных цветов: темно-синего и светло-бежевого, почти белого. Светлым панелям отданы боковые фасады, где окон не очень много. Фасады, обращенные к Окружной улице и лесу за ней, наоборот, почти полностью заняты окнами и панорамными витражами лоджий, открывающими виды на лес. Стеклянный «фон» расчерчен рельефной сеткой светлых ребер, объединяющей по 4 этажа в лаконично-ортогональные вертикали.
ЖК «Олимп». Общий вид комплекса © sp architect
ЖК «Олимп». Общий вид комплекса © sp architect
ЖК «Олимп». Фасад 1-14 © sp architect
ЖК «Олимп». Фасад 1-14 © sp architect
ЖК «Олимп» © sp architect
ЖК «Олимп» © sp architect
ЖК «Олимп». Фасад И-А © sp architect
ЖК «Олимп». Фасад И-А © sp architect
ЖК «Олимп». Фасад А-И © sp architect
ЖК «Олимп». Фасад А-И © sp architect

Темно-синий цвет призван сливаться по тону со стеклом и визуально «отступать» в глубину: им облицованы межэтажные перемычки между окнами и горизонтальный фриз стилобата. Стилобат, вытянутый вдоль Окружной улицы, защищает двор от шума, и в то же время между башнями свободно проходит воздух со стороны леса и лучи закатного солнца. Двор, закрытый для машин в духе современных веяний, должен стать достаточно тихим и в то же время хорошо освещенным, поскольку он открыт с южной и восточной стороны. Во дворе, помимо благоустройства, предусмотрены разные неочевидные мелочи, к примеру площадки для сушки белья и чистки вещей. В первых этажах запланированы помещения для хранения колясок и велосипедов, а в северной части подвального этажа вдоль улицы Мира размещены кладовки для всех жильцов дома.
ЖК «Олимп». Идеология проекта. Формообразование © sp architect
ЖК «Олимп». Идеология проекта. Формообразование © sp architect
ЖК «Олимп». Идеология проекта. Инсоляция и затенение © sp architect
ЖК «Олимп». Идеология проекта. Инсоляция и затенение © sp architect
ЖК «Олимп». Идеология проекта. Контекст © sp architect
ЖК «Олимп». Идеология проекта. Контекст © sp architect
ЖК «Олимп». Общий вид арендных помещений 1 этажа © sp architect
ЖК «Олимп». Общий вид арендных помещений 1 этажа © sp architect
ЖК «Олимп». Благоустройство © sp architect
ЖК «Олимп». Благоустройство © sp architect
ЖК «Олимп». Общий вид двора © sp architect
ЖК «Олимп». Общий вид двора © sp architect
ЖК «Олимп». Общий вид на благоустройство двора © sp architect
ЖК «Олимп». Общий вид на благоустройство двора © sp architect
ЖК «Олимп». Общий вид двора © sp architect
ЖК «Олимп». Общий вид двора © sp architect

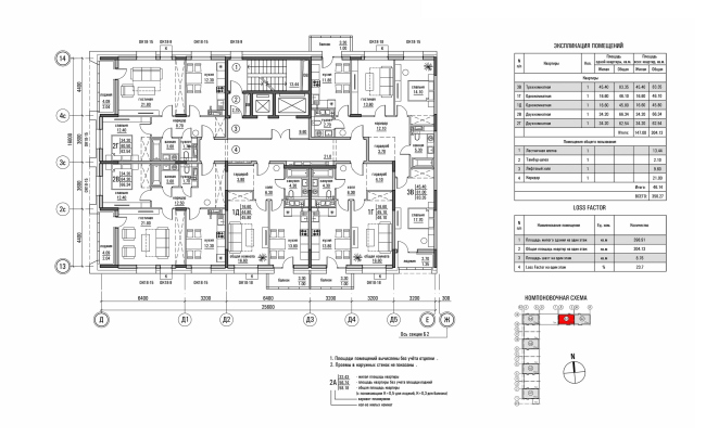
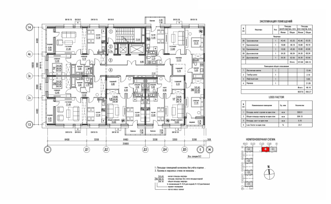
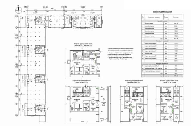
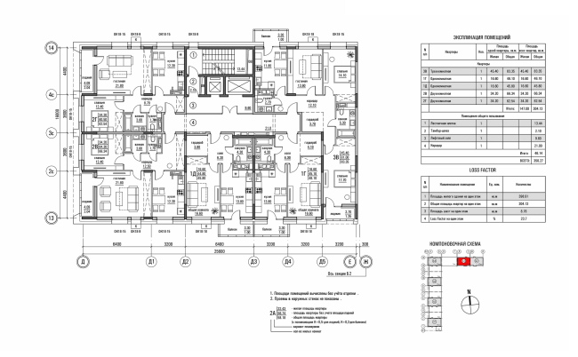
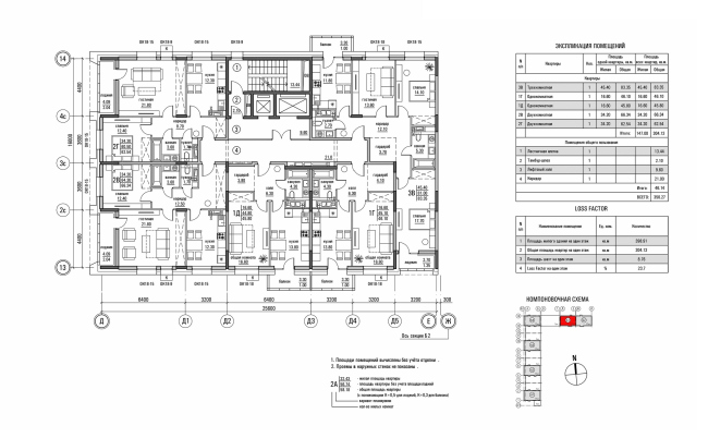
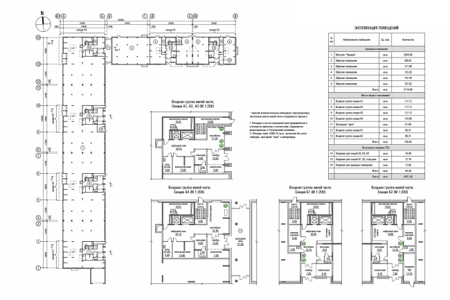
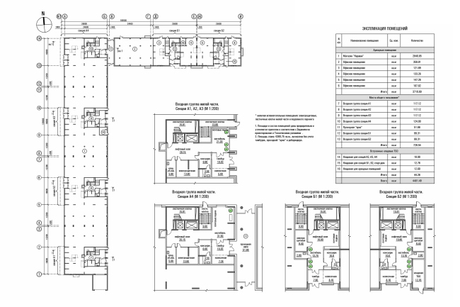
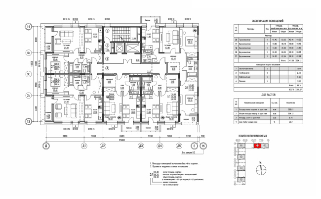
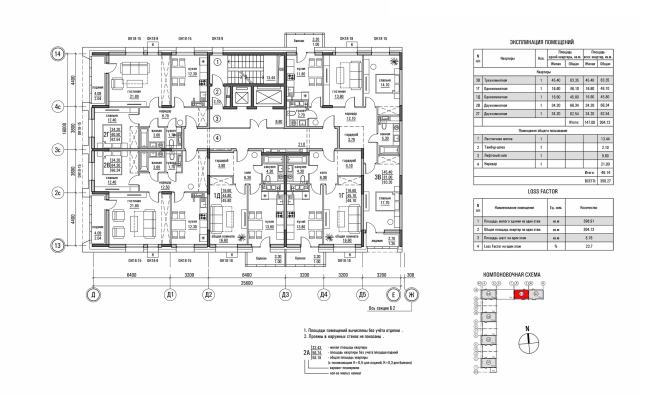
В ЖК предусмотрен 1 ярус подземной парковки на 85 машин. Квартиры – небольшие от однокомнатных с жилой площадью 16,6 м2, но при этом с достаточно просторной кухней-столовой и отдельной гардеробной, до трехкомнатных – с жилой площадью 45 м2. В стилобате расположится супермаркет площадью около 3000 м2 и офисы.

Девелопер, строительная группа «Рисан», считает этот проект флагманским. Лаконичная архитектура призвана, с одной стороны, скрасить немалый масштаб застройки, с другой – подчеркнуть и использовать в интересах будущих жителей достоинства расположения, с чем она, в целом, справляется. Дом – порождение большого промышленного города – отворачивается от него и смотрит в лес, превращаясь в объемную рамку-cadre для созерцания далей.
ЖК «Олимп». Общий вид входа в подъезд секции А4 © sp architect
ЖК «Олимп». Общий вид входа в подъезд секции А4 © sp architect
ЖК «Олимп». Общий вид входа в подъезд секции А4 © sp architect
ЖК «Олимп». Общий вид входа в подъезд секции А4 © sp architect
ЖК «Олимп». Общий вид входа в подъезд секции Б1 © sp architect
ЖК «Олимп». Общий вид входа в подъезд секции Б1 © sp architect
ЖК «Олимп». Общий вид входа в подъезд секций А1, А2, А3 © sp architect
ЖК «Олимп». Общий вид входа в подъезд секций А1, А2, А3 © sp architect
ЖК «Олимп». Междуэтажная лестница. Общеквартирные коридоры © sp architect
ЖК «Олимп». Междуэтажная лестница. Общеквартирные коридоры © sp architect
ЖК «Олимп». Разрез 1-1 © sp architect
ЖК «Олимп». Разрез 1-1 © sp architect
ЖК «Олимп». План подвала © sp architect
ЖК «Олимп». План подвала © sp architect
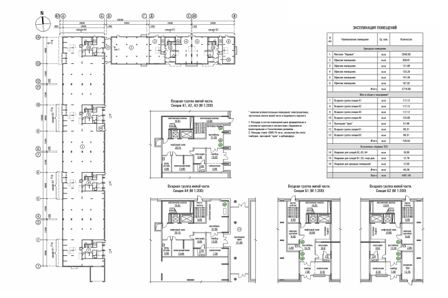
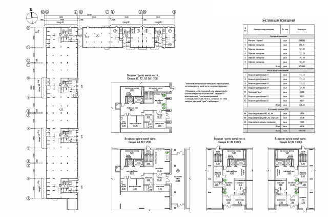
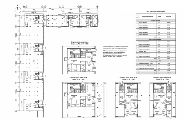
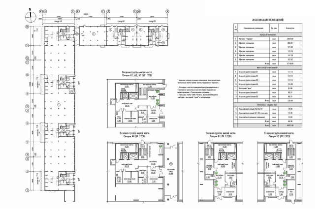
ЖК «Олимп». План 1 этажа © sp architect
ЖК «Олимп». План 1 этажа © sp architect
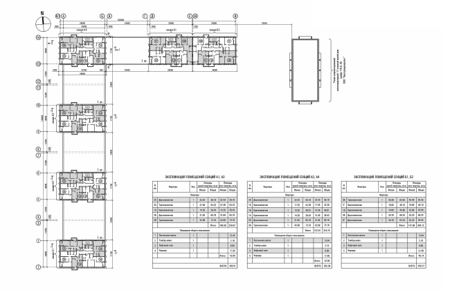
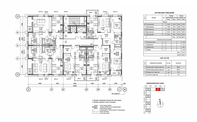
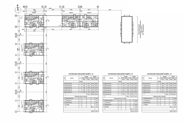
ЖК «Олимп». План типового этажа © sp architect
ЖК «Олимп». План типового этажа © sp architect
ЖК «Олимп». Схема генерального плана © sp architect
ЖК «Олимп». Схема генерального плана © sp architect
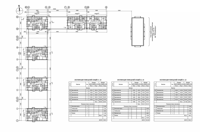
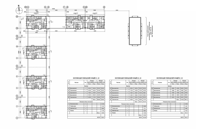
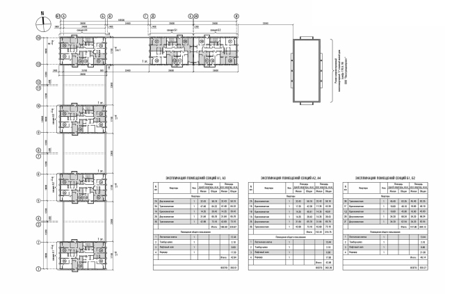
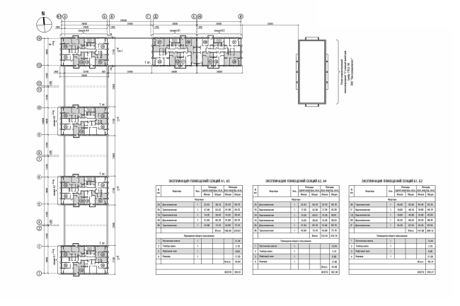
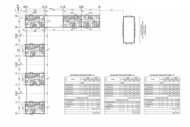
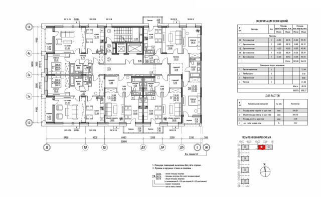
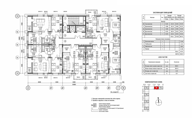
ЖК «Олимп». План типового этажа секций А1, А3 © sp architect
ЖК «Олимп». План типового этажа секций А1, А3 © sp architect
ЖК «Олимп». План типового этажа секции Б1 © sp architect
ЖК «Олимп». План типового этажа секции Б1 © sp architect
ЖК «Олимп». Эскиз. Принцип размещения пилонов в жилой секции © sp architect
ЖК «Олимп». Эскиз. Принцип размещения пилонов в жилой секции © sp architect
ЖК «Олимп». Эскиз. Варианты визуального объединения этажей © sp architect
ЖК «Олимп». Эскиз. Варианты визуального объединения этажей © sp architect
ЖК «Олимп». Эскиз. Благоустройство © sp architect
ЖК «Олимп». Эскиз. Благоустройство © sp architect