Размещено на портале Архи.ру (www.archi.ru)

26.07.2017

Возвращение соломенной крыши

Нина Фролова
Объект:
Посетительский центр Ваттового моря
Адрес:
Дания, None, Рибе.

Посетительский центр национального парка «Ваттовое море» в Дании по проекту бюро Дорте Мандруп.

Посетительский центр Ваттового моря © Adam Mørk
Посетительский центр Ваттового моря © Adam Mørk

Посетительский центр построен в городке Рибе на побережье датской зоны Ваттового моря – уникальной приливной экосистемы, окружающей также части Нидерландов и Германии. Море в целом имеет статус памятника ЮНЕСКО, а в Дании – национального парка. На мелях Ваттового моря можно найти 10 000 видов растений и животных, там останавливаются разнообразные перелетные птицы – порядка 15 млн особей каждую весну или осень.
 
Посетительский центр Ваттового моря © Adam Mørk
Посетительский центр Ваттового моря © Adam Mørk

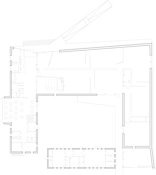
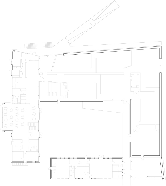
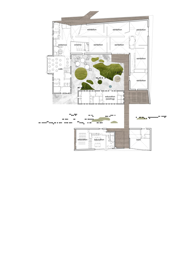
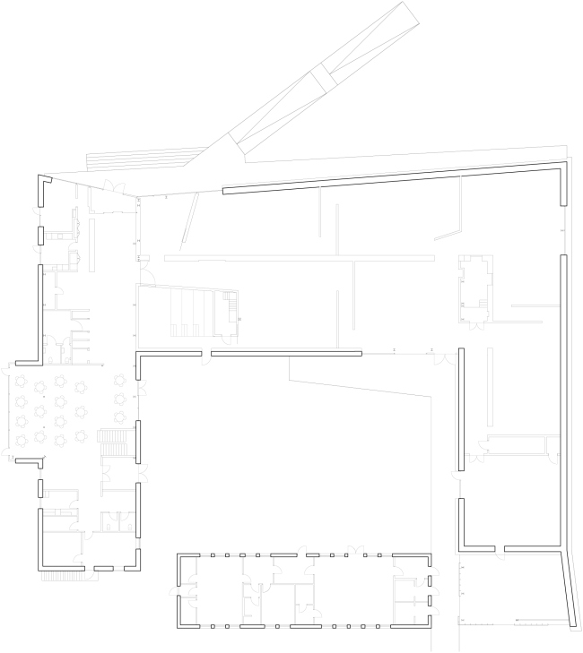
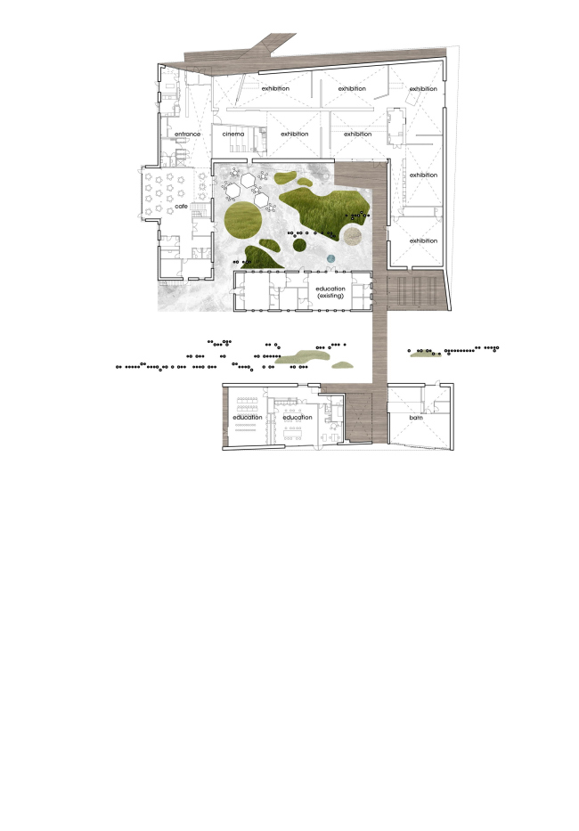
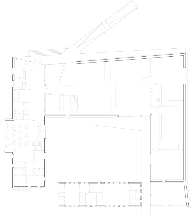
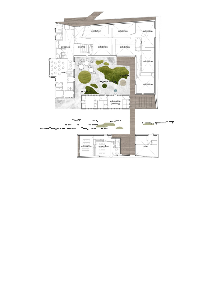
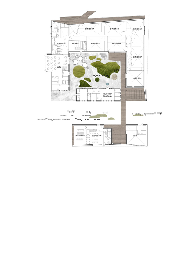
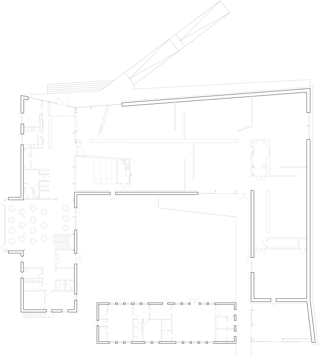
Для успешной просветительской работы с туристами существовавшее в парке здание было перестроено и расширено по проекту Dorte Mandrup A/S, превратившись в посетительский центр. Архитекторы выбрали для постройки традиционный для этих мест матерал – солому. Ей покрыты кровля и часть фасада, причем материал получен с поля неподалеку, и потому изначально был напитан солью из морского воздуха – как было еще во времена викингов. Музей водрузили на платформу, что делали и в средние века. Четыре крыла здания создают защищенный от ветра внутренний двор – это тоже характерно для запада Дании.
 
Посетительский центр Ваттового моря © Adam Mørk
Посетительский центр Ваттового моря © Adam Mørk

Чтобы связать интерьер с окружением, а выставку внутри здания – с экспозицией снаружи, были использованы панорамные окна. В здании также размещены кафе, образовательные помещения, инфоцентр.
Посетительский центр Ваттового моря © Adam Mørk
Посетительский центр Ваттового моря © Adam Mørk
Посетительский центр Ваттового моря © Adam Mørk
Посетительский центр Ваттового моря © Adam Mørk
Посетительский центр Ваттового моря © Adam Mørk
Посетительский центр Ваттового моря © Adam Mørk
Посетительский центр Ваттового моря © Adam Mørk
Посетительский центр Ваттового моря © Adam Mørk
Посетительский центр Ваттового моря © Adam Mørk
Посетительский центр Ваттового моря © Adam Mørk
Посетительский центр Ваттового моря © Adam Mørk
Посетительский центр Ваттового моря © Adam Mørk
Посетительский центр Ваттового моря © Adam Mørk
Посетительский центр Ваттового моря © Adam Mørk
Посетительский центр Ваттового моря © Adam Mørk
Посетительский центр Ваттового моря © Adam Mørk
Посетительский центр Ваттового моря © Adam Mørk
Посетительский центр Ваттового моря © Adam Mørk
Посетительский центр Ваттового моря © Dorte Mandrup A/S
Посетительский центр Ваттового моря © Dorte Mandrup A/S
Посетительский центр Ваттового моря © Dorte Mandrup A/S
Посетительский центр Ваттового моря © Dorte Mandrup A/S
Посетительский центр Ваттового моря © Dorte Mandrup A/S
Посетительский центр Ваттового моря © Dorte Mandrup A/S
Посетительский центр Ваттового моря © Dorte Mandrup A/S
Посетительский центр Ваттового моря © Dorte Mandrup A/S
Посетительский центр Ваттового моря © Dorte Mandrup A/S
Посетительский центр Ваттового моря © Dorte Mandrup A/S
Посетительский центр Ваттового моря © Dorte Mandrup A/S
Посетительский центр Ваттового моря © Dorte Mandrup A/S
Посетительский центр Ваттового моря © Dorte Mandrup A/S
Посетительский центр Ваттового моря © Dorte Mandrup A/S
Посетительский центр Ваттового моря © Dorte Mandrup A/S
Посетительский центр Ваттового моря © Dorte Mandrup A/S
Посетительский центр Ваттового моря © Dorte Mandrup A/S
Посетительский центр Ваттового моря © Dorte Mandrup A/S
Посетительский центр Ваттового моря © Dorte Mandrup A/S
Посетительский центр Ваттового моря © Dorte Mandrup A/S