Размещено на портале Архи.ру (www.archi.ru)

13.07.2017

«Черный ящик» истории

Нина Фролова
Объект:
Выставочный зал доказательств преступлений японских захватчиков (Отряда 731)
Адрес:
Китай, None, Харбин.
Мастерская:
Архитектурный проектно-исследовательский институт Южнокитайского технологического университета

Выставочный зал доказательств преступлений японских захватчиков (Отряда 731) в Харбине по проекту Архитектурного проектно-исследовательского института Южнокитайского технологического университета.

Выставочный зал доказательств преступлений японских захватчиков (Отряда 731). Фото © Yao Li
Выставочный зал доказательств преступлений японских захватчиков (Отряда 731). Фото © Yao Li

Новое мемориальное здание расположено в районе Харбина Пинфан, в середине XX века бывшем самостоятельным городом – на месте базы Отряда 731. Это подразделение японской армии проводило эксперименты над людьми в целях создания бактериологического оружия, а также для исследования границ выносливости человека – реакций при вивисекции, на высокое атмосферное давление, переохлаждение, обезвоживание и т.д. В результате этих преступлений погибло несколько тысяч китайцев, русских, корейцев и т.д. При отступлении японской армии в 1945 база была взорвана, однако ее руины сохранились до наших дней, с 1982 там открыт музей. Сейчас комплекс дополнен новым выставочным залом.
 
Выставочный зал доказательств преступлений японских захватчиков (Отряда 731). Фото © Yao Li
Выставочный зал доказательств преступлений японских захватчиков (Отряда 731). Фото © Yao Li

Авторский коллектив под руководством Хэ Цзинтана выбрал для своего сооружения метафору «черного ящика», который зафиксировал историческую правду: как будто расколотый объем здания отражает воздействие на него внешних сил, как при авиакатастрофе. Чтобы не нарушать исторический ландшафт с руинами – в том числе трубами крематория, где сжигали жертв – новый музей утоплен в землю. Три его башни также кажутся откликом на многочисленные трубы фабрик Харбина, окружающих бывшую базу Отряда 731.
 
Выставочный зал доказательств преступлений японских захватчиков (Отряда 731). Фото © Yao Li
Выставочный зал доказательств преступлений японских захватчиков (Отряда 731). Фото © Yao Li

Жилая и промышленная застройка обступила этот участок, но архитекторы сочли этически невозможным ограничивать исторический комплекс стеной. Вместо этого от улицы его отделяет плаза ниже уровня земли, также роль буферной зоны играет новый парк. Земля в границах комплекса покрыта темно-серым гравием.
 
Выставочный зал доказательств преступлений японских захватчиков (Отряда 731). Фото © Yao Li
Выставочный зал доказательств преступлений японских захватчиков (Отряда 731). Фото © Yao Li

Несмотря на то, что по политическим причинам преступления Отряда 731 не были по-настоящему расследованы, и почти никто из его руководителей не понес наказания, архитекторы подчеркивают, что их проект максимально далек от «гневного» подхода. Напротив, они постарались взглянуть на происходившее там в 1935–1945 с позиции «человеческой цивилизации».
Выставочный зал доказательств преступлений японских захватчиков (Отряда 731). Фото © Yao Li
Выставочный зал доказательств преступлений японских захватчиков (Отряда 731). Фото © Yao Li
Выставочный зал доказательств преступлений японских захватчиков (Отряда 731). Фото © Yao Li
Выставочный зал доказательств преступлений японских захватчиков (Отряда 731). Фото © Yao Li
Выставочный зал доказательств преступлений японских захватчиков (Отряда 731). Фото © Yao Li
Выставочный зал доказательств преступлений японских захватчиков (Отряда 731). Фото © Yao Li
Выставочный зал доказательств преступлений японских захватчиков (Отряда 731). Фото © Yao Li
Выставочный зал доказательств преступлений японских захватчиков (Отряда 731). Фото © Yao Li
Выставочный зал доказательств преступлений японских захватчиков (Отряда 731). Фото © Yao Li
Выставочный зал доказательств преступлений японских захватчиков (Отряда 731). Фото © Yao Li
Выставочный зал доказательств преступлений японских захватчиков (Отряда 731). Фото © Yao Li
Выставочный зал доказательств преступлений японских захватчиков (Отряда 731). Фото © Yao Li
Выставочный зал доказательств преступлений японских захватчиков (Отряда 731). Фото © Yao Li
Выставочный зал доказательств преступлений японских захватчиков (Отряда 731). Фото © Yao Li
Выставочный зал доказательств преступлений японских захватчиков (Отряда 731). Вид от руин корпусов Отряда 731. Фото © Yao Li
Выставочный зал доказательств преступлений японских захватчиков (Отряда 731). Вид от руин корпусов Отряда 731. Фото © Yao Li
Выставочный зал доказательств преступлений японских захватчиков (Отряда 731). Фото © Yao Li
Выставочный зал доказательств преступлений японских захватчиков (Отряда 731). Фото © Yao Li
Выставочный зал доказательств преступлений японских захватчиков (Отряда 731). Вид от руин корпусов Отряда 731. Фото © Yao Li
Выставочный зал доказательств преступлений японских захватчиков (Отряда 731). Вид от руин корпусов Отряда 731. Фото © Yao Li
Выставочный зал доказательств преступлений японских захватчиков (Отряда 731). Фото © Yao Li
Выставочный зал доказательств преступлений японских захватчиков (Отряда 731). Фото © Yao Li
Выставочный зал доказательств преступлений японских захватчиков (Отряда 731). Фото © Yao Li
Выставочный зал доказательств преступлений японских захватчиков (Отряда 731). Фото © Yao Li
Выставочный зал доказательств преступлений японских захватчиков (Отряда 731). Фото © Yao Li
Выставочный зал доказательств преступлений японских захватчиков (Отряда 731). Фото © Yao Li
Выставочный зал доказательств преступлений японских захватчиков (Отряда 731). Фото © Yao Li
Выставочный зал доказательств преступлений японских захватчиков (Отряда 731). Фото © Yao Li
Выставочный зал доказательств преступлений японских захватчиков (Отряда 731). Фото © Yao Li
Выставочный зал доказательств преступлений японских захватчиков (Отряда 731). Фото © Yao Li
Выставочный зал доказательств преступлений японских захватчиков (Отряда 731). Фото © Yao Li
Выставочный зал доказательств преступлений японских захватчиков (Отряда 731). Фото © Yao Li
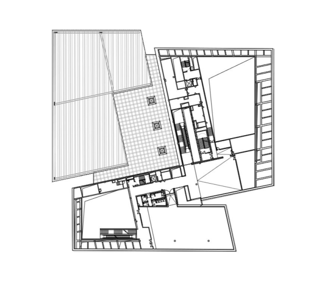
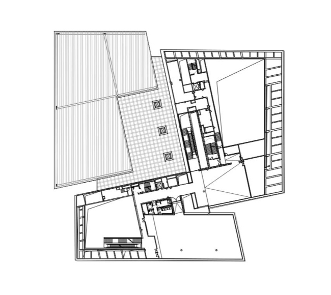
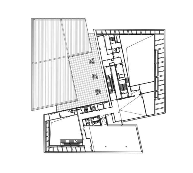
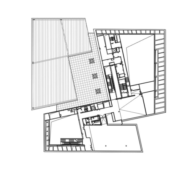
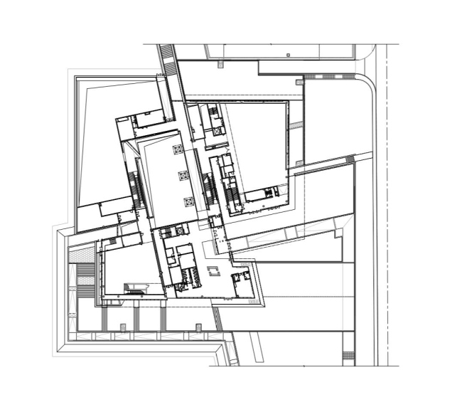
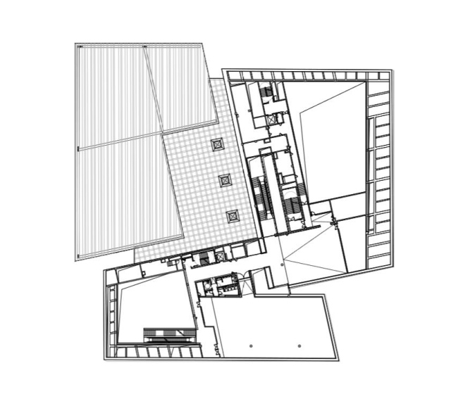
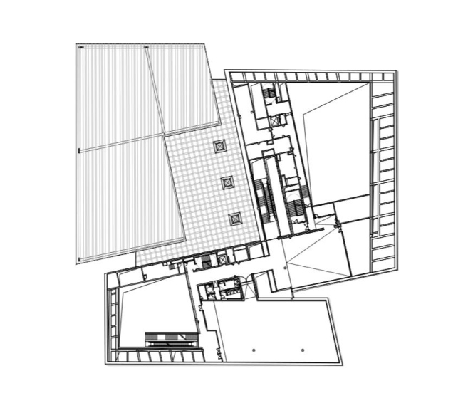
Выставочный зал доказательств преступлений японских захватчиков (Отряда 731) © Architectural Design & Research Institute of South China University of Technology
Выставочный зал доказательств преступлений японских захватчиков (Отряда 731) © Architectural Design & Research Institute of South China University of Technology
Выставочный зал доказательств преступлений японских захватчиков (Отряда 731) © Architectural Design & Research Institute of South China University of Technology
Выставочный зал доказательств преступлений японских захватчиков (Отряда 731) © Architectural Design & Research Institute of South China University of Technology
Выставочный зал доказательств преступлений японских захватчиков (Отряда 731) © Architectural Design & Research Institute of South China University of Technology
Выставочный зал доказательств преступлений японских захватчиков (Отряда 731) © Architectural Design & Research Institute of South China University of Technology
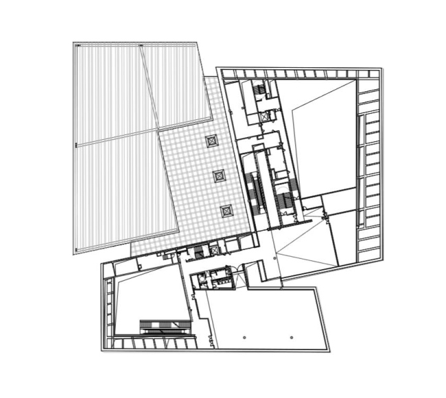
Выставочный зал доказательств преступлений японских захватчиков (Отряда 731) © Architectural Design & Research Institute of South China University of Technology
Выставочный зал доказательств преступлений японских захватчиков (Отряда 731) © Architectural Design & Research Institute of South China University of Technology
Выставочный зал доказательств преступлений японских захватчиков (Отряда 731) © Architectural Design & Research Institute of South China University of Technology
Выставочный зал доказательств преступлений японских захватчиков (Отряда 731) © Architectural Design & Research Institute of South China University of Technology
Выставочный зал доказательств преступлений японских захватчиков (Отряда 731) © Architectural Design & Research Institute of South China University of Technology
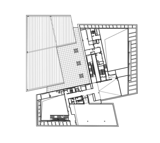
Выставочный зал доказательств преступлений японских захватчиков (Отряда 731) © Architectural Design & Research Institute of South China University of Technology
Выставочный зал доказательств преступлений японских захватчиков (Отряда 731) © Architectural Design & Research Institute of South China University of Technology
Выставочный зал доказательств преступлений японских захватчиков (Отряда 731) © Architectural Design & Research Institute of South China University of Technology
Выставочный зал доказательств преступлений японских захватчиков (Отряда 731) © Architectural Design & Research Institute of South China University of Technology
Выставочный зал доказательств преступлений японских захватчиков (Отряда 731) © Architectural Design & Research Institute of South China University of Technology
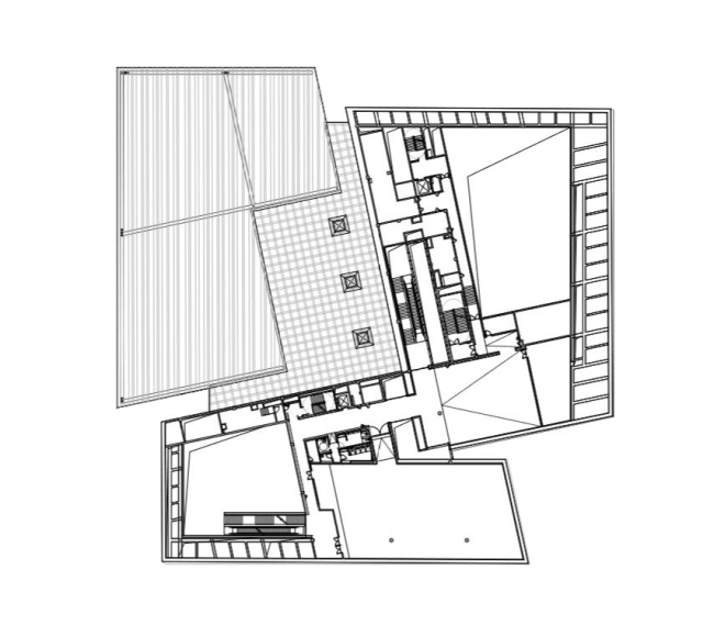
Выставочный зал доказательств преступлений японских захватчиков (Отряда 731). Эскизы Хэ Цзинтана © Architectural Design & Research Institute of South China University of Technology
Выставочный зал доказательств преступлений японских захватчиков (Отряда 731). Эскизы Хэ Цзинтана © Architectural Design & Research Institute of South China University of Technology