Размещено на портале Архи.ру (www.archi.ru)

12.07.2017

«Трансформатор»

Наталья Мурадова

Лучшие проекты магистратуры МАРШ студии Александра Бродского и Надежды Корбут «Трансформатор, или Марсельский суп».

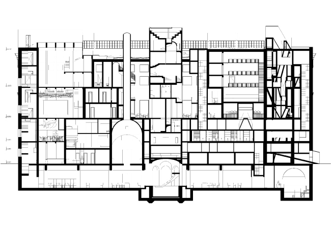
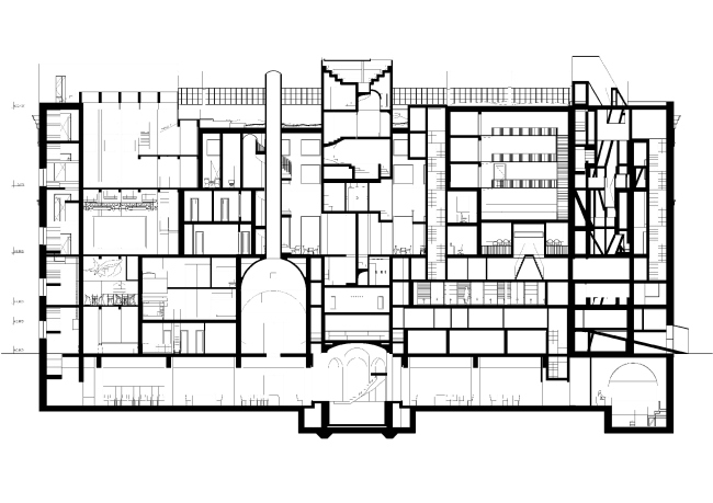
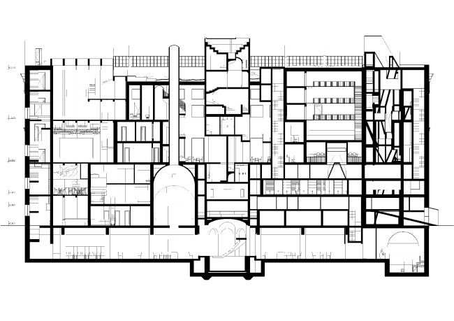
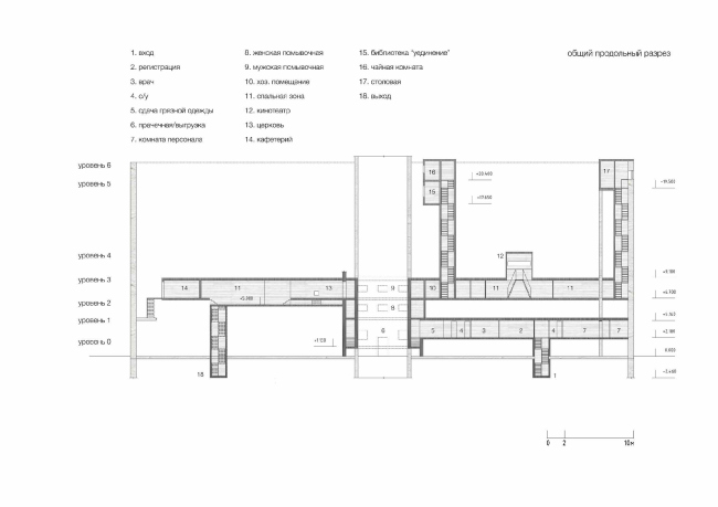
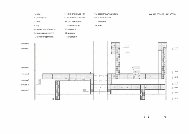
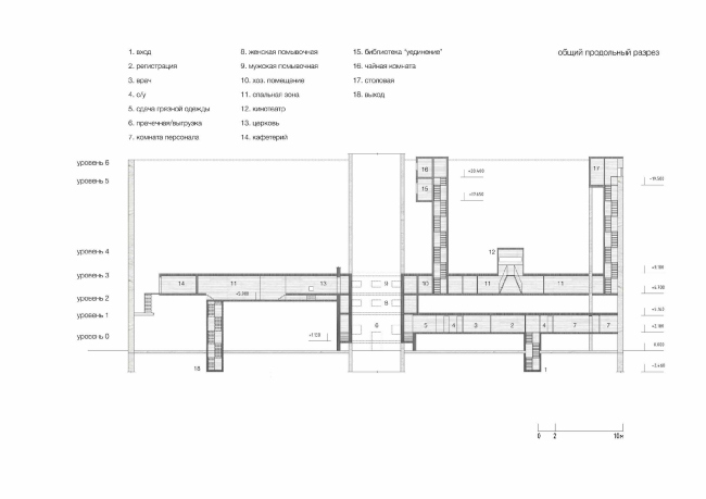
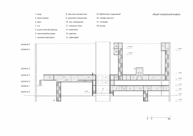
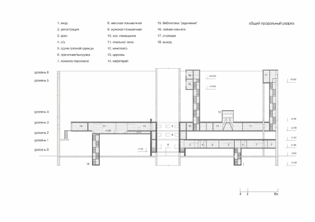
Проект «Трансформатор». Студия Александра Бродского. МАРШ, 2017
Проект «Трансформатор». Студия Александра Бродского. МАРШ, 2017

Что делать со зданием, которое было построено для определенной технической надобности и утратило свой смысл, а его структура не поддается трансформации для обычных функций?
Студия Александра Бродского и Надежды Корбут предложила студентам принять участие в преображении одного московского здания, бывшей трансформаторной подстанции 1950-х годов. Для него искали не только новые функции, но и смыслы, учились «вызывать чувства в людях при помощи строительных материалов», поскольку, как говорилось в программе студии, «архитектура – это искусство реальных вещей и невещественных переживаний».
Проект «Трансформатор». Студия Александра Бродского. МАРШ, 2017
Проект «Трансформатор». Студия Александра Бродского. МАРШ, 2017
Проект «Трансформатор». Студия Александра Бродского. МАРШ, 2017
Проект «Трансформатор». Студия Александра Бродского. МАРШ, 2017


Александр Бродский,
руководитель студии «Трансформатор, или Марсельский суп»

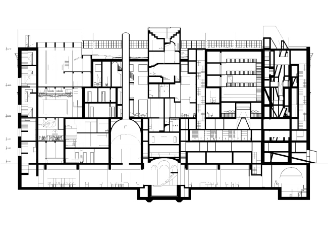
«Проект посвящен старой трансформаторной подстанции, которая расположена на «Красном Октябре». Она перестала быть нужной, ее отключили и приговорили к сносу. Дом огромный, очень красивый, его снесут где-то в конце осени, я думаю. Наш проект – своего рода дань памяти и уважения такому шикарному зданию.

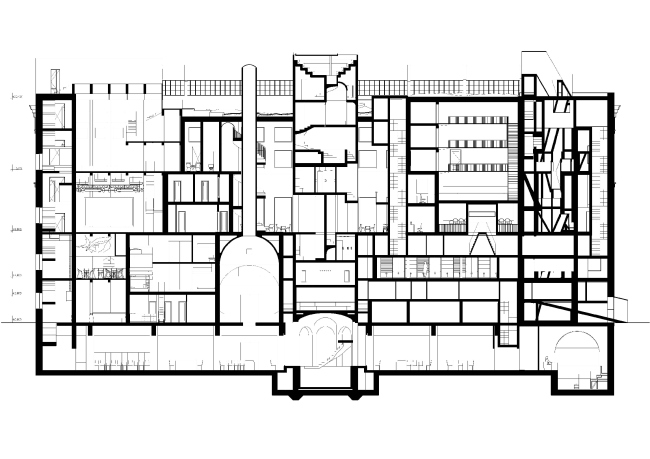
Мы решили поделить его спонтанно на 13 частей, потому что у нас 13 студентов. Мы их туда запустили зимой, в темноте. Они там все облазили, исследовали все лабиринты, составили план, поделили между собой, и каждый придумал своей части какую-то функцию. Там есть тюрьма, казино и церковь, баня, молочная ферма, парламент – в общем, тринадцать самых разных вещей. У них получился маленький город. Мы вдохновлялись зданиями, вроде дворца Диоклетиана в Сплите и античными амфитеатрами, занятыми средневековыми городами, как Арль. Вот что-то подобное вышло и у них.

Сложность была, в основном, в том, что студенты должны были очень плотно работать коллективно: заполнить все пространство, определить границы каждого и создать пути сообщения – возник сложнейший организм».

ролик, сделанный студентами студии Бродского:


Проект «Трансформатор». Студия Александра Бродского. МАРШ, 2017
Проект «Трансформатор». Студия Александра Бродского. МАРШ, 2017
Проект «Трансформатор». Студия Александра Бродского. МАРШ, 2017
Проект «Трансформатор». Студия Александра Бродского. МАРШ, 2017
Проект «Трансформатор». Студия Александра Бродского. МАРШ, 2017
Проект «Трансформатор». Студия Александра Бродского. МАРШ, 2017
***

Подъезд
Александра Полидовец
Курсовой проект Александры Полидовец. Студия Александра Бродского. МАРШ, 2017
Курсовой проект Александры Полидовец. Студия Александра Бродского. МАРШ, 2017

«Через осмысление того, что я почувствовала и увидела, я сформулировала для себя тайну трансформатора, на основании которой строилась моя дальнейшая работа над проектом. Во-первых, Трансформатор – это место для жизни, во-вторых, он хранит в себе следы повседневности, в-третьих, это место, где всё смешалось.

Подобно тому, как в марсельском супе сочетаются множество ингредиентов, так и тринадцать разных функций помещаются в одном объёме трансформатора, а тринадцать разных квартир – в одном подъезде. Здесь встречаются разные типологии жилья: от коммунальной квартиры для фермеров и бездомных до крошечного домика мастера на крыше».
Курсовой проект Александры Полидовец. Студия Александра Бродского. МАРШ, 2017
Курсовой проект Александры Полидовец. Студия Александра Бродского. МАРШ, 2017
Курсовой проект Александры Полидовец. Студия  Александра Бродского. МАРШ, 2017
Курсовой проект Александры Полидовец. Студия Александра Бродского. МАРШ, 2017
Курсовой проект Александры Полидовец. Студия Александра Бродского. МАРШ, 2017
Курсовой проект Александры Полидовец. Студия Александра Бродского. МАРШ, 2017
Курсовой проект Александры Полидовец. Студия  Александра Бродского. МАРШ, 2017
Курсовой проект Александры Полидовец. Студия Александра Бродского. МАРШ, 2017
Курсовой проект Александры Полидовец. Студия  Александра Бродского. МАРШ, 2017
Курсовой проект Александры Полидовец. Студия Александра Бродского. МАРШ, 2017
Курсовой проект Александры Полидовец. Студия  Александра Бродского. МАРШ, 2017
Курсовой проект Александры Полидовец. Студия Александра Бродского. МАРШ, 2017
Курсовой проект Александры Полидовец. Студия Александра Бродского. МАРШ, 2017
Курсовой проект Александры Полидовец. Студия Александра Бродского. МАРШ, 2017
Курсовой проект Александры Полидовец. Студия  Александра Бродского. МАРШ, 2017
Курсовой проект Александры Полидовец. Студия Александра Бродского. МАРШ, 2017
Курсовой проект Александры Полидовец. Студия Александра Бродского. МАРШ, 2017
Курсовой проект Александры Полидовец. Студия Александра Бродского. МАРШ, 2017
Курсовой проект Александры Полидовец. Студия Александра Бродского. МАРШ, 2017
Курсовой проект Александры Полидовец. Студия Александра Бродского. МАРШ, 2017
Курсовой проект Александры Полидовец. Студия Александра Бродского. МАРШ, 2017
Курсовой проект Александры Полидовец. Студия Александра Бродского. МАРШ, 2017
***

Молочная ферма
Александр Белозерцев
Курсовой проект Александра Белозерцева. Студия Александра Бродского. МАРШ, 2017
Курсовой проект Александра Белозерцева. Студия Александра Бродского. МАРШ, 2017

«Здание стало ненужным из-за того, что не сумело вписаться в переход от индустриальной к постиндустриальной парадигме развития территории. Поскольку постиндустриальные функции оказались с ним несовместимы, то его наполнение было определено как доиндустриальное.

Это отразилось как в идее использования доиндустриальных конструктивных решений, так и в целом – в отказе от индустриальной горизонтальной схемы организации пространства молочной фермы и в переходе к более традиционному, пусть и видоизмененному, принципу вертикального функционирования.

Пространство для работы людей пересекается с пространством для жизни животных, а все уровни связаны системой пандусов. Уклоны пандусов меняются в соответствии с расположением различных животных: коров – на первом этаже, овец – на средних уровнях и коз – на верхних. Таким образом можно ограничить проникновение животных на смежные уровни: выгул коров осуществляется на улице, а коз – на кровле».
Курсовой проект Александра Белозерцева. Студия Александра Бродского. МАРШ, 2017
Курсовой проект Александра Белозерцева. Студия Александра Бродского. МАРШ, 2017
Курсовой проект Александра Белозерцева. Студия Александра Бродского. МАРШ, 2017
Курсовой проект Александра Белозерцева. Студия Александра Бродского. МАРШ, 2017
Курсовой проект Александра Белозерцева. Студия Александра Бродского. МАРШ, 2017
Курсовой проект Александра Белозерцева. Студия Александра Бродского. МАРШ, 2017
Курсовой проект Александра Белозерцева. Студия Александра Бродского. МАРШ, 2017
Курсовой проект Александра Белозерцева. Студия Александра Бродского. МАРШ, 2017
Курсовой проект Александра Белозерцева. Студия Александра Бродского. МАРШ, 2017
Курсовой проект Александра Белозерцева. Студия Александра Бродского. МАРШ, 2017
Курсовой проект Александра Белозерцева. Студия  Александра Бродского. МАРШ, 2017
Курсовой проект Александра Белозерцева. Студия Александра Бродского. МАРШ, 2017
Курсовой проект Александра Белозерцева. Студия Александра Бродского. МАРШ, 2017
Курсовой проект Александра Белозерцева. Студия Александра Бродского. МАРШ, 2017
Курсовой проект Александра Белозерцева. Студия  Александра Бродского. МАРШ, 2017
Курсовой проект Александра Белозерцева. Студия Александра Бродского. МАРШ, 2017
***

Библиотека
Екатерина Ициксон
Курсовой проект Екатерины Ициксон. Студия Александра Бродского. МАРШ, 2017
Курсовой проект Екатерины Ициксон. Студия Александра Бродского. МАРШ, 2017

«Интеллектуальным центром Транформатора является библиотека, «наполненная драгоценными томами, бесполезная, нетленная, таинственная (Борхес)». Подобно книгам, читатели сидят в деревянных шкафах в читальном зале. Навеянная творчеством Александра Бродского, библиотека подчеркнуто несовременна: в ней время остановилось, как оно остановилось и для всего здания, здесь остров стабильности и тишины в бушующем мире мегаполиса».
Курсовой проект Екатерины Ициксон. Студия Александра Бродского. МАРШ, 2017
Курсовой проект Екатерины Ициксон. Студия Александра Бродского. МАРШ, 2017
Курсовой проект Екатерины Ициксон. Студия Александра Бродского. МАРШ, 2017
Курсовой проект Екатерины Ициксон. Студия Александра Бродского. МАРШ, 2017
Курсовой проект Екатерины Ициксон. Студия Александра Бродского. МАРШ, 2017
Курсовой проект Екатерины Ициксон. Студия Александра Бродского. МАРШ, 2017
Курсовой проект Екатерины Ициксон. Студия Александра Бродского. МАРШ, 2017
Курсовой проект Екатерины Ициксон. Студия Александра Бродского. МАРШ, 2017
***

Дом для бездомных
Петр Корнишин
Курсовой проект Петра Корнишина. Студия Александра Бродского. МАРШ, 2017
Курсовой проект Петра Корнишина. Студия Александра Бродского. МАРШ, 2017

«Первый образ будущей функции возник после зарисовки «тайного места» – пространства, которое пронизывает все здание, но при этом остается незамеченным. Это место – вентиляционная шахта с габаритами, позволяющими находится в ней человеку.

Мне захотелось создать целую «паутину» тайной системы тоннелей, пронизывающей все здание. Но нужно было четко определить, зачем создавать такую архитектуру, кто будет ее «жителем» и почему это место должно быть скрытым.

Подобное пространство – его габариты и минимальные условия комфорта – обозначило особую социальную группу. Анализируя людей и их потребности, я определил, что жителями моего «города» могут стать бездомные. Проблема отсутствия необходимого количества мест для удовлетворения минимальных потребностей людей без жилья, проблема их интеграции в общество и восприятия их обществом задали вектор развития моего проекта. Бездомные люди получают свое собственное пространство внутри «живой» инфраструктуры, проходят путь социализации через Трансформатор, и, возможно, меняют свои жизненные принципы».
Курсовой проект Петра Корнишина. Студия Александра Бродского. МАРШ, 2017
Курсовой проект Петра Корнишина. Студия Александра Бродского. МАРШ, 2017
Курсовой проект Петра Корнишина. Студия Александра Бродского. МАРШ, 2017
Курсовой проект Петра Корнишина. Студия Александра Бродского. МАРШ, 2017
Курсовой проект Петра Корнишина. Студия Александра Бродского. МАРШ, 2017
Курсовой проект Петра Корнишина. Студия Александра Бродского. МАРШ, 2017
Курсовой проект Петра Корнишина. Студия Александра Бродского. МАРШ, 2017
Курсовой проект Петра Корнишина. Студия Александра Бродского. МАРШ, 2017
Курсовой проект Петра Корнишина. Студия Александра Бродского. МАРШ, 2017
Курсовой проект Петра Корнишина. Студия Александра Бродского. МАРШ, 2017
Проект «Трансформатор». Студия Александра Бродского. МАРШ, 2017
Проект «Трансформатор». Студия Александра Бродского. МАРШ, 2017
***