Размещено на портале Архи.ру (www.archi.ru)

15.09.2008

Ворота на другую сторону

Мария Фадеева
Объект:
Гостинично-деловой комплекс на Поклонной улице
Адрес:
Россия, Москва. Поклонная улица, 9
Архитектор:
Павел Андреев
Мастерская:
Архитектурная мастерская Павла Андреева
Авторский коллектив:
П.Ю. Андреев А.Н. Бутырин Е.О. Рутковский

Уже несколько лет как Кутузовский проспект наращивает свою высоту: «Эдельвейс», «Миракс-плаза», появляются котлованы для реализации концепции перекрытия киевской железной дороги. И хотя так и неясно, чем закончился конкурс на формирование проспекта высотным строительством, организованный Москомархитектурой еще в 2006 году, реально здесь уже все строится. В этом ряду оказывается и проект гостинично-делового комплекса на пересечении Поклонной улицы и улицы 1812 года, выполненный в мастерской Павла Андреева

вид со стороны бульвара 1812 года
вид со стороны бульвара 1812 года

Еще с тех времен, когда самыми высокими зданиями были церкви и их колокольни, москвичи привыкли, что подобные доминанты выделяют в городе конкретную «точку». Тогда как петербуржские архитекторы могли позволить себе – иногда, на Невском – подчинить храм линии проспекта, Москва, вплоть до сталинской, ориентировалась почти исключительно на доминанты – достаточно вспомнить «Дворец Советов»  и кольцо высоток. После войны, однако, даже высотки начали выстраиваться в ряды (проект Люсиновской улицы) и большие дома в столице стали строить проспектами. Сейчас Москва колеблется между желанием иметь доминанты и нежеланием иметь точечную застройку.

Проект башни в конце улицы 1812 года восходит еще к середине 1990-х и первый вариант был сделан архитектором Борисом Палуем. Это была внушительная башня – (рефрен бывшего тогда только в планах Сити) с золотым церковным шлемом, немного напоминающая церковь Георгия на Поклонной горе. Тогда строительство начали, но оно замерло на «нулевой» отметке, и до этого года, без малого 7 лет стояла законсервированной, сменив при этом трех заказчиков-застройщиков

Идея размещения здесь высотной доминанты осталась, а мастерской Андреева достались проблемы увязки заявленной в ИРД этажности и общей площади объекта с построенным пятиярусным подземным паркингом, несоответствующим ни планировочным нормативам, ни несущей способности выполненных конструкций.

За прошедшее время было проработано множество архитектурно-планировочных и конструктивных вариантов, находивших отражение в образно-композиционном решении. По сравнению с золотоголовым проектом 1990-х внешность высотки стала куда более современной и менее помпезной. Итоговый на данный момента вариант, по которому уже выполняются рабочие чертежи и идет стройка, представляет собой композицию из двух башен, соединенных на различных уровнях, включая верхние 5 этажей, или портала – башни с гигантским проемом посередине, это как посмотреть.

Всего здесь 32 этажа, а форма плана продиктована предельной несущей способностью основания  и конструкцией ранее выполненной подземной части, высота здания снижена с 200 м до 25 и приведена в соответствие с требованиями Москомархитектуры. Размеры здания в плане – 54х63 метра, делали объем нереально массивным и неэкономичным для коммерческого использования, что, в конечном итоге, и послужило основной причиной, определившей композиционное решение и наличие центрального проема.

По традиции первые два этажа стилобата отданы под общественные нужды (ресторан, столовая, филиал страховой компании и пр. мелкая торговля), выше, до 22 этажа – офисы, в верхней перемычке апартаменты. Туда поднимается отдельная от офисных группа панорамных лифтов, вместе с прочими расположенная снаружи на стенах проема между башнями. Башни соединены двух этажными (и более) пространственными конструкциями мостов – перемычек, в которых разместятся не только офисы, но и конференц-залы, а на их кровлях открытые «висячие» сады.

Архитектурный образ здания определяют стены светло бежевого гранита со строгими рядами окон и – стеклянно-металлические конструкции, озелененные висячими садами. Эти две составляющие обычно воспринимаются как противоречивые – первая отсылает к «сталинской» Кутузовке. Вторая – хайтековская – часть этот контекст взрывает. А точнее – раздвигает при помощи своих технических механизмов, как будто бы управляя некими винтами внутри. Еще точнее – создает архитектурными средствами образ такого раздвигания.

Как будто бы это продвинутая театральная декорация в процессе трансформации. Вот – она изображала высотку в духе сталинского ар-деко, прикрываясь щитами каменных пластин. Но спектакль подошел к концу – или к другому акту – кто-то нажал кнопку и механизм пришел в движение, раздвинул каменные пластины, выдвинул стеклянные крылья, обнажил железные фермы – и оказалось, что в процессе спектакля они поросли деревьями. Хочется заметить – а не длился ли этот спектакль десять лет, с 1990-х годов? Время достаточное, чтобы выросли деревья…

Тема движения, скрытого в шевелении архитектурных масс сейчас – одна из самых актуальных. Архитектурная мысль сегодня всячески пробуют на вкус динамику: современные объемы то взрывается, то наклоняется, то сворачиваются винтом, то разламываются, то раздвигаются – как будто бы готовя новый этап технической революции, после которой дома будут умные и подвижные, как большие роботы.

Эта тема механического движения – новая и, похоже, любимая у Андреева. Мы уже писали минимум о двух проектах, в которых она звучит очень отчетливо: здании в начале шоссе Энтузиастов и жилой башне на Яковоапостольском. Крупные несущие элементы конструкций перемычек нарочито обнажены и демонстративно жестки, они всячески обнаруживают себя узлами металлических конструкций и демонстрируют – что вот, именно он, большой стеклянно-железный механизм, несет на себе щиты каменных плоскостей, имитирующих привычную людям старой закалки архитектуру. Но делает это только по необходимости, по прихоти людей. А захочет – сбросит. Или изогнет. Или раздвинет.

В проекте для улицы 1812 года механизм, совершенно очевидно, играет роль высотки. Играет не прячась, держит на себе маску, хотя и не избегает черт перевоплощения – ступенчатости и разорванных аттиков с намеками на пилястры, которые очень любопытно смотрятся в металле. В процессе игры этот – очень театральный – механизм трансформирует образ, из «маски» ар-деко рождается хай-тек.
Но главное – открывается проем.

Для сталинской стилистики (и для помпезно-московской 1990-х) такой гигантский проем, уничтожающий середину, немыслим. Там арки никогда не достигают столь запредельной высоты. Для современности он, напротив, родной – сейчас очень актуально соединять два соседних дома переходами, висящими на любой (желательно большой) высоте. Центр оказывается пустым, пронизанным напряжениями металлических связей.

Что очень удачно для этого места, если посмотреть с градостроительной точки зрения. Улица – тупиковая, она упирается в железнодорожные пути. Первоначальный проект замыкал ее окончательно. А этот – отмечает перелом, «водораздел», приглашая к воссоединению противоположную часть города, отрезанную железнодорожными путями киевского направления.

Здание формирует в торце улицы иную, театрального рода перспективу, показывает небо, увеличивает масштаб. Обозначает границу и одновременно – недвусмысленно показывает, что за ней что-то есть. И не только показывает. Вторая очередь строительства предполагает сооружение трехъярусного транспортно-пешеходного моста с большим паркингом на уровне третьего этажа, по которому можно будет приходить над железной дорогой к дублеру Кутузовского проспекта, к ул.Мосфильмовской и Сетуни. Таким образом, здание не только изображает проницаемость, но и создает ее в реальности. Образ получается не обманчив.

вариант архитектора Б.Палуя
вариант архитектора Б.Палуя
одно из промежуточных решений
одно из промежуточных решений
вид со стороны Мосфильмосвкой улицы, анализ высотности комплекса
вид со стороны Мосфильмосвкой улицы, анализ высотности комплекса
макет
макет
фотомонтаж, вид с Кутузовского проспекта
фотомонтаж, вид с Кутузовского проспекта
деталь
деталь
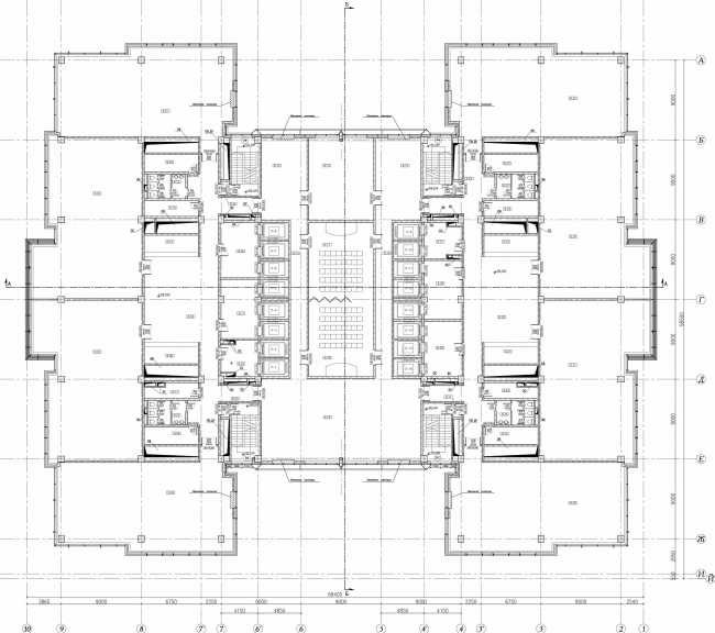
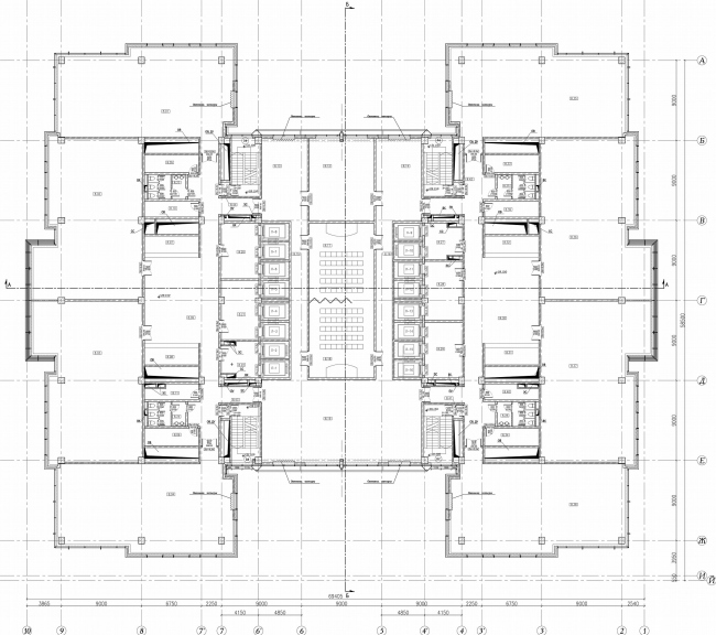
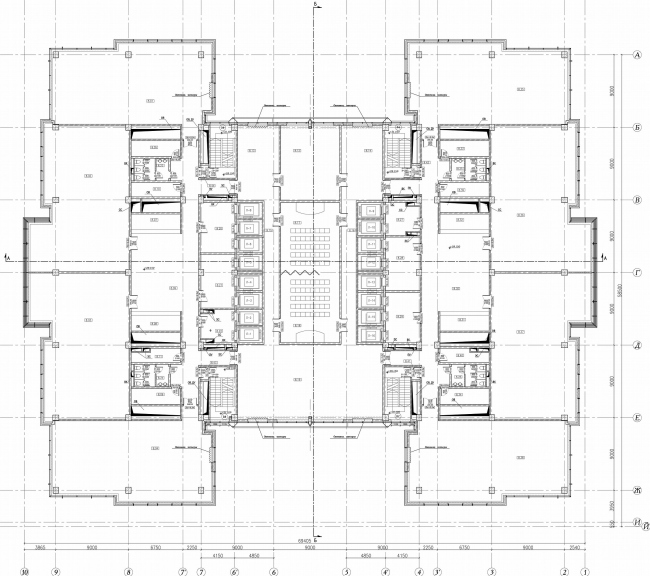
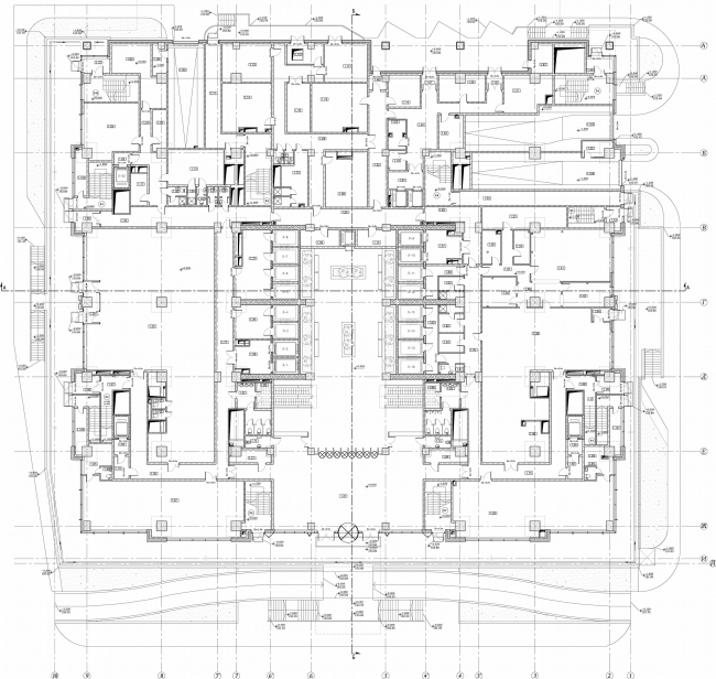
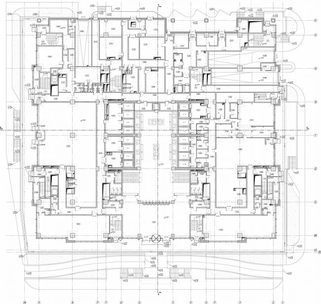
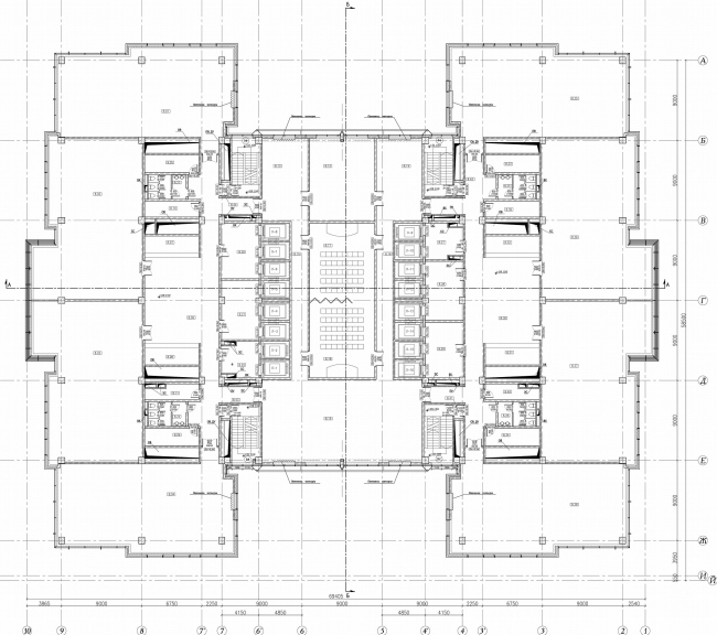
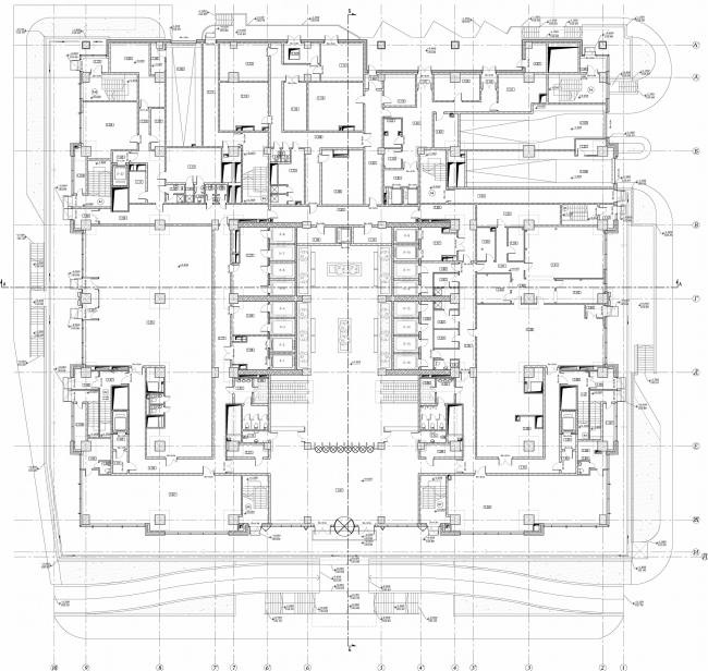
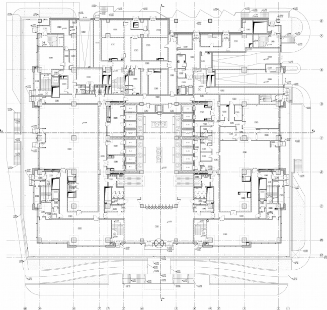
1-й этаж
1-й этаж
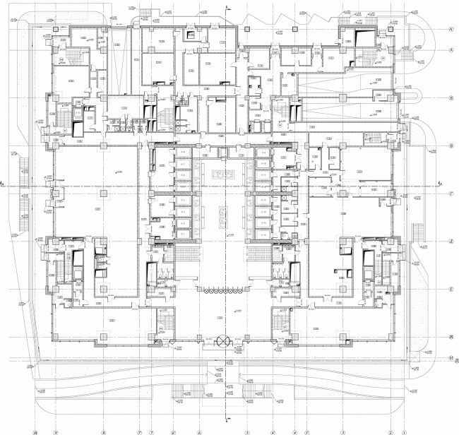
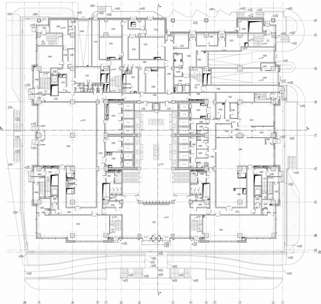
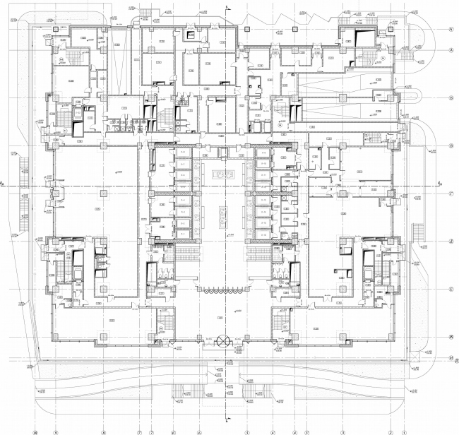
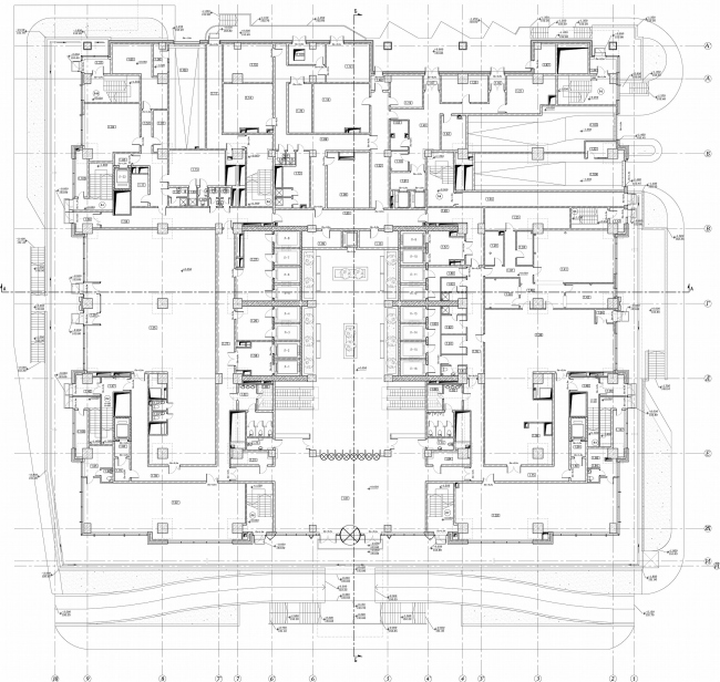
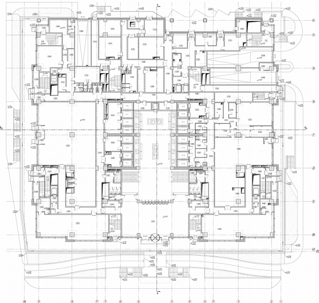
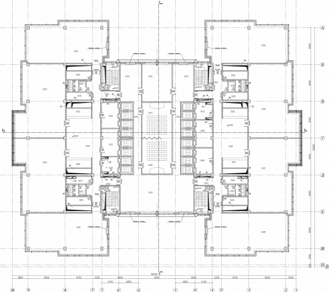
8-й этаж
8-й этаж
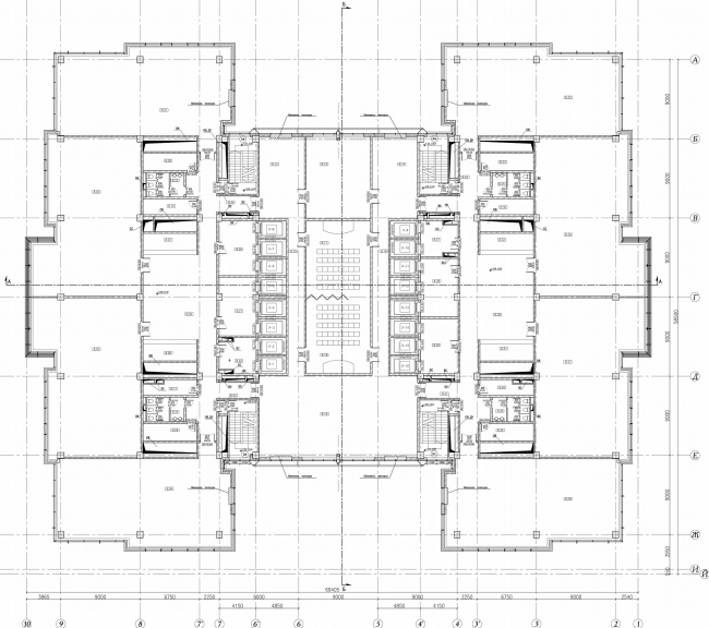
31-й этаж
31-й этаж
главный фасад
главный фасад