Размещено на портале Архи.ру (www.archi.ru)

06.07.2017

Чувство дерева

Наталья Мурадова

Лучшие проекты магистратуры МАРШ студии Николая Белоусова и Натальи Кузьминой «Чувство дерева».

Курсовой проект Анвара Гарипова. «Чувство дерева». Студия Николая Белоусова. МАРШ, 2017
Курсовой проект Анвара Гарипова. «Чувство дерева». Студия Николая Белоусова. МАРШ, 2017

«Чувство дерева» – плотницкий термин. Им обозначают способность интуитивно понимать характер и особенности древесины. Студентам предложили пойти от материала к объекту. Взяв за основу свои тактильные ощущения, они должны были проделать путь от бессознательных первых эскизов к осмысленным проектам. Такая траектория была очень важна: по мнению руководителей студии, современная архитектура в поиске функциональных и формальных решений лишается ощущения телесности.

Николай Белоусов
архитектор, руководитель студии «Чувство дерева»

«Ребята сработали очень здорово в прошлом году, все были очень довольны, поэтому мы продолжили тему дерева в архитектуре и теперь. Самым главным для меня было то, чтобы они пережили дерево как материал, прикоснулись к нему с творческой и с технической точек зрения, и благодаря этому поняли возможности деревянной архитектуры в современной городской среде.

Работы показывают, что они с задачей справились. И это самое главное завоевание нашего модуля. Мы со студентами проделали очень тяжелый, изнурительный путь. Им сразу была поставлена задача, что они делают макеты, делают детали. Они знали, что никаких поблажек не будет, и крайне внимательно, а некоторые даже неожиданно отнеслись к заданию. Сработали на максимуме своих человеческих, физических и творческих возможностей».

Нотная библиотека
Тирайр Мелконян 
Курсовой проект Тирайра Мелконяна. «Чувство дерева». Студия Николая Белоусова. МАРШ, 2017
Курсовой проект Тирайра Мелконяна. «Чувство дерева». Студия Николая Белоусова. МАРШ, 2017

«Здание библиотеки стоит в Морозовском саду, на Ивановской горке. Архитектура легкого и прозрачного павильона отсылает к архитектуре органа, музыкального инструмента, стоящего между мебелью и зданием. В процессе работы я наткнулся на удивительные маленькие комнаты в старинных органах, где настраивается звук. Они будто переваривали музыку, передавая звук от тонкого прикосновения к клавишам в огромные трубы, из которых доносился мощный грохот.

Проект состоит из двух пространств: библиотеки – хранилища с теплым контуром, где музыка создается, и горизонтального объема – камерного концертного зала».
Курсовой проект Тирайра Мелконяна. «Чувство дерева». Студия Николая Белоусова. МАРШ, 2017
Курсовой проект Тирайра Мелконяна. «Чувство дерева». Студия Николая Белоусова. МАРШ, 2017
Курсовой проект Тирайра Мелконяна. «Чувство дерева». Студия Николая Белоусова. МАРШ, 2017
Курсовой проект Тирайра Мелконяна. «Чувство дерева». Студия Николая Белоусова. МАРШ, 2017
Курсовой проект Тирайра Мелконяна. «Чувство дерева». Студия Николая Белоусова. МАРШ, 2017
Курсовой проект Тирайра Мелконяна. «Чувство дерева». Студия Николая Белоусова. МАРШ, 2017
Курсовой проект Тирайра Мелконяна. «Чувство дерева». Студия Николая Белоусова. МАРШ, 2017
Курсовой проект Тирайра Мелконяна. «Чувство дерева». Студия Николая Белоусова. МАРШ, 2017
Курсовой проект Тирайра Мелконяна. «Чувство дерева». Студия Николая Белоусова. МАРШ, 2017
Курсовой проект Тирайра Мелконяна. «Чувство дерева». Студия Николая Белоусова. МАРШ, 2017
Курсовой проект Тирайра Мелконяна. «Чувство дерева». Студия Николая Белоусова. МАРШ, 2017
Курсовой проект Тирайра Мелконяна. «Чувство дерева». Студия Николая Белоусова. МАРШ, 2017
Курсовой проект Тирайра Мелконяна. «Чувство дерева». Студия Николая Белоусова. МАРШ, 2017
Курсовой проект Тирайра Мелконяна. «Чувство дерева». Студия Николая Белоусова. МАРШ, 2017
***
 
Провинциальный вокзал
Анвар Гарипов
Курсовой проект Анвара Гарипова. «Чувство дерева». Студия Николая Белоусова. МАРШ, 2017
Курсовой проект Анвара Гарипова. «Чувство дерева». Студия Николая Белоусова. МАРШ, 2017

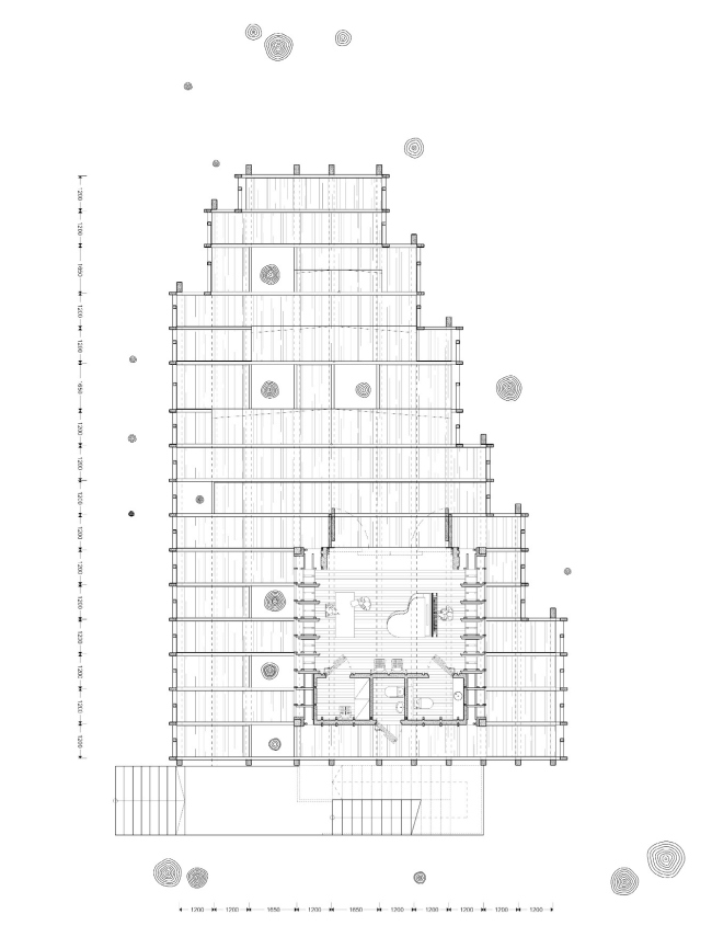
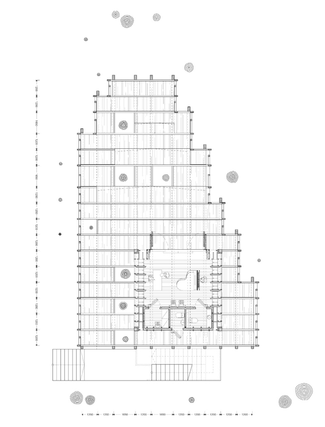
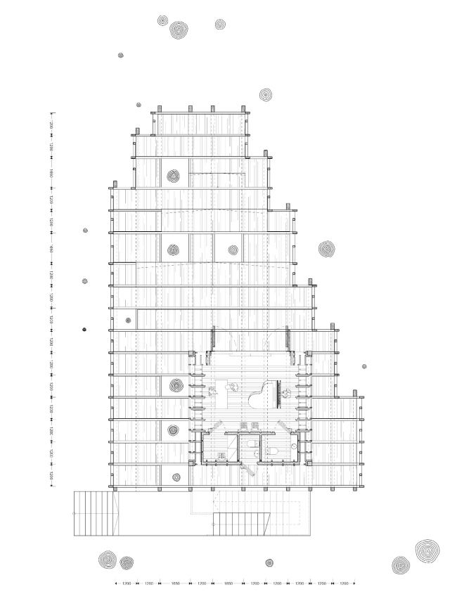
«Вокзал в городе Можга, на родине деревянных линеек, возвращает нас в романтический мир провинциального города с деревянными тротуарами и пожарной каланчой. При этом проект совершенно лишен стилизаторства, его источник скорее анонимная промышленная архитектура из полосы отчуждения железной дороги, чем станционные постройки начала XX века.

Здание будто сошло со страниц знаменитых альбомов Берндта и Хильды Бехер, время в нем остановилось, но не в смысле возврата к прошлому, а замерло, как одинокий пассажир в зале ожидания. Дерево как материал стареющий, подверженный влиянию времени, и традиционный – значит находящийся вне времени, как нельзя лучше соответствует этому состоянию».
Курсовой проект Анвара Гарипова. «Чувство дерева». Студия Николая Белоусова. МАРШ, 2017
Курсовой проект Анвара Гарипова. «Чувство дерева». Студия Николая Белоусова. МАРШ, 2017
Курсовой проект Анвара Гарипова. «Чувство дерева». Студия Николая Белоусова. МАРШ, 2017
Курсовой проект Анвара Гарипова. «Чувство дерева». Студия Николая Белоусова. МАРШ, 2017
Курсовой проект Анвара Гарипова. «Чувство дерева». Студия Николая Белоусова. МАРШ, 2017
Курсовой проект Анвара Гарипова. «Чувство дерева». Студия Николая Белоусова. МАРШ, 2017
Курсовой проект Анвара Гарипова. «Чувство дерева». Студия Николая Белоусова. МАРШ, 2017
Курсовой проект Анвара Гарипова. «Чувство дерева». Студия Николая Белоусова. МАРШ, 2017
Курсовой проект Анвара Гарипова. «Чувство дерева». Студия Николая Белоусова. МАРШ, 2017
Курсовой проект Анвара Гарипова. «Чувство дерева». Студия Николая Белоусова. МАРШ, 2017
Курсовой проект Анвара Гарипова. «Чувство дерева». Студия Николая Белоусова. МАРШ, 2017
Курсовой проект Анвара Гарипова. «Чувство дерева». Студия Николая Белоусова. МАРШ, 2017
Курсовой проект Анвара Гарипова. «Чувство дерева». Студия Николая Белоусова. МАРШ, 2017
Курсовой проект Анвара Гарипова. «Чувство дерева». Студия Николая Белоусова. МАРШ, 2017
Курсовой проект Анвара Гарипова. «Чувство дерева». Студия Николая Белоусова. МАРШ, 2017
Курсовой проект Анвара Гарипова. «Чувство дерева». Студия Николая Белоусова. МАРШ, 2017
***
 
Башня настроения
Надежда Ерохина
Курсовой проект Надежды Ерохиной. «Чувство дерева». Студия Николая Белоусова. МАРШ, 2017
Курсовой проект Надежды Ерохиной. «Чувство дерева». Студия Николая Белоусова. МАРШ, 2017

«Дерево всегда было не только про материал, но и про рост в высоту, и про подъем. Высота дерева, его способность «достичь небес» стала основополагающей в концепции. Так родился центральный элемент – лестница. Утилитарное значение лестницы меняется здесь на сакральное. Пять колодцев башен переплетаются между собой переходами и лестницами, образуя вертикальный лабиринт, отсылающий нас к эшеровскому пространству. Визуально эта башня кажется сложной и непреодолимой. Но поднявшись наверх, можно ощутить настоящую свободу.

Главной идеей будущей башни стало использование единого модуля в конструкции, бруса 100х200мм. Лестницы, соединяющие колодцы башни, являются связующим элементом конструкции, которые обеспечивают ей дополнительную жесткость. Башня состоит из пяти колодцев: одного центрального и двух типовых, зеркально отраженных по центральной оси главного колодца. Ширина лестниц подобрана таким образом, что эта башня становится не просто аттракционом, она подразумевает восхождение одного человека».
Курсовой проект Надежды Ерохиной. «Чувство дерева». Студия Николая Белоусова. МАРШ, 2017
Курсовой проект Надежды Ерохиной. «Чувство дерева». Студия Николая Белоусова. МАРШ, 2017
Курсовой проект Надежды Ерохиной. «Чувство дерева». Студия Николая Белоусова. МАРШ, 2017
Курсовой проект Надежды Ерохиной. «Чувство дерева». Студия Николая Белоусова. МАРШ, 2017
Курсовой проект Надежды Ерохиной. «Чувство дерева». Студия Николая Белоусова. МАРШ, 2017
Курсовой проект Надежды Ерохиной. «Чувство дерева». Студия Николая Белоусова. МАРШ, 2017
Курсовой проект Надежды Ерохиной. «Чувство дерева». Студия Николая Белоусова. МАРШ, 2017
Курсовой проект Надежды Ерохиной. «Чувство дерева». Студия Николая Белоусова. МАРШ, 2017
Курсовой проект Надежды Ерохиной. «Чувство дерева». Студия Николая Белоусова. МАРШ, 2017
Курсовой проект Надежды Ерохиной. «Чувство дерева». Студия Николая Белоусова. МАРШ, 2017
Курсовой проект Надежды Ерохиной. «Чувство дерева». Студия Николая Белоусова. МАРШ, 2017
Курсовой проект Надежды Ерохиной. «Чувство дерева». Студия Николая Белоусова. МАРШ, 2017
Курсовой проект Надежды Ерохиной. «Чувство дерева». Студия Николая Белоусова. МАРШ, 2017
Курсовой проект Надежды Ерохиной. «Чувство дерева». Студия Николая Белоусова. МАРШ, 2017
Курсовой проект Надежды Ерохиной. «Чувство дерева». Студия Николая Белоусова. МАРШ, 2017
Курсовой проект Надежды Ерохиной. «Чувство дерева». Студия Николая Белоусова. МАРШ, 2017
Курсовой проект Надежды Ерохиной. «Чувство дерева». Студия Николая Белоусова. МАРШ, 2017
Курсовой проект Надежды Ерохиной. «Чувство дерева». Студия Николая Белоусова. МАРШ, 2017
Курсовой проект Надежды Ерохиной. «Чувство дерева». Студия Николая Белоусова. МАРШ, 2017
Курсовой проект Надежды Ерохиной. «Чувство дерева». Студия Николая Белоусова. МАРШ, 2017
Курсовой проект Надежды Ерохиной. «Чувство дерева». Студия Николая Белоусова. МАРШ, 2017
Курсовой проект Надежды Ерохиной. «Чувство дерева». Студия Николая Белоусова. МАРШ, 2017
***

Теплица
Иван Соломин
Курсовой проект Ивана Соломина. «Чувство дерева». Студия Николая Белоусова. МАРШ, 2017
Курсовой проект Ивана Соломина. «Чувство дерева». Студия Николая Белоусова. МАРШ, 2017

«Мой объект находится в лесу, но не является инородным телом по отношению к лесу, он приподнят ближе к кронам и оставляет пространство леса нетронутым. Это объект, в котором можно заблудиться вместе с лесом. Если бы у леса мог быть активный первый этаж – то это был бы он. «Теплица» происходит от слова «теплиться», в нем теплится жизнь, идет учеба пчеловодов и животноводов из Тимирязевской академии, их встречи с местными жителями, лекции, семинары и обсуждения.

Теплица – это сруб, приподнятый на пилонах-опорах, ее стены срублены из половинок расклиненного бруса, что создает на фасаде фактуру колотого дерева со следами клиньев. Подобно следам опалубки на бетоне, детали из дерева тоже хранят память о том, как они были сделаны. Объект воспринимается издали как деревянный массив, как нечто живое, шершавое, нечто, обо что можно получить занозу, нечто, что не имеет ни одной одинаковой грани и мягко шелестит в руках».
Курсовой проект Ивана Соломина. «Чувство дерева». Студия Николая Белоусова. МАРШ, 2017
Курсовой проект Ивана Соломина. «Чувство дерева». Студия Николая Белоусова. МАРШ, 2017
Курсовой проект Ивана Соломина. «Чувство дерева». Студия Николая Белоусова. МАРШ, 2017
Курсовой проект Ивана Соломина. «Чувство дерева». Студия Николая Белоусова. МАРШ, 2017
Курсовой проект Ивана Соломина. «Чувство дерева». Студия Николая Белоусова. МАРШ, 2017
Курсовой проект Ивана Соломина. «Чувство дерева». Студия Николая Белоусова. МАРШ, 2017
Курсовой проект Ивана Соломина. «Чувство дерева». Студия Николая Белоусова. МАРШ, 2017
Курсовой проект Ивана Соломина. «Чувство дерева». Студия Николая Белоусова. МАРШ, 2017
Курсовой проект Ивана Соломина. «Чувство дерева». Студия Николая Белоусова. МАРШ, 2017
Курсовой проект Ивана Соломина. «Чувство дерева». Студия Николая Белоусова. МАРШ, 2017
Курсовой проект Ивана Соломина. «Чувство дерева». Студия Николая Белоусова. МАРШ, 2017
Курсовой проект Ивана Соломина. «Чувство дерева». Студия Николая Белоусова. МАРШ, 2017
***

Приют для бездомных собак
Давид Мирный
Курсовой проект Давида Мирного. «Чувство дерева». Студия Николая Белоусова. МАРШ, 2017
Курсовой проект Давида Мирного. «Чувство дерева». Студия Николая Белоусова. МАРШ, 2017

«Идея проекта состояла в синтезе эстетики деревянных конструкций и решении проблемы бездомных собак Москвы и Подмосковья. Поэтому для начала я решил сделать конструкцию, в которой большинство элементов и их соединений будут открыты для демонстрации прохожим. Так родилась идея сделать послойный объект, где стены и кровля будут работать отдельно друг от друга. Сама же крыша должна накрыть всю территорию. Следующая задача – переосмысление отношения людей к приютам с животными.

Я решил расположить объект в Мещерском парке, потому что это место с пешеходной активностью. Место, где человек сможет без городской суеты критически отнестись к архитектуре приюта, а также найти нового друга в нём. Приют состоит из пяти блоков, между которыми находятся выгулы для собак. Также приют оснащен необходимыми помещениями и оборудованием для ухода и реабилитации собак. Такой приют станет вторым шансом для брошенных собак и для людей, которые смогут взглянуть иначе на проблему города».
Курсовой проект Давида Мирного. «Чувство дерева». Студия Николая Белоусова. МАРШ, 2017
Курсовой проект Давида Мирного. «Чувство дерева». Студия Николая Белоусова. МАРШ, 2017
Курсовой проект Давида Мирного. «Чувство дерева». Студия Николая Белоусова. МАРШ, 2017
Курсовой проект Давида Мирного. «Чувство дерева». Студия Николая Белоусова. МАРШ, 2017
Курсовой проект Давида Мирного. «Чувство дерева». Студия Николая Белоусова. МАРШ, 2017
Курсовой проект Давида Мирного. «Чувство дерева». Студия Николая Белоусова. МАРШ, 2017
Курсовой проект Давида Мирного. «Чувство дерева». Студия Николая Белоусова. МАРШ, 2017
Курсовой проект Давида Мирного. «Чувство дерева». Студия Николая Белоусова. МАРШ, 2017
***