Размещено на портале Архи.ру (www.archi.ru)

16.08.2017

Оптимально «зеленый»

Наталья Мурадова
Объект:
Офисный комплекс «Оптима Плаза»
Адрес:
Украина, Львов. ул. Научная 7А
Архитектор:
Александр Попов
Мастерская:
Архиматика

Компания «АРХИМАТИКА» построила первый во Львове бизнес-центр с сертификатом BREEAM. Благодаря проектным решениям эстетику здания удалось связать с его энергоэффективностью и сократить потребление энергии почти на 40%.

Офисный комплекс «Оптима Плаза» © Архиматика
Офисный комплекс «Оптима Плаза» © Архиматика

Бизнес-центр «Оптима-Плаза» введен в эксплуатацию в 2016 году. По методу подсчета экологической эффективности зданий BREEAM британской компании BRE Global он получил оценку ‘very good’.

Комплекс расположен в южной части Львова, в районе пересечения Научной улицы с улицей Княгини Ольги. Эта часть города отличается, с одной стороны, развитой городской инфраструктурой: только вдоль княгининой улицы выстроились в ряд пять торговых центров с аква-парком между ними. «Кроме того, сейчас здесь активно внедряют технологии «умного города»: устанавливают мачты доступа к Wi-Fi, точки для зарядки гаджетов на остановках общественного транспорта; введена система вознаграждения за сортировку бытовых отходов и оповещения о свободных местах на автопарковках». – уточняет сооснователь архитектурной компании Archimatika Дмитрий Васильев. С другой стороны, организация пространства все еще едва ли отвечает современному пониманию дружественной среды.

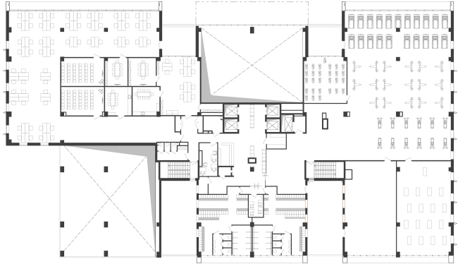
Застройщик обратился к архитекторам с просьбой прокомментировать уже готовый проект бизнес-центра «коридорной» планировки. «Мы проанализировали предложенную нашими предшественниками линейную схему, показали заказчику, где будет коридор и насколько он будет неэффективен. Такая планировка офисного здания морально устарела, тут никакие современные фасады не спасут». В итоге Archimatika взялась за создание качественно нового проекта бизнес-центра, соответствующего требованиям времени не только по формальным внешним признакам, но и по сути.

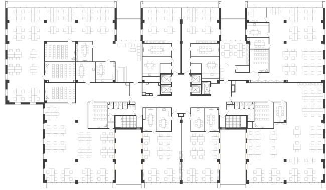
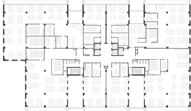
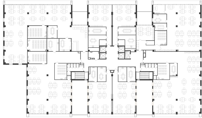
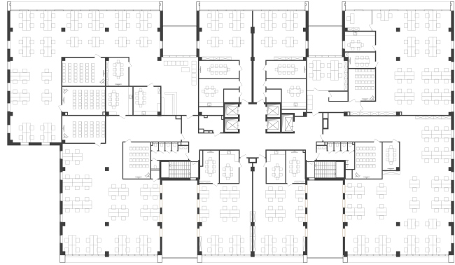
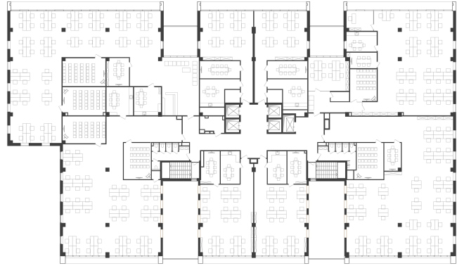
Архитекторам удалось отойти от устаревшей линейной структуры, разбив единую композицию здания на три объема-ризалита, которые придают ритмичность и позволяют сгладить эффект чрезмерной протяженности здания. Торцевые фасады каждого объема покрыты металлическими панелями, северный и южный – напротив, отданы панорамному остеклению, формируя актуальный прием «обертывания формы», подчеркивающий контраст продольного и поперечного. На кровле стилобата между ризалитами образовались глубокие террасы с живыми деревьями.
Ризалиты выступают вперед глубокими консолями, между напротив, образуются террасы – все вместе складывается в пространственную игру, совершенно исключающую «плоскостное» восприятие фасада. Офисный комплекс «Оптима Плаза» © Архиматика
Ризалиты выступают вперед глубокими консолями, между напротив, образуются террасы – все вместе складывается в пространственную игру, совершенно исключающую «плоскостное» восприятие фасада. Офисный комплекс «Оптима Плаза» © Архиматика
Офисный комплекс «Оптима Плаза». Деревья на террасах между ризалитами © Архиматика
Офисный комплекс «Оптима Плаза». Деревья на террасах между ризалитами © Архиматика

Сплошное панорамное остекление южного фасада перечеркивают горизонтальные металлические ламели системы затенения – они позволяют связать эстетику с энергоэффективностью, летом защищая офиные пространства от жары, а зимой – обеспечивая дополнительную инсоляцию за счет просчитанной архитекторами параметрики. Подобные ламели установлены и на торцевых фасадах: здесь они также защищают окна от прямых солнечных лучей, но образуют не горизонтали, а вертикали.
Офисный комплекс «Оптима Плаза». Вид с юго-востока © Архиматика
Офисный комплекс «Оптима Плаза». Вид с юго-востока © Архиматика
Схема защиты от прямых солнечных лучей. Офисный комплекс «Оптима Плаза» © Архиматика
Схема защиты от прямых солнечных лучей. Офисный комплекс «Оптима Плаза» © Архиматика

Основной тон фасадов – зеленый цвета окисленной меди. «Изначально мы рассматривали сдержанно-деловой, серый вариант цветового решения. Заказчика он устраивал, а нам показался жутко скучным. Все здания, которые стоят рядом, угрюмо серые, отделанные цементной штукатуркой. Мы хотели, чтобы наше здание отличалось от советского наследия и выглядело свежо, тем более перед ним растут березы, которые задают хороший фон. Мы решили поддержать зеленый цвет, но использовать холодный оттенок, более соответствующий функции бизнес-центра», – говорит Дмитрий Васильев.
В центре обращенного к улице северного фасада вход в вестибюль подчеркнут приподнятой консолью центрального ризалита. Офисный комплекс «Оптима Плаза» © Архиматика
В центре обращенного к улице северного фасада вход в вестибюль подчеркнут приподнятой консолью центрального ризалита. Офисный комплекс «Оптима Плаза» © Архиматика

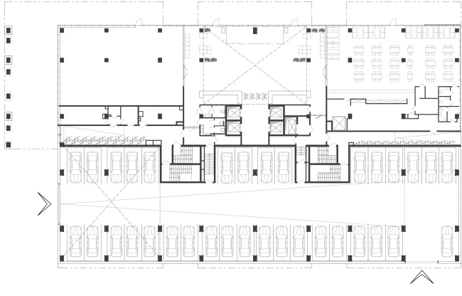
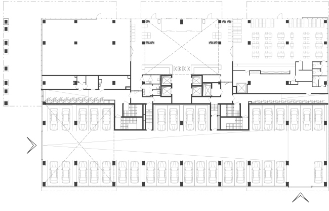
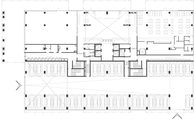
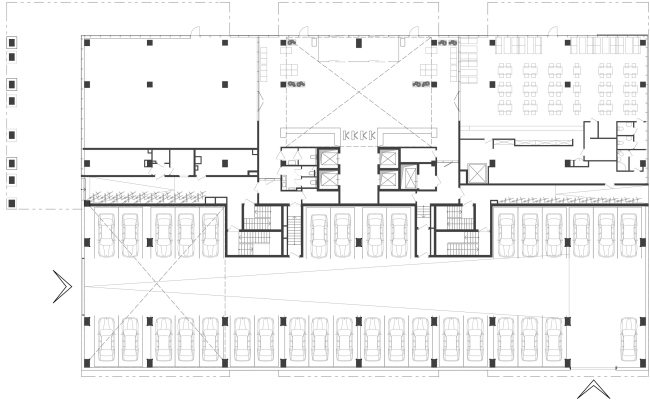
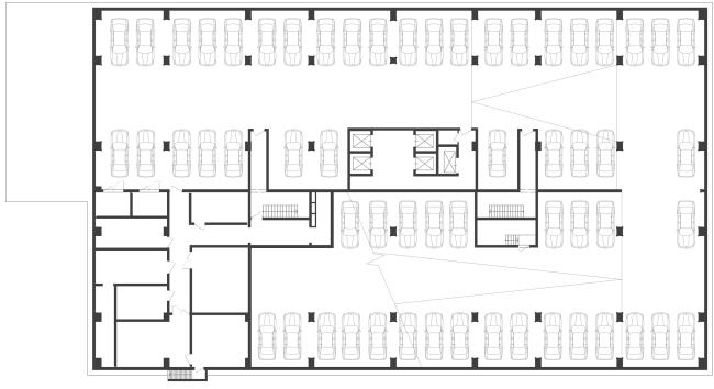
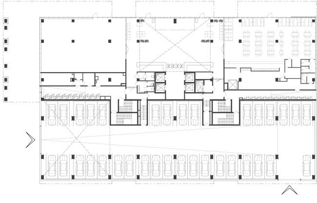
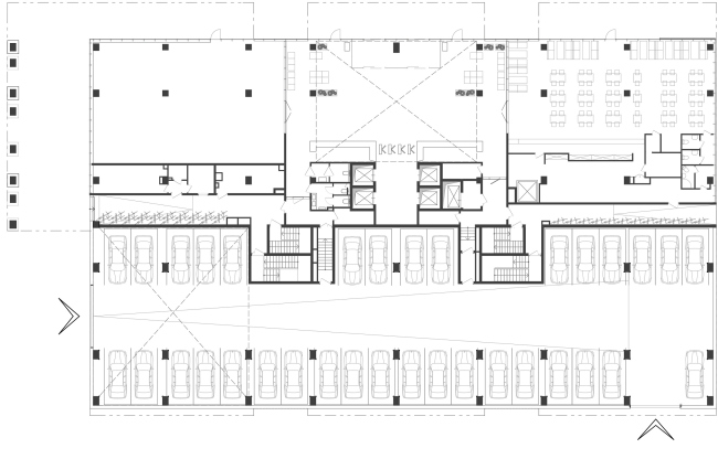
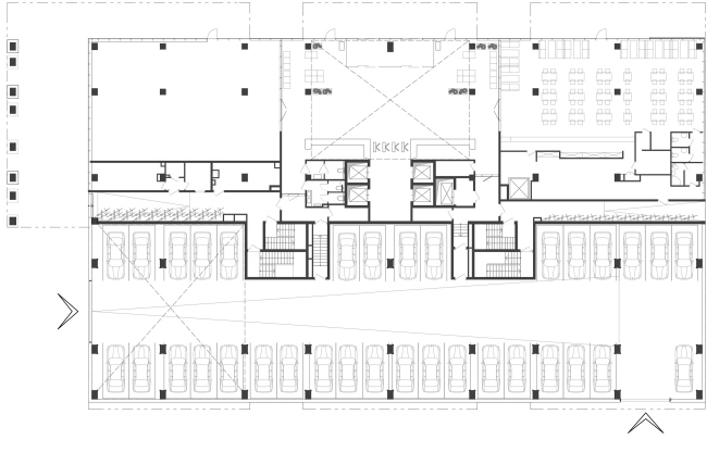
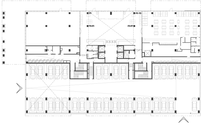
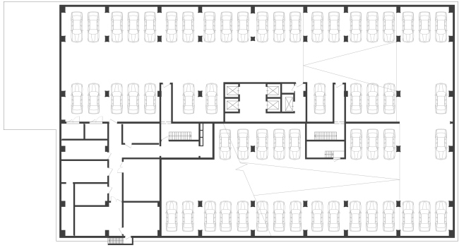
Один ярус подземной парковки дополнен парковкой в уровне первого этажа, со стороны двора. Здесь фасад стилобата прикрыт металлической сеткой, что позволило обеспечить естественную вентиляцию и позволило сократить расходы на установку системы дымоудаления.
Фасад, обращенный во двор, к пластине советского корпуса научного центра Академии наук (слева). С этой стороны в стилобате расположена парковка, вместо остекления здесь использованы металлические решетки. Офисный комплекс «Оптима Плаза» © Архиматика
Фасад, обращенный во двор, к пластине советского корпуса научного центра Академии наук (слева). С этой стороны в стилобате расположена парковка, вместо остекления здесь использованы металлические решетки. Офисный комплекс «Оптима Плаза» © Архиматика
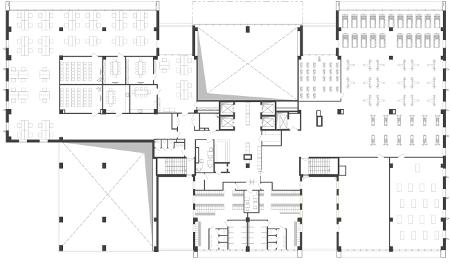
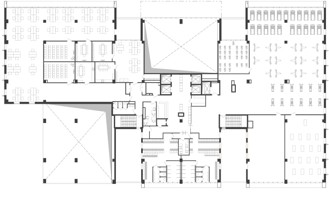
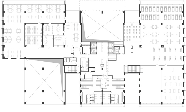
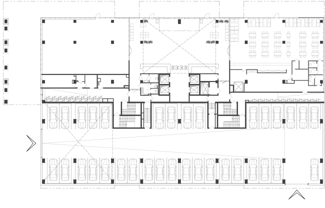
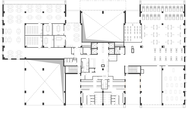
Северная часть стилобата отдана кафе и магазинам, в южной, обращенной во двор, устроена парковка. Офисный комплекс «Оптима Плаза» © Архиматика
Северная часть стилобата отдана кафе и магазинам, в южной, обращенной во двор, устроена парковка. Офисный комплекс «Оптима Плаза» © Архиматика

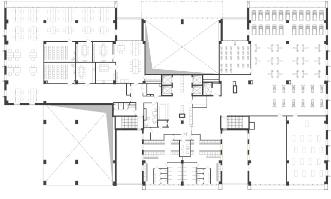
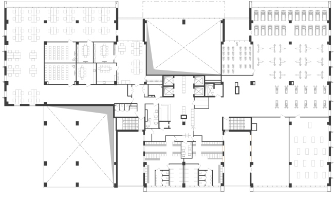
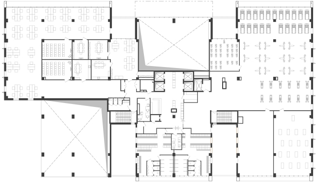
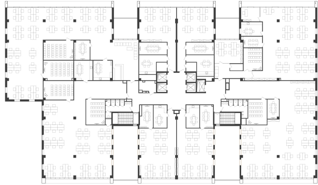
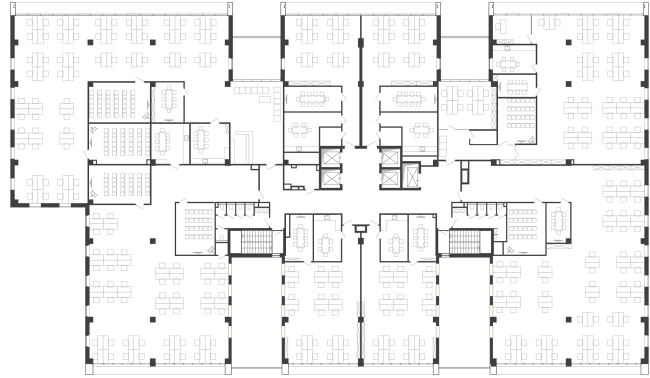
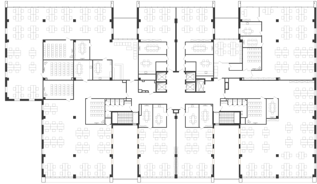
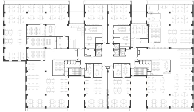
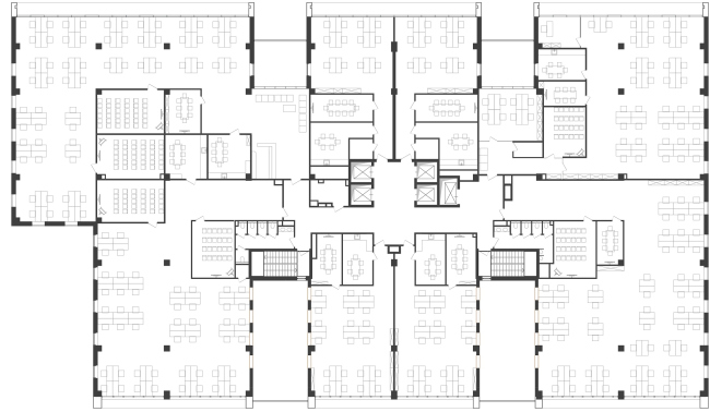
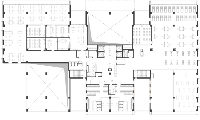
Полезная площадь помещений на каждом из этажей составляет около 1 900 м2. Это оптимальная площадь для комфортной работы сотрудников крупной компании. Трехчастное деление этажа на блоки позволяет удобно разбить пространство на мелкие офисные единицы.
Офисный комплекс «Оптима Плаза» © Архиматика
Офисный комплекс «Оптима Плаза» © Архиматика
Офисный комплекс «Оптима Плаза» © Архиматика
Офисный комплекс «Оптима Плаза» © Архиматика

На крыше «Оптима-Плазы» установлена система солнечных коллекторов, мощности которых достаточно, чтобы обеспечивать горячей водой весь бизнес-центр. Воду подогревает воздушный тепловой насос, с помощью которого также отапливают здание, если температура не опускается ниже минус пяти. Все эти приемы при проектировании «Оптима Плазы» Archimatika испробовала впервые.

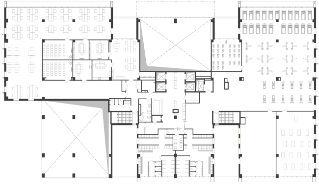
Архитекторы позаботились и об общественных пространствах: слева и справа от вестибюля в стилобате предусмотрено место для кафе и магазинов, которые позволят сделать «Оптима-Плазу» не только комфортным местом для работы, но и центром притяжения для местных жителей. Развитию инфраструктуры района также служат предусмотренные перед зданием бизнес-центра велопарковка и зарядные станции для электромобилей. Авторы уверены, что здание задает высокую планку для развития офисной недвижимости не только Львова, но и Украины в целом, соответствуя представлениям «креативного класса» о комфортной жизни в городе.
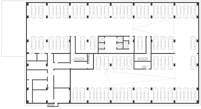
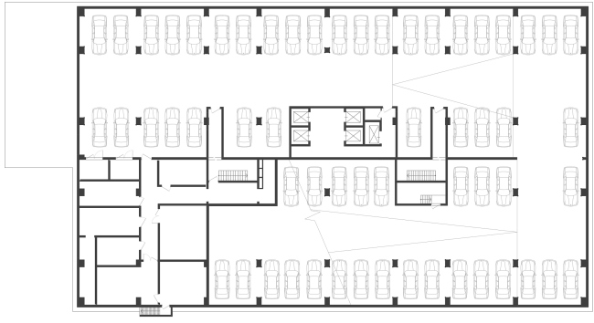
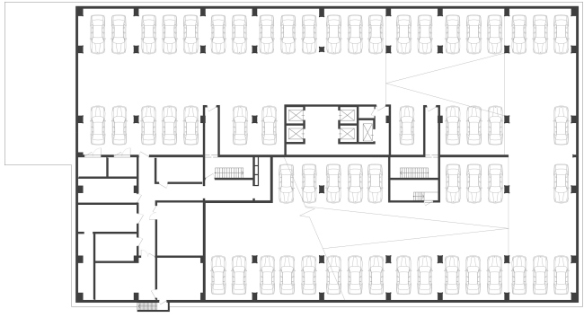
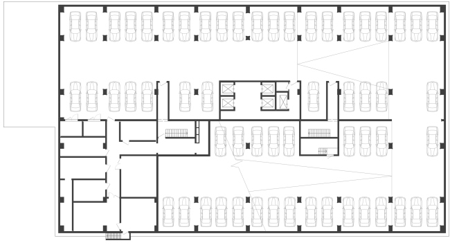
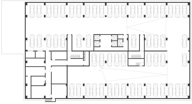
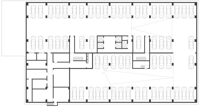
Ярус подземной парковки. Офисный комплекс «Оптима Плаза» © Архиматика
Ярус подземной парковки. Офисный комплекс «Оптима Плаза» © Архиматика
Офисный комплекс «Оптима Плаза» © Архиматика
Офисный комплекс «Оптима Плаза» © Архиматика