Размещено на портале Архи.ру (www.archi.ru)

27.06.2017

Ворота для цифровой эры

Нина Фролова
Объект:
Комплекс Hangzhou Gateway
Адрес:
Китай, None, Ханчжоу.
Мастерская:
JDS

Штаб-квартира IT-компании Hakim в Ханчжоу по проекту бюро JDS.

Комплекс Hangzhou Gateway © Julien Lanoo
Комплекс Hangzhou Gateway © Julien Lanoo

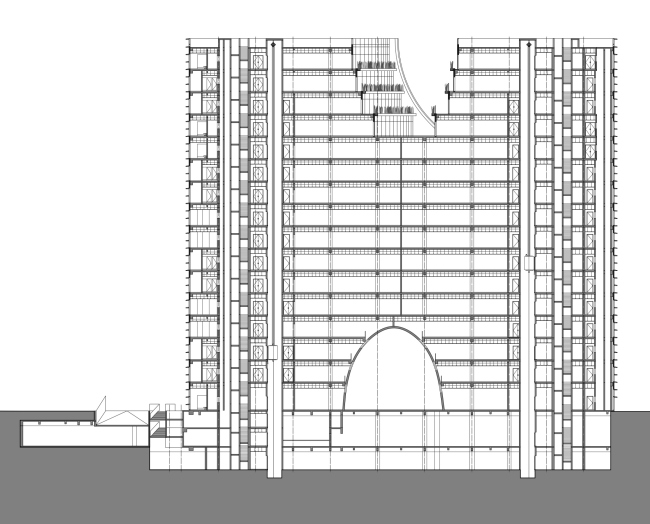
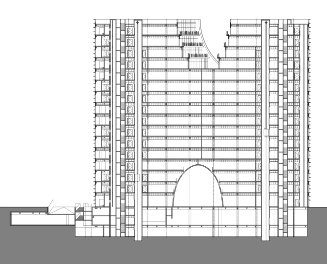
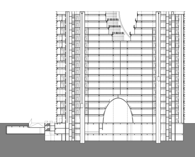
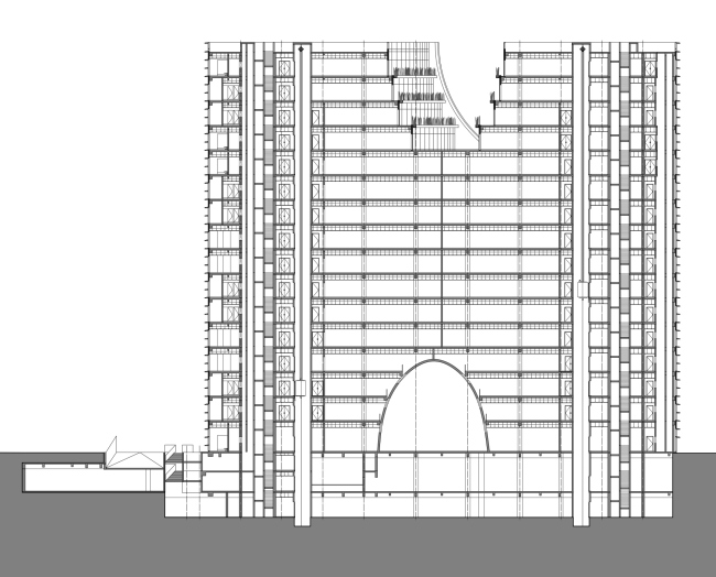
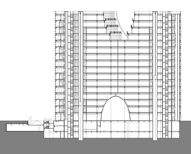
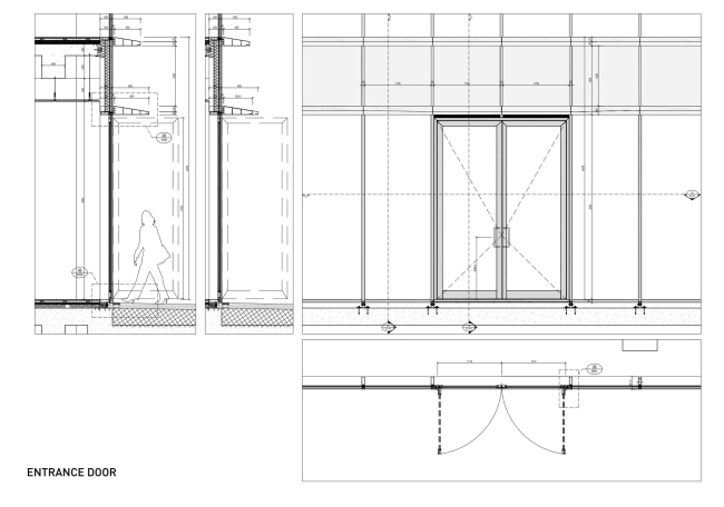
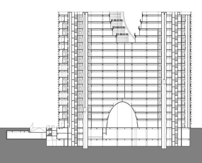
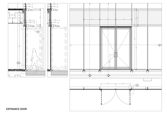
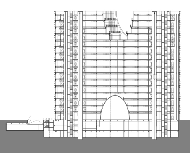
Офисное здание Hangzhou Gateway – «Ворота Ханчжоу» – парафраз на тему мощных городских ворот: эти сооружения до сих пор можно увидеть во многих старых китайских городах. В данном случае постройка «ведет» из одной зоны новой застройки в другую. Кроме воплощения этого образа, проем в ее центре – попытка создать дружественное к пешеходу пространство. Вместо привычного монолита офисного здания архитекторы спроектировали проницаемую структуру: арка соединяет два общественных пространства, созданных у продольных фасадов Hangzhou Gateway.
 
Комплекс Hangzhou Gateway © Julien Lanoo
Комплекс Hangzhou Gateway © Julien Lanoo

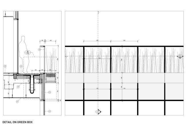
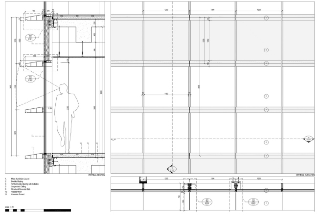
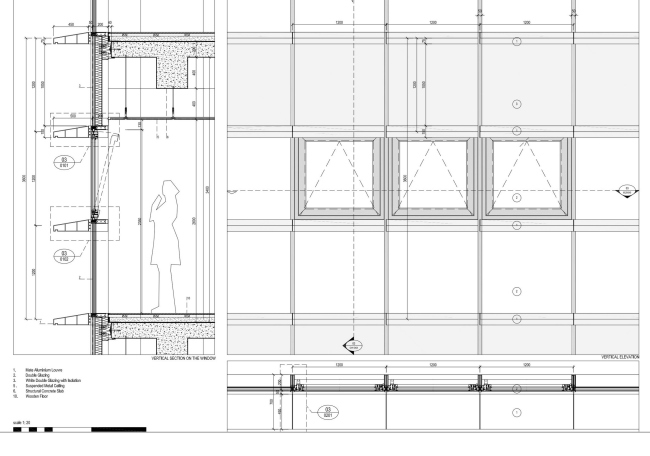
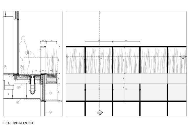
Зеркальное отражение этой арки расположено сверху: это уже не древние ворота, а типичный для Китая сельскохозяйственный ландшафт – долина с террасными рисовыми полями. Зелень за окном должна повысить качество рабочей среды и, тем самым, производительность сотрудников Hakim Unique Internet. Также она удерживает дождевую воду и охлаждает фасады.
 
Комплекс Hangzhou Gateway © Julien Lanoo
Комплекс Hangzhou Gateway © Julien Lanoo

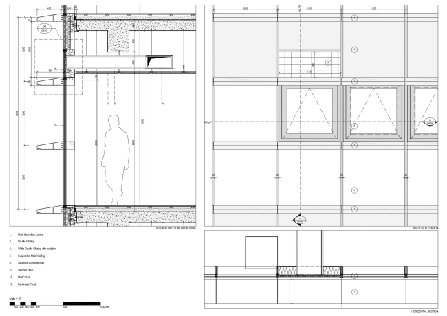
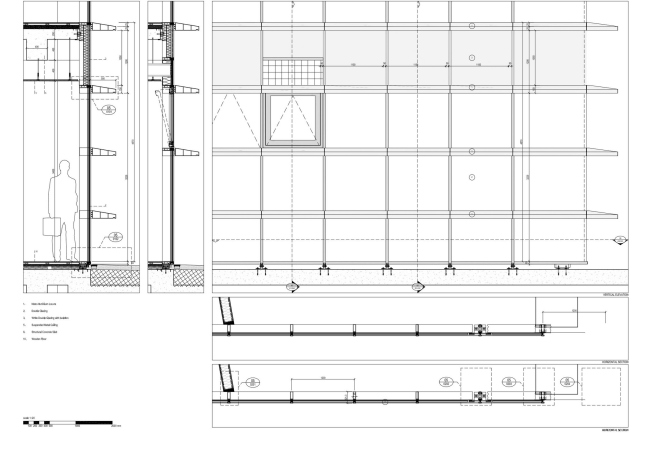
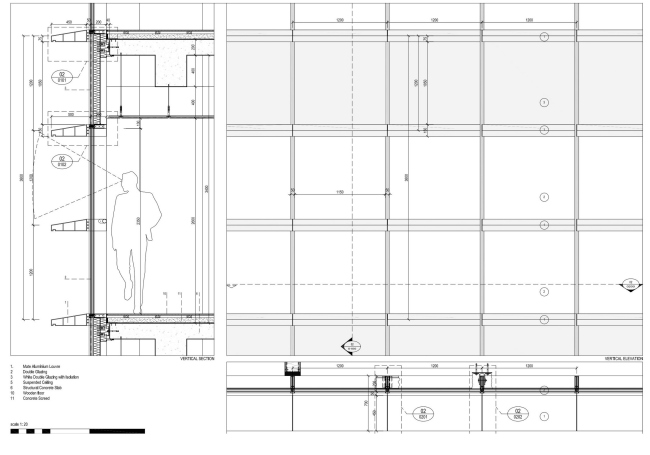
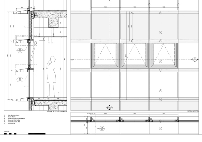
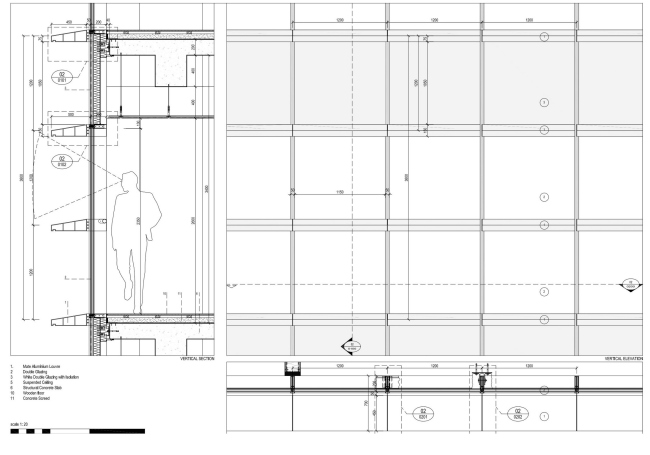
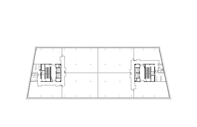
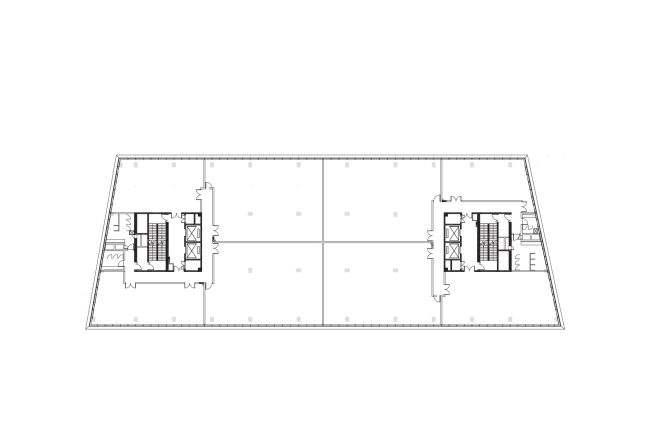
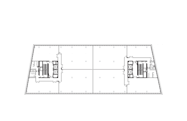
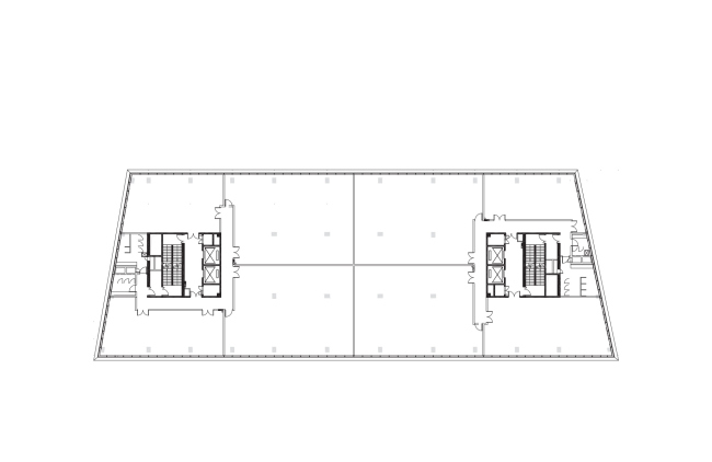
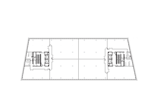
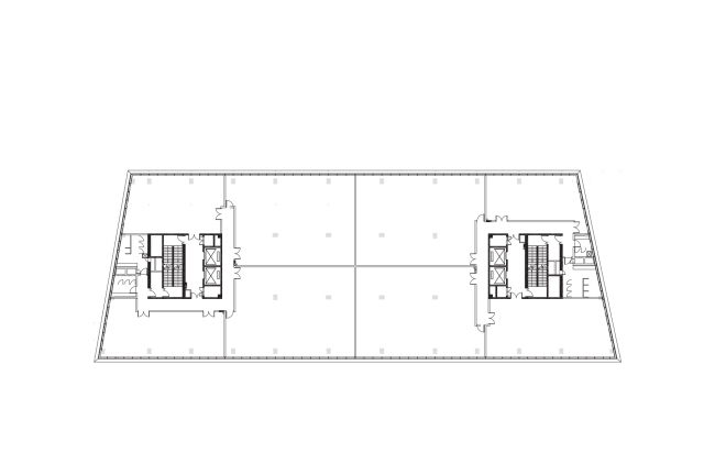
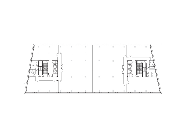
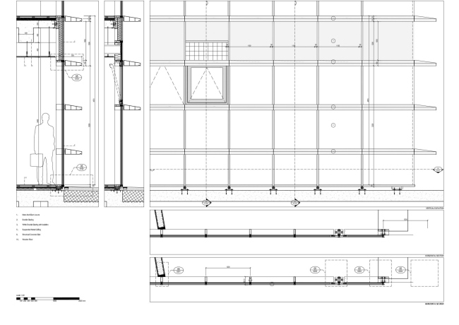
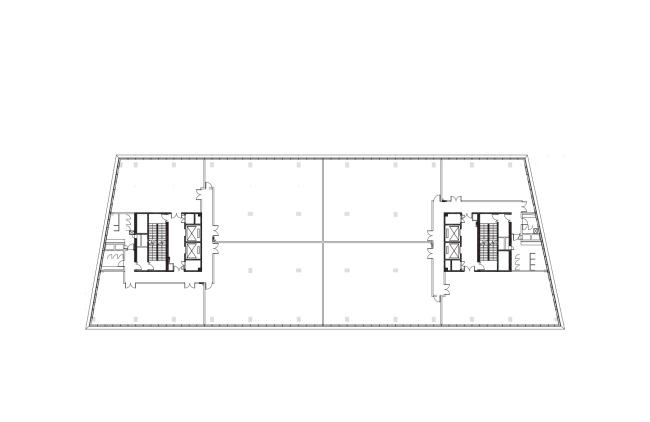
У постройки – два конструктивных «стержня». На ее 16 этажах (общая площадь 23 600 м2) расположены, помимо офисов, магазины, рестораны и почтовое отделение. Бюджет составил 22 млн евро.
Комплекс Hangzhou Gateway © Julien Lanoo
Комплекс Hangzhou Gateway © Julien Lanoo
Комплекс Hangzhou Gateway © Julien Lanoo
Комплекс Hangzhou Gateway © Julien Lanoo
Комплекс Hangzhou Gateway © Julien Lanoo
Комплекс Hangzhou Gateway © Julien Lanoo
Комплекс Hangzhou Gateway © Julien Lanoo
Комплекс Hangzhou Gateway © Julien Lanoo
Комплекс Hangzhou Gateway © Julien Lanoo
Комплекс Hangzhou Gateway © Julien Lanoo
Комплекс Hangzhou Gateway © Julien Lanoo
Комплекс Hangzhou Gateway © Julien Lanoo
Комплекс Hangzhou Gateway © Julien Lanoo
Комплекс Hangzhou Gateway © Julien Lanoo
Комплекс Hangzhou Gateway © Julien Lanoo
Комплекс Hangzhou Gateway © Julien Lanoo
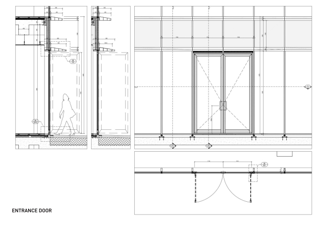
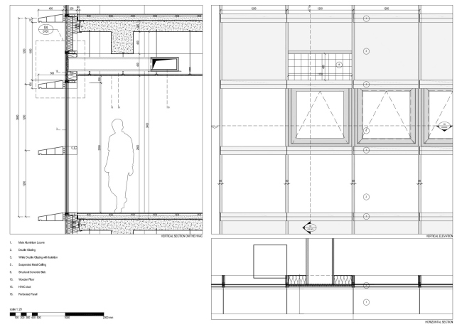
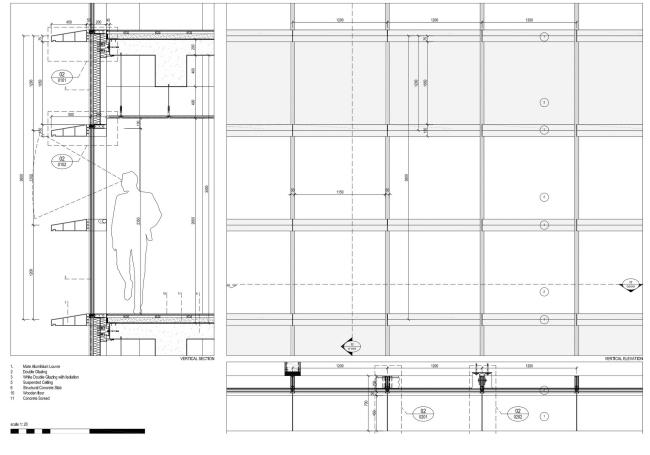
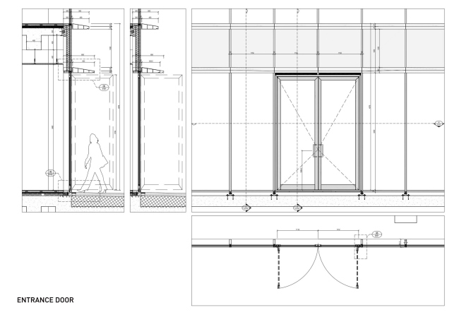
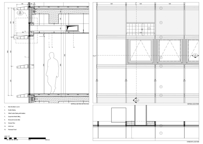
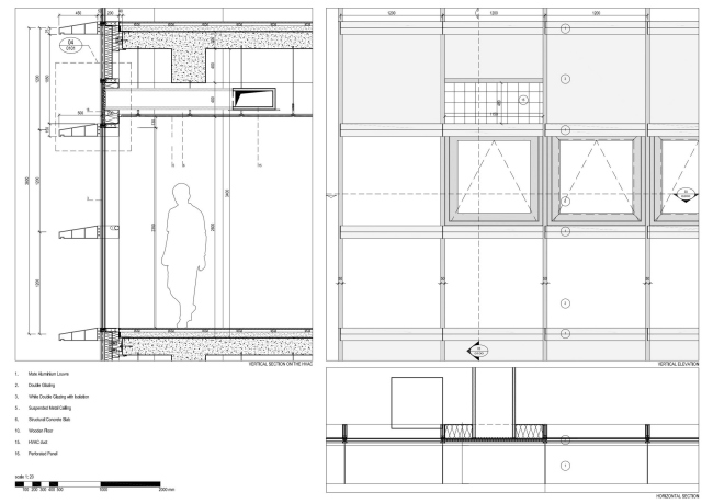
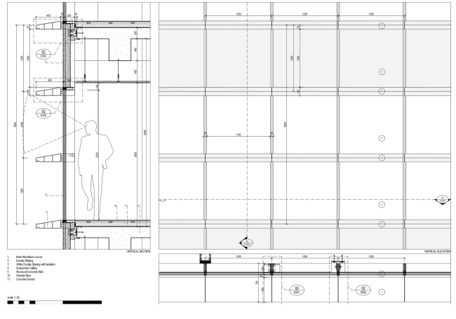
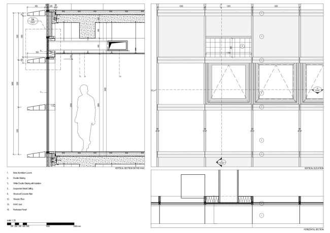
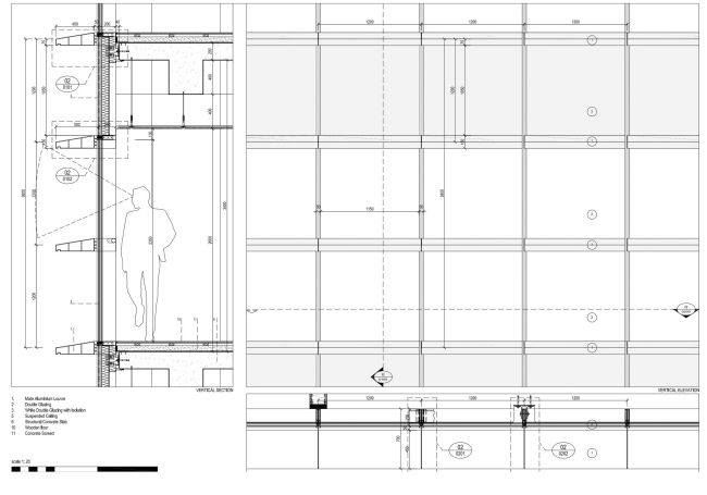
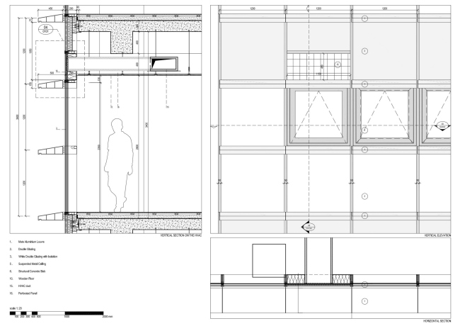
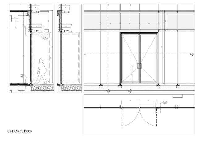
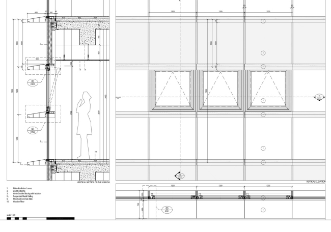
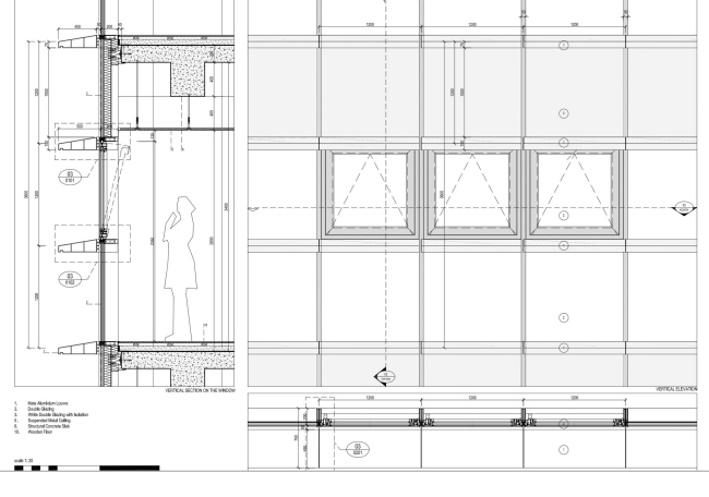
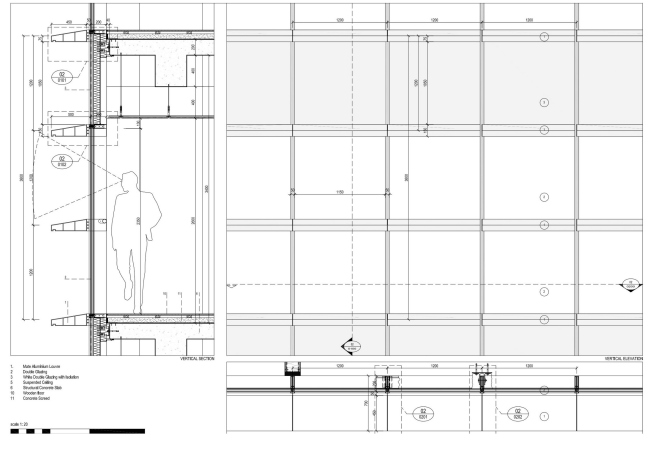
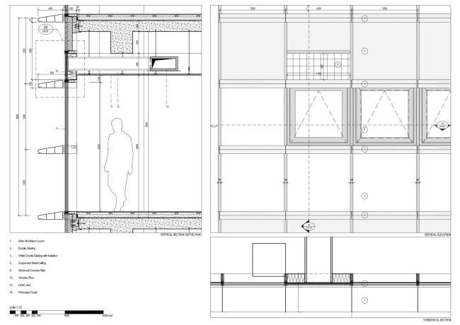
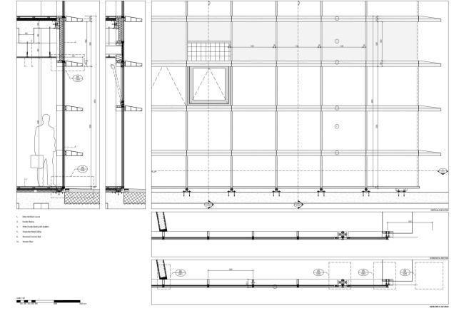
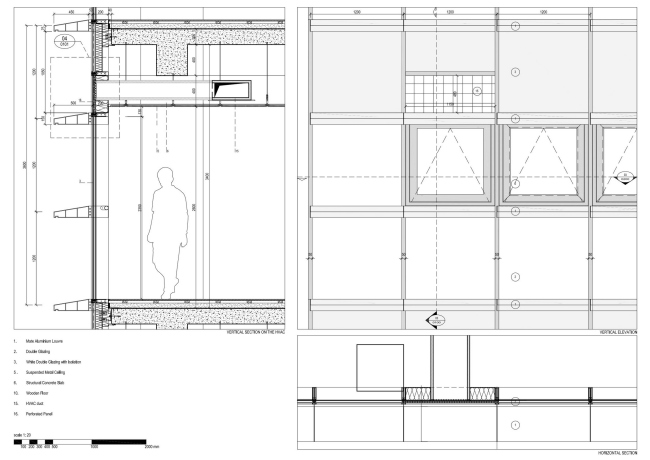
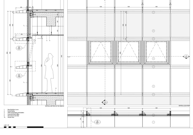
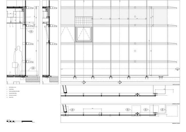
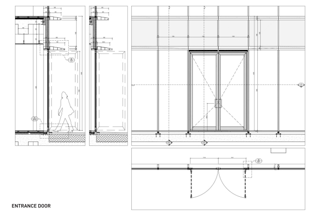
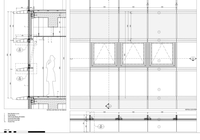
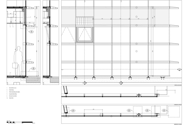
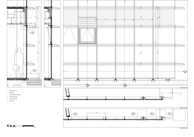
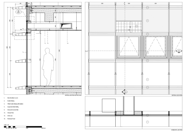
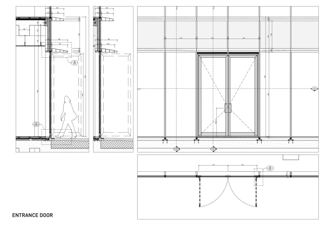
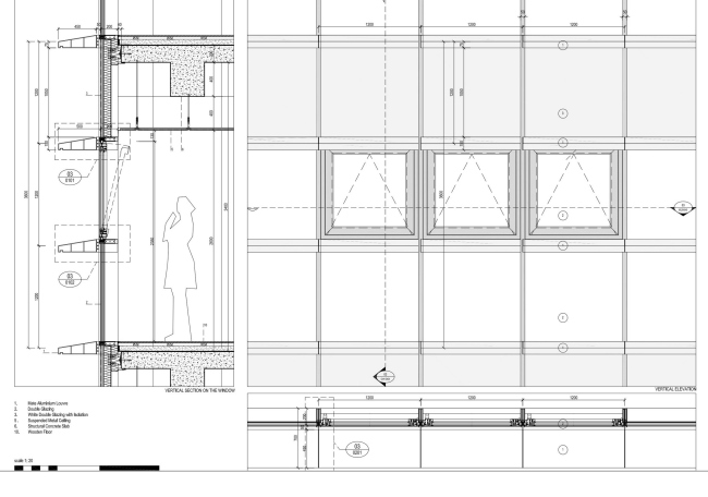
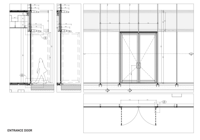
Комплекс Hangzhou Gateway © JDS
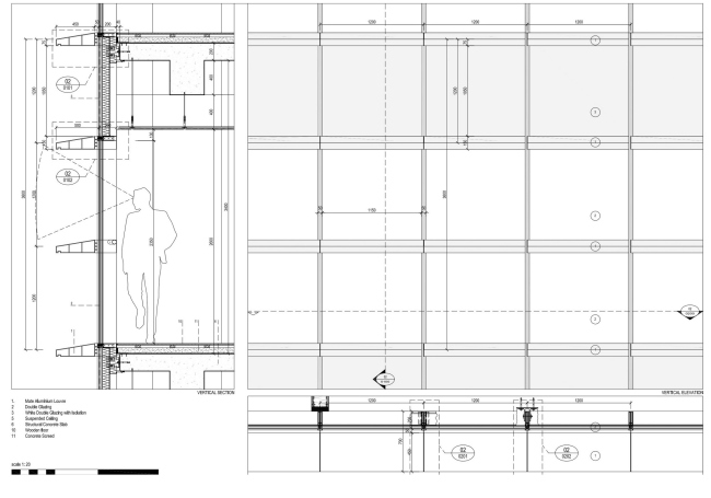
Комплекс Hangzhou Gateway © JDS
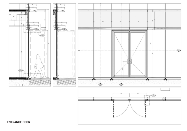
Комплекс Hangzhou Gateway © JDS
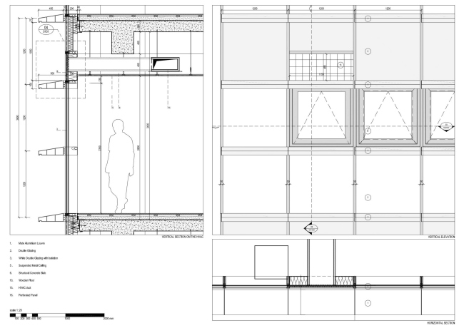
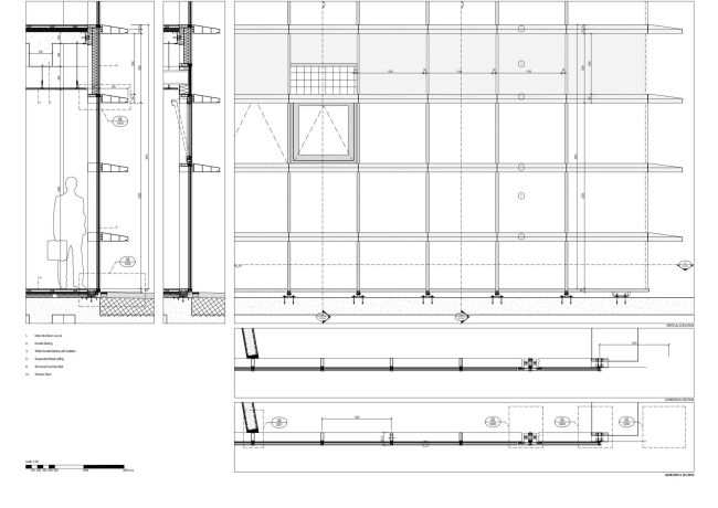
Комплекс Hangzhou Gateway © JDS
Комплекс Hangzhou Gateway © JDS
Комплекс Hangzhou Gateway © JDS
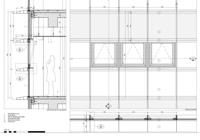
Комплекс Hangzhou Gateway © JDS
Комплекс Hangzhou Gateway © JDS
Комплекс Hangzhou Gateway © JDS
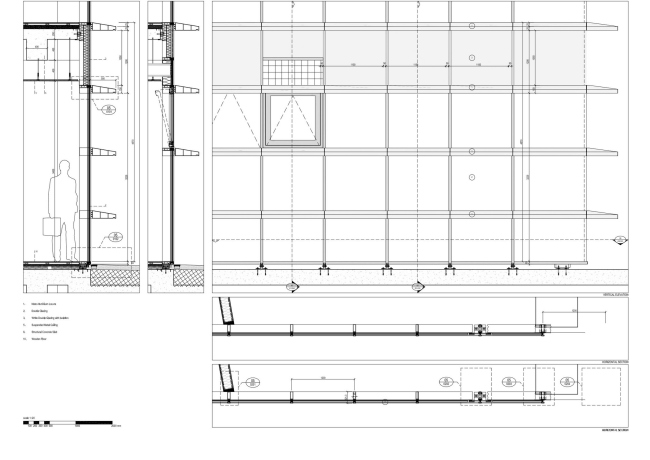
Комплекс Hangzhou Gateway © JDS
Комплекс Hangzhou Gateway © JDS
Комплекс Hangzhou Gateway © JDS
Комплекс Hangzhou Gateway © JDS
Комплекс Hangzhou Gateway © JDS
Комплекс Hangzhou Gateway © JDS
Комплекс Hangzhou Gateway © JDS
Комплекс Hangzhou Gateway © JDS
Комплекс Hangzhou Gateway © JDS
Комплекс Hangzhou Gateway © JDS
Комплекс Hangzhou Gateway © JDS
Комплекс Hangzhou Gateway © JDS
Комплекс Hangzhou Gateway © JDS
Комплекс Hangzhou Gateway © JDS
Комплекс Hangzhou Gateway © JDS
Комплекс Hangzhou Gateway © JDS
Комплекс Hangzhou Gateway © JDS
Комплекс Hangzhou Gateway © JDS
Комплекс Hangzhou Gateway © JDS
Комплекс Hangzhou Gateway © JDS
Комплекс Hangzhou Gateway © JDS
Комплекс Hangzhou Gateway © JDS
Комплекс Hangzhou Gateway © JDS
Комплекс Hangzhou Gateway © JDS
Комплекс Hangzhou Gateway © JDS
Комплекс Hangzhou Gateway © JDS
Комплекс Hangzhou Gateway © JDS
Комплекс Hangzhou Gateway © JDS
Комплекс Hangzhou Gateway © JDS
Комплекс Hangzhou Gateway © JDS
Комплекс Hangzhou Gateway © JDS