Размещено на портале Архи.ру (www.archi.ru)

26.06.2017

Небосвод сложного профиля

Нина Фролова
Объект:
Шоу-рум Hyundai MotorStudio в Кояне
Адрес:
Южная Корея, None, Коян.
Мастерская:
Delugan Meissl

Шоу-рум Hyundai MotorStudio в городе-спутнике Сеула Кояне по проекту бюро Delugan Meissl.

Шоу-рум Hyundai MotorStudio в Кояне © Katsuhisa Kida
Шоу-рум Hyundai MotorStudio в Кояне © Katsuhisa Kida

Австрийские архитекторы Delugan Meissl выиграли конкурс на проект шоу-рум для автоконцерна Hyundai в 2011. В результате, их замысел не только был воплощен в виде здания общей площадью почти 65 тыс. м2, но и лег в основу «руководства по бренд-идентичности» компании: с 2014 шоу-румы серии MotorStudio по всему миру реализуются согласно идеям венской мастерской, прославившейся благодаря своему музею Porsche.
 
Шоу-рум Hyundai MotorStudio в Кояне © Katsuhisa Kida
Шоу-рум Hyundai MotorStudio в Кояне © Katsuhisa Kida

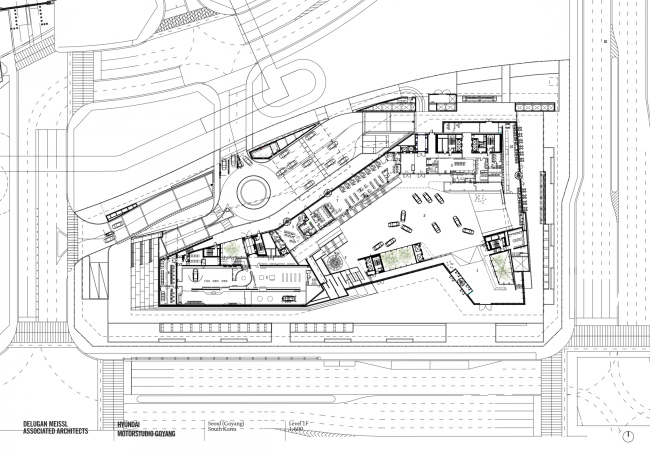
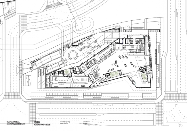
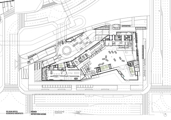
Комплекс в Кояне включает в себя не только зону продаж и выставок («Автомобильный парк развлечений»), но и бренд-центр, сервисный центр, офисы. Они расположены слоями: всего в постройке 14 надземных и пять подземных уровней.
 
Шоу-рум Hyundai MotorStudio в Кояне © Katsuhisa Kida
Шоу-рум Hyundai MotorStudio в Кояне © Katsuhisa Kida

Ее структура, как и у других новых Hyundai MotorStudio, включает в себя «Ландшафт» и «Небосвод с профилем». Первое – это открытое, проницаемое пространство, где выставлены машины, на которые можно взглянуть с разных перспектив, как в настоящем пейзаже. Под «небосводом» подразумевается сложная по форме надземная часть постройки, снизу остекленная, сверху – обшитая металлическими панелями. Несущая конструкция состоит из четырех бетонных узлов (большого и трех малых) и шести «кластеров» из стальных опор.
Шоу-рум Hyundai MotorStudio в Кояне © Katsuhisa Kida
Шоу-рум Hyundai MotorStudio в Кояне © Katsuhisa Kida
Шоу-рум Hyundai MotorStudio в Кояне © Katsuhisa Kida
Шоу-рум Hyundai MotorStudio в Кояне © Katsuhisa Kida
Шоу-рум Hyundai MotorStudio в Кояне © Katsuhisa Kida
Шоу-рум Hyundai MotorStudio в Кояне © Katsuhisa Kida
Шоу-рум Hyundai MotorStudio в Кояне © Katsuhisa Kida
Шоу-рум Hyundai MotorStudio в Кояне © Katsuhisa Kida
Шоу-рум Hyundai MotorStudio в Кояне © Raphael Olivier
Шоу-рум Hyundai MotorStudio в Кояне © Raphael Olivier
Шоу-рум Hyundai MotorStudio в Кояне © Katsuhisa Kida
Шоу-рум Hyundai MotorStudio в Кояне © Katsuhisa Kida
Шоу-рум Hyundai MotorStudio в Кояне © Raphael Olivier
Шоу-рум Hyundai MotorStudio в Кояне © Raphael Olivier
Шоу-рум Hyundai MotorStudio в Кояне © Katsuhisa Kida
Шоу-рум Hyundai MotorStudio в Кояне © Katsuhisa Kida
Шоу-рум Hyundai MotorStudio в Кояне © Katsuhisa Kida
Шоу-рум Hyundai MotorStudio в Кояне © Katsuhisa Kida
Шоу-рум Hyundai MotorStudio в Кояне © Katsuhisa Kida
Шоу-рум Hyundai MotorStudio в Кояне © Katsuhisa Kida
Шоу-рум Hyundai MotorStudio в Кояне © Delugan Meissl Associated Architects
Шоу-рум Hyundai MotorStudio в Кояне © Delugan Meissl Associated Architects
Шоу-рум Hyundai MotorStudio в Кояне © Delugan Meissl Associated Architects
Шоу-рум Hyundai MotorStudio в Кояне © Delugan Meissl Associated Architects
Шоу-рум Hyundai MotorStudio в Кояне © Delugan Meissl Associated Architects
Шоу-рум Hyundai MotorStudio в Кояне © Delugan Meissl Associated Architects
Шоу-рум Hyundai MotorStudio в Кояне © Delugan Meissl Associated Architects
Шоу-рум Hyundai MotorStudio в Кояне © Delugan Meissl Associated Architects
Шоу-рум Hyundai MotorStudio в Кояне © Delugan Meissl Associated Architects
Шоу-рум Hyundai MotorStudio в Кояне © Delugan Meissl Associated Architects
Шоу-рум Hyundai MotorStudio в Кояне © Delugan Meissl Associated Architects
Шоу-рум Hyundai MotorStudio в Кояне © Delugan Meissl Associated Architects