Размещено на портале Архи.ру (www.archi.ru)

05.07.2017

Линза в духе Эшера

Анна Старостина
Объект:
Бизнес-центр «Академик»
Адрес:
Россия, Москва. просп. Вернадского, вл. 41
Архитектор:
Юлий Борисов
Мастерская:
UNK
Авторский коллектив:
Руководитель авторского коллектива – Юлий Борисов
Архитекторы: Лоренцо Маттана, Илья Волков

Архитекторы UNK project реанимировали неудобный, но перспективный участок рядом с метро «Проспект Вернадского», разместив на нем бизнес-центр «Академик». Продуманная функциональная программа, технологические новшества и особое внимание к формированию идентичности здания позволили успешно решить все проблемы.

Бизнес-центр «Академик»
Бизнес-центр «Академик»
Проект © UNK project

Участок на Проспекте Вернадского, 41, рядом с одноименной станцией метро, достаточно сложный и несчастливый, но при этом интересный и перспективный. Он узок и вытянут вдоль проспекта, зажат между проезжей частью и зданием Московского регионального союза потребительской кооперации (МСПК). Рельеф местности с перепадом высот около 3 м дополнительно осложняет ситуацию. В середине 1990-х была предпринята попытка застройки участка, но дальше возведения части конструкций дело не пошло. Поскольку консервацией их никто не занимался, конструкции утратили функциональность, их демонтировали, от недостроенного здания-предшественника сохранили лишь значительную часть фундамента. Проект нового многофункционального комплекса «Академик», который должен будет разместиться на этом фундаменте, разработан бюро UNK project. Архитекторы постарались как можно точнее попасть в контекст довольно сложного фрагмента городской ткани.
Бизнес-центр «Академик»
Бизнес-центр «Академик»
Эскиз © UNK project

Видимая часть здания состоит из прямоугольного стилобата, высотой в 4 этажа, и 14-этажного основного объема, решенного в форме линзы. Вертикальные алюминиевые ламели, использованные для отделки верхнего объема, спускаются вниз, объединяя обе части. Такое решение позволило создать эффектный уличный фасад-картину, на котором при помощи ламелей другого сечения будет «нарисован» схематичный портрет академика Владимира Вернадского. Форма тонкой линзы с острыми краями, живо напоминающими известный угол здания Генштаба Карло Росси, позволила сохранить виды на стоящее в глубине здание МСПК и не нарушить его инсоляцию. Более того, архитекторам удалось наладить диалог с соседним зданием. Оно построено в 1986 году и сформировано вытянутым прямоугольником основного объема и массивным скругленным входом. Таким образом между соседними постройками возникает целая серия противопоставлений и параллелей. Наконец, простота и ясность форм, белый цвет фасадов и алюминий в отделке помогают вписать современный и совершенно самостоятельный объект в контекст позднесоветского модернизма, очень важного, если не сказать определяющего, для юго-запада Москвы. «Район станций метро «Проспект Вернадского» и «Юго-западная» обладает вполне сформировавшимся «лицом», ставить здесь дома в 20-30 этажей со скатными крышами и кирпичной облицовкой несколько странно, просто неуважительно, – говорит руководитель бюро UNK project Юлий Борисов. – Но проанализировав ситуацию, в которой будет существовать постройка, мы сразу поняли, что не будем пытаться копировать какие-то приемы (слепое подражание вообще редко приводит к качественному результату), но постараемся остаться предельно корректными к окружающей архитектуре 1960–1980-х годов. Для меня, как не только практикующего архитектора, но и преподавателя кафедры реконструкции и реставрации МАРХИ, тема воссоздания городской ткани и взаимоотношений исторического контекста и новых объектов вообще очень важна и интересна».
Бизнес-центр «Академик»
Бизнес-центр «Академик»
Проект © UNK project
Бизнес-центр «Академик»
Бизнес-центр «Академик»
Проект © UNK project

Структура будущего здания при этом сложна и многослойна. Предусмотрены два подземных этажа, которые полностью займет автостоянка. Высокий первый этаж благодаря большим окнам-витринам окажется тесно связан с городским пространством, в нем разместятся магазины, кафе и входные зоны всех функциональных направлений. Несмотря на очень близкое расположение проезжей части, архитекторам удалось создать вполне комфортную общественную зону и даже разместить здесь примечательный скульптурный объект – гигантские 12-метровые очки, повторяющие узнаваемую форму оправы академика Вернадского. Ярко-красный авторский арт-объект задуман не только как еще один прием формирования идентичности здания, но и как место притяжения внимания.
Бизнес-центр «Академик»
Бизнес-центр «Академик»
Проект © UNK project

Второй и третий этажи займет еще одна парковка с отдельным въездом – иначе все необходимые 520 мест разместить никак не удавалось. Четвертый, верхний этаж стилобатной части, отдан под ресторан и небольшую гостиницу. Ну а верхний линзоподобный объем полностью предназначен под офисы. Несмотря на необычную форму с острыми углами, архитекторам удалось максимально снизить потери и добиться высокой эффективности использования площадей. Важную роль в этом играет расположение ядра, которое прижато к центральной, выпуклой части тыльного фасада. Это позволило раскрыть все офисные этажи в сторону парка и запланировать панорамные лифты и холлы с естественным освещением. Благодаря некоторым нестандартным решениям, например, несколько неожиданному, но, как оказалось, вполне возможному с точки зрения строительных норм и правил совмещению лифтовых холлов и эвакуационных коридоров, каждый из рабочих этажей может быть разбит на четыре самостоятельных блока. А сравнительно небольшая глубина верхней пластины позволит доставить естественный свет абсолютно во все офисные зоны.
Бизнес-центр «Академик». Схема плана типового этажа (6-18 этажи)
Бизнес-центр «Академик». Схема плана типового этажа (6-18 этажи)
Проект © UNK project
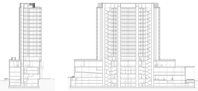
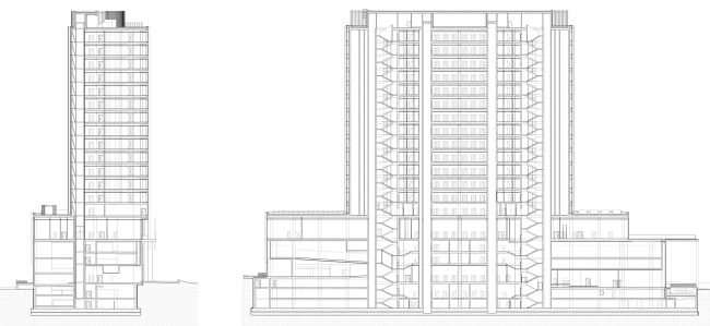
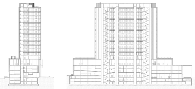
Бизнес-центр «Академик». Разрезы
Бизнес-центр «Академик». Разрезы
Проект © UNK project
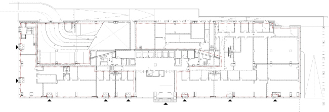
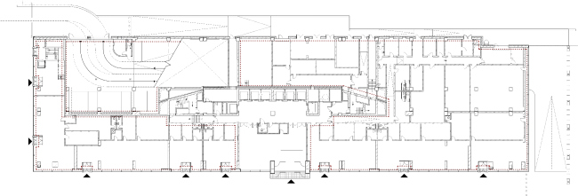
Бизнес-центр «Академик». Первый этаж
Бизнес-центр «Академик». Первый этаж
Проект © UNK project

Очевидно, что такая многофункциональная и предельно компактная, похожая на слоеный торт, структура потребовала очень сложной, идеально просчитанной компоновки, внимания к каждой детали и довольно смелых технологических решений. За счет естественного рельефа оказалось возможным отказаться от рамп на отданных под парковку этажах и сделать просто скатные заезды и выезды. Помещения первого этажа также не расположены на одном уровне, а следуют за рельефом, так что везде предусмотрен удобный вход прямо с улицы. Экономия площадей получилась значительной, но сложнейшие расчеты потребовали времени и дополнительных усилий конструкторов и инженеров. Еще одно технологическое новшество – использование особых большепролетных конструкций. Для того, чтобы добиться впечатляющего расстояния шириной почти 12 метров, архитекторы заимствовали из торгового строительства технологию с залитым в перекрытия пластиковым пустотообразователем. В результате удалось существенно повысить эффективность парковок и создать максимально гибкое офисное пространство.

«Если бы бюро не использовало технологию BIM при проектировании, мы вряд ли бы смогли точно просчитать весь этот многомерный пазл в духе Маурица Эшера да еще и грамотно встроить в него инженерные системы, – уверен Юлий Борисов. – Правильность расчетов проверяли сразу две независимые команды специалистов, и я очень благодарен заказчикам за понимание, доверие и терпение».

Строительство начато, завершить его планируется к началу 2020.