Размещено на портале Архи.ру (www.archi.ru)

17.06.2017

Университет для акробатов

Алина Измайлова
Объект:
Американская цирковая академия
Адрес:
США, None, Портленд.
Мастерская:
Ofis

Архитектурные бюро Höweler + Yoon и Ofis представили свой проект для первого в США циркового вуза.

Бостонская студия Höweler + Yoon и словенцы Ofis представили проект здания для циркового училища в Портленде. Он станет первым аккредитованным вузом США в области циркового искусства. Помимо академической институции в его стенах разместится арена на 500 зрителей.
 

Американская цирковая академия, проект. Изображение предоставлено Höweler + Yoon Architecture
Американская цирковая академия, проект. Изображение предоставлено Höweler + Yoon Architecture
Американская цирковая академия, проект. Изображение предоставлено Höweler + Yoon Architecture
Американская цирковая академия, проект. Изображение предоставлено Höweler + Yoon Architecture

Форму здания архитекторы «позаимствовали» у традиционных цирковых шатров, но по-своему модернизировали: часть конструкции возвышается над землёй на высоких стройных колоннах. Благодаря этому решению появился внутренний дворик, наполненный естественным светом; его авторы предлагают использовать как дополнительную площадку для выступлений.
Американская цирковая академия, проект. Изображение предоставлено Höweler + Yoon Architecture
Американская цирковая академия, проект. Изображение предоставлено Höweler + Yoon Architecture
Американская цирковая академия, проект. Изображение предоставлено Höweler + Yoon Architecture
Американская цирковая академия, проект. Изображение предоставлено Höweler + Yoon Architecture

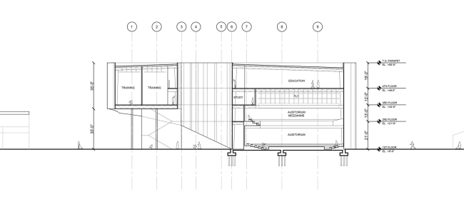
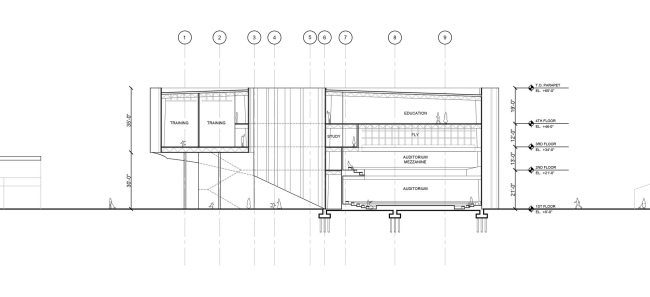
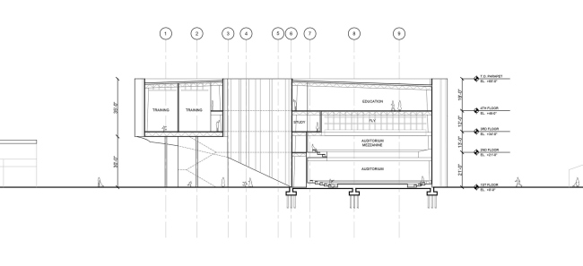
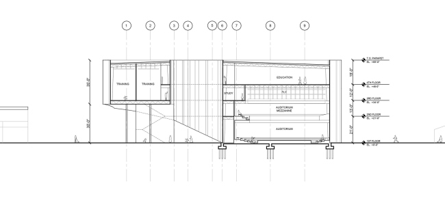
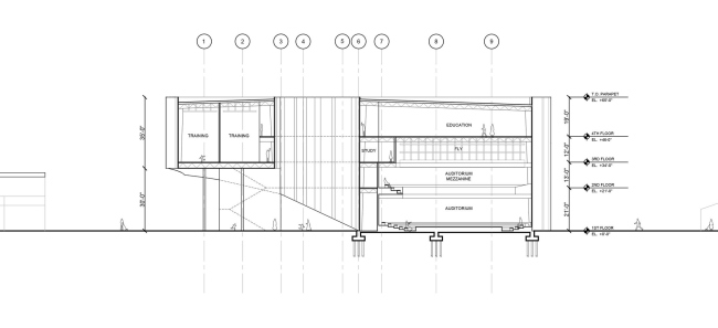
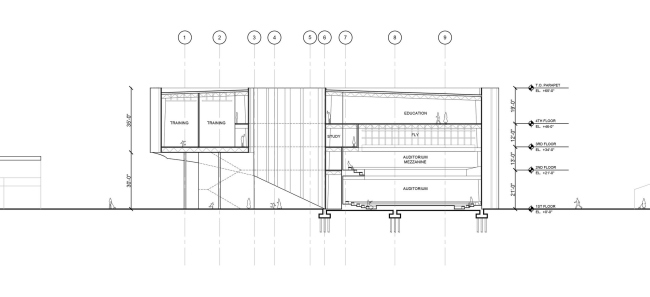
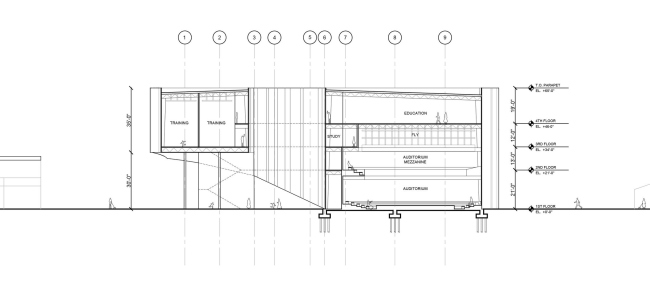
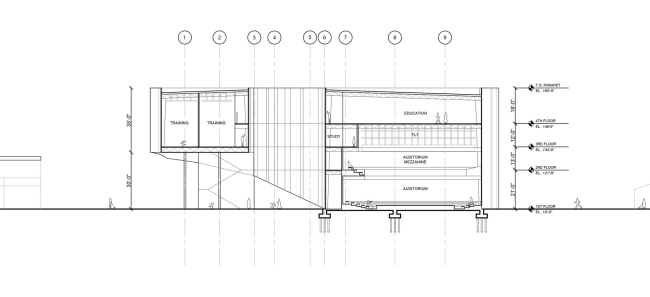
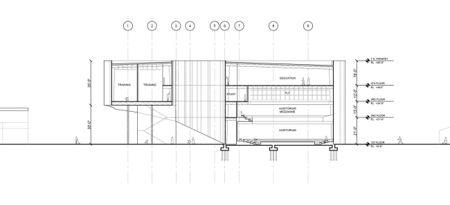
На первом этаже расположен вестибюль, который ведёт в основной зал, в верхней части здания – сложная система помещений, где есть и учебные классы, и аудитории для практических занятий, а также библиотека, медиацентр и административные помещения. Помимо этого на верхних этажах оборудованы большие залы для занятий акробатикой. Внешний и внутренний фасад залов выполнены полностью из стекла, чтобы зрители могли наблюдать за тренировками и выступлениями артистов.
Американская цирковая академия, проект. Изображение предоставлено Höweler + Yoon Architecture
Американская цирковая академия, проект. Изображение предоставлено Höweler + Yoon Architecture
Американская цирковая академия, план. Изображение предоставлено Höweler + Yoon Architecture
Американская цирковая академия, план. Изображение предоставлено Höweler + Yoon Architecture
Американская цирковая академия, план. Изображение предоставлено Höweler + Yoon Architecture
Американская цирковая академия, план. Изображение предоставлено Höweler + Yoon Architecture
Американская цирковая академия, план. Изображение предоставлено Höweler + Yoon Architecture
Американская цирковая академия, план. Изображение предоставлено Höweler + Yoon Architecture
Американская цирковая академия, план. Изображение предоставлено Höweler + Yoon Architecture
Американская цирковая академия, план. Изображение предоставлено Höweler + Yoon Architecture
Американская цирковая академия, план. Изображение предоставлено Höweler + Yoon Architecture
Американская цирковая академия, план. Изображение предоставлено Höweler + Yoon Architecture