Размещено на портале Архи.ру (www.archi.ru)

08.06.2017

Башня и квартал

Объект:
ЖК «На Декабристов»
Адрес:
Россия, Новосибирск. ул. Якушева, Декабристов, Сакко и Ванцетти
Мастерская:
DROM
Авторский коллектив:
Мастер-план, Массинг и фасады: DROM Architects
Партнеры: Тимур Каримуллин,Софья Куценко, Тимур Шабаев
Архитекторы: Агнешка Баткевич (Agnieszka Batkiewicz), Андреа Гови, Элиф Гозде Озтопрак (Elif Gozde Oztoprak), Рос Пулскенс (Roos Pulskens)
Визуализация: Данир Сафиуллин, Ирина Сафиуллина

На улице Якушева в Новосибирске строится жилой комплекс по проекту бюро DROM.

ЖК «На Декабристов». Аксонометрический вид
ЖК «На Декабристов». Аксонометрический вид
© DROM



Описание архитекторов

В Новосибирске, как и во многих других городах России, так называемый частный сектор в настоящее время быстро заменяется на многоэтажное жилье. Но в подавляющем большинстве случаев новое строительство продолжает воспроизводить прототип советского микрорайона – упуская возможность создать живую городскую среду. В нашем проекте комплекса жилых домов на улице Якушева в Новосибирске мы поставили себе целью переломить эту тенденцию – в жестких рамках технических и экономических ограничений найти особый характер застройки и открытых пространств, создать новый органичный фрагмент городской ткани, задавать тон для дальнейшего развития близлежащих территорий.
ЖК «На Декабристов». Вид квартала
ЖК «На Декабристов». Вид квартала
© DROM

Для проектирования мы получили участок с очень изрезанной формой – результат нормативных ограничений, а также наличия нескольких собственников, чья земля находилась на разных стадиях приобретения. Нашим ответом на ограничения участка, а также на необходимость поэтапного строительства, стало предложение рассматривать комплекс как два независимых проекта – каждый со своей идентичностью.
ЖК «На Декабристов». Вид башни
ЖК «На Декабристов». Вид башни
© DROM

Комплекс представляет собой соединение двух контрастных типологий: открытый квартал и башня. Наличие последней позволило нам перераспределить плотность таким образом, чтобы ограничить основной периметр квартала пятью этажами – задавая камерный масштаб окружающим улицам. Оба проекта связаны между собой ожерельем открытых озелененных пространств. Мы организуем новую пешеходную связь между двумя зданиями, что делает структуру района более пористой и доступной.
ЖК «На Декабристов». Вид квартала и башни © DROM
ЖК «На Декабристов». Вид квартала и башни © DROM
© DROM

Башня:
Башня визуально разделена на две тонкие пластины. Это помогает сделать ее пропорции более стройными, а также раскрыть центральный коридор, чтобы привнести туда дневной свет и визуально связать его с улицей. В темное время суток «разрез» будет светиться изнутри, придавая зданию запоминающийся облик. Пластины башни смещаются по горизонтали и вертикали, акцентируя вход на уровне земли и создавая террасы для верхних квартир пентхауса. Южный фасад приобретает глубину: большие «французские» балконы раскрываются в сторону захватывающего дух вида на реку.
ЖК «На Декабристов». Вид квартала по ул. Декабристов
ЖК «На Декабристов». Вид квартала по ул. Декабристов
© DROM

Квартал:
Подобно жеоде, открытый квартал имеет своего рода защитную оболочку, разделяющую сферы частного и общественного. Вдоль западного, северного и восточного фасадов П-образный корпус создает единую линию уличных фронтов. Вдоль южного фасада цоколь формирует барьер, поднимая двор над уровнем улицы и открывая оттуда вид на реку. Материалы подчеркивают эту трактовку: кирпич по периметральным и белая штукатурка «с искрой» – на внутренних фасадах.
ЖК «На Декабристов». Фасад квартала по ул. Декабристов
ЖК «На Декабристов». Фасад квартала по ул. Декабристов
© DROM

Ключевым для проекта было использование модульной системы. Планировки построены на сетке 3 450 х 3 450 мм. Окна максимально типизированы, что позволяет снизить себестоимость и реализовать детали более качественно.
Интересным вызовом дла авторов проекта стала реализация больших окон «в пол». Как известно, российские нормы требуют наличие горизонтального простенка в 1,2 м между окнами разных этажей. Мы специально разработали детали окон, чтобы обойти эту норму. На южном фасаде башни и кирпичных фасадах квартала противопожарные выносы плиты перекрытия в 300 мм образуют «французские» балконы. А на дворовом фасаде квартала были сделаны уступы в 300 мм, которые также формируют периметральные балконы вдоль всего двора.
ЖК «На Декабристов». Зеленая пешеходная связь между кварталом и башней
ЖК «На Декабристов». Зеленая пешеходная связь между кварталом и башней
© DROM



Также вызовом явилось требование заказчика снизить толщину монолитного безбалочного перекрытия в башне. Для обеспечения жесткости конструкции пришлось часть пилонов установить в плоскость фасада. Мы артикулировали эти пилоны в форме выкружки.

Башня:
Жилье – одно-двух спальные квартиры 40-100м2, двухэтажные пентхаусы ~130м2
Ритейл – юниты 40-50м2
Продаваемая площадь: – 5 450 м2

Квартал:
Жилье – студии, одно-двух-трех спальные квартиры 40-70м2,
Ритейл – юниты 60-90м2
Фитнесс с бассейном – 570м2
Двухэтажная подземная парковка – 167 машиномест
Продаваемая площадь: – 12 850 м2
Башня и квартал на Якушева. Генеральный план, 
1. Башня
2. Квартал
3. ТП
4. Строящийся жилой дом
5. Квартал «На Декабристов», компания «Брусника»
Башня и квартал на Якушева. Генеральный план, 1. Башня 2. Квартал 3. ТП 4. Строящийся жилой дом 5. Квартал «На Декабристов», компания «Брусника»
© DROM
Башня и квартал на Якушева. Развертка по проектируемому бульвару
Башня и квартал на Якушева. Развертка по проектируемому бульвару
© DROM
Развертка по улице Сакко и Ванцетти
Развертка по улице Сакко и Ванцетти
© DROM
Башня и квартал на Якушева. Коллекция открытых пространств
Башня и квартал на Якушева. Коллекция открытых пространств
© DROM
Башня и квартал на Якушева. Балконы с западной стороны квартала
Башня и квартал на Якушева. Балконы с западной стороны квартала
© DROM
Башня и квартал на Якушева. Аксонометрия уличного фасада квартала
Башня и квартал на Якушева. Аксонометрия уличного фасада квартала
© DROM
Башня и квартал на Якушева. Аксонометрия террасированного дворового фасада квартала
Башня и квартал на Якушева. Аксонометрия террасированного дворового фасада квартала
© DROM
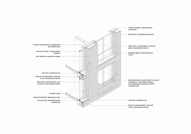
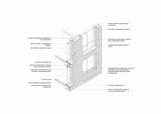
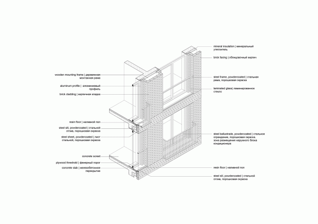
Башня и квартал на Якушева. Фрагмент террасированного дворового фасада квартала
Башня и квартал на Якушева. Фрагмент террасированного дворового фасада квартала
© DROM
Башня и квартал на Якушева. Фрагмент уличного фасада квартала
Башня и квартал на Якушева. Фрагмент уличного фасада квартала
© DROM
Башня и квартал на Якушева. Квартал. План парковки
Башня и квартал на Якушева. Квартал. План парковки
© DROM
Башня и квартал на Якушева. Квартал. План 1 этажа
Башня и квартал на Якушева. Квартал. План 1 этажа
© DROM
Башня и квартал на Якушева. Квартал. План 2 этажа
Башня и квартал на Якушева. Квартал. План 2 этажа
© DROM
Башня и квартал на Якушева. Квартал. План 3 этажа
Башня и квартал на Якушева. Квартал. План 3 этажа
© DROM
Башня и квартал на Якушева. Квартал. План 6-9 этажей
Башня и квартал на Якушева. Квартал. План 6-9 этажей
© DROM
Башня и квартал на Якушева. Квартал. Поперечный разрез
Башня и квартал на Якушева. Квартал. Поперечный разрез
© DROM
Башня и квартал на Якушева. Квартал. Выход во двор и подъездная лестница
Башня и квартал на Якушева. Квартал. Выход во двор и подъездная лестница
© DROM
Башня и квартал на Якушева. Квартал. Встроенный плавательный бассейн
Башня и квартал на Якушева. Квартал. Встроенный плавательный бассейн
© DROM
Башня и квартал на Якушева. Балконы с южной стороны башни
Башня и квартал на Якушева. Балконы с южной стороны башни
© DROM
Башня и квартал на Якушева. Балконы с южной стороны башни
Башня и квартал на Якушева. Балконы с южной стороны башни
© DROM
Башня и квартал на Якушева. Фрагмент южного фасада башни
Башня и квартал на Якушева. Фрагмент южного фасада башни
© DROM
Башня и квартал на Якушева. Башня. План уровня земли
Башня и квартал на Якушева. Башня. План уровня земли
© DROM
Башня и квартал на Якушева. Башня. План типового этажа
Башня и квартал на Якушева. Башня. План типового этажа
© DROM
Башня и квартал на Якушева. Башня. План первого уровня пентхаусов на 16 этаже
Башня и квартал на Якушева. Башня. План первого уровня пентхаусов на 16 этаже
© DROM
Башня и квартал на Якушева. Башня. План второго  уровня пентхаусов на 17 этаже
Башня и квартал на Якушева. Башня. План второго уровня пентхаусов на 17 этаже
© DROM
Башня и квартал на Якушева. Башня. Разрез
Башня и квартал на Якушева. Башня. Разрез
© DROM