Размещено на портале Архи.ру (www.archi.ru)

06.06.2017

Каждому – по террасе

Арсений Матвеев
Объект:
Реконструкция корпусов G, H, I комплекса Cité du Grand Parc
Адрес:
Франция, None, Бордо.
Мастерская:
Lacaton & Vassal

Деликатная реконструкция социальных многоэтажек в Бордо от бюро Lacaton & Vassal, Фредерика Друо и Кристофа Ютена.

Реконструкция корпусов G, H, I комплекса Cité du Grand Parc
Реконструкция корпусов G, H, I комплекса Cité du Grand Parc
Фотография © Philippe Ruault

Крупный послевоенный комплекс социального жилья Cité du Grand Parc планировался к сносу как морально устаревший, однако в 2007 оказался в составе территории «Порт Луны», признанной объектом Всемирного наследия ЮНЕСКО. В целях сохранения ансамбля и повышения там качества жизни городские власти приняли программу реновации района. А для обновления первых трёх зданий – мрачных 11–16-этажных корпусов в общей сложности на 530 квартир, выбрали проект бюро Lacaton & Vassal, предложивших значительные улучшения при минимальном вмешательстве. Напомним, что эти архитекторы в 2011 привлекли всеобщее внимание своей реконструкцией жилой башни «Тур Буа Ле Претр» в Париже. В Бордо они действовали по схожей схеме, однако в значительно большем масштабе.
 
Реконструкция корпусов G, H, I комплекса Cité du Grand Parc © Philippe Ruault
Реконструкция корпусов G, H, I комплекса Cité du Grand Parc © Philippe Ruault

В Cité du Grand Parc основным новшеством стали зимние сады и балконы для каждой квартиры. Для обособления от конструкций зданий, многоярусные «этажерки», собранные краном из модулей-террас, поставили на собственные V-образные опоры вплотную к южным фасадам широтных корпусов H и I; дом G, где квартиры односторонние, дополнен террасами с обеих сторон. Глубина пристроек составила 3,8 метра, а дополнительная площадь для каждой квартиры – 25-30 м2. В результате удалось улучшить освещённость, функциональную гибкость квартир и обеспечить панорамные виды.
 
Реконструкция корпусов G, H, I комплекса Cité du Grand Parc © Philippe Ruault
Реконструкция корпусов G, H, I комплекса Cité du Grand Parc © Philippe Ruault

На террасы обеспечен доступ из всех прилегающих комнат. Маленькие оконные проёмы в старых наружных стенах прорезаны до пола и закрыты сдвижными дверьми со стеклопакетами, а на месте лоджий сделано остекление во всю стену. На самих террасах смонтированы сдвижные экраны из поликарбоната, отделяющие зимние сады от балконов со стеклянным ограждением. Двери из комнат дополнили шторами, помогающими сохранять тепло, а экраны садов – затеняющими. Реновация позволила улучшить естественную терморегуляцию квартир, повысить теплоизоляцию до современных требований.
 
Реконструкция корпусов G, H, I комплекса Cité du Grand Parc © Philippe Ruault
Реконструкция корпусов G, H, I комплекса Cité du Grand Parc © Philippe Ruault

Также в рамках проекта в каждой квартире отремонтировали санузлы и электропроводку. Во всех секциях заменили лифты, причём по одной новой шахте пришлось добавить снаружи: благодаря облицовке поликарбонатом, эти шахты стали выразительными вертикальными акцентами на белом фоне. Входные группы на первых этажах обзавелись прозрачными стенами, обновлено благоустройство прилегающей территории.
 
Реконструкция корпусов G, H, I комплекса Cité du Grand Parc © Philippe Ruault
Реконструкция корпусов G, H, I комплекса Cité du Grand Parc © Philippe Ruault

Общая площадь дополнений (бюджет 27,2 млн евро), включая 8 новых квартир (дополнительные 1,2 миллиона), составила 23 500 м2: более половины изначальной площади корпусов. Реконструкция продолжалась несколько лет, однако жильцы все время оставались в своих квартирах, и особое внимание было уделено информационному сопровождению проекта и участию в нем жителей. Помимо организации собраний, печатных материалов и сайта, перед началом работ была сооружена «пилотная» терраса для демонстрации и обкатки принципа реконструкции.
Реконструкция корпусов G, H, I комплекса Cité du Grand Parc © Philippe Ruault
Реконструкция корпусов G, H, I комплекса Cité du Grand Parc © Philippe Ruault
Реконструкция корпусов G, H, I комплекса Cité du Grand Parc © Philippe Ruault
Реконструкция корпусов G, H, I комплекса Cité du Grand Parc © Philippe Ruault
Реконструкция корпусов G, H, I комплекса Cité du Grand Parc
Реконструкция корпусов G, H, I комплекса Cité du Grand Parc
Фотография © Philippe Ruault
Реконструкция корпусов G, H, I комплекса Cité du Grand Parc © Philippe Ruault
Реконструкция корпусов G, H, I комплекса Cité du Grand Parc © Philippe Ruault
Реконструкция корпусов G, H, I комплекса Cité du Grand Parc © Philippe Ruault
Реконструкция корпусов G, H, I комплекса Cité du Grand Parc © Philippe Ruault
Реконструкция корпусов G, H, I комплекса Cité du Grand Parc © Philippe Ruault
Реконструкция корпусов G, H, I комплекса Cité du Grand Parc © Philippe Ruault
Реконструкция корпусов G, H, I комплекса Cité du Grand Parc © Philippe Ruault
Реконструкция корпусов G, H, I комплекса Cité du Grand Parc © Philippe Ruault
Реконструкция корпусов G, H, I комплекса Cité du Grand Parc © Philippe Ruault
Реконструкция корпусов G, H, I комплекса Cité du Grand Parc © Philippe Ruault
Реконструкция корпусов G, H, I комплекса Cité du Grand Parc © Philippe Ruault
Реконструкция корпусов G, H, I комплекса Cité du Grand Parc © Philippe Ruault
Реконструкция корпусов G, H, I комплекса Cité du Grand Parc © Philippe Ruault
Реконструкция корпусов G, H, I комплекса Cité du Grand Parc © Philippe Ruault
Реконструкция корпусов G, H, I комплекса Cité du Grand Parc / Lacaton & Vassal, 2017
Реконструкция корпусов G, H, I комплекса Cité du Grand Parc / Lacaton & Vassal, 2017
© Philippe Ruault
Реконструкция корпусов G, H, I комплекса Cité du Grand Parc © Philippe Ruault
Реконструкция корпусов G, H, I комплекса Cité du Grand Parc © Philippe Ruault
Реконструкция корпусов G, H, I комплекса Cité du Grand Parc © Philippe Ruault
Реконструкция корпусов G, H, I комплекса Cité du Grand Parc © Philippe Ruault
Реконструкция корпусов G, H, I комплекса Cité du Grand Parc © Philippe Ruault
Реконструкция корпусов G, H, I комплекса Cité du Grand Parc © Philippe Ruault
Реконструкция корпусов G, H, I комплекса Cité du Grand Parc © Philippe Ruault
Реконструкция корпусов G, H, I комплекса Cité du Grand Parc © Philippe Ruault
Реконструкция корпусов G, H, I комплекса Cité du Grand Parc © Philippe Ruault
Реконструкция корпусов G, H, I комплекса Cité du Grand Parc © Philippe Ruault
Реконструкция корпусов G, H, I комплекса Cité du Grand Parc © Philippe Ruault
Реконструкция корпусов G, H, I комплекса Cité du Grand Parc © Philippe Ruault
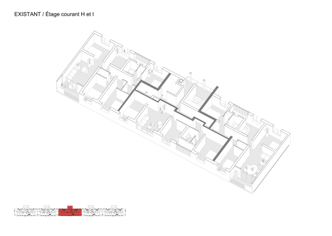
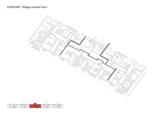
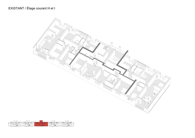
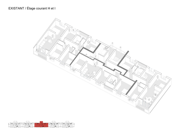
Реконструкция корпусов G, H, I комплекса Cité du Grand Parc © Lacaton & Vassal
Реконструкция корпусов G, H, I комплекса Cité du Grand Parc © Lacaton & Vassal
Реконструкция корпусов G, H, I комплекса Cité du Grand Parc © Lacaton & Vassal
Реконструкция корпусов G, H, I комплекса Cité du Grand Parc © Lacaton & Vassal
Реконструкция корпусов G, H, I комплекса Cité du Grand Parc © Lacaton & Vassal
Реконструкция корпусов G, H, I комплекса Cité du Grand Parc © Lacaton & Vassal
Реконструкция корпусов G, H, I комплекса Cité du Grand Parc © Lacaton & Vassal
Реконструкция корпусов G, H, I комплекса Cité du Grand Parc © Lacaton & Vassal
Реконструкция корпусов G, H, I комплекса Cité du Grand Parc © Lacaton & Vassal
Реконструкция корпусов G, H, I комплекса Cité du Grand Parc © Lacaton & Vassal
Реконструкция корпусов G, H, I комплекса Cité du Grand Parc © Lacaton & Vassal
Реконструкция корпусов G, H, I комплекса Cité du Grand Parc © Lacaton & Vassal
Реконструкция корпусов G, H, I комплекса Cité du Grand Parc © Lacaton & Vassal
Реконструкция корпусов G, H, I комплекса Cité du Grand Parc © Lacaton & Vassal
Реконструкция корпусов G, H, I комплекса Cité du Grand Parc © Lacaton & Vassal
Реконструкция корпусов G, H, I комплекса Cité du Grand Parc © Lacaton & Vassal
Реконструкция корпусов G, H, I комплекса Cité du Grand Parc © Lacaton & Vassal
Реконструкция корпусов G, H, I комплекса Cité du Grand Parc © Lacaton & Vassal
Реконструкция корпусов G, H, I комплекса Cité du Grand Parc © Lacaton & Vassal
Реконструкция корпусов G, H, I комплекса Cité du Grand Parc © Lacaton & Vassal
Реконструкция корпусов G, H, I комплекса Cité du Grand Parc © Lacaton & Vassal
Реконструкция корпусов G, H, I комплекса Cité du Grand Parc © Lacaton & Vassal
Реконструкция корпусов G, H, I комплекса Cité du Grand Parc © Lacaton & Vassal
Реконструкция корпусов G, H, I комплекса Cité du Grand Parc © Lacaton & Vassal
Реконструкция корпусов G, H, I комплекса Cité du Grand Parc © Lacaton & Vassal
Реконструкция корпусов G, H, I комплекса Cité du Grand Parc © Lacaton & Vassal