Размещено на портале Архи.ру (www.archi.ru)

25.05.2017

Светильник в кубе: Европа в поисках идентичности

Наталия Домина
Объект:
Здание Europa Европейского совета
Адрес:
Бельгия, None, Брюссель.
Мастерская:
Philippe Samyn and partners

Новая штаб-квартира Европейского совета в Брюсселе, масштабный проект, завершенный в непростое для Евросоюза время – еще один пример сложности воплощения амбициозных архитектурных замыслов в обстановке политической игры.

Здание Europa Европейского совета. Philippe Samyn and partners architects & engineers, LEAD and DESIGN PARTNER.
With Studio Valle Progettazioni architects, Buro Happold Limited engineers. Фото © Quentin Olbrechts
Здание Europa Европейского совета. Philippe Samyn and partners architects & engineers, LEAD and DESIGN PARTNER. With Studio Valle Progettazioni architects, Buro Happold Limited engineers. Фото © Quentin Olbrechts

Названное «Европой», новое здание Европейского совета – современное воплощение образа государственного института в архитектуре и пример экологичной модели строительства. Этот «дом европейских государств-членов ЕС» возник как реакция на необходимость проведения встреч участников Евросоюза в одном месте. Чиновники работают здесь с января 2017 года.
Здание Europa Европейского совета. Philippe Samyn and partners architects & engineers, LEAD and DESIGN PARTNER.
With Studio Valle Progettazioni architects, Buro Happold Limited engineers. Фото © European Union
Здание Europa Европейского совета. Philippe Samyn and partners architects & engineers, LEAD and DESIGN PARTNER. With Studio Valle Progettazioni architects, Buro Happold Limited engineers. Фото © European Union

Этого сооружения ждали десять лет; построено оно было с опозданием в 21 месяц и с на первый взгляд выросшим бюджетом. Итоговая стоимость постройки – 321 млн евро, а первоначальная смета – 240 млн, однако это не было превышением изначально запланированной суммы, а лишь следствием индексации сметы с учетом инфляции. Оригинальная конструкция «Европы» привела к задержкам в ходе строительства, а также к проблемам с оплатой. Однако бюджет новой штаб-квартиры Европейского союза все же оказался гораздо скромнее стоимости нового здания НАТО, расположенного на другой стороне Брюсселя: в его случае речь идет о сумме около миллиарда евро.
Здание Europa Европейского совета. Philippe Samyn and partners architects & engineers, LEAD and DESIGN PARTNER.
With Studio Valle Progettazioni architects, Buro Happold Limited engineers. Фото © European Union
Здание Europa Европейского совета. Philippe Samyn and partners architects & engineers, LEAD and DESIGN PARTNER. With Studio Valle Progettazioni architects, Buro Happold Limited engineers. Фото © European Union

Такие случаи стали частыми в европейском контексте. Нереалистичные прогнозы стоимости и сроков строительства – распространенная проблема государственных заказов. Достаточно вспомнить парижскую филармонию Жана Нувеля, недооцененную в три раза, или Филармонию Herzog & de Meuron в Гамбурге, стройка которой затянулась на семь лет дольше задуманного. Запрос на новаторство и уникальность, характерные для подобных проектов, обычно возникает на базе политических амбиций, которые не позволяют адекватно предсказать затраты или даже заставляют намеренно скрывать их. Но все чаще амбициозные государственные заказы сталкиваются с реальностью кризиса, что ставит под сомнение такой подход к архитектуре.
Здание Europa Европейского совета. Philippe Samyn and partners architects & engineers, LEAD and DESIGN PARTNER.
With Studio Valle Progettazioni architects, Buro Happold Limited engineers. Фото © Marie-Françoise Plissart
Здание Europa Европейского совета. Philippe Samyn and partners architects & engineers, LEAD and DESIGN PARTNER. With Studio Valle Progettazioni architects, Buro Happold Limited engineers. Фото © Marie-Françoise Plissart

Увеличившиеся расходы на здание Европейского совета не ускользнули от внимания евроскептиков и стали очередным поводом для полемики в прессе. К примеру, немецкая газета Bild осудила призывы председателя ЕС Хермана Ван Ромпея к экономии ресурсов, прозвучавшие параллельно с презентацией здания. Британские издания назвали по этой причине Европейский Союз «бюрократическим органом, который тратит экстравагантные суммы»; популярная ежедневная газета Daily Mail, поддержавшая Brexit, не оценила такую архитектурную новизну (и особенно ее стоимость), написав, что «здание стало одним из наиболее очевидных символов расточительства». В 2011 премьер-министр Великобритании Дэвид Кэмерон отозвался о неуместности строительства этого сооружения в контексте кризиса и выступил с инициативой заморозить бюджет ЕС для реализации такого рода проектов.
Здание Europa Европейского совета. Philippe Samyn and partners architects & engineers, LEAD and DESIGN PARTNER.
With Studio Valle Progettazioni architects, Buro Happold Limited engineers. Фото © Thierry Henrard
Здание Europa Европейского совета. Philippe Samyn and partners architects & engineers, LEAD and DESIGN PARTNER. With Studio Valle Progettazioni architects, Buro Happold Limited engineers. Фото © Thierry Henrard

Однако, если вспомнить предысторию проекта, идея создания нового пространства для заседаний Совета пришла далеко не вчера, и обстановка на континенте тогда была совсем иной. В 2001 страны-участники ЕС, в том числе позже осудившая проект Британия, поддержали инициативу – построить новую штаб-квартиру для Совета. Его предыдущее здание, корпус «Юстус Липсиус», по площади в три раза меньше новой «Европы»: оно было спроектировано в середине 1980-х, когда Жак Ширак еще не предложил проводить все встречи в Брюсселе, а ЕС готовился к росту до 12 или даже 15 членов, но никак не до 28-ми.
Здание Europa Европейского совета. Philippe Samyn and partners architects & engineers, LEAD and DESIGN PARTNER.
With Studio Valle Progettazioni architects, Buro Happold Limited engineers. Фото © Marie-Françoise Plissart
Здание Europa Европейского совета. Philippe Samyn and partners architects & engineers, LEAD and DESIGN PARTNER. With Studio Valle Progettazioni architects, Buro Happold Limited engineers. Фото © Marie-Françoise Plissart

Но после договора в Ницце в 2004 Брюссель был официально назначен столицей ЕС, и стало очевидно, что в городе нет пространств для всех необходимых мероприятий. Бельгийское государство как заказчик организовало международный конкурс на новое здание; в январе 2005 года были отобраны 25 проектов, шесть из которых вышли в финал. По результатам второго этапа конкурса, длившегося три месяца, грандиозный проект в 71 тысячу квадратных метров был поручен бельгийским архитекторам Philippe Samyn and partners в сотрудничестве со студией Valle Progettazioni (Италия) и инженерами Buro Happold (Великобритания).
Здание Europa Европейского совета. Philippe Samyn and partners architects & engineers, LEAD and DESIGN PARTNER.
With Studio Valle Progettazioni architects, Buro Happold Limited engineers. Фото © Marie-Françoise Plissart
Здание Europa Европейского совета. Philippe Samyn and partners architects & engineers, LEAD and DESIGN PARTNER. With Studio Valle Progettazioni architects, Buro Happold Limited engineers. Фото © Marie-Françoise Plissart

Одним из конкурсных критериев было соответствие проекта принципам устойчивого развития. «Мы должны были разработать проект с учетом внимательного отношения к окружающей среде, и в то же время создать архитектурный символ», – вспоминает Филипп Самен. Образ здания – это «светильник в стеклянном абажуре», как окрестил автор свой эллипсоидный объем внутри прозрачного куба, который освещает в ночное время Европейский квартал в неудачно урбанизированной зоне. Штаб-квартира находится в «административном гетто», обширной монофункциональной территории без четкого характера, которая простирается на три квадратных километра. Здесь каждый день трудятся 100 тысяч «еврократов». Для горожан это – безликая часть Брюсселя, которая страдает отсутствием оригинальности, что вызвано полным подчинением офисной архитектуры финансовым соображениям.
Здание Europa Европейского совета. Philippe Samyn and partners architects & engineers, LEAD and DESIGN PARTNER.
With Studio Valle Progettazioni architects, Buro Happold Limited engineers. Фото © Marie-Françoise Plissart
Здание Europa Европейского совета. Philippe Samyn and partners architects & engineers, LEAD and DESIGN PARTNER. With Studio Valle Progettazioni architects, Buro Happold Limited engineers. Фото © Marie-Françoise Plissart

«Как правило, сооружения подобного значения, к примеру, Белый дом, помещают в основании километровой перспективы, по принципу Версаля. В случае этого проекта Европейский совет принял решение разместить постройку в месте с точки зрения архитектуры ничем не примечательном. Здание расположено вдоль улицы Закона (рю де Луа), которая, нужно отметить, – «проточный канал» для машин. Это жест трогательной скромности», – рассуждает Самен.
Здание Europa Европейского совета. Philippe Samyn and partners architects & engineers, LEAD and DESIGN PARTNER.
With Studio Valle Progettazioni architects, Buro Happold Limited engineers. Фото © Marie-Françoise Plissart
Здание Europa Европейского совета. Philippe Samyn and partners architects & engineers, LEAD and DESIGN PARTNER. With Studio Valle Progettazioni architects, Buro Happold Limited engineers. Фото © Marie-Françoise Plissart

Строительство этого объекта представляло собой длительный и трудоемкий процесс редкой сложности. На многих этапах шел поиск оригинальных решений. Так, здание оборудовано различными экологическими компонентами. Кровля полностью покрыта солнечными панелями, создана система сбора и хранения дождевой воды, которая поступает в санитарные узлы; в интерьере уровень влажности, освещение и температура воздуха регулируются специальным оборудованием. Структура фасада оптимизирована, что снизило на 30% количество использованной стали в сравнении с традиционными решениями. Неспроста Филипп Самен часто напоминает о своей двойной профессии – архитектора и инженера, отмечая, что архитектура – это искусство инженерной мысли.
Здание Europa Европейского совета. Philippe Samyn and partners architects & engineers, LEAD and DESIGN PARTNER.
With Studio Valle Progettazioni architects, Buro Happold Limited engineers. Фото © Marie-Françoise Plissart
Здание Europa Европейского совета. Philippe Samyn and partners architects & engineers, LEAD and DESIGN PARTNER. With Studio Valle Progettazioni architects, Buro Happold Limited engineers. Фото © Marie-Françoise Plissart

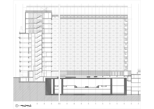
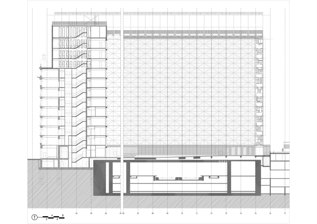
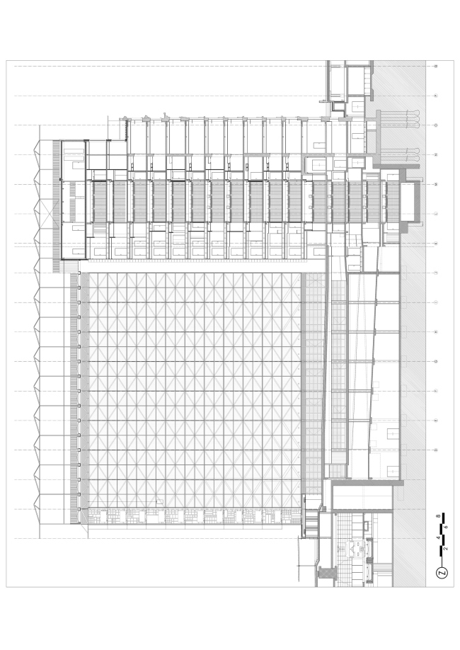
Постройка состоит из двух частей: как поясняет архитектор, это сделано с целью объединить культурное наследие с современностью. Новое сооружение примыкает к обновленному историческому памятнику в стиле ар деко – Résidence Palace. Этот уникальный жилой комплекс на 180 квартир класса люкс, построенный в 1920-е годы швейцарским архитектором Мишелем Полаком, включал в себя множество интересных «объектов сервиса»: театр на 516 мест, панорамный ресторан, залы заседаний, бассейн, турецкие бани, зал для фехтования и даже теннисный корт на крыше. В своем проекте Филипп Самен сохранил его оригинальные фасады и часть интерьеров. Внутри изысканного комплекса он разместил кабинет президента Евросоюза и офисы национальных делегаций.
Здание Europa Европейского совета. Philippe Samyn and partners architects & engineers, LEAD and DESIGN PARTNER.
With Studio Valle Progettazioni architects, Buro Happold Limited engineers. Фото © Marie-Françoise Plissart
Здание Europa Европейского совета. Philippe Samyn and partners architects & engineers, LEAD and DESIGN PARTNER. With Studio Valle Progettazioni architects, Buro Happold Limited engineers. Фото © Marie-Françoise Plissart

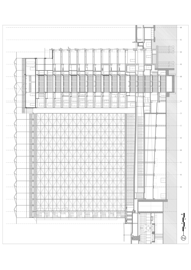
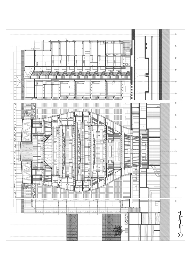
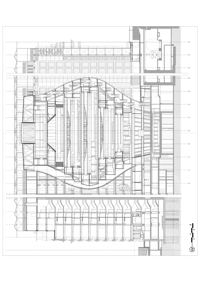
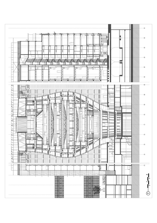
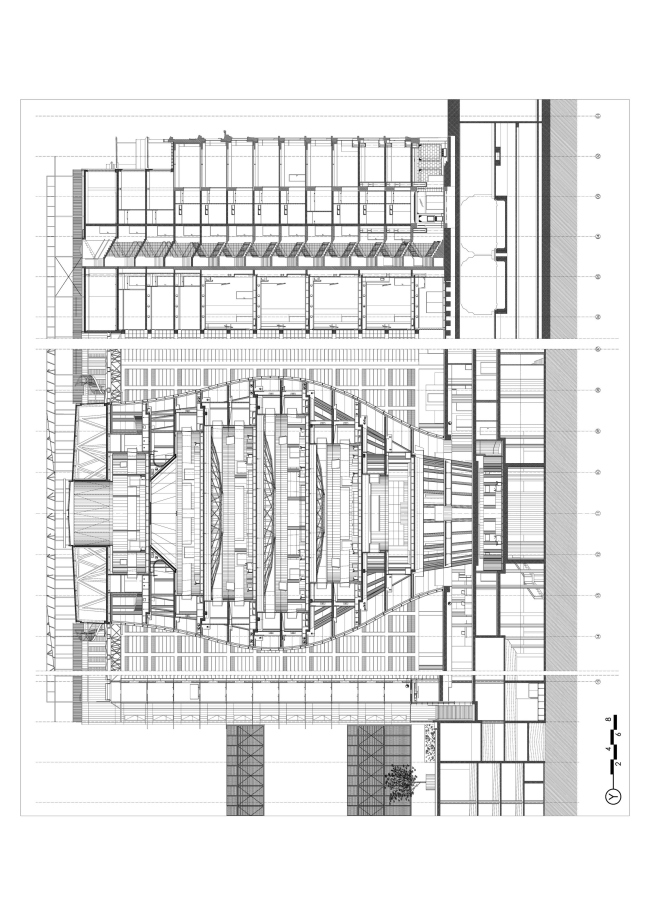
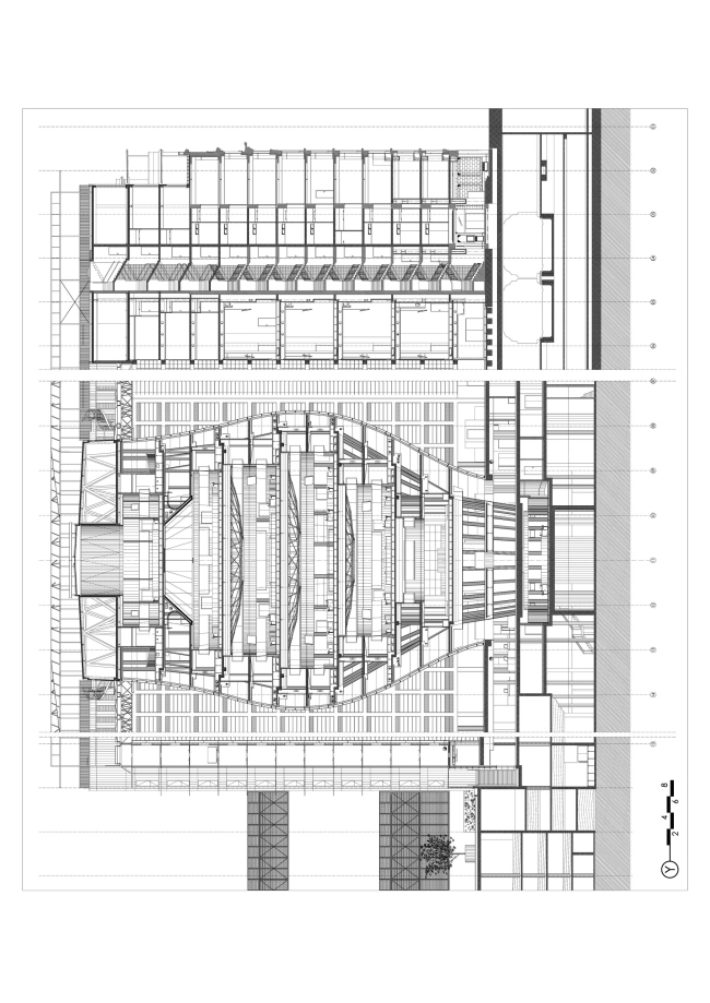
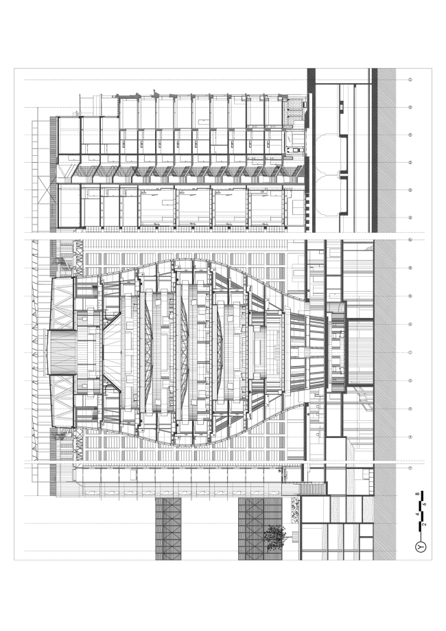
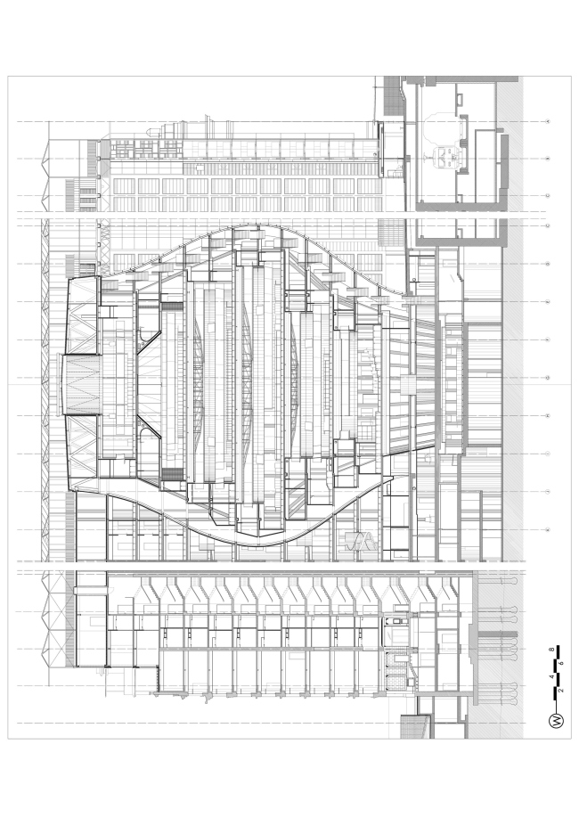
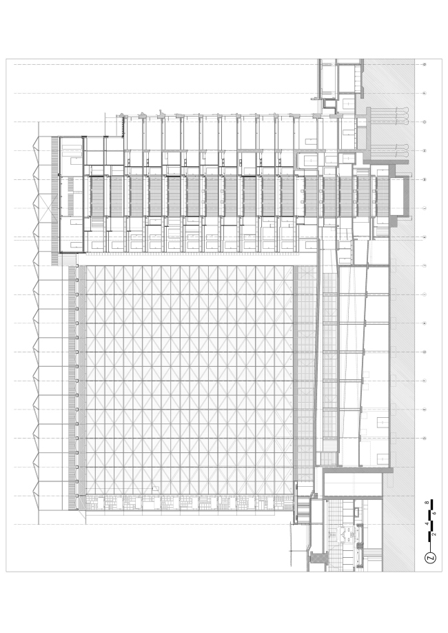
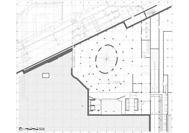
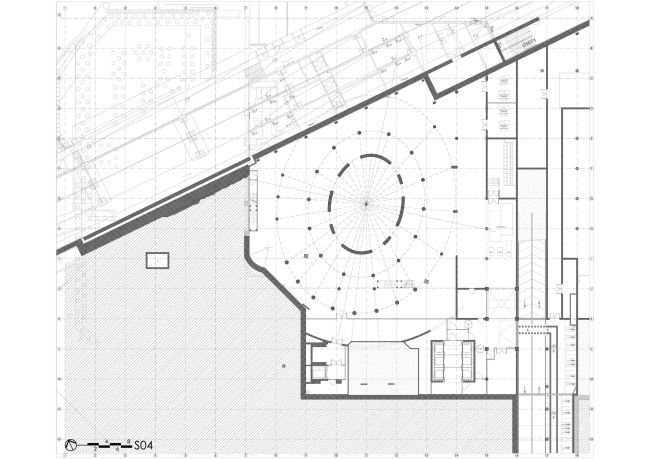
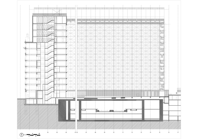
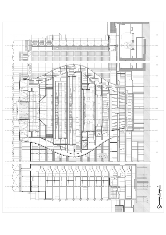
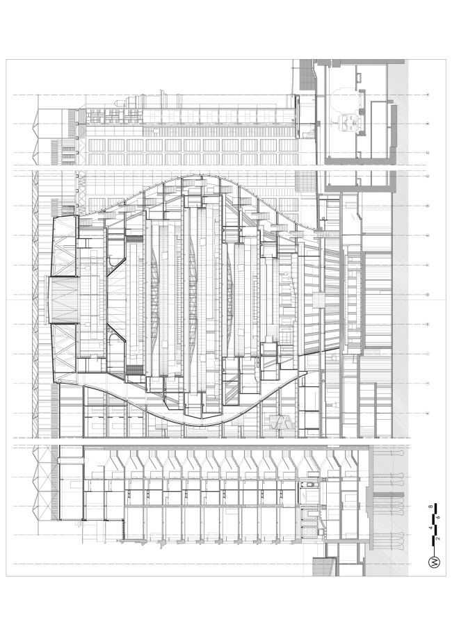
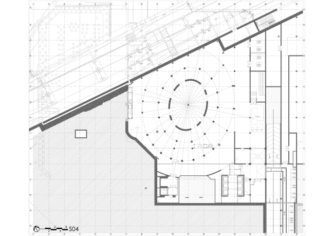
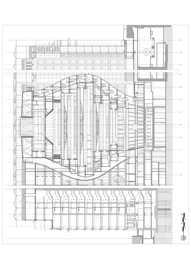
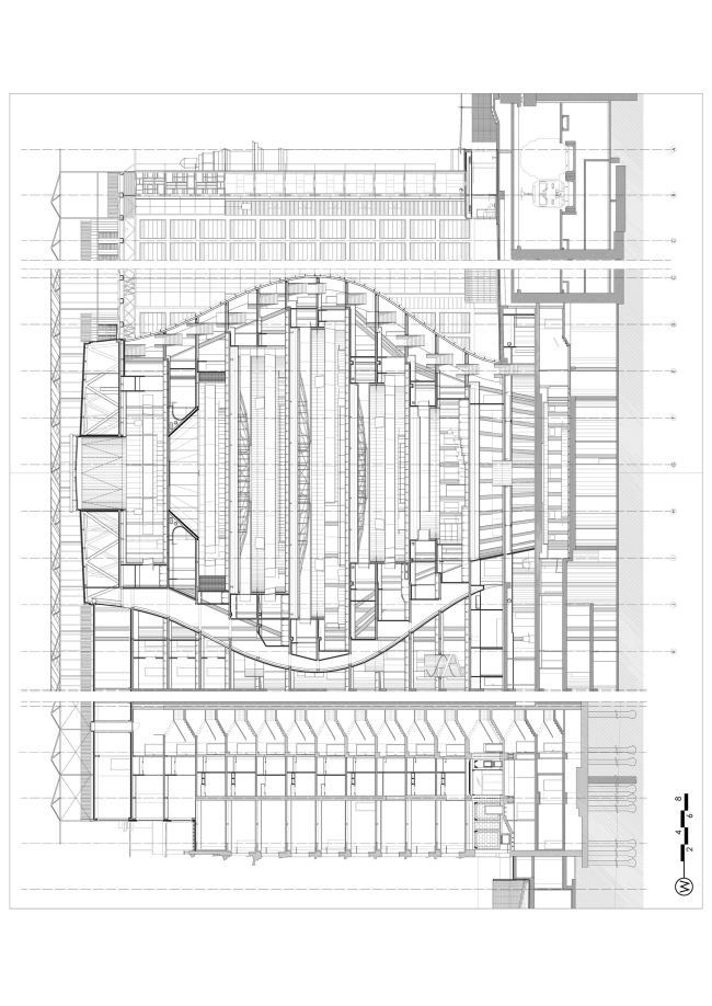
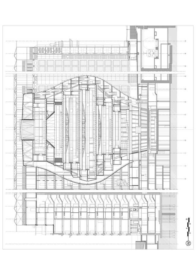
«Работа архитектора – это организация пустоты, которая возникает в процессе строительства». Восьмиуровневые крылья Résidence Palace имеют ширину в семь метров и образуют широкий квадратный двор со стороной в 70 метров. Следуя предписанным для участка ограничениям и указаниям городского плана, архитектор заполнил пустоту между двумя крыльями L-образного блока памятника кубическим объемом. Затем он деликатно поместил эллипсоид в этот куб; пустота между этими геометрическими телами образует атриум с главным вестибюлем и вмещает переходы между разными уровнями.
Здание Europa Европейского совета. Philippe Samyn and partners architects & engineers, LEAD and DESIGN PARTNER.
With Studio Valle Progettazioni architects, Buro Happold Limited engineers. Фото © Quentin Olbrechts
Здание Europa Европейского совета. Philippe Samyn and partners architects & engineers, LEAD and DESIGN PARTNER. With Studio Valle Progettazioni architects, Buro Happold Limited engineers. Фото © Quentin Olbrechts

По словам Самена, напоминающая амфору форма «светильника» была продиктована не эстетическими предпочтениями, а, прежде всего, функциональными и конструктивными ограничениями. «Такая форма возникла по двум причинам: во-первых, функциональные пространства… то расширяются, то уменьшаются на разных уровнях. …Узкое основание светильника объясняется тем, что мы не могли опереться на всю площадь участка из-за проходящего рядом железнодорожного туннеля Шумана». Этот объем – словно гигантская урна для голосования. Ее узкое основание – это минимальная площадь, требуемая для зала пресс-конференций на уровне +1, а наименьшее верхнее сужение – помещение столовой на 50 человек на уровне +11. Самый широкий уровень – +3 и +5 – это большой зал на 250 человек.
Здание Europa Европейского совета. Philippe Samyn and partners architects & engineers, LEAD and DESIGN PARTNER.
With Studio Valle Progettazioni architects, Buro Happold Limited engineers. Фото © Quentin Olbrechts
Здание Europa Европейского совета. Philippe Samyn and partners architects & engineers, LEAD and DESIGN PARTNER. With Studio Valle Progettazioni architects, Buro Happold Limited engineers. Фото © Quentin Olbrechts

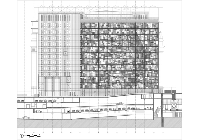
Снаружи здание выглядит как полупрозрачный защитный экран, за которым можно различить контур «светильника», оберегаемого от внешнего воздействия. Двойной фасад из экстрапрозрачного стекла имеет толщину 2,70 метра: такой «буфер» максимально защищает интерьер от шума дорожного движения и обеспечивает теплоизоляцию.
Здание Europa Европейского совета. Philippe Samyn and partners architects & engineers, LEAD and DESIGN PARTNER.
With Studio Valle Progettazioni architects, Buro Happold Limited engineers. Фото © European Union
Здание Europa Европейского совета. Philippe Samyn and partners architects & engineers, LEAD and DESIGN PARTNER. With Studio Valle Progettazioni architects, Buro Happold Limited engineers. Фото © European Union

Внешняя оболочка организована по принципу лоскутного одеяла: она состоит из 3750 деревянных оконных рам, которые происходят из 28 стран, составлявших до выхода из ЕС Великобритании Европейский Союз. Дубовые рамы были собраны во время реконструкции или сноса на многочисленных стройках Европы и вторично использованы в Брюсселе. «Эти подлинные старые профили были отшлифованы, очищены, восстановлены, покрыты лаком и размещены в больших рамах из нержавеющей стали (размером 5,40 м на 3,54 м – прим. Н.Д.), чтобы сформировать фасадный фронт. Это сделано для продвижения идеи переработки материалов, а также как дань ремеслу и культурному разнообразию в Европе», – поясняет Самен. Фасад здания символически воплощает идею о равном участии всех членов ЕС в управлении союзом и призван соответствовать девизу «единство в многообразии».
Здание Europa Европейского совета. Philippe Samyn and partners architects & engineers, LEAD and DESIGN PARTNER.
With Studio Valle Progettazioni architects, Buro Happold Limited engineers. Фото © European Union
Здание Europa Европейского совета. Philippe Samyn and partners architects & engineers, LEAD and DESIGN PARTNER. With Studio Valle Progettazioni architects, Buro Happold Limited engineers. Фото © European Union

«Одна из моих основных задач была сделать эту постройку веселой, так как сооружения подобного назначения обычно бессмысленно устрашающего вида», – признается архитектор. Как и фасад, многоцветные покрытия в интерьере формируют принцип калейдоскопа. Оформление интерьера – это результат сотрудничества архитектора и художника. «Я решил пригласить Жоржа Мёрана, чтобы создать гимн радости», а также из-за «его способности соединять квадраты, прямоугольники и цвет в особую алхимию, которая создает пространство дружелюбия и гостеприимства, – рассказывает Филипп Самен. – Я хотел поднять настроение главам государств, приезжающим в Брюссель решать неразрешимые головоломки». Любопытно, что похожий цветной калейдоскоп был сделан Ремом Колхасом 10 лет назад в проекте флага Европы – на основе 28 флагов стран-участниц ЕС.
Здание Europa Европейского совета. Philippe Samyn and partners architects & engineers, LEAD and DESIGN PARTNER.
With Studio Valle Progettazioni architects, Buro Happold Limited engineers. Фото © European Union
Здание Europa Европейского совета. Philippe Samyn and partners architects & engineers, LEAD and DESIGN PARTNER. With Studio Valle Progettazioni architects, Buro Happold Limited engineers. Фото © European Union

Одним из важнейших требований к проекту было обеспечение здания необходимым уровнем безопасности для проведения мероприятий на высшем уровне. После теракта 11 сентября 2001 в государственных учреждениях подобного типа были введены новые нормы: так, первый этаж отныне не может вмещать коммерческие функции, что, конечно, формирует закрытый характер улицы. «Europa, безусловно – привлекательное здание, оно веселее, чем другие, но у него те же недостатки, что и у всех европейских институтов: оно выражает закрытость в общественном пространстве, которое свидетельствует о дистанции между ЕС и его гражданами», –говорит Марко Шмитт (Marco Schmitt), архитектор и член Ассоциации Европейского квартала в Брюсселе. Он обращает внимание на то, что вход в здание узкий и устроен в заниженной части постройки, а требования обеспечить безопасность взяли верх над предоставлением горожанам общественного пространства. Также в целях безопасности здание закрыто для посещения за исключением одного раза в год, в мае – по случаю Дня Европы.
Здание Europa Европейского совета. Philippe Samyn and partners architects & engineers, LEAD and DESIGN PARTNER.
With Studio Valle Progettazioni architects, Buro Happold Limited engineers. Фото © European Union
Здание Europa Европейского совета. Philippe Samyn and partners architects & engineers, LEAD and DESIGN PARTNER. With Studio Valle Progettazioni architects, Buro Happold Limited engineers. Фото © European Union

Новая штаб-квартира Европейского совета представляет собой попытку создания средствами архитектуры современного символа государственного учреждения. Европа находится в наши дни на переходном этапе, когда вопрос об образе ЕС и его воплощении до конца не определен. Как отмечал в 2001 в своем исследовании европейской идентичности Рем Колхас, «материализация» Европы в Брюсселе происходит без четкой архитектурной цели и эстетической ясности; уже в то время он указывал на отсутствие мощного символа. В этом же исследовании Умберто Эко выдвинул другую версию, предпочитая идею «мягкой столицы»: он сравнил Европейский Союз с информационной сетью, где Брюссель играет роль сервера. «Мне смешно, когда я слышу, что Брюссель нуждается в большом сооружении наподобие Колизея или Эмпайр-стейт-билдинг! Европа должна найти более горизонтальный язык, отражающий различия и диалог между культурами, а не язык иерархии», – рассуждал Эко.
Здание Europa Европейского совета. Philippe Samyn and partners architects & engineers, LEAD and DESIGN PARTNER.
With Studio Valle Progettazioni architects, Buro Happold Limited engineers. Фото © Marie-Françoise Plissart
Здание Europa Европейского совета. Philippe Samyn and partners architects & engineers, LEAD and DESIGN PARTNER. With Studio Valle Progettazioni architects, Buro Happold Limited engineers. Фото © Marie-Françoise Plissart

С другой стороны, бельгийский графический дизайнер Эдуард Де Ландтсхер (Eduard De Landtsheer) высказывает иное, более прагматичное мнение, в принципе ставя под сомнение амбициозные проекты: «Сегодня Европе не хватает сил перед лицом глубокого кризиса. Не через строительство грандиозных монументов мы найдем свое лицо!»
Здание Europa Европейского совета. Philippe Samyn and partners architects & engineers, LEAD and DESIGN PARTNER.
With Studio Valle Progettazioni architects, Buro Happold Limited engineers. Фото © Marie-Françoise Plissart
Здание Europa Европейского совета. Philippe Samyn and partners architects & engineers, LEAD and DESIGN PARTNER. With Studio Valle Progettazioni architects, Buro Happold Limited engineers. Фото © Marie-Françoise Plissart
Здание Europa Европейского совета. Philippe Samyn and partners architects & engineers, LEAD and DESIGN PARTNER.
With Studio Valle Progettazioni architects, Buro Happold Limited engineers. Фото © Marie-Françoise Plissart
Здание Europa Европейского совета. Philippe Samyn and partners architects & engineers, LEAD and DESIGN PARTNER. With Studio Valle Progettazioni architects, Buro Happold Limited engineers. Фото © Marie-Françoise Plissart
Здание Europa Европейского совета. Philippe Samyn and partners architects & engineers, LEAD and DESIGN PARTNER.
With Studio Valle Progettazioni architects, Buro Happold Limited engineers. Фото © Marie-Françoise Plissart
Здание Europa Европейского совета. Philippe Samyn and partners architects & engineers, LEAD and DESIGN PARTNER. With Studio Valle Progettazioni architects, Buro Happold Limited engineers. Фото © Marie-Françoise Plissart
Здание Europa Европейского совета. Philippe Samyn and partners architects & engineers, LEAD and DESIGN PARTNER.
With Studio Valle Progettazioni architects, Buro Happold Limited engineers. Фото © Marie-Françoise Plissart
Здание Europa Европейского совета. Philippe Samyn and partners architects & engineers, LEAD and DESIGN PARTNER. With Studio Valle Progettazioni architects, Buro Happold Limited engineers. Фото © Marie-Françoise Plissart
Здание Europa Европейского совета. Philippe Samyn and partners architects & engineers, LEAD and DESIGN PARTNER.
With Studio Valle Progettazioni architects, Buro Happold Limited engineers. Фото © European Union
Здание Europa Европейского совета. Philippe Samyn and partners architects & engineers, LEAD and DESIGN PARTNER. With Studio Valle Progettazioni architects, Buro Happold Limited engineers. Фото © European Union
Здание Europa Европейского совета. Philippe Samyn and partners architects & engineers, LEAD and DESIGN PARTNER.
With Studio Valle Progettazioni architects, Buro Happold Limited engineers. Фото © European Union
Здание Europa Европейского совета. Philippe Samyn and partners architects & engineers, LEAD and DESIGN PARTNER. With Studio Valle Progettazioni architects, Buro Happold Limited engineers. Фото © European Union
Здание Europa Европейского совета. Philippe Samyn and partners architects & engineers, LEAD and DESIGN PARTNER.
With Studio Valle Progettazioni architects, Buro Happold Limited engineers. Фото © European Union
Здание Europa Европейского совета. Philippe Samyn and partners architects & engineers, LEAD and DESIGN PARTNER. With Studio Valle Progettazioni architects, Buro Happold Limited engineers. Фото © European Union
Здание Europa Европейского совета. Philippe Samyn and partners architects & engineers, LEAD and DESIGN PARTNER.
With Studio Valle Progettazioni architects, Buro Happold Limited engineers. Фото © Marie-Françoise Plissart
Здание Europa Европейского совета. Philippe Samyn and partners architects & engineers, LEAD and DESIGN PARTNER. With Studio Valle Progettazioni architects, Buro Happold Limited engineers. Фото © Marie-Françoise Plissart
Здание Europa Европейского совета. Philippe Samyn and partners architects & engineers, LEAD and DESIGN PARTNER.
With Studio Valle Progettazioni architects, Buro Happold Limited engineers. Фото © Marie-Françoise Plissart
Здание Europa Европейского совета. Philippe Samyn and partners architects & engineers, LEAD and DESIGN PARTNER. With Studio Valle Progettazioni architects, Buro Happold Limited engineers. Фото © Marie-Françoise Plissart
Здание Europa Европейского совета. Philippe Samyn and partners architects & engineers, LEAD and DESIGN PARTNER.
With Studio Valle Progettazioni architects, Buro Happold Limited engineers. Фото © Marie-Françoise Plissart
Здание Europa Европейского совета. Philippe Samyn and partners architects & engineers, LEAD and DESIGN PARTNER. With Studio Valle Progettazioni architects, Buro Happold Limited engineers. Фото © Marie-Françoise Plissart
Здание Europa Европейского совета. Philippe Samyn and partners architects & engineers, LEAD and DESIGN PARTNER.
With Studio Valle Progettazioni architects, Buro Happold Limited engineers. Фото © Marie-Françoise Plissart
Здание Europa Европейского совета. Philippe Samyn and partners architects & engineers, LEAD and DESIGN PARTNER. With Studio Valle Progettazioni architects, Buro Happold Limited engineers. Фото © Marie-Françoise Plissart
Здание Europa Европейского совета. Philippe Samyn and partners architects & engineers, LEAD and DESIGN PARTNER.
With Studio Valle Progettazioni architects, Buro Happold Limited engineers. Фото © Marie-Françoise Plissart
Здание Europa Европейского совета. Philippe Samyn and partners architects & engineers, LEAD and DESIGN PARTNER. With Studio Valle Progettazioni architects, Buro Happold Limited engineers. Фото © Marie-Françoise Plissart
Здание Europa Европейского совета. Philippe Samyn and partners architects & engineers, LEAD and DESIGN PARTNER.
With Studio Valle Progettazioni architects, Buro Happold Limited engineers. Фото © Marie-Françoise Plissart
Здание Europa Европейского совета. Philippe Samyn and partners architects & engineers, LEAD and DESIGN PARTNER. With Studio Valle Progettazioni architects, Buro Happold Limited engineers. Фото © Marie-Françoise Plissart
Здание Europa Европейского совета. Philippe Samyn and partners architects & engineers, LEAD and DESIGN PARTNER.
With Studio Valle Progettazioni architects, Buro Happold Limited engineers. Фото © Marie-Françoise Plissart
Здание Europa Европейского совета. Philippe Samyn and partners architects & engineers, LEAD and DESIGN PARTNER. With Studio Valle Progettazioni architects, Buro Happold Limited engineers. Фото © Marie-Françoise Plissart
Здание Europa Европейского совета. Philippe Samyn and partners architects & engineers, LEAD and DESIGN PARTNER.
With Studio Valle Progettazioni architects, Buro Happold Limited engineers. Фото © Quentin Olbrechts
Здание Europa Европейского совета. Philippe Samyn and partners architects & engineers, LEAD and DESIGN PARTNER. With Studio Valle Progettazioni architects, Buro Happold Limited engineers. Фото © Quentin Olbrechts
Здание Europa Европейского совета. Philippe Samyn and partners architects & engineers, LEAD and DESIGN PARTNER.
With Studio Valle Progettazioni architects, Buro Happold Limited engineers. Фото © Marie-Françoise Plissart, цвета © Georges MEURANT
Здание Europa Европейского совета. Philippe Samyn and partners architects & engineers, LEAD and DESIGN PARTNER. With Studio Valle Progettazioni architects, Buro Happold Limited engineers. Фото © Marie-Françoise Plissart, цвета © Georges MEURANT
Здание Europa Европейского совета. Philippe Samyn and partners architects & engineers, LEAD and DESIGN PARTNER.
With Studio Valle Progettazioni architects, Buro Happold Limited engineers. Фото © Marie-Françoise Plissart, цвета © Georges MEURANT
Здание Europa Европейского совета. Philippe Samyn and partners architects & engineers, LEAD and DESIGN PARTNER. With Studio Valle Progettazioni architects, Buro Happold Limited engineers. Фото © Marie-Françoise Plissart, цвета © Georges MEURANT
Здание Europa Европейского совета. Philippe Samyn and partners architects & engineers, LEAD and DESIGN PARTNER.
With Studio Valle Progettazioni architects, Buro Happold Limited engineers. Фото © Marie-Françoise Plissart, цвета © Georges MEURANT
Здание Europa Европейского совета. Philippe Samyn and partners architects & engineers, LEAD and DESIGN PARTNER. With Studio Valle Progettazioni architects, Buro Happold Limited engineers. Фото © Marie-Françoise Plissart, цвета © Georges MEURANT
Здание Europa Европейского совета. Philippe Samyn and partners architects & engineers, LEAD and DESIGN PARTNER.
With Studio Valle Progettazioni architects, Buro Happold Limited engineers. Фото © Quentin Olbrechts, цвета © Georges MEURANT
Здание Europa Европейского совета. Philippe Samyn and partners architects & engineers, LEAD and DESIGN PARTNER. With Studio Valle Progettazioni architects, Buro Happold Limited engineers. Фото © Quentin Olbrechts, цвета © Georges MEURANT
Здание Europa Европейского совета. Philippe Samyn and partners architects & engineers, LEAD and DESIGN PARTNER.
With Studio Valle Progettazioni architects, Buro Happold Limited engineers. Фото © Quentin Olbrechts, цвета © Georges MEURANT
Здание Europa Европейского совета. Philippe Samyn and partners architects & engineers, LEAD and DESIGN PARTNER. With Studio Valle Progettazioni architects, Buro Happold Limited engineers. Фото © Quentin Olbrechts, цвета © Georges MEURANT
Здание Europa Европейского совета. Philippe Samyn and partners architects & engineers, LEAD and DESIGN PARTNER.
With Studio Valle Progettazioni architects, Buro Happold Limited engineers. Фото © Thierry Henrard
Здание Europa Европейского совета. Philippe Samyn and partners architects & engineers, LEAD and DESIGN PARTNER. With Studio Valle Progettazioni architects, Buro Happold Limited engineers. Фото © Thierry Henrard
Здание Europa Европейского совета. Philippe Samyn and partners architects & engineers, LEAD and DESIGN PARTNER.
With Studio Valle Progettazioni architects, Buro Happold Limited engineers. Фото © Marie-Françoise Plissart
Здание Europa Европейского совета. Philippe Samyn and partners architects & engineers, LEAD and DESIGN PARTNER. With Studio Valle Progettazioni architects, Buro Happold Limited engineers. Фото © Marie-Françoise Plissart
Здание Europa Европейского совета. Philippe Samyn and partners architects & engineers, LEAD and DESIGN PARTNER.
With Studio Valle Progettazioni architects, Buro Happold Limited engineers. Фото © Marie-Françoise Plissart
Здание Europa Европейского совета. Philippe Samyn and partners architects & engineers, LEAD and DESIGN PARTNER. With Studio Valle Progettazioni architects, Buro Happold Limited engineers. Фото © Marie-Françoise Plissart
Здание Europa Европейского совета. Philippe Samyn and partners architects & engineers, LEAD and DESIGN PARTNER.
With Studio Valle Progettazioni architects, Buro Happold Limited engineers. Фото © Marie-Françoise Plissart
Здание Europa Европейского совета. Philippe Samyn and partners architects & engineers, LEAD and DESIGN PARTNER. With Studio Valle Progettazioni architects, Buro Happold Limited engineers. Фото © Marie-Françoise Plissart
Здание Europa Европейского совета. Philippe Samyn and partners architects & engineers, LEAD and DESIGN PARTNER.
With Studio Valle Progettazioni architects, Buro Happold Limited engineers. Фото © European Union, цвета © Georges MEURANT
Здание Europa Европейского совета. Philippe Samyn and partners architects & engineers, LEAD and DESIGN PARTNER. With Studio Valle Progettazioni architects, Buro Happold Limited engineers. Фото © European Union, цвета © Georges MEURANT
Здание Europa Европейского совета. Philippe Samyn and partners architects & engineers, LEAD and DESIGN PARTNER.
With Studio Valle Progettazioni architects, Buro Happold Limited engineers. Фото © European Union, цвета © Georges MEURANT
Здание Europa Европейского совета. Philippe Samyn and partners architects & engineers, LEAD and DESIGN PARTNER. With Studio Valle Progettazioni architects, Buro Happold Limited engineers. Фото © European Union, цвета © Georges MEURANT
Здание Europa Европейского совета. Philippe Samyn and partners architects & engineers, LEAD and DESIGN PARTNER.
With Studio Valle Progettazioni architects, Buro Happold Limited engineers. Фото © European Union, цвета © Georges MEURANT
Здание Europa Европейского совета. Philippe Samyn and partners architects & engineers, LEAD and DESIGN PARTNER. With Studio Valle Progettazioni architects, Buro Happold Limited engineers. Фото © European Union, цвета © Georges MEURANT
Здание Europa Европейского совета. Philippe Samyn and partners architects & engineers, LEAD and DESIGN PARTNER.
With Studio Valle Progettazioni architects, Buro Happold Limited engineers. Фото © Marie-Françoise Plissart, цвета © Georges MEURANT
Здание Europa Европейского совета. Philippe Samyn and partners architects & engineers, LEAD and DESIGN PARTNER. With Studio Valle Progettazioni architects, Buro Happold Limited engineers. Фото © Marie-Françoise Plissart, цвета © Georges MEURANT
Здание Europa Европейского совета. Philippe Samyn and partners architects & engineers, LEAD and DESIGN PARTNER.
With Studio Valle Progettazioni architects, Buro Happold Limited engineers. Фото © Marie-Françoise Plissart, цвета © Georges MEURANT
Здание Europa Европейского совета. Philippe Samyn and partners architects & engineers, LEAD and DESIGN PARTNER. With Studio Valle Progettazioni architects, Buro Happold Limited engineers. Фото © Marie-Françoise Plissart, цвета © Georges MEURANT
Здание Europa Европейского совета. Philippe Samyn and partners architects & engineers, LEAD and DESIGN PARTNER.
With Studio Valle Progettazioni architects, Buro Happold Limited engineers. Фото © Marie-Françoise Plissart, цвета © Georges MEURANT
Здание Europa Европейского совета. Philippe Samyn and partners architects & engineers, LEAD and DESIGN PARTNER. With Studio Valle Progettazioni architects, Buro Happold Limited engineers. Фото © Marie-Françoise Plissart, цвета © Georges MEURANT
Здание Europa Европейского совета. Philippe Samyn and partners architects & engineers, LEAD and DESIGN PARTNER.
With Studio Valle Progettazioni architects, Buro Happold Limited engineers. Фото © Thierry Henrard
Здание Europa Европейского совета. Philippe Samyn and partners architects & engineers, LEAD and DESIGN PARTNER. With Studio Valle Progettazioni architects, Buro Happold Limited engineers. Фото © Thierry Henrard
Здание Europa Европейского совета. Philippe Samyn and partners architects & engineers, LEAD and DESIGN PARTNER.
With Studio Valle Progettazioni architects, Buro Happold Limited engineers. Фото © Thierry Henrard
Здание Europa Европейского совета. Philippe Samyn and partners architects & engineers, LEAD and DESIGN PARTNER. With Studio Valle Progettazioni architects, Buro Happold Limited engineers. Фото © Thierry Henrard
Здание Europa Европейского совета. Philippe Samyn and partners architects & engineers, LEAD and DESIGN PARTNER.
With Studio Valle Progettazioni architects, Buro Happold Limited engineers. Фото © Thierry Henrard
Здание Europa Европейского совета. Philippe Samyn and partners architects & engineers, LEAD and DESIGN PARTNER. With Studio Valle Progettazioni architects, Buro Happold Limited engineers. Фото © Thierry Henrard
Здание Europa Европейского совета. Philippe Samyn and partners architects & engineers, LEAD and DESIGN PARTNER.
With Studio Valle Progettazioni architects, Buro Happold Limited engineers. Фото © Thierry Henrard
Здание Europa Европейского совета. Philippe Samyn and partners architects & engineers, LEAD and DESIGN PARTNER. With Studio Valle Progettazioni architects, Buro Happold Limited engineers. Фото © Thierry Henrard
Здание Europa Европейского совета © Philippe Samyn and partners architects & engineers, LEAD and DESIGN PARTNER.
With Studio Valle Progettazioni architects, Buro Happold Limited engineers
Здание Europa Европейского совета © Philippe Samyn and partners architects & engineers, LEAD and DESIGN PARTNER. With Studio Valle Progettazioni architects, Buro Happold Limited engineers
Здание Europa Европейского совета © Philippe Samyn and partners architects & engineers, LEAD and DESIGN PARTNER.
With Studio Valle Progettazioni architects, Buro Happold Limited engineers
Здание Europa Европейского совета © Philippe Samyn and partners architects & engineers, LEAD and DESIGN PARTNER. With Studio Valle Progettazioni architects, Buro Happold Limited engineers
Здание Europa Европейского совета. Philippe Samyn and partners architects & engineers, LEAD and DESIGN PARTNER.
With Studio Valle Progettazioni architects, Buro Happold Limited engineers. Фото © Thierry Henrard
Здание Europa Европейского совета. Philippe Samyn and partners architects & engineers, LEAD and DESIGN PARTNER. With Studio Valle Progettazioni architects, Buro Happold Limited engineers. Фото © Thierry Henrard
Здание Europa Европейского совета. Philippe Samyn and partners architects & engineers, LEAD and DESIGN PARTNER.
With Studio Valle Progettazioni architects, Buro Happold Limited engineers. Фото © Andrès Fernandez Marcos
Здание Europa Европейского совета. Philippe Samyn and partners architects & engineers, LEAD and DESIGN PARTNER. With Studio Valle Progettazioni architects, Buro Happold Limited engineers. Фото © Andrès Fernandez Marcos
Здание Europa Европейского совета. Philippe Samyn and partners architects & engineers, LEAD and DESIGN PARTNER.
With Studio Valle Progettazioni architects, Buro Happold Limited engineers. Фото © Andrès Fernandez Marcos
Здание Europa Европейского совета. Philippe Samyn and partners architects & engineers, LEAD and DESIGN PARTNER. With Studio Valle Progettazioni architects, Buro Happold Limited engineers. Фото © Andrès Fernandez Marcos
Здание Europa Европейского совета. Philippe Samyn and partners architects & engineers, LEAD and DESIGN PARTNER.
With Studio Valle Progettazioni architects, Buro Happold Limited engineers. Фото © Andrès Fernandez Marcos
Здание Europa Европейского совета. Philippe Samyn and partners architects & engineers, LEAD and DESIGN PARTNER. With Studio Valle Progettazioni architects, Buro Happold Limited engineers. Фото © Andrès Fernandez Marcos
Здание Europa Европейского совета © Philippe Samyn and partners architects & engineers, LEAD and DESIGN PARTNER.
With Studio Valle Progettazioni architects, Buro Happold Limited engineers
Здание Europa Европейского совета © Philippe Samyn and partners architects & engineers, LEAD and DESIGN PARTNER. With Studio Valle Progettazioni architects, Buro Happold Limited engineers
Здание Europa Европейского совета © Philippe Samyn and partners architects & engineers, LEAD and DESIGN PARTNER.
With Studio Valle Progettazioni architects, Buro Happold Limited engineers
Здание Europa Европейского совета © Philippe Samyn and partners architects & engineers, LEAD and DESIGN PARTNER. With Studio Valle Progettazioni architects, Buro Happold Limited engineers
Здание Europa Европейского совета © Philippe Samyn and partners architects & engineers, LEAD and DESIGN PARTNER.
With Studio Valle Progettazioni architects, Buro Happold Limited engineers
Здание Europa Европейского совета © Philippe Samyn and partners architects & engineers, LEAD and DESIGN PARTNER. With Studio Valle Progettazioni architects, Buro Happold Limited engineers
Здание Europa Европейского совета © Philippe Samyn and partners architects & engineers, LEAD and DESIGN PARTNER.
With Studio Valle Progettazioni architects, Buro Happold Limited engineers
Здание Europa Европейского совета © Philippe Samyn and partners architects & engineers, LEAD and DESIGN PARTNER. With Studio Valle Progettazioni architects, Buro Happold Limited engineers
Здание Europa Европейского совета © Philippe Samyn and partners architects & engineers, LEAD and DESIGN PARTNER.
With Studio Valle Progettazioni architects, Buro Happold Limited engineers
Здание Europa Европейского совета © Philippe Samyn and partners architects & engineers, LEAD and DESIGN PARTNER. With Studio Valle Progettazioni architects, Buro Happold Limited engineers
Здание Europa Европейского совета © Philippe Samyn and partners architects & engineers, LEAD and DESIGN PARTNER.
With Studio Valle Progettazioni architects, Buro Happold Limited engineers
Здание Europa Европейского совета © Philippe Samyn and partners architects & engineers, LEAD and DESIGN PARTNER. With Studio Valle Progettazioni architects, Buro Happold Limited engineers
Здание Europa Европейского совета © Philippe Samyn and partners architects & engineers, LEAD and DESIGN PARTNER.
With Studio Valle Progettazioni architects, Buro Happold Limited engineers
Здание Europa Европейского совета © Philippe Samyn and partners architects & engineers, LEAD and DESIGN PARTNER. With Studio Valle Progettazioni architects, Buro Happold Limited engineers
Здание Europa Европейского совета © Philippe Samyn and partners architects & engineers, LEAD and DESIGN PARTNER.
With Studio Valle Progettazioni architects, Buro Happold Limited engineers
Здание Europa Европейского совета © Philippe Samyn and partners architects & engineers, LEAD and DESIGN PARTNER. With Studio Valle Progettazioni architects, Buro Happold Limited engineers
Здание Europa Европейского совета © Philippe Samyn and partners architects & engineers, LEAD and DESIGN PARTNER.
With Studio Valle Progettazioni architects, Buro Happold Limited engineers
Здание Europa Европейского совета © Philippe Samyn and partners architects & engineers, LEAD and DESIGN PARTNER. With Studio Valle Progettazioni architects, Buro Happold Limited engineers
Здание Europa Европейского совета © Philippe Samyn and partners architects & engineers, LEAD and DESIGN PARTNER.
With Studio Valle Progettazioni architects, Buro Happold Limited engineers
Здание Europa Европейского совета © Philippe Samyn and partners architects & engineers, LEAD and DESIGN PARTNER. With Studio Valle Progettazioni architects, Buro Happold Limited engineers
Здание Europa Европейского совета © Philippe Samyn and partners architects & engineers, LEAD and DESIGN PARTNER.
With Studio Valle Progettazioni architects, Buro Happold Limited engineers
Здание Europa Европейского совета © Philippe Samyn and partners architects & engineers, LEAD and DESIGN PARTNER. With Studio Valle Progettazioni architects, Buro Happold Limited engineers
Здание Europa Европейского совета © Philippe Samyn and partners architects & engineers, LEAD and DESIGN PARTNER.
With Studio Valle Progettazioni architects, Buro Happold Limited engineers
Здание Europa Европейского совета © Philippe Samyn and partners architects & engineers, LEAD and DESIGN PARTNER. With Studio Valle Progettazioni architects, Buro Happold Limited engineers
Здание Europa Европейского совета © Philippe Samyn and partners architects & engineers, LEAD and DESIGN PARTNER.
With Studio Valle Progettazioni architects, Buro Happold Limited engineers
Здание Europa Европейского совета © Philippe Samyn and partners architects & engineers, LEAD and DESIGN PARTNER. With Studio Valle Progettazioni architects, Buro Happold Limited engineers
Здание Europa Европейского совета © Philippe Samyn and partners architects & engineers, LEAD and DESIGN PARTNER.
With Studio Valle Progettazioni architects, Buro Happold Limited engineers
Здание Europa Европейского совета © Philippe Samyn and partners architects & engineers, LEAD and DESIGN PARTNER. With Studio Valle Progettazioni architects, Buro Happold Limited engineers
Здание Europa Европейского совета © Philippe Samyn and partners architects & engineers, LEAD and DESIGN PARTNER.
With Studio Valle Progettazioni architects, Buro Happold Limited engineers
Здание Europa Европейского совета © Philippe Samyn and partners architects & engineers, LEAD and DESIGN PARTNER. With Studio Valle Progettazioni architects, Buro Happold Limited engineers
Здание Europa Европейского совета © Philippe Samyn and partners architects & engineers, LEAD and DESIGN PARTNER.
With Studio Valle Progettazioni architects, Buro Happold Limited engineers
Здание Europa Европейского совета © Philippe Samyn and partners architects & engineers, LEAD and DESIGN PARTNER. With Studio Valle Progettazioni architects, Buro Happold Limited engineers
Здание Europa Европейского совета © Philippe Samyn and partners architects & engineers, LEAD and DESIGN PARTNER.
With Studio Valle Progettazioni architects, Buro Happold Limited engineers
Здание Europa Европейского совета © Philippe Samyn and partners architects & engineers, LEAD and DESIGN PARTNER. With Studio Valle Progettazioni architects, Buro Happold Limited engineers
Здание Europa Европейского совета © Philippe Samyn and partners architects & engineers, LEAD and DESIGN PARTNER.
With Studio Valle Progettazioni architects, Buro Happold Limited engineers
Здание Europa Европейского совета © Philippe Samyn and partners architects & engineers, LEAD and DESIGN PARTNER. With Studio Valle Progettazioni architects, Buro Happold Limited engineers
Здание Europa Европейского совета © Philippe Samyn and partners architects & engineers, LEAD and DESIGN PARTNER.
With Studio Valle Progettazioni architects, Buro Happold Limited engineers
Здание Europa Европейского совета © Philippe Samyn and partners architects & engineers, LEAD and DESIGN PARTNER. With Studio Valle Progettazioni architects, Buro Happold Limited engineers
Здание Europa Европейского совета © Philippe Samyn and partners architects & engineers, LEAD and DESIGN PARTNER.
With Studio Valle Progettazioni architects, Buro Happold Limited engineers
Здание Europa Европейского совета © Philippe Samyn and partners architects & engineers, LEAD and DESIGN PARTNER. With Studio Valle Progettazioni architects, Buro Happold Limited engineers
Здание Europa Европейского совета © Philippe Samyn and partners architects & engineers, LEAD and DESIGN PARTNER.
With Studio Valle Progettazioni architects, Buro Happold Limited engineers
Здание Europa Европейского совета © Philippe Samyn and partners architects & engineers, LEAD and DESIGN PARTNER. With Studio Valle Progettazioni architects, Buro Happold Limited engineers
Здание Europa Европейского совета © Philippe Samyn and partners architects & engineers, LEAD and DESIGN PARTNER.
With Studio Valle Progettazioni architects, Buro Happold Limited engineers
Здание Europa Европейского совета © Philippe Samyn and partners architects & engineers, LEAD and DESIGN PARTNER. With Studio Valle Progettazioni architects, Buro Happold Limited engineers
Здание Europa Европейского совета © Philippe Samyn and partners architects & engineers, LEAD and DESIGN PARTNER.
With Studio Valle Progettazioni architects, Buro Happold Limited engineers
Здание Europa Европейского совета © Philippe Samyn and partners architects & engineers, LEAD and DESIGN PARTNER. With Studio Valle Progettazioni architects, Buro Happold Limited engineers
Здание Europa Европейского совета © Philippe Samyn and partners architects & engineers, LEAD and DESIGN PARTNER.
With Studio Valle Progettazioni architects, Buro Happold Limited engineers
Здание Europa Европейского совета © Philippe Samyn and partners architects & engineers, LEAD and DESIGN PARTNER. With Studio Valle Progettazioni architects, Buro Happold Limited engineers
Здание Europa Европейского совета © Philippe Samyn and partners architects & engineers, LEAD and DESIGN PARTNER.
With Studio Valle Progettazioni architects, Buro Happold Limited engineers
Здание Europa Европейского совета © Philippe Samyn and partners architects & engineers, LEAD and DESIGN PARTNER. With Studio Valle Progettazioni architects, Buro Happold Limited engineers
Здание Europa Европейского совета © Philippe Samyn and partners architects & engineers, LEAD and DESIGN PARTNER.
With Studio Valle Progettazioni architects, Buro Happold Limited engineers
Здание Europa Европейского совета © Philippe Samyn and partners architects & engineers, LEAD and DESIGN PARTNER. With Studio Valle Progettazioni architects, Buro Happold Limited engineers
Здание Europa Европейского совета © Philippe Samyn and partners architects & engineers, LEAD and DESIGN PARTNER.
With Studio Valle Progettazioni architects, Buro Happold Limited engineers
Здание Europa Европейского совета © Philippe Samyn and partners architects & engineers, LEAD and DESIGN PARTNER. With Studio Valle Progettazioni architects, Buro Happold Limited engineers
Здание Europa Европейского совета © Philippe Samyn and partners architects & engineers, LEAD and DESIGN PARTNER.
With Studio Valle Progettazioni architects, Buro Happold Limited engineers
Здание Europa Европейского совета © Philippe Samyn and partners architects & engineers, LEAD and DESIGN PARTNER. With Studio Valle Progettazioni architects, Buro Happold Limited engineers
Здание Europa Европейского совета © Philippe Samyn and partners architects & engineers, LEAD and DESIGN PARTNER.
With Studio Valle Progettazioni architects, Buro Happold Limited engineers
Здание Europa Европейского совета © Philippe Samyn and partners architects & engineers, LEAD and DESIGN PARTNER. With Studio Valle Progettazioni architects, Buro Happold Limited engineers
Здание Europa Европейского совета © Philippe Samyn and partners architects & engineers, LEAD and DESIGN PARTNER.
With Studio Valle Progettazioni architects, Buro Happold Limited engineers
Здание Europa Европейского совета © Philippe Samyn and partners architects & engineers, LEAD and DESIGN PARTNER. With Studio Valle Progettazioni architects, Buro Happold Limited engineers
Здание Europa Европейского совета © Philippe Samyn and partners architects & engineers, LEAD and DESIGN PARTNER.
With Studio Valle Progettazioni architects, Buro Happold Limited engineers
Здание Europa Европейского совета © Philippe Samyn and partners architects & engineers, LEAD and DESIGN PARTNER. With Studio Valle Progettazioni architects, Buro Happold Limited engineers
Здание Europa Европейского совета © Philippe Samyn and partners architects & engineers, LEAD and DESIGN PARTNER.
With Studio Valle Progettazioni architects, Buro Happold Limited engineers
Здание Europa Европейского совета © Philippe Samyn and partners architects & engineers, LEAD and DESIGN PARTNER. With Studio Valle Progettazioni architects, Buro Happold Limited engineers
Здание Europa Европейского совета © Philippe Samyn and partners architects & engineers, LEAD and DESIGN PARTNER.
With Studio Valle Progettazioni architects, Buro Happold Limited engineers
Здание Europa Европейского совета © Philippe Samyn and partners architects & engineers, LEAD and DESIGN PARTNER. With Studio Valle Progettazioni architects, Buro Happold Limited engineers