Размещено на портале Архи.ру (www.archi.ru)

25.05.2017

На книжном рынке Москвы снова появилась книга «К типологии массового жилья в СССР»

На московском книжном рынке снова появилась англоязычная книга «Towards a Typology of Soviet Mass Housing. Prefabrication in the USSR 1955 – 1991» («К типологии массового жилья в СССР. Панельное домостроение в СССР в 1955-1991 гг.»). В 2015 году её выпустило издательство DOM publishers, авторами стали архитекторы Дмитрий Задорин и Филипп Мойзер. К книге прилагаются карточная игра на основе популярных серий панельных домов и гипсовая модель хрущёвки (серия I-464). Издание можно приобрести в магазине «Фаланстер» и на выставке «Арх Москва». Стоимость набора около 2100 руб.

Набор «К типологии массового жилья в СССР». Изображение с сайта dom-publishers.com
Набор «К типологии массового жилья в СССР». Изображение с сайта dom-publishers.com
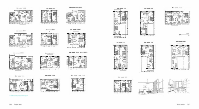
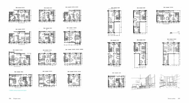
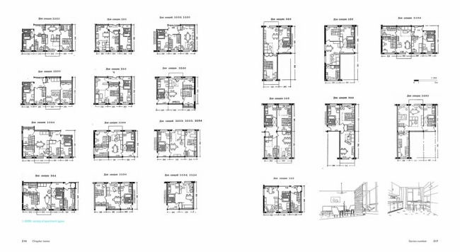
Страница из книги «К типологии массового жилья в СССР». Изображение с сайта dom-publishers.com
Страница из книги «К типологии массового жилья в СССР». Изображение с сайта dom-publishers.com
Карты из набора «К типологии массового жилья в СССР». Изображение с сайта dom-publishers.com
Карты из набора «К типологии массового жилья в СССР». Изображение с сайта dom-publishers.com
Страница из книги «К типологии массового жилья в СССР». Изображение с сайта dom-publishers.com
Страница из книги «К типологии массового жилья в СССР». Изображение с сайта dom-publishers.com

В своей работе авторы выделили наиболее популярные серии массового жилья, охватив практически всю территорию Советского Союза, от Калининграда до Владивостока. В отличие от большинства книг о типовых советских постройках, фокусирующихся на историческом и социальном аспекте, «книга Мойзера и Задорина рассматривает именно архитектурные решения и задается вопросом, как создавалась эта среда. Оказывается, таких ответов были сотни. Исследование Мойзера и Задорина открыло огромное разнообразие архитектурно-технических решений. Жилищный проект представлен как многосторонний поиск их наиболее эффективных вариантов», говорится в рецензии Николая Ерофеева на сайте «Горький»
Страница из книги «К типологии массового жилья в СССР». Изображение с сайта dom-publishers.com
Страница из книги «К типологии массового жилья в СССР». Изображение с сайта dom-publishers.com
Страница из книги «К типологии массового жилья в СССР». Изображение с сайта dom-publishers.com
Страница из книги «К типологии массового жилья в СССР». Изображение с сайта dom-publishers.com