Размещено на портале Архи.ру (www.archi.ru)

23.05.2017

Еще одна жизнь венецианского палаццо

Елизавета Эбнер
Объект:
Комплекс Фондако деи Тедески – реконструкция
Адрес:
Италия, None, Венеция. Sestiere San Marco, 5339-5349, 5562
Мастерская:
OMA

Современная глобальная коммерция и контекст исторического наследия: венецианское Фондако-деи-Тедески как дорогой универмаг по проекту OMA.

Комплекс Фондако деи Тедески - реконструкция © ОМА
Комплекс Фондако деи Тедески - реконструкция © ОМА

Здание Фондако-деи-Тедески (что можно перевести как «Немецкий двор») было построено в 1228, чтобы служить одновременно жилым домом, местом торговли и складом для быстро богатеющих в Венеции купцов из германских земель. В 1505 разрушительный пожар почти уничтожил палаццо, но через три года, в 1508, его восстановили по проекту Джироламо Тедеско и украсили фресками Джорджоне и Тициана (их сохранившиеся фрагменты можно увидеть сегодня во дворце Ка Д’Оро). В 1797 из-за падения Венецианской республики Фондако-деи-Тедески было покинуто коммерсантами и с тех пор использовалось не по назначению. С приходом к власти Муссолини палаццо было грубо «отреставрировано» с использованием бетона и на долгие годы превращено в почтамт. В сложной биографии здания в 2008 наступил новый период: за сумму в 53 миллиона евро его приобрела компания Benetton – с целью превращения в торговый центр.
Комплекс Фондако деи Тедески – реконструкция. Фото: Delfino Sisto Legnani & Marco Cappelletti © OMA
Комплекс Фондако деи Тедески – реконструкция. Фото: Delfino Sisto Legnani & Marco Cappelletti © OMA

Уже давно из Венеции идет отток коренных жителей. Этому процессу способствуют многие очевидные факторы: непрекращающийся поток туристов, как следствие – постоянно растущие цены на товары повседневного спроса, преобразование исторически важных зданий в магазины или отели. От венецианцев часто можно услышать, что город такими темпами скоро превратится в Диснейленд, а вышеупомянутая компания Benetton, по их мнению, только ускоряет этот процесс. Эта фирма на протяжении долгого времени скупает недвижимость в городе и приспосабливает ее под коммерческие цели. Этот процесс был даже описан в книге под названием «Бенеттаун» («Город Benetton’а»), выпущенной на экономическом факультете одного из венецианских университетов.
Комплекс Фондако деи Тедески – реконструкция. Фото: Delfino Sisto Legnani & Marco Cappelletti © OMA
Комплекс Фондако деи Тедески – реконструкция. Фото: Delfino Sisto Legnani & Marco Cappelletti © OMA

Вскоре после покупки Benetton выставил Фондако-деи-Тедески на рынок с предложением по долгосрочному лизингу. В тот момент DFS, гонконгский ритейлер товаров сегмента luxury, который известен своей международной сетью магазинов Duty Free, как раз активно искал площадку для инвестиций в Европе, однако во всех ключевых городах континента уже работали крупные торговые центры, и только в Венеции сложилась интересная для фирмы ситуация – отсутствия большого универмага, где продукция разных брендов была бы собрана под одной крышей. Между двумя компаниями была заключена сделка.
Комплекс Фондако деи Тедески – реконструкция © Елизавета Клепанова
Комплекс Фондако деи Тедески – реконструкция © Елизавета Клепанова

Для реализации проекта преобразования Фондако-деи-Тедески под магазин были приглашены ведущие специалисты в своих сферах: бюро ОМА в качестве архитекторов (в портфолио компании есть такие торговые объекты, как флагманский магазин Prada в Нью-Йорке и реновация универмага KaDeWe в Берлине), Филипп Старк как дизайнер бара и кафе, мастерская Jamie Fobert Architects для работы над интерьером общественных пространств, Витторио Радиче как консультант по основным вопросам (это член совета директоров главного миланского универмага La Rinascente), Стефания Савиоло (директор центра изучения роскоши и моды университета Боккони) – тренер менеджеров-стажеров, Массимо Алайамо (первый шеф-повар в истории, который был отмечен тремя звездами Michelin в 28 лет) – ответственный за общественное питание.
Комплекс Фондако деи Тедески – реконструкция. Бетонные фермы почтамта. 1940 © OMA
Комплекс Фондако деи Тедески – реконструкция. Бетонные фермы почтамта. 1940 © OMA
Комплекс Фондако деи Тедески – реконструкция. Перестройка сводов в 1930-е годы © OMA
Комплекс Фондако деи Тедески – реконструкция. Перестройка сводов в 1930-е годы © OMA

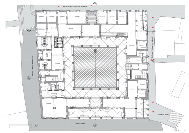
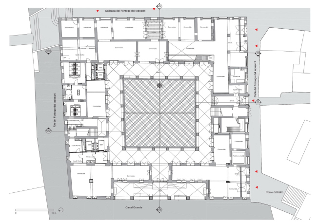
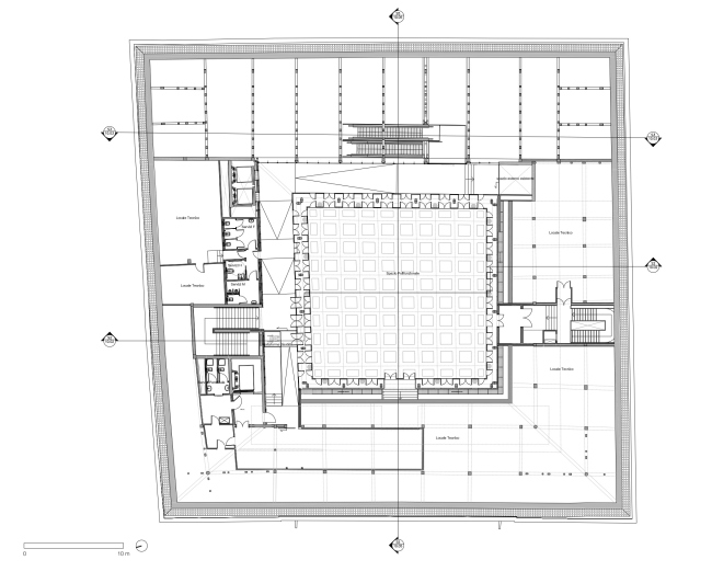
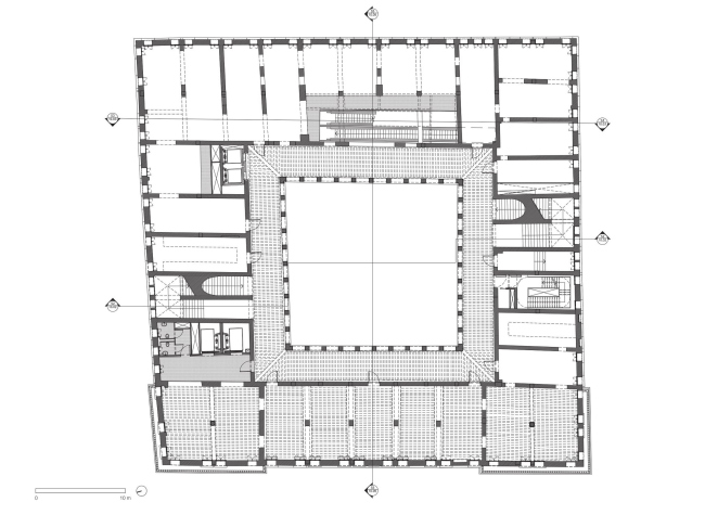
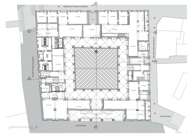
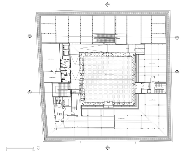
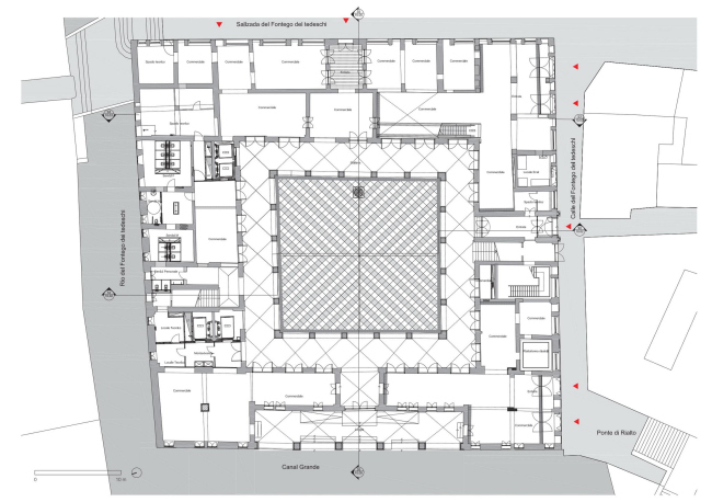
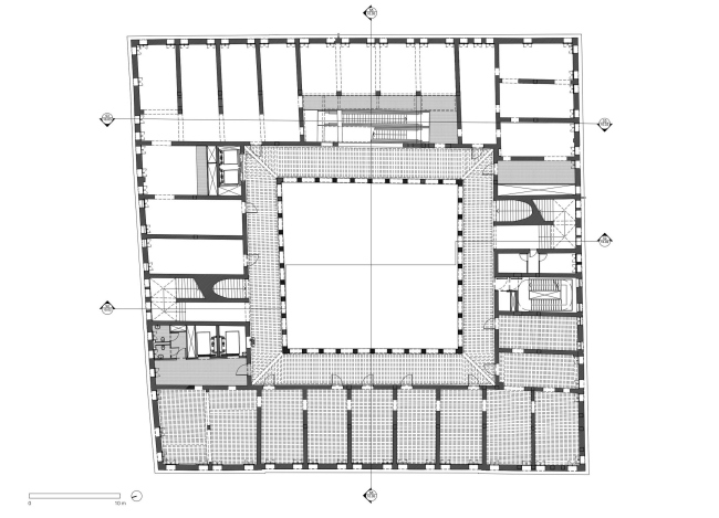
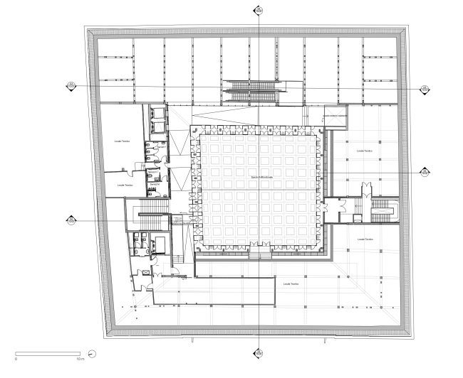
Здание палаццо имеет статус памятника истории и архитектуры, несмотря на радикальные перестройки в течение всего его существования. Для архитекторов ОМА это составило определенную сложность: на какой из этапов истории здания нужно опираться в проекте, если их за пять столетий было так много? Нужен был компромисс, и он был найден: каждое архитектурное вмешательство, предложенное бюро ОМА, так или иначе показывает реальную сущность Фондако-деи-Тедески и слои его богатой и непростой «жизни», в то же время прагматично учитывая новую коммерческую программу сооружения и создавая ряд общественных пространств, открытых для города – к примеру, внутренний двор, через который можно беспрепятственно проходить в любое время суток, как через любую площадь-кампо в Венеции. К существующим входам были добавлены два дополнительных, а помещения были объединены в анфилады – наподобие того, как это было в изначальных планах здания. Стены галерей, когда-то покрытые фресками, местами также получили росписи, но уже в современном духе. Нетронутыми остались угловые помещения Фондако из-за их ключевой роли в историческом устройстве здания. Подарком жителям и туристам стала великолепная терраса на крыше с панорамным видом на Гранд-канал и окрестности. Раньше роскошь увидеть город с высоты можно было позволить себе только за деньги – например, поднявшись на кампанилы собора Святого Марка или церкви Сан-Джорджо-Маджоре, или же ажурную лестницу палаццо Контарини-дель-Боволо – а теперь это можно сделать абсолютно бесплатно в Фондако-деи-Тедески. Еще одним нововведением в Фондако стал зал над новым стеклянным перекрытием – реконструкция надстройки XIX века, изначально – просто кровли внутреннего двора. Теперь новое пространство служит для проведения различных мероприятий. Для того, чтобы получить необходимое для зала пространство и сделать его доступным для посетителей, крыша была размещена на 1,6 метра выше ее первоначального положения и теперь поддерживается новой стальной конструкцией. Внутренние стены здесь состоят из подвижных панелей, покрытых окисленной латунью различных оттенков. Новый дополнительный этаж из стали и стекла снизу из внутреннего двора выглядит как современная версия характерных для итальянской архитектуры кессонированных потолков – cassettoni: реверанс компании ОMA по отношению к культурному наследию страны.
Комплекс Фондако деи Тедески – реконструкция. Фото: Delfino Sisto Legnani & Marco Cappelletti © OMA
Комплекс Фондако деи Тедески – реконструкция. Фото: Delfino Sisto Legnani & Marco Cappelletti © OMA

Важным элементом реконструкции Фондако стало создание в здании вертикальных связей. Теперь в нем появились ярко-красные эскалаторы, декорированные деревом и латунью. Со стороны Калле-дель-Фонтего центральное помещение занимает новая лестница, которая была реализована как вставка в здание. Она – образцовый пример аккуратной работы с наследием: это стальная конструкция, прикрепленная к новой бетонной стене, которая, в свою очередь, не соприкасается с существующими историческими стенами. Таким образом оригинальная структура Фондако становится видимой. Для облицовки балюстрады лестницы использовалась латунь в естественном и окисленном состоянии. Впрочем, историческую структуру здания видно еще и в лифте с стеклянной стеной и потолком: во время его движения между этажами можно посмотреть на каменную кладку Фондако-деи-Тедески.
Комплекс Фондако деи Тедески – реконструкция © Елизавета Клепанова
Комплекс Фондако деи Тедески – реконструкция © Елизавета Клепанова

Нужно отметить использование при реконструкции традиционных материалов – но инновационными способами. К примеру, ограждения галерейных пространств Фондако из железа сочетают дизайн ОМА с работой местных мастеров, а истрийский камень вместе с мрамором Rosso di Verona складываются в переосмысленный красно-белый венецианский орнамент на полу внутреннего двора. Чаще всего в проекте встречается латунь: этот металл многократно предстает как в своем естественном состоянии, так и превращенный в красочный градиент посредством специального процесса окисления – от кобальтового синего до светло-золотистого.
Комплекс Фондако деи Тедески – реконструкция. Фото: Delfino Sisto Legnani & Marco Cappelletti © OMA
Комплекс Фондако деи Тедески – реконструкция. Фото: Delfino Sisto Legnani & Marco Cappelletti © OMA

Руководство DFS хотело сделать характер комплекса местным настолько, насколько это возможно, поэтому в Фондако-деи-Тедески, помимо продукции международных корпораций, представлены настоящие венецианские товары: высококачественное муранское стекло, изготовленные вручную шляпы гондольеров и прочее. Фондако теперь должно стать местом, где туристы могут купить на сто процентов аутентичные итальянские продукты, аксессуары, сувениры, а также, конечно, поесть по-итальянски.
Комплекс Фондако деи Тедески – реконструкция. Фото: Delfino Sisto Legnani & Marco Cappelletti © OMA
Комплекс Фондако деи Тедески – реконструкция. Фото: Delfino Sisto Legnani & Marco Cappelletti © OMA

Проект Фондако-деи-Тедески, пожалуй, вызвал чересчур бурную реакцию со стороны общественности. На самом деле, другие торговые центры, пусть и несколько меньшего масштаба, но тоже занимающие ключевые позиции в центре Венеции, были устроены с куда меньшим уважением как к истории города в целом, так и к архитектуре их зданий. Объективно нужно отметить и то, что Фондако-деи-Тедески долгие годы находилось в крайне запущенном состоянии, и почтамт, занимавший два его этажа, никаким образом его не украшал, но почему-то не вызывал у венецианцев негативных чувств. Ну а говорили бы международные СМИ об этом проекте, если бы его выполнил не Рем Колхас? Возможно, что и нет.
Комплекс Фондако деи Тедески – реконструкция. Фото: Delfino Sisto Legnani & Marco Cappelletti © OMA
Комплекс Фондако деи Тедески – реконструкция. Фото: Delfino Sisto Legnani & Marco Cappelletti © OMA
Комплекс Фондако деи Тедески – реконструкция © Елизавета Клепанова
Комплекс Фондако деи Тедески – реконструкция © Елизавета Клепанова
Комплекс Фондако деи Тедески – реконструкция. Фото: Delfino Sisto Legnani & Marco Cappelletti © OMA
Комплекс Фондако деи Тедески – реконструкция. Фото: Delfino Sisto Legnani & Marco Cappelletti © OMA
Комплекс Фондако деи Тедески – реконструкция © Елизавета Клепанова
Комплекс Фондако деи Тедески – реконструкция © Елизавета Клепанова
Комплекс Фондако деи Тедески – реконструкция. Фото: Delfino Sisto Legnani & Marco Cappelletti © OMA
Комплекс Фондако деи Тедески – реконструкция. Фото: Delfino Sisto Legnani & Marco Cappelletti © OMA
Комплекс Фондако деи Тедески – реконструкция © OMA
Комплекс Фондако деи Тедески – реконструкция © OMA
Комплекс Фондако деи Тедески – реконструкция © OMA
Комплекс Фондако деи Тедески – реконструкция © OMA
Комплекс Фондако деи Тедески – реконструкция © OMA
Комплекс Фондако деи Тедески – реконструкция © OMA
Комплекс Фондако деи Тедески – реконструкция © OMA
Комплекс Фондако деи Тедески – реконструкция © OMA
Комплекс Фондако деи Тедески – реконструкция © OMA
Комплекс Фондако деи Тедески – реконструкция © OMA
Комплекс Фондако деи Тедески – реконструкция © OMA
Комплекс Фондако деи Тедески – реконструкция © OMA
Комплекс Фондако деи Тедески – реконструкция © OMA
Комплекс Фондако деи Тедески – реконструкция © OMA
Комплекс Фондако деи Тедески – реконструкция © OMA
Комплекс Фондако деи Тедески – реконструкция © OMA
Комплекс Фондако деи Тедески – реконструкция © OMA
Комплекс Фондако деи Тедески – реконструкция © OMA
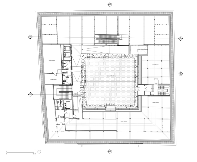
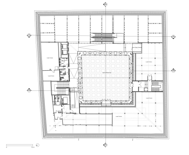
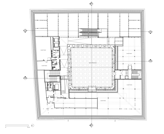
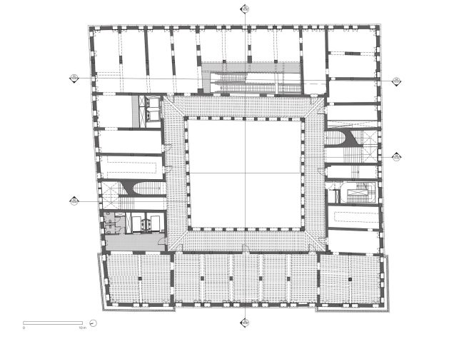
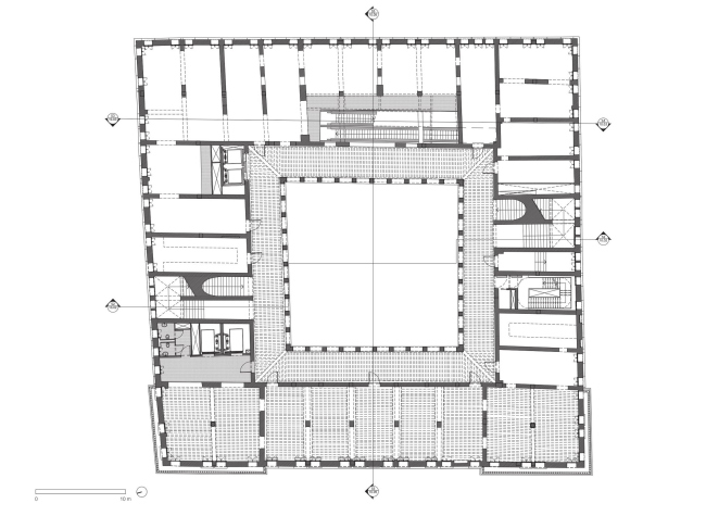
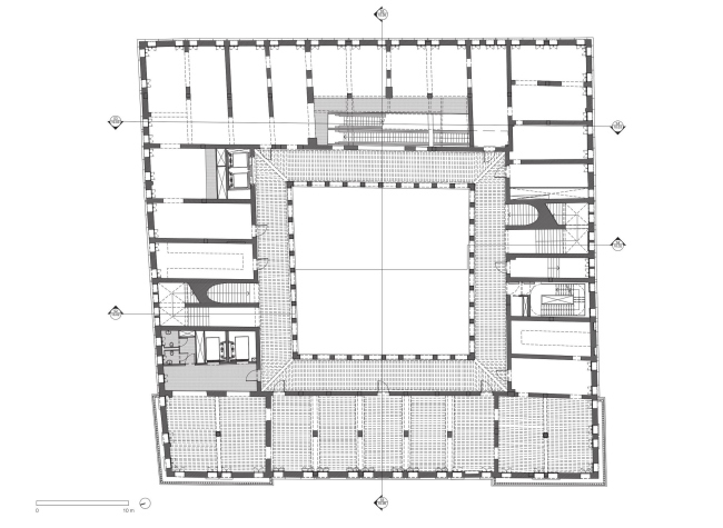
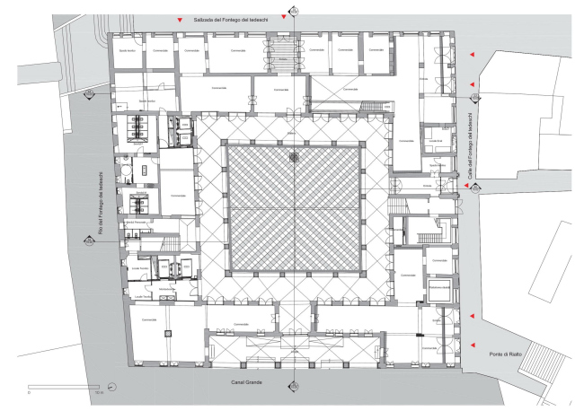
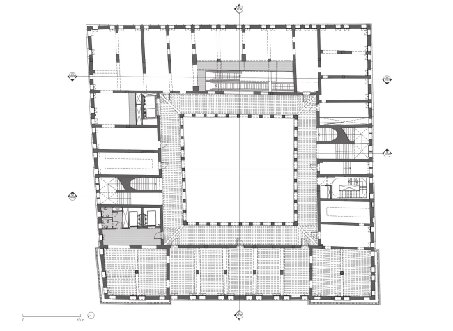
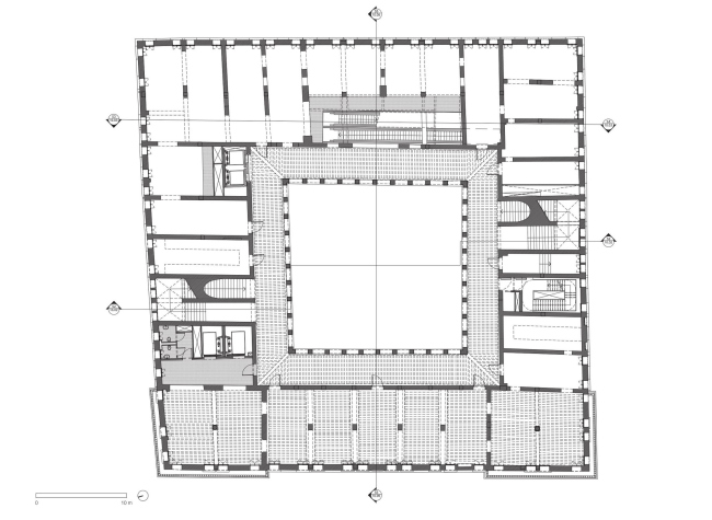
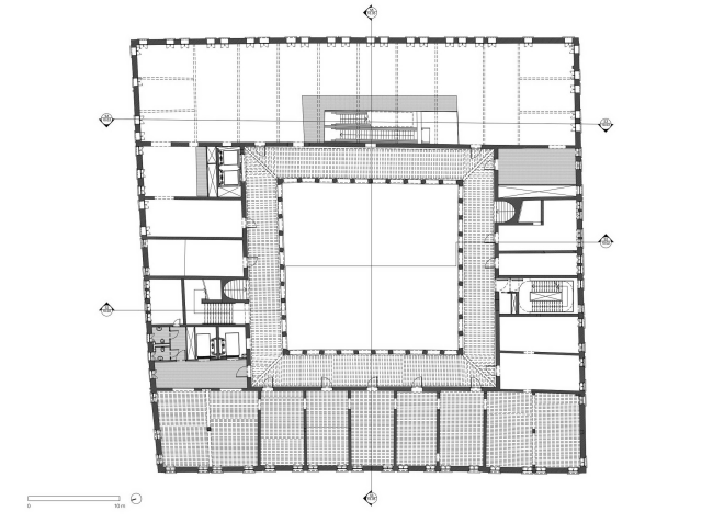
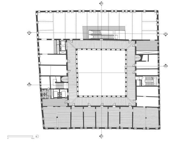
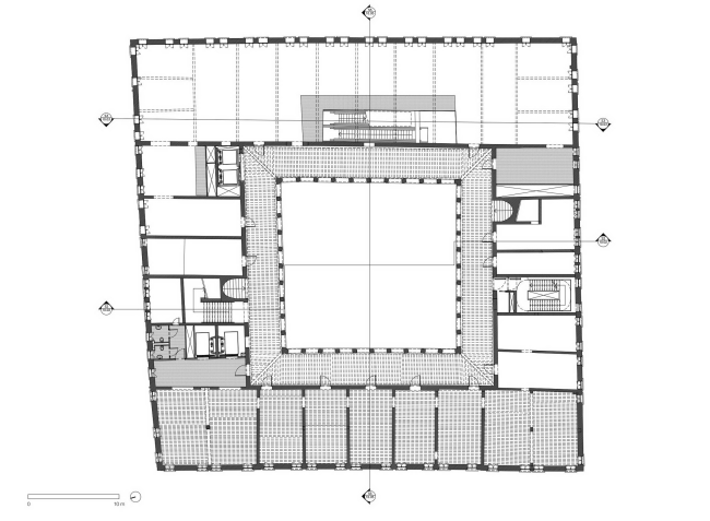
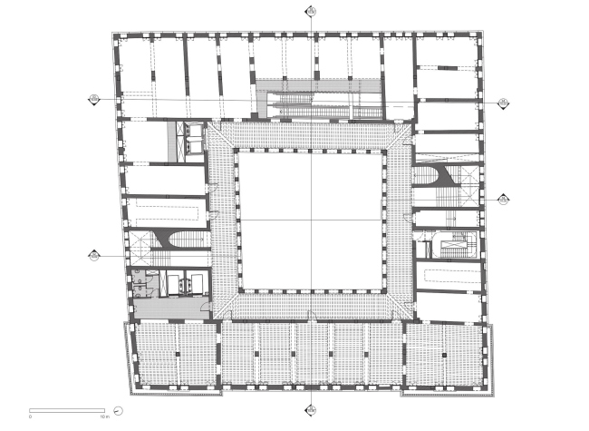
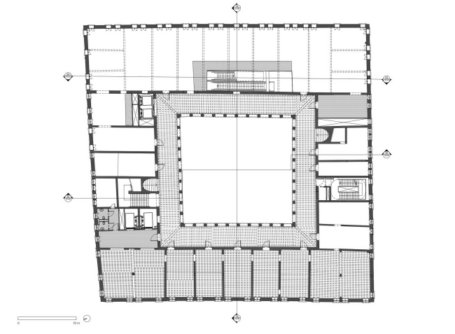
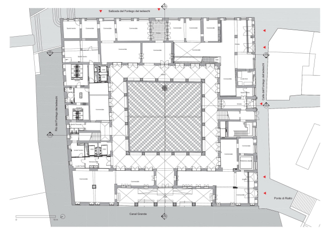
Комплекс Фондако деи Тедески – реконструкция. План 1-го этажа. Снесенные с 1900 до начала реконструкции стены помечены желтым, возведенные за тот же период – красным © OMA
Комплекс Фондако деи Тедески – реконструкция. План 1-го этажа. Снесенные с 1900 до начала реконструкции стены помечены желтым, возведенные за тот же период – красным © OMA