Размещено на портале Архи.ру (www.archi.ru)

19.05.2017

Градсовет Петербурга 17.05.2017

Ирина Бембель
Объект:
Концепция реконструкции павильона метро «Парк Победы»
Адрес:
Россия, Санкт-Петербург. Московский проспект, дом 188
Многофункциональный центр торжественных мероприятий «Невский дворец бракосочетания»
Адрес:
Россия, Санкт-Петербург. Малоохтинский проспект

17 мая на заседании петербургского градсовета рассматривали сразу пять вопросов.

Чудо-корабль

Многофункциональный центр торжественных мероприятий «Невский дворец бракосочетания» © Urbis СПб.
Многофункциональный центр торжественных мероприятий «Невский дворец бракосочетания» © Urbis СПб.

Начали с главного. Олег Харченко представил эскиз дворца бракосочетаний на уникальном участке Малоохтинского проспекта, где часть суши небольшим мысом выдаётся в водную гладь Невы перед полотном автострады.

Заказчиком выступило ООО «Инвест-Групп», проектировщиком – ООО «УРБИС-СПб». Площадь участка под строительство составляет 0,44 га. Прежде здесь была лодочная станция, затем участок был продан в частные руки, что делает его застройку практически неизбежной.
Многофункциональный центр торжественных мероприятий «Невский дворец бракосочетания». Ситуационный план © Urbis СПб.
Многофункциональный центр торжественных мероприятий «Невский дворец бракосочетания». Ситуационный план © Urbis СПб.
Многофункциональный центр торжественных мероприятий «Невский дворец бракосочетания» © Urbis СПб.
Многофункциональный центр торжественных мероприятий «Невский дворец бракосочетания» © Urbis СПб.
Многофункциональный центр торжественных мероприятий «Невский дворец бракосочетания». Фасад со стороны города © Urbis СПб.
Многофункциональный центр торжественных мероприятий «Невский дворец бракосочетания». Фасад со стороны города © Urbis СПб.

Де юро всё законно, де факто все понимают, что новый объект радикальным образом изменит облик и сложившуюся структуру набережной – а это регулярный фронт монументальной довоенной застройки Г.А. Симонова и Б.Р. Рубаненко. Кроме того, здание перекроет панораму противоположного берега с ансамблем Александро-Невской лавры. Рецензент Никита Явейн несколько раз произнёс фразу «если строительство здесь вообще возможно» – для него, как мне показалось, это не очевидно.

Сам проект мастерской «УРБИС-СПб» представляет собой сегментообразное в плане 4-этажное 17-метровое здание, почти буквально повторяющее форму участка. На симметричном плане вырастает, расширяясь во все стороны, неправильный объём, отдалённо напоминающий корабль. При этом оба его «борта» решительно разнятся между собой. Тот, что выходит на Неву, полностью остеклён и издали напоминает спортивную арену. Фасад, обращённый к суше, принимает криволинейные очертания вслед за планом двух верхних этажей. Боковые фасады, по словам автора, «практически отсутствуют» и по этой причине не были показаны в развёртке. Между тем при движении по магистрали будет виден именно стык двух совершенно разнородных бортов чудо-корабля.
Многофункциональный центр торжественных мероприятий «Невский дворец бракосочетания». Развертка по набережной © Urbis СПб.
Многофункциональный центр торжественных мероприятий «Невский дворец бракосочетания». Развертка по набережной © Urbis СПб.
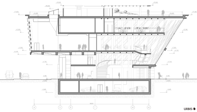
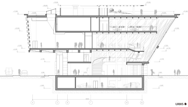
Многофункциональный центр торжественных мероприятий «Невский дворец бракосочетания». Разрез © Urbis СПб.
Многофункциональный центр торжественных мероприятий «Невский дворец бракосочетания». Разрез © Urbis СПб.
Многофункциональный центр торжественных мероприятий «Невский дворец бракосочетания». План 1 этажа © Urbis СПб.
Многофункциональный центр торжественных мероприятий «Невский дворец бракосочетания». План 1 этажа © Urbis СПб.
Многофункциональный центр торжественных мероприятий «Невский дворец бракосочетания». Генплан © Urbis СПб.
Многофункциональный центр торжественных мероприятий «Невский дворец бракосочетания». Генплан © Urbis СПб.
Многофункциональный центр торжественных мероприятий «Невский дворец бракосочетания». Генплан © Urbis СПб.
Многофункциональный центр торжественных мероприятий «Невский дворец бракосочетания». Генплан © Urbis СПб.

Рецензент отметил большую культуру чёрно-белой подачи проекта, на которой, при чрезвычайно мелком масштабе береговых развёрток и перспектив, новый объект практически не читался. Не исключено что это и было целью авторов.

Впрочем, большинство выступавших проект поддержало, одобрив идею корабля, причалившего к пристани. Критике подверглась, в основном, видовая надстройка на крыше для мероприятий на открытом воздухе как откровенный задел под лишний этаж.
Наиболее резко выступил Владимир Попов: «Убеждён, что это будет градостроительная ошибка». Архитектор назвал проект ещё одним печальным свидетельством архитектуры сегодняшнего дня, которых и так уже немало на Малоохтинской набережной (очевидно, имелся ввиду главный офис банка «Санкт-Петербург», прозванный в народе «электрочайником»/«унитазом» и соседствующая с ним стеклянная призма БЦ “Eightedges”).
Многофункциональный центр торжественных мероприятий «Невский дворец бракосочетания». Генплан © Urbis СПб.
Многофункциональный центр торжественных мероприятий «Невский дворец бракосочетания». Генплан © Urbis СПб.

В дополнение к собственной рецензии, Никита Явейн высказал идею передвинуть новое здание на ось Таллинской улицы. Эту идею поддержал Михаил Мамошин – автор единственного, на мой взгляд, убедительного современного внедрения в облик невской набережной (здание ОАО АК «Транснефть»). Архитектор предложил решить новое здание в виде двух павильонов, перекинув между ними арку. Однако это потребовало бы подсыпки малоохтинского мыса, на что заказчик, конечно, не пойдёт.

В целом идея насытить жизнью пустынные просторы прибрежной автострады представляется здравой, тем более, что единственной альтернативой общественной функции было габаритное элитное жильё. Однако платой за это может стать новая порция визуального винегрета, который постепенно заполняет современные набережные.

Исключение как норма
ЖК в Невском районе. Перспектива © «ПАРИТЕТ ГРУПП»
ЖК в Невском районе. Перспектива © «ПАРИТЕТ ГРУПП»

Вторым номером обсуждали эскиз ЖК на бывшей промышленной территории в Невском районе. Заказчик – ОАО «Электромеханический завод, проектировщик – ООО «ПАРИТЕТ ГРУПП». Рассмотрение включало отклонение от предельных параметров в части высоты.
ЖК в Невском районе. Перспектива © «ПАРИТЕТ ГРУПП»
ЖК в Невском районе. Перспектива © «ПАРИТЕТ ГРУПП»

Докладчик Андрей Шаров представил симметричную гребёнчатую композицию из 20-этажных призм, решённую как пропилеи продолженного Уездного проспекта. При этом заложенные авторами 60 м – это предельно допустимая здесь высота, предусмотренная лишь для точечных объектов, тогда как основной уровень застройки не должен превышать 40 м. Как отметил Вячеслав Ухов, «мы попадаем в ловушки, которые сами себе расставляем». Если отклонение от нормы возможно – значит, заказчик захочет использовать его по максимуму.
ЖК в Невском районе. Перспектива © «ПАРИТЕТ ГРУПП»
ЖК в Невском районе. Перспектива © «ПАРИТЕТ ГРУПП»
ЖК в Невском районе. Перспектива © «ПАРИТЕТ ГРУПП»
ЖК в Невском районе. Перспектива © «ПАРИТЕТ ГРУПП»

Неоправданный масштаб вызвал дружное сопротивление коллег. Многим не понравилось и однообразное «ковровое» решение гигантских фасадов, хотя «богатство» пластики и убранства едва ли спасло бы положение – на мой взгляд, скорее, напротив. Так или иначе, проект «очередного гетто» был жёстко раскритикован.
ЖК в Невском районе. Схема на земельном участке © «ПАРИТЕТ ГРУПП»
ЖК в Невском районе. Схема на земельном участке © «ПАРИТЕТ ГРУПП»
ЖК в Невском районе. Ситуационный план © «ПАРИТЕТ ГРУПП»
ЖК в Невском районе. Ситуационный план © «ПАРИТЕТ ГРУПП»
ЖК в Невском районе. Схема современного использования территории © «ПАРИТЕТ ГРУПП»
ЖК в Невском районе. Схема современного использования территории © «ПАРИТЕТ ГРУПП»


Старой станции – новый павильон
Концепция реконструкции павильона метро «Парк Победы» © «СУАРТ-проект»
Концепция реконструкции павильона метро «Парк Победы» © «СУАРТ-проект»

Далее обсуждался эскиз реконструкции павильона метро «Парк Победы». Существующий павильон был построен в 1961 по типовому проекту архитекторов А.С. Гецкина, В.П. Шуваловой (по нему были выполнены вестибюли станций «Электросила», «Фрунзенская» и с некоторыми изменениями – «Горьковская»). Позднее павильон реконструировали, что исказило скромный и лёгкий стиль 1960-х. Заказчиком выступил Петербургский метрополитен, проектировщиком – ООО «СУАРТ-проект» – мастерская, которая ранее осуществила перестройку павильона «Горьковской». Цель нынешней трансформации – расширение вестибюля и наклонного хода станции.
Концепция реконструкции павильона метро «Парк Победы» © «СУАРТ-проект»
Концепция реконструкции павильона метро «Парк Победы» © «СУАРТ-проект»
Концепция реконструкции павильона метро «Парк Победы» © «СУАРТ-проект»
Концепция реконструкции павильона метро «Парк Победы» © «СУАРТ-проект»
Концепция реконструкции павильона метро «Парк Победы» © «СУАРТ-проект»
Концепция реконструкции павильона метро «Парк Победы» © «СУАРТ-проект»
Концепция реконструкции павильона метро «Парк Победы» © «СУАРТ-проект»
Концепция реконструкции павильона метро «Парк Победы» © «СУАРТ-проект»
Концепция реконструкции павильона метро «Парк Победы». Генплан © «СУАРТ-проект»
Концепция реконструкции павильона метро «Парк Победы». Генплан © «СУАРТ-проект»

Проект представляет собой яйцеобразное в плане сооружение со скрытым вторым этажом для внутреннего использования. Здание выглядит как двухслойная конструкция, где поверх стеклянного объёма «надет» расширяющийся кверху каменный футляр. Увенчивает павильон небольшой купол и козырёк из двух декоративных колец. Именно он стал главным объектом критики, хотя высказывались и другие замечания. Например, недоучёт мемориального характера места (в блокаду на территории Парка Победы сжигали трупы умерших ленинградцев), а также общей монументальной стилистики Московского проспекта. Высказывались пожелания если не повторить буквально павильон Гецкина (что невозможно из-за изменения размеров и пропорций), то по крайней мере стилизовать под него новое сооружение. Владимир Реппо заметил, что архитектурно «перепутаны» передний и задний фасады, из-за чего пассажирам будет сложно найти главный вход. В целом было очевидно, что проект коллег не убедил.

Скульптура напоследок
В завершение программы было рассмотрено два проекта монументальной скульптуры. Один из них – воссоздание утраченного памятника принцу Петру Ольденбургскому скульптора Ивана Шредера. Монумент, установленный в 1889 году перед Мариинской больницей, был утрачен в 1930 году и воссоздаётся по сохранившимся фотографиям. Проект заказан Международным благотворительным фондом им. Д.С. Лихачёва. Группа авторов – В.С. и С.В. Ивановы, Г.В. Лукьянов, И.В. Вержбицкая, С.П. Одновалов.
Проект воссоздания  памятника принцу Петру Ольденбургскому © В.С. и С.В. Ивановы, Г.В. Лукьянов, И.В. Вержбицкая, С.П. Одновалов
Проект воссоздания памятника принцу Петру Ольденбургскому © В.С. и С.В. Ивановы, Г.В. Лукьянов, И.В. Вержбицкая, С.П. Одновалов
Проект воссоздания  памятника принцу Петру Ольденбургскому © В.С. и С.В. Ивановы, Г.В. Лукьянов, И.В. Вержбицкая, С.П. Одновалов
Проект воссоздания памятника принцу Петру Ольденбургскому © В.С. и С.В. Ивановы, Г.В. Лукьянов, И.В. Вержбицкая, С.П. Одновалов
Проект воссоздания  памятника принцу Петру Ольденбургскому © В.С. и С.В. Ивановы, Г.В. Лукьянов, И.В. Вержбицкая, С.П. Одновалов
Проект воссоздания памятника принцу Петру Ольденбургскому © В.С. и С.В. Ивановы, Г.В. Лукьянов, И.В. Вержбицкая, С.П. Одновалов
Проект воссоздания  памятника принцу Петру Ольденбургскому © В.С. и С.В. Ивановы, Г.В. Лукьянов, И.В. Вержбицкая, С.П. Одновалов
Проект воссоздания памятника принцу Петру Ольденбургскому © В.С. и С.В. Ивановы, Г.В. Лукьянов, И.В. Вержбицкая, С.П. Одновалов
Проект воссоздания  памятника принцу Петру Ольденбургскому © В.С. и С.В. Ивановы, Г.В. Лукьянов, И.В. Вержбицкая, С.П. Одновалов
Проект воссоздания памятника принцу Петру Ольденбургскому © В.С. и С.В. Ивановы, Г.В. Лукьянов, И.В. Вержбицкая, С.П. Одновалов

Безусловно одобряя идею воссоздания, члены градсовета отметили довольно небрежную подачу и некоторые неточности отлитой модели в сравнении с представленной архивной фотографией. Также обращалось особое внимание на благоустройство прилегающей территории.

Напоследок обсуждали проект памятника под названием «1914» для города Пушкина скульптора Владимира Горевого. Заказчиком стала Санкт-Петербургская общественная организация «Ветераны внешней разведки».

Скульптура представляет собой собирательный образ полкового священника, который благословляет уходящих на фронт солдат Первой мировой войны. Памятник планируется установить на Соборной площади, перед воссозданным Екатерининским храмом Константина Тона.

Это был, пожалуй, единственный проект, который практически не вызвал нареканий градсовета. Замечания касались лишь благоустройства – вместо клумбы предложили выложить «суровую» брусчатку. Прозвучал совет чуть изменить пропорции постамента, который скульптор сделал невысоким, приземистым, демократичным. Лично мне несколько дробной и многословной показалась сама фигура, что было особенно заметно в сравнении с лаконичным силуэтом принца Ольденбургского.

В целом радует сам факт востребованности городской скульптуры, что позволяет хотя бы надеяться на постепенный переход количества в качество. Впрочем, как искусство ансамблевое, городская скульптура – заложница градостроительных и архитектурных решений. И если рассмотренные памятники устанавливаются на местах, спланированных их предшественниками, то сегодня в этом смысле ситуация печальна до безнадёжности, о чём вновь напомнил градсовет.

Официальные итоги голосования появятся позже.