Размещено на портале Архи.ру (www.archi.ru)

02.05.2017

Воздушная коробка

Полина Садова
Объект:
Спортивный центр Nike Box MSK
Адрес:
Россия, Москва. Парк Горького
Спортивный центр Nike в Парке Горького
Адрес:
Россия, Москва.
Спортцентр Nike в Парке Горького
Адрес:
Россия, Москва.
Мастерская:
Kosmos Architects
КБ «Стрелка»

В Москве завершился конкурс на концепцию спортивного центра Nike в Парке Горького. Проект-победитель планируют реализовать уже в этом году.

К участию в конкурсе, который компания Nike организовала совместно с КБ «Стрелка», были приглашены пять молодых архитектурных студий: Kosmos Architects, Rhizome, «Новое», Crosby Studios и «Xора». Задачей архитекторов было разработать концепцию фирменного спортивного центра, который органично вписался бы в культурное городское пространство и при этом отражал философию известного бренда.

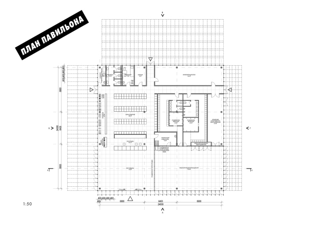
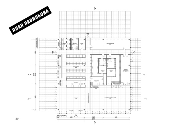
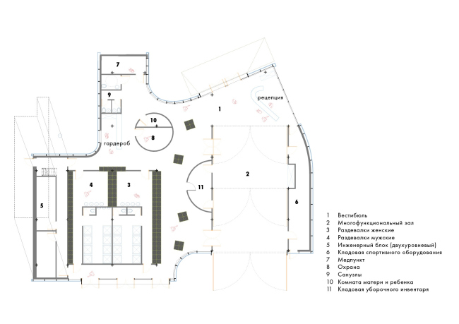
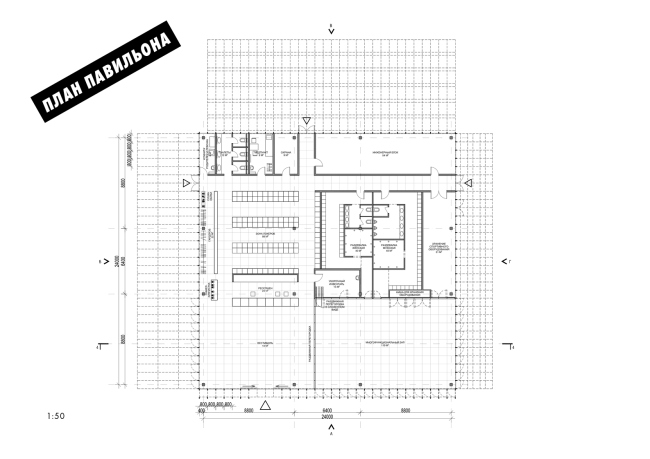
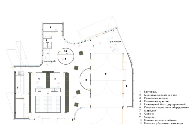
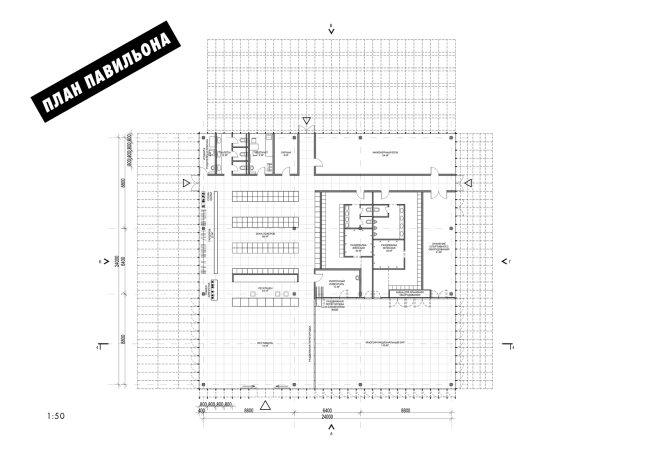
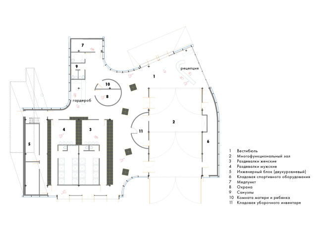
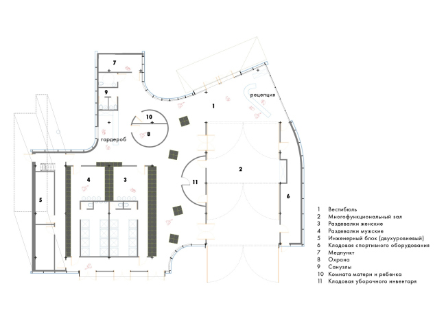
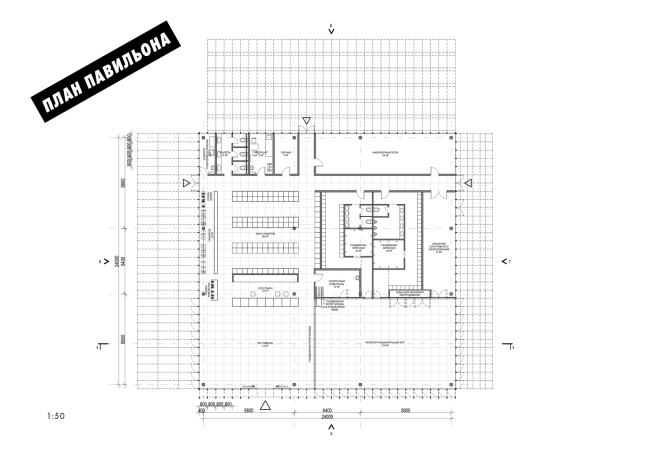
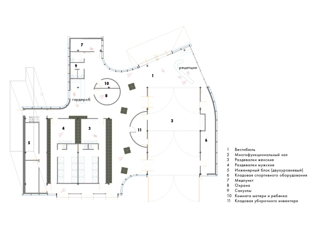
Лучшим был признан проект Kosmos Architects под названием Nike Air Box. Именно он будет реализован на территории Парка Горького в 2017 году.

Концепция спортивного центра Nike в Парке Горького © Kosmos Architects
Концепция спортивного центра Nike в Парке Горького © Kosmos Architects

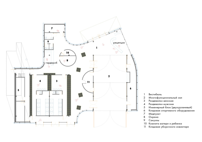
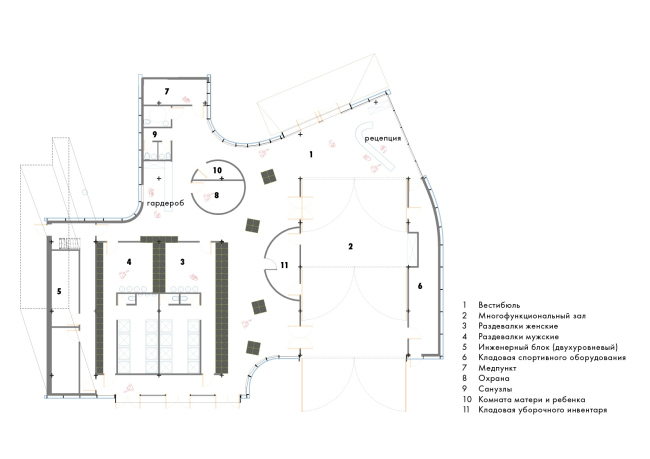
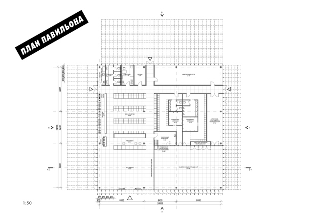
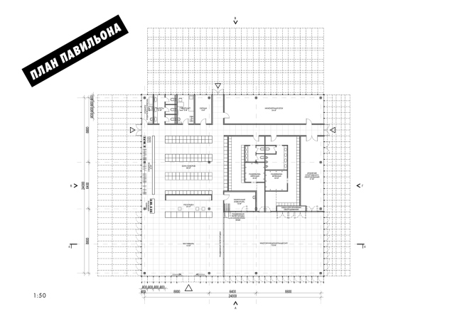
Это многофункциональная спортплощадка, которая одновременно напоминает и дворовую хоккейную коробку, и коробку для обуви. На генплане несколько функциональных зон: футбольная, баскетбольная и зона воркаута. В центре – прямоугольный павильон, каждая из сторон которого имеет свое назначение. Активное использование стекла и зеркальных поверхностей позволяет визуально увеличить объем здания и создать ощущение простора, открытости.
Концепция спортивного центра Nike в Парке Горького © Kosmos Architects
Концепция спортивного центра Nike в Парке Горького © Kosmos Architects
Концепция спортивного центра Nike в Парке Горького © Kosmos Architects
Концепция спортивного центра Nike в Парке Горького © Kosmos Architects
Концепция спортивного центра Nike в Парке Горького © Kosmos Architects
Концепция спортивного центра Nike в Парке Горького © Kosmos Architects
Концепция спортивного центра Nike в Парке Горького © Kosmos Architects
Концепция спортивного центра Nike в Парке Горького © Kosmos Architects
Концепция спортивного центра Nike в Парке Горького © Kosmos Architects
Концепция спортивного центра Nike в Парке Горького © Kosmos Architects
Концепция спортивного центра Nike в Парке Горького © Kosmos Architects
Концепция спортивного центра Nike в Парке Горького © Kosmos Architects
Концепция спортивного центра Nike в Парке Горького © Kosmos Architects
Концепция спортивного центра Nike в Парке Горького © Kosmos Architects
Концепция спортивного центра Nike в Парке Горького © Kosmos Architects
Концепция спортивного центра Nike в Парке Горького © Kosmos Architects
Концепция спортивного центра Nike в Парке Горького © Kosmos Architects
Концепция спортивного центра Nike в Парке Горького © Kosmos Architects

 
***

Ниже представлены концепции остальных участников. Ознакомиться подробнее с проектами и макетами всех конкурсантов можно на выставке в студии флагмана Nike (Кузнецкий мост 14, 4 этаж), которая будет открыта для всех желающих до 5 мая.

АБ Rhizome
Концепция спортивного центра Nike в Парке Горького © Rhizome
Концепция спортивного центра Nike в Парке Горького © Rhizome
Концепция спортивного центра Nike в Парке Горького © Rhizome
Концепция спортивного центра Nike в Парке Горького © Rhizome
Концепция спортивного центра Nike в Парке Горького © Rhizome
Концепция спортивного центра Nike в Парке Горького © Rhizome
Концепция спортивного центра Nike в Парке Горького © Rhizome
Концепция спортивного центра Nike в Парке Горького © Rhizome
Концепция спортивного центра Nike в Парке Горького © Rhizome
Концепция спортивного центра Nike в Парке Горького © Rhizome
Концепция спортивного центра Nike в Парке Горького © Rhizome
Концепция спортивного центра Nike в Парке Горького © Rhizome
Концепция спортивного центра Nike в Парке Горького © Rhizome
Концепция спортивного центра Nike в Парке Горького © Rhizome
Концепция спортивного центра Nike в Парке Горького © Rhizome
Концепция спортивного центра Nike в Парке Горького © Rhizome
 
***

Crosby Studios
Концепция спортивного центра Nike в Парке Горького © Crosby Studios
Концепция спортивного центра Nike в Парке Горького © Crosby Studios
Концепция спортивного центра Nike в Парке Горького © Crosby Studios
Концепция спортивного центра Nike в Парке Горького © Crosby Studios
Концепция спортивного центра Nike в Парке Горького © Crosby Studios
Концепция спортивного центра Nike в Парке Горького © Crosby Studios
Концепция спортивного центра Nike в Парке Горького © Crosby Studios
Концепция спортивного центра Nike в Парке Горького © Crosby Studios
Концепция спортивного центра Nike в Парке Горького © Crosby Studios
Концепция спортивного центра Nike в Парке Горького © Crosby Studios
Концепция спортивного центра Nike в Парке Горького © Crosby Studios
Концепция спортивного центра Nike в Парке Горького © Crosby Studios
Концепция спортивного центра Nike в Парке Горького © Crosby Studios
Концепция спортивного центра Nike в Парке Горького © Crosby Studios
Концепция спортивного центра Nike в Парке Горького © Crosby Studios
Концепция спортивного центра Nike в Парке Горького © Crosby Studios
Концепция спортивного центра Nike в Парке Горького © Crosby Studios
Концепция спортивного центра Nike в Парке Горького © Crosby Studios
Концепция спортивного центра Nike в Парке Горького © Crosby Studios
Концепция спортивного центра Nike в Парке Горького © Crosby Studios
Концепция спортивного центра Nike в Парке Горького © Crosby Studios
Концепция спортивного центра Nike в Парке Горького © Crosby Studios
Концепция спортивного центра Nike в Парке Горького © Crosby Studios
Концепция спортивного центра Nike в Парке Горького © Crosby Studios
Концепция спортивного центра Nike в Парке Горького © Crosby Studios
Концепция спортивного центра Nike в Парке Горького © Crosby Studios

 
***

АБ «Новое»
Концепция спортивного центра Nike в Парке Горького © АБ «Новое»
Концепция спортивного центра Nike в Парке Горького © АБ «Новое»
Концепция спортивного центра Nike в Парке Горького © АБ «Новое»
Концепция спортивного центра Nike в Парке Горького © АБ «Новое»
Концепция спортивного центра Nike в Парке Горького © АБ «Новое»
Концепция спортивного центра Nike в Парке Горького © АБ «Новое»
Концепция спортивного центра Nike в Парке Горького © АБ «Новое»
Концепция спортивного центра Nike в Парке Горького © АБ «Новое»
Концепция спортивного центра Nike в Парке Горького © АБ «Новое»
Концепция спортивного центра Nike в Парке Горького © АБ «Новое»
Концепция спортивного центра Nike в Парке Горького © АБ «Новое»
Концепция спортивного центра Nike в Парке Горького © АБ «Новое»
Концепция спортивного центра Nike в Парке Горького © АБ «Новое»
Концепция спортивного центра Nike в Парке Горького © АБ «Новое»
Концепция спортивного центра Nike в Парке Горького © АБ «Новое»
Концепция спортивного центра Nike в Парке Горького © АБ «Новое»
Концепция спортивного центра Nike в Парке Горького © АБ «Новое»
Концепция спортивного центра Nike в Парке Горького © АБ «Новое»

 
***

АБ «Xора»
Концепция спортивного центра Nike в Парке Горького © АБ «Xора»
Концепция спортивного центра Nike в Парке Горького © АБ «Xора»
Концепция спортивного центра Nike в Парке Горького © АБ «Xора»
Концепция спортивного центра Nike в Парке Горького © АБ «Xора»
Концепция спортивного центра Nike в Парке Горького © АБ «Xора»
Концепция спортивного центра Nike в Парке Горького © АБ «Xора»
Концепция спортивного центра Nike в Парке Горького © АБ «Xора»
Концепция спортивного центра Nike в Парке Горького © АБ «Xора»
Концепция спортивного центра Nike в Парке Горького © АБ «Xора»
Концепция спортивного центра Nike в Парке Горького © АБ «Xора»
Концепция спортивного центра Nike в Парке Горького © АБ «Xора»
Концепция спортивного центра Nike в Парке Горького © АБ «Xора»
Концепция спортивного центра Nike в Парке Горького © АБ «Xора»
Концепция спортивного центра Nike в Парке Горького © АБ «Xора»