Размещено на портале Архи.ру (www.archi.ru)

15.05.2017

Максимальная комплектация

Елена Петухова
Объект:
Многофункциональный комплекс «Пять звёзд»
Адрес:
Россия, Воронеж. ул. Ворошилова, д. 1А
Мастерская:
Архитектурное бюро «А.Лен»
Авторский коллектив:
Орешкин С.И. – руководитель проекта,
Андреева Р.В. – гл. архитектор проекта,
Кретова Е.С., Кочнев П.Н., Белят Е.А.,
Шляга В.Ю., Белова Е.И., Кусов А.Н.,
Бушманов Ю.С., Юмагулова Р.Р. – архитекторы

Комплекс, уникальный по своей насыщенности функциями и по сложности выстроенных между ними взаимосвязей, состоит из 10 различных блоков. Петербургское бюро «А.Лен» спроектировало его на базе советского спортивного центра «Энергия» в Воронеже.

Новые тренды регионов
Вид на МФК «Пять звёзд» с высоты птичьего полета © А.Лен
Вид на МФК «Пять звёзд» с высоты птичьего полета © А.Лен

За последние несколько лет Воронежская область превратилась в один из наиболее развитых сельскохозяйственных регионов России, поставляя продукцию крупнейшим сетевым ритейлерам. Эксперты прогнозируют рост экономики и населения, что не могло не сказаться на объемах строящегося и проектируемого жилья, которое в большинстве своем относится к эконом-классу. Но рядовые новостройки уже не могут удовлетворить требования все более и более искушенного покупателя, делающего выбор в пользу родного города, не желая при этом мириться с плохими планировками и низким качеством строительства и отделки. Новое поколение региональных девелоперов, ориентируясь на столичные тенденции, готово предложить рынку более качественный продукт, отвечающий современным стандартам жилья, основанный на градостроительных и маркетинговых исследованиях, комбинирующий различные функции и разработанный ведущими архитекторами Москвы и Петербурга. Характерным примером нового регионального девелопмента может служить проект многофункционального комплекса, выполненный бюро «А.Лен» для компании «ВДК», входящей в группу компаний Хамина.
Генеральный план многофункциональной территории «Пять звёзд» © А.Лен
Генеральный план многофункциональной территории «Пять звёзд» © А.Лен
Многофункциональный комплекс «Пять звёзд»
Многофункциональный комплекс «Пять звёзд»
© Архитектурное бюро «А.Лен»

 
Ключевое «обременение»
Спортивный комплекс «Энергия» был построен в восьмидесятые годы прошлого века в центре Воронежа на участке, ограниченном улицей и сквером Ворошилова, а также улицей Моисеева. Предполагалось, что комплекс станет региональным центром для развития легкой атлетики, игровых и водных видов спорта, единоборств и танцев. Но перестроечные бури перечеркнули все планы. Содержать и эксплуатировать огромное здание площадью 17 000 м2 оказалось слишком дорого и его практически забросили. Инвесторы интересовались ветшающим зданием только с целью сноса и освобождения перспективного участка в центре деловой и культурной жизни города.

Группа компаний Хамина, купившая участок за 250 млн рублей, предложила городским властям другой сценарий. Разработанный ими план включал строительство на свободной части территории пяти жилых башен (ЖК «Пять звезд» по проекту ООО «ВДК», архитектурной мастерской ООО «ПТМ №4 СА» и ООО «ПГС проект») с последующим финансированием реконструкции старого спортивного центра в современный многофункциональный комплекс, объединяющий спортивные функции, жилье, отель, торговлю, культурный и деловой центр, крытый паркинг, а также комплексное благоустройство и создание зеленого сквера с памятником первому российскому олимпийскому чемпиону по фигурному катанию Николаю Александровичу Панину-Коломенкину. Объект, который был проблемой, стал поводом для создания проекта «мини-города», не имеющего аналогов в России.
Многофункциональный комплекс «Пять звёзд» © А.Лен
Многофункциональный комплекс «Пять звёзд» © А.Лен

Принцип «тетриса»
Бюро «А.Лен» обладает немалым опытом проектирования как жилых, так и спортивных комплексов, но даже для него поставленная девелопером задача стала серьезным вызовом. Количество функций, которые необходимо было совместить внутри одного комплекса, подразумевало не только сложности в выстраивании многоуровневой структуры, насыщенной разными зонами и помещениями, каждое из которых имело собственный набор параметрических и технических требований при том, что часть из них должна быть взаимосвязана, а часть – изолирована, но и необходимость соблюдать требования по обеспечению безопасности. Действующая нормативная база, разумеется, не предусматривает четко прописанных регламентов для столь сложного клубка функций. Поэтому в работу над проектом сразу закладывалась необходимость подготовки индивидуальных спецтехусловий и проведения специальных мероприятий для обеспечения пожарной безопасности.
Структура многофункционального комплекса «Пять звёзд» © А.Лен
Структура многофункционального комплекса «Пять звёзд» © А.Лен

Работа над проектом шла от общего к частному. Сначала были определены места для наиболее объемных функциональных зон. В центре треугольного пятна застройки располагалось старое здание спорткомплекса. Часть его конструкций сохранили, часть демонтировали. Новые спортивные блоки встраивали и пристраивали к «историческому ядру», словно бы «обволакивая» его, заполняя все лакуны. В итоге общая площадь спортивной части комплекса составила 26 000 м2, а количество посетителей планируется до миллиона человек в год. К традиционно популярным в Воронеже видам спорта и отдыха добавились несколько новых популярных форматов. В состав будущего центра вошли 40 современных залов для игровых видов спорта: гандбола, волейбола, мини-футбола, бадминтона, настольного тенниса. К ним присоединились модернизированный скалодром высотой 16 м, зал единоборств, два фитнес-клуба, четыре бассейна – два из них по 25 м на пять и шесть дорожек, а также залы для занятия танцами. Для каждого нужно было учесть индивидуальные требования и предусмотреть сервисную инфраструктуру. Архитекторы собирали объемы и функции, словно бы складывая разноразмерные фигуры в игре «Тетрис». Кроме того, заказчик планировал разместить один из больших бассейнов в уровне первого этажа со стороны улицы – для того, чтобы прохожие могли видеть плавающих за огромными витринными окнами, как своего рода рекламу фитнесс-клуба и, заодно, здорового образа жизни.
Вид на клубный дом «Гран-При» в составе МФК «Пять звёзд» © А.Лен
Вид на клубный дом «Гран-При» в составе МФК «Пять звёзд» © А.Лен

Ближе к улице Ворошилова и началу «Спортивного» сквера сосредоточились жилая, деловая и представительская функции. Здесь в сложный клубок переплетены клубный дом «Гран-При» и одноименный бизнес-центр, конгресс-холл и отель: они вздымаются вверх, образуя высотную доминанту, акцентирующую комплекс в панораме улицы. И девелопер проекта и проектировщики прекрасно понимали важную градостроительную роль этого блока и стремились поднять его на максимальную высоту, но жесткие ограничения по инсоляции из-за расположенного позади ЖК «Пять звезд» не позволили создать более выразительный силуэт, остановив его на отметке в 55 метров. Нехватку высоты пришлось компенсировать пластической игрой выступающих и западающих в различных плоскостях корпусов, контрастирующих с подчеркнуто горизонтальным спортивным блоком.
Многофункциональный комплекс «Пять звёзд»
Многофункциональный комплекс «Пять звёзд»
© Архитектурное бюро «А.Лен»

Напротив деловой части комплекса, вдоль Делегатской улицы будет разбит сквер с комплексным благоустройством и системой встроенной подсветки, не уступающий по своим дизайнерским решениям и качеству используемых материалов лучшим столичным аналогам. С противоположной от жилой части стороны архитекторы расположили торговый блок с большим супермаркетом и традиционным набором магазинов и сервисов в формате «у дома». Рядом – многоуровневый паркинг и открытая автостоянка.
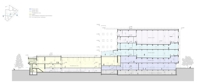
Продольный разрез МФК «Пять звёзд» вдоль «Спортивного» сквера © А.Лен
Продольный разрез МФК «Пять звёзд» вдоль «Спортивного» сквера © А.Лен
Поперечный разрез по МФК «Пять звёзд» параллельно ул. Моисеева © А.Лен
Поперечный разрез по МФК «Пять звёзд» параллельно ул. Моисеева © А.Лен

 
Внутри лабиринта
Сосредоточив такое количество функций «под одной крышей», архитекторы должны были определить, насколько они будут изолированными или, наоборот, связанными между собой. Напрашивающееся футуристическое решение: связать все со всем, дав обитателям возможность попасть куда угодно, не выходя из комплекса, – оказалось неэффективным, поскольку существенно уменьшало полезную площадь, увеличивая площади коридоров и лестниц. К тому же оно усложняло соблюдение правил пожарной безопасности.

Разумеется, самые необходимые связи предусмотрены: прежде всего речь о доступе для обитателей квартир и гостиничных номеров в фитнес-блок – весомый аргумент в пользу покупки квартир. Прямо через лобби жилого дома можно будет пройти в спортивную зону, где сосредоточены всевозможные виды спорта и отдыха для взрослых и детей, плюс отель и ресторан, куда можно пригласить знакомых и друзей. Торговый комплекс и многоуровневый паркинг будут полностью изолированными.
Фасад МФК «Пять звёзд» со стороны «Спортивного» сквера © А.Лен
Фасад МФК «Пять звёзд» со стороны «Спортивного» сквера © А.Лен


Концентрированная энергия
Внешний облик комплекса точно соответствует его структуре. Он представляет собой комбинацию блоков различного размера, часть из них ортогональная, часть имеет более сложную форму. При разработке концепции архитекторы исследовали возможность выделить каждый функциональный элемент как отдельный объем со своим оригинальным витражом. Полностью реализовать эту идею не удалось, но в большинстве случаев основные залы и пространства акцентированы и читаются во внешнем облике комплекса. Функция каждого блока угадывается по размеру и типу остекления. Огромные витражные окна выделяют общественные зоны: спорт, деловой центр, торговлю и культуру. Актуальная россыпь оконных проемов разного размера украшает фасады клубного дома и отеля.
Фасад МФК «Пять звёзд» вдоль ул. Ворошилова © А.Лен
Фасад МФК «Пять звёзд» вдоль ул. Ворошилова © А.Лен
Фасад МФК «Пять звёзд» со стороны ЖК «Пять звезд» © А.Лен
Фасад МФК «Пять звёзд» со стороны ЖК «Пять звезд» © А.Лен

Помимо игры объемов, в проекте активно использован цвет: серые, белые и золотисто-желтые панели переходят с блока на блок, меняясь ролями. На сером корпусе белый и желтый выступают как дополнительные цвета в простенках и отделке лестничных узлов, на желтом – все наоборот. Контрастная комбинация насыщенных цветов должна выгодно сочетаться с зеленью прилегающих скверов, в то же время подчеркивая как современность архитектурного решения, так и «позитивно-солнечный» характер комплекса, сгруппированного вокруг спорта.
Фасад МФК «Пять звёзд» со стороны улицы Моисеева © А.Лен
Фасад МФК «Пять звёзд» со стороны улицы Моисеева © А.Лен
Вид на МФК «Пять звёзд» с высоты птичьего полета © А.Лен
Вид на МФК «Пять звёзд» с высоты птичьего полета © А.Лен

Золотисто-желтый анодированный алюминий фасадных панелей также служит метафорой названия комплекса – «Энергия», воплощая собой похожий на молнию энергетический поток. Подсвечиваемая по ночам золотистая лента облицовки, спускаясь с жилой башни, «змеится» по фасаду, обрамляя выступающие фрагменты здания, соединяя собой отдельные блоки. Кроме того, на ярком желтом фоне разместятся вывески кафе и магазинов – он призван, с одной стороны, привлечь к ним внимание прохожих, а с другой – обеспечить «заголовочной» части цветовую цельность, объединив дробное разноцветье брендов золотистым тоном. 
Многофункциональный комплекс «Пять звёзд» © А.Лен
Многофункциональный комплекс «Пять звёзд» © А.Лен
Многофункциональный комплекс «Пять звёзд» © А.Лен
Многофункциональный комплекс «Пять звёзд» © А.Лен

Объединение усилий
Благодаря сотрудничеству девелоперской компании и одного из ведущих российских архитектурных бюро в Воронеже запущен процесс реализации концепции нового типа районного центра, в котором создаются благоприятные условия для ведения бизнеса, культурного и спортивного отдыха. Та роль, которую раньше выполняли советские спортивные клубы или районные кинотеатры, сейчас, на новом уровне развития общества, выполняют мультифункциональные комплексы. Поиски жизнеспособных форматов таких синергетических систем идут не только в столице, но и в основных региональных центрах. И уже в самом ближайшем времени можно будет оценить результат превращения заброшенного спорткомплекса в эпицентр деловой, спортивной и культурной жизни Воронежа.