Размещено на портале Архи.ру (www.archi.ru)

18.04.2017

Деревянные нефы

Нина Фролова
Объект:
Библиотека города Конститусьон
Адрес:
Чили, None, Конститусьон.

Библиотека по проекту Себастьяна Ираррасаваля построена в ходе восстановления чилийского города Конститусьон после землетрясения и цунами 2010 года.

Библиотека города Конститусьон © Felipe Díaz Contardo
Библиотека города Конститусьон © Felipe Díaz Contardo

В 2010 город был очень сильно пострадал от землетрясения силой 8,8 баллов и вызванного им цунами. Восстановлением Конститусьона занялись многие чилийские архитекторы, в том числе Алехандро Аравена и бюро Elemental. Себастьяну Ираррасавалю был поручен проект новой городской библиотеки: заказчиком выступил муниципалитет, инвестиционной схемой стало частно-государственное партнерство.
 
Библиотека города Конститусьон © Felipe Díaz Contardo
Библиотека города Конститусьон © Felipe Díaz Contardo

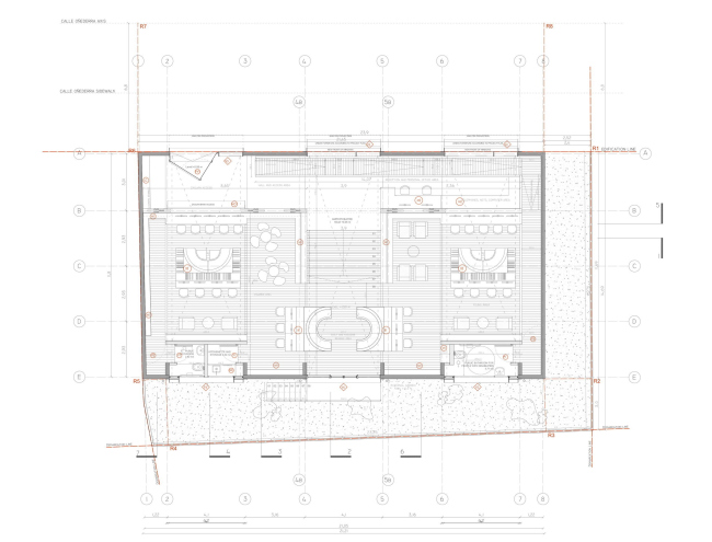
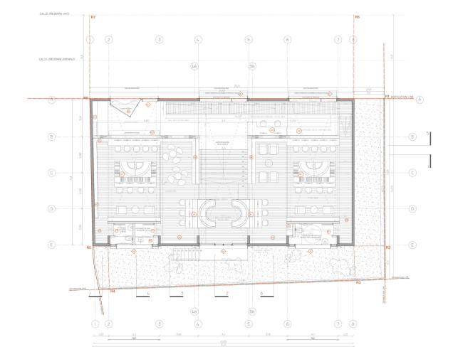
Здание расположено на засаженной деревьями площади: чтобы их кроны его не загораживали, пришлось приподнять его над уровнем земли на 1,6 м. Внимание сразу привлекают отмеченные трехчастной кровлей три нефа: так снаружи показано функциональное деление библиотеки на детский, юношеский и взрослый отделы. Остекление уличного фасада сразу демонстрирует общественный характер постройки: оно позволяет увидеть и ее интерьер, и книжные новинки, а козырьки и скамейки превращают улицу перед ней в общественное пространство. Для создания внутри оптимального естественного освещения кровля сделана решетчатой, одновременно пропускающей и фильтрующей солнечные лучи.
 
Библиотека города Конститусьон © Felipe Díaz Contardo
Библиотека города Конститусьон © Felipe Díaz Contardo

Конститусьон расположен в одной из главных чилийских областей лесозаготовки и деревообработки (в городке, к примеру, имеется бумажно-целлюлозный комбинат). Поэтому выбор материала – древесины – и поиск высококвалифицированных строителей – не составили труда. Только брандмауэры выполнены из бетона, в остальном использованы сборные детали из ламинированной древесины сосны. Несущий каркас открыт в интерьер, чтобы подчеркнуть его ритм и показать посетителям «работу» конструкции. Светлый тон пространству дает не только покрытая прозрачным лаком сосна, но и изготовленная специально для библиотеки мебель. Цветовые акценты создают текстиль, обивка мягкой мебели, стулья и табуреты.
Библиотека города Конститусьон © Felipe Díaz Contardo
Библиотека города Конститусьон © Felipe Díaz Contardo
Библиотека города Конститусьон © Felipe Díaz Contardo
Библиотека города Конститусьон © Felipe Díaz Contardo
Библиотека города Конститусьон © Felipe Díaz Contardo
Библиотека города Конститусьон © Felipe Díaz Contardo
Библиотека города Конститусьон © Felipe Díaz Contardo
Библиотека города Конститусьон © Felipe Díaz Contardo
Библиотека города Конститусьон © Felipe Díaz Contardo
Библиотека города Конститусьон © Felipe Díaz Contardo
Библиотека города Конститусьон © Felipe Díaz Contardo
Библиотека города Конститусьон © Felipe Díaz Contardo
Библиотека города Конститусьон © Felipe Díaz Contardo
Библиотека города Конститусьон © Felipe Díaz Contardo
Библиотека города Конститусьон © Felipe Díaz Contardo
Библиотека города Конститусьон © Felipe Díaz Contardo
Библиотека города Конститусьон © Felipe Díaz Contardo
Библиотека города Конститусьон © Felipe Díaz Contardo
Библиотека города Конститусьон © Felipe Díaz Contardo
Библиотека города Конститусьон © Felipe Díaz Contardo
Библиотека города Конститусьон © Felipe Díaz Contardo
Библиотека города Конститусьон © Felipe Díaz Contardo
Библиотека города Конститусьон © Felipe Díaz Contardo
Библиотека города Конститусьон © Felipe Díaz Contardo
Библиотека города Конститусьон © Felipe Díaz Contardo
Библиотека города Конститусьон © Felipe Díaz Contardo
Библиотека города Конститусьон © Felipe Díaz Contardo
Библиотека города Конститусьон © Felipe Díaz Contardo
Библиотека города Конститусьон © Felipe Díaz Contardo
Библиотека города Конститусьон © Felipe Díaz Contardo
Библиотека города Конститусьон © Felipe Díaz Contardo
Библиотека города Конститусьон © Felipe Díaz Contardo
Библиотека города Конститусьон © Felipe Díaz Contardo
Библиотека города Конститусьон © Felipe Díaz Contardo
Библиотека города Конститусьон © Felipe Díaz Contardo
Библиотека города Конститусьон © Felipe Díaz Contardo
Библиотека города Конститусьон © Felipe Díaz Contardo
Библиотека города Конститусьон © Felipe Díaz Contardo
Библиотека города Конститусьон © Felipe Díaz Contardo
Библиотека города Конститусьон © Felipe Díaz Contardo
Библиотека города Конститусьон © Felipe Díaz Contardo
Библиотека города Конститусьон © Felipe Díaz Contardo
Библиотека города Конститусьон © Felipe Díaz Contardo
Библиотека города Конститусьон © Felipe Díaz Contardo
Библиотека города Конститусьон © Felipe Díaz Contardo
Библиотека города Конститусьон © Felipe Díaz Contardo
Библиотека города Конститусьон © Felipe Díaz Contardo
Библиотека города Конститусьон © Felipe Díaz Contardo
Библиотека города Конститусьон ©  Sebastián Irarrázaval Arquitectos
Библиотека города Конститусьон © Sebastián Irarrázaval Arquitectos
Библиотека города Конститусьон ©  Sebastián Irarrázaval Arquitectos
Библиотека города Конститусьон © Sebastián Irarrázaval Arquitectos
Библиотека города Конститусьон ©  Sebastián Irarrázaval Arquitectos
Библиотека города Конститусьон © Sebastián Irarrázaval Arquitectos
Библиотека города Конститусьон ©  Sebastián Irarrázaval Arquitectos
Библиотека города Конститусьон © Sebastián Irarrázaval Arquitectos