Размещено на портале Архи.ру (www.archi.ru)

14.04.2017

Принцип картотеки

Наталья Мурадова
Объект:
Резиденция Горки
Адрес:
Россия, Пенза. ул. Зеленодольская
Мастерская:
sp architect
Авторский коллектив:
руководитель: Сергей Попрядухин, ГАП: Игорь Кудряшов 

sp architects расцветили 5-этажный ЖК в Пензе «маркерами» яркого цвета на фоне темного кирпича и насытили его общественными пространствами, превратив компактное жилье комфорт-класса в эстетически привлекательное.

Резиденция Горки. Визуализация.  Общий вид застройки © sp architect
Резиденция Горки. Визуализация. Общий вид застройки © sp architect

Жилой комплекс «Горки» – это десять пятиэтажных домов с недорогими квартирами на окраине Пензы. Впрочем окраина эта сама по себе непростая: если север, восток, юг, а местами и центр щедро застроены микрорайонами, то в западной части значительную часть городской территории занимает Арбековский лес и застройка по его краю состоит из новых коттеджных поселков вперемежку с частным сектором и дачами. Один из больших коттеджных поселков – «Дубрава», едва ли не самый успешный в городе, расположен на границе леса рядом с большим прудом и старым СНТ «Засека». Несколько лет назад застройщики, ГК «Дубрава», построили к востоку от поселка улицу таунхаусов. Теперь на территории, расположенной ближе к берегу пруда, как продолжение того же ЖК «Резиденция Горки» планируется построить 17 пятиэтажных домов (две очереди: 10 и 7) с компактными 1-2-комнатными квартирами комфорт-класса площадью от 18 до 67 м2 .
Резиденция Горки. Расположение объекта. Проект планировки территории © sp architect
Резиденция Горки. Расположение объекта. Проект планировки территории © sp architect

Типология домов – кубических и компактных, с лифтом в центре объема и лестницей, выходящей на один из фасадов, досталась бюро sp architects Сергея Попрядухина от предыдущих проектировщиков; архитекторы работали в рамках утвержденного городом проекта планировки территории. Требовалось же улучшить все, что можно: сделать дома выразительными архитектурно и в целом – более привлекательными для будущих жильцов, провести «ребрендинг» проекта, но так, чтобы это не повлияло на стоимость строительства.
Резиденция Горки. Визуализация. Общий вид застройки © sp architect
Резиденция Горки. Визуализация. Общий вид застройки © sp architect

Выбор сделали в пользу ярких акцентов в отделке фасадов.

Основной материал облицовки – темный кирпич. Архитекторы использовали вставки трех цветов: зеленого, красного и оранжевого, пометив ими, как стикерами, каждый дом. Акценты расположены в соответствии со строгим геометрическим порядком. В цвете выполнены откосы окон из HPL-панелей Trespa, стальные перфорированные корзины для кондиционеров, а также большие прямоугольные вставки с номерами домов на уровне первого и последнего этажей.
Резиденция Горки. Паспорт отделки. Фасад А-Е © sp architect
Резиденция Горки. Паспорт отделки. Фасад А-Е © sp architect
Резиденция Горки. Идеология проекта. Цветовая идентификация. Принцип выбора цветов © sp architect
Резиденция Горки. Идеология проекта. Цветовая идентификация. Принцип выбора цветов © sp architect

«Лейтмотивом послужил принцип работы картотеки, где нужная ячейка легко идентифицируются пользователем, благодаря уникальным цветным ярлыкам-закладкам», – объясняют авторы проекта.

В каждой постройке используется только один цвет. При этом архитекторы постарались сделать так, чтобы «помеченные» одинаковыми цветами дома были удалены друг от друга на максимальное расстояние, не образуя одноцветных пятен. По замыслу бюро, это облегчит навигацию по комплексу.
Резиденция Горки. Идеология проекта. Цветовая идентификация. Принцип размещения домов © sp architect
Резиденция Горки. Идеология проекта. Цветовая идентификация. Принцип размещения домов © sp architect
Резиденция Горки. Визуализация. Общий вид застройки © sp architect
Резиденция Горки. Визуализация. Общий вид застройки © sp architect

Квартиры, как мы помним, компактные, и из-за избычной ширины объемов, унаследованной от предыдущих авторов, часть комнат получилась чересчур глубокими «пеналами». Но кухни 12 м2, много кладовок, и у каждой квартиры предусмотрена лоджия: либо неширокий уступ-углубление, либо, у двух квартир – большой, 2х5 м, застекленный эркер – все это, помимо прочего, позволило оживить фасады, на котором узкие вертикали окон чередуются с горизонтальным стеклением и лаконичными «глухими» плоскостями.

Парковки – только наземные, расположены согласно ППТ по периметру территории; внутри участок закрыт для машин и отдан сквозной пешеходной зоне без внешнего забора. На пешеходную зону, как по трафарету, наложены повторяющиеся элементы благоустройства. Прямоугольная геометрия зданий уравновешивается площадками круглой формы – спортивными и детскими. Они общие для каждой пары домов, а границы этих кластеров очерчивают пешеходные дорожки, создавая бесконечное множество «закольцованных» прогулочных маршрутов. Отдельно будет проложена беговая и она же велосипедная дорожка.
Резиденция Горки. Визуализация. Общий вид на благоустройство двора и эксплуатируемую кровлю © sp architect
Резиденция Горки. Визуализация. Общий вид на благоустройство двора и эксплуатируемую кровлю © sp architect
Резиденция Горки. План эксплуатируемой кровли © sp architect
Резиденция Горки. План эксплуатируемой кровли © sp architect
Резиденция Горки. Благоустройство | Двор-парк © sp architect
Резиденция Горки. Благоустройство | Двор-парк © sp architect

Архитекторы запланировали даже эксплуатируемые кровли с небольшим открытым бассейном, площадками для пинг-понга и барбекю. Словом, привлекательность общественных зон и сдержанная, но очевидно авторская призвана отчасти компенсировать компактные размеры квартир. Кроме того –
Москва сейчас буквально-таки звенит от споров вокруг сноса пятиэтажек, грозящего не только переселить жильцов помимо их воли, но и уничтожить компактную городскую среду. В успешной же части Пензы тем временем зарождается новый вариант «пятиэтажек». 
Визуализация. Концепция оформления мест общего пользования.  Мэжэтажная лестница», © sp architect
Визуализация. Концепция оформления мест общего пользования. Мэжэтажная лестница», © sp architect
Резиденция Горки.  Визуализация.  Концепция оформления мест общего пользования. Общеквартирный коридор © sp architect
Резиденция Горки. Визуализация. Концепция оформления мест общего пользования. Общеквартирный коридор © sp architect
Визуализация. Концепция оформления мест общего пользования. Вход в подъезд © sp architect
Визуализация. Концепция оформления мест общего пользования. Вход в подъезд © sp architect
Резиденция Горки. Паспорт отделки. Фасад Е-А © sp architect
Резиденция Горки. Паспорт отделки. Фасад Е-А © sp architect
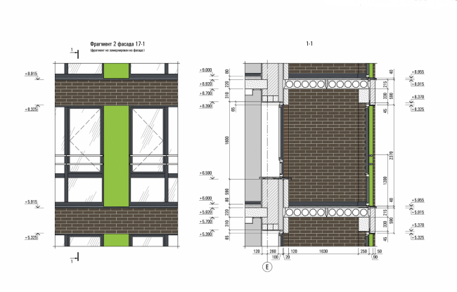
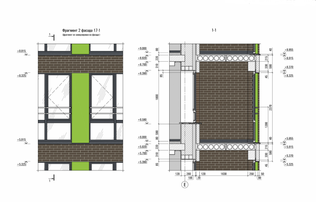
Резиденция Горки. Паспорт отделки. фасад 17-1 © sp architect
Резиденция Горки. Паспорт отделки. фасад 17-1 © sp architect
Резиденция Горки.  Паспорт отделки. Фасад 1-17 © sp architect
Резиденция Горки. Паспорт отделки. Фасад 1-17 © sp architect
Резиденция Горки.  Фрагмент фасада. Лоджия © sp architect
Резиденция Горки. Фрагмент фасада. Лоджия © sp architect
Резиденция Горки. Фрагмент фасада. Окно © sp architect
Резиденция Горки. Фрагмент фасада. Окно © sp architect
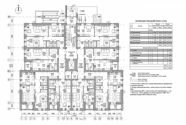
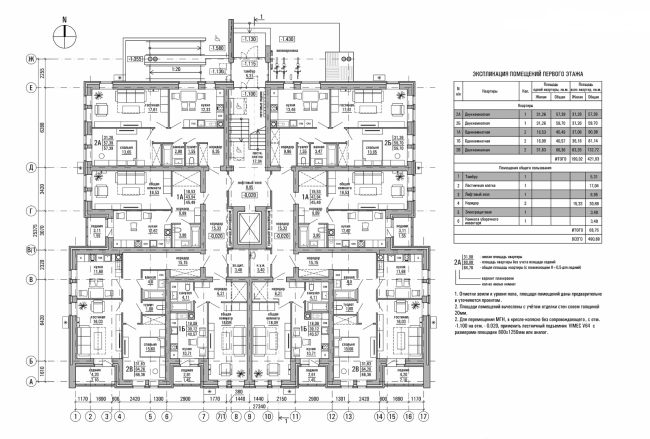
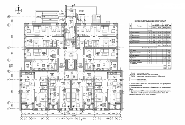
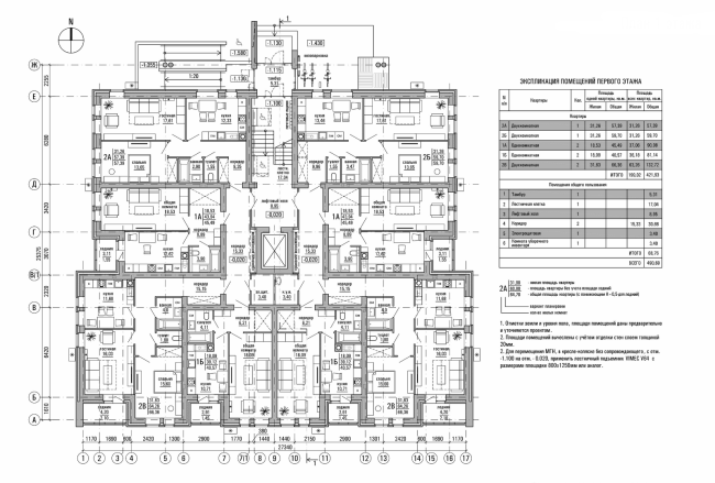
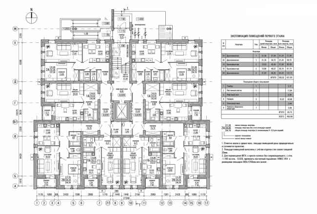
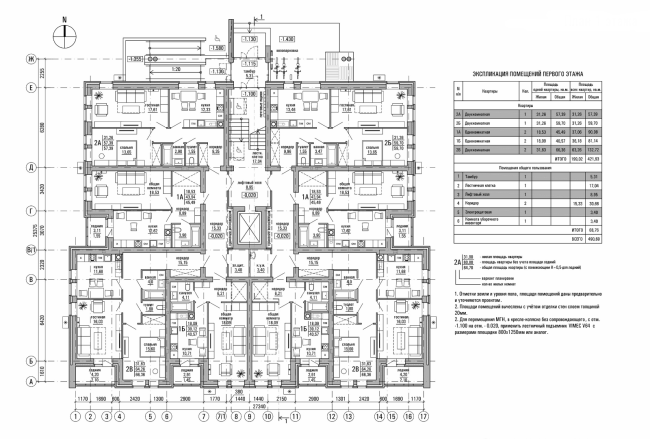
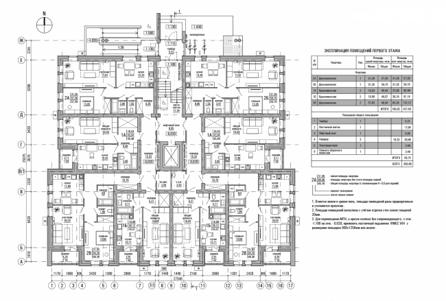
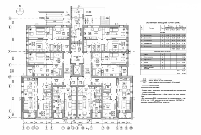
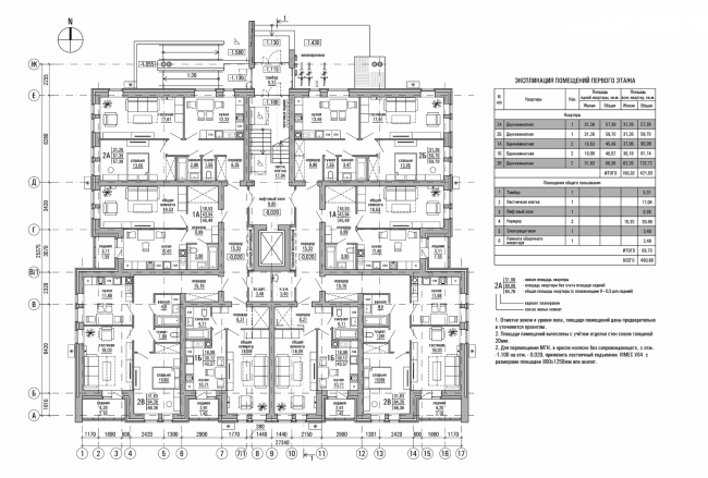
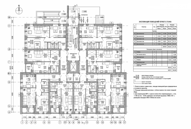
Резиденция Горки. План 1 этажа © sp architect
Резиденция Горки. План 1 этажа © sp architect
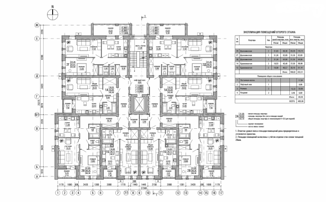
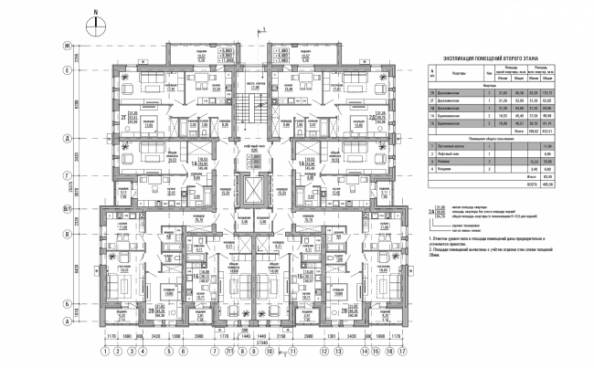
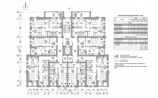
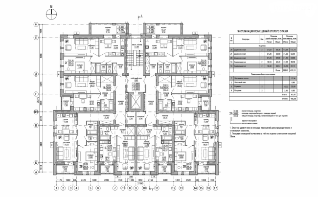
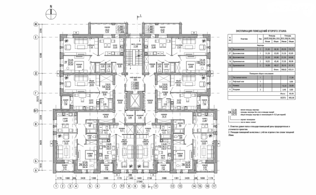
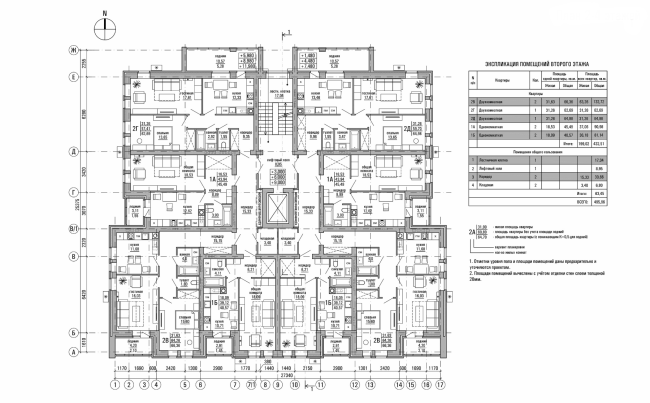
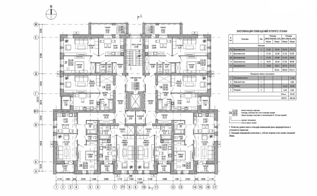
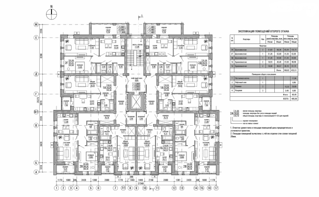
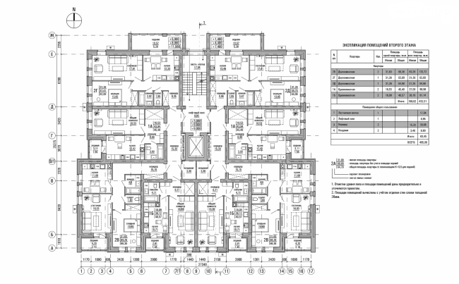
Резиденция Горки. План 2-4 этажа © sp architect
Резиденция Горки. План 2-4 этажа © sp architect
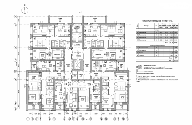
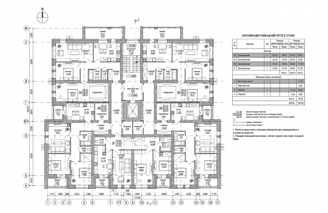
Резиденция Горки. План 5 этажа © sp architect
Резиденция Горки. План 5 этажа © sp architect
Резиденция Горки. Эскиз. Схема поэтажной блокировки окон © sp architect
Резиденция Горки. Эскиз. Схема поэтажной блокировки окон © sp architect
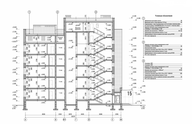
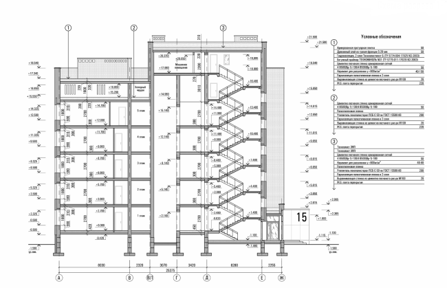
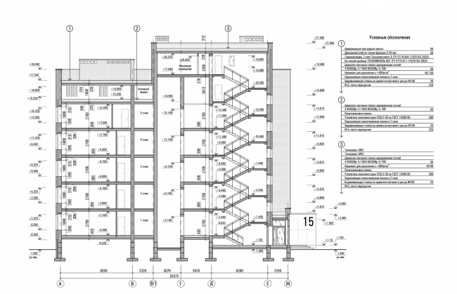
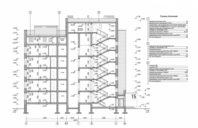
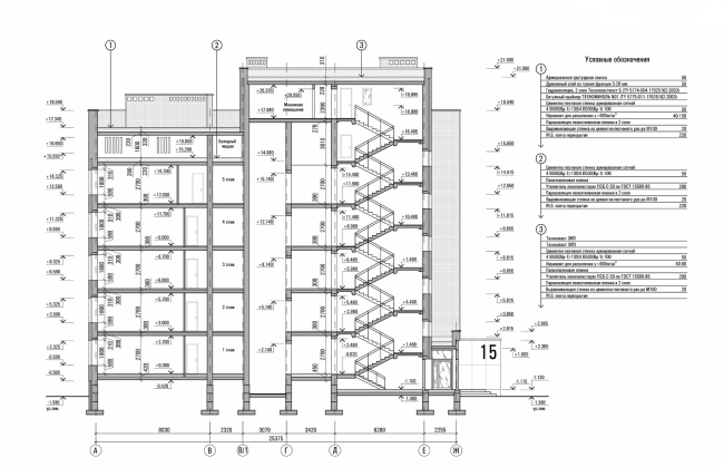
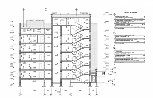
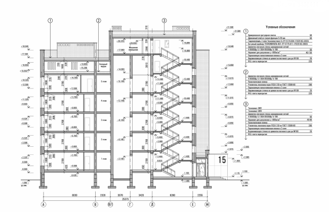
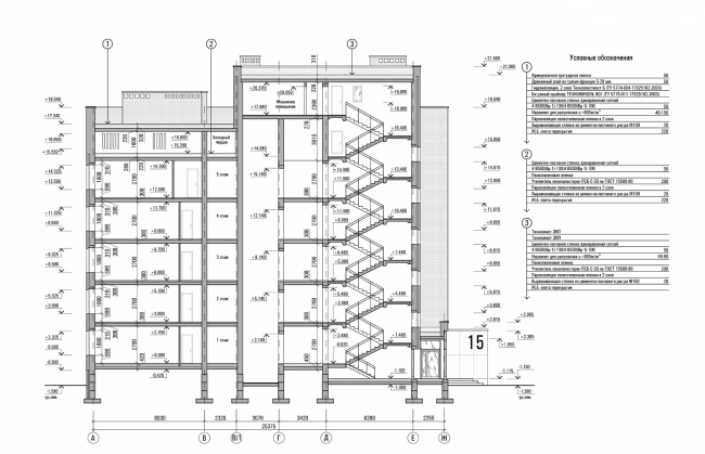
Резиденция Горки. Схема разреза 1-1 © sp architect
Резиденция Горки. Схема разреза 1-1 © sp architect