Размещено на портале Архи.ру (www.archi.ru)

14.09.2017

Место лучших автомобилей

Лилия Аронова
Объект:
Дилерский центр для Mercedes-Benz и Audi на территории ЗИЛ
Адрес:
Россия, Москва. Автозаводская yлица, д. 23
Архитектор:
Сергей Переслегин
Николай Переслегин
Георгий Трофимов
Мастерская:
Kleinewelt Architekten
Авторский коллектив:
Авторы проекта: Николай Переслегин, Сергей Переслегин, Георгий Трофимов, Ксения Воробьёва, Наталья Ланская, Александра Ташимова

Проект реконструкции модельного цеха ЗИЛа под дилерский центр для Mercedes-Benz и Audi уникален даже для легендарного комплекса. Цех планируется восстановить с использованием элементов разобранного здания 1930-х. Он станет частью «ворот ЗИЛа», заметных на Третьем кольце. И к тому же – единственный из всех, в какой-то степени сохранит «автомобильную» функцию.

Дилерский центр для Mercedes-Benz и Audi на территории ЗИЛа. Проект, 2016
Дилерский центр для Mercedes-Benz и Audi на территории ЗИЛа. Проект, 2016
© Kleinewelt Architekten

Объединенный дилерский центр Audi и Mercedes-Benz, обещающий стать крупнейшим в Европе, строится для холдинга «Авилон» в составе кластера «Парк легенд» на территории бывшего Завода имени Лихачева. Даже для ЗИЛа, где сейчас что ни объект – то событие, эта постройка, а точнее – реконструкция бывшего модельного цеха, станет без преувеличения знаковой. Во-первых, в отличие от прочих реконструируемых цехов, где планируется разместить театры, торговые центры и прочие общественные пространства, модельный цех – единственный объект в легендарном ансамбле советской промышленной архитектуры, который сохранит воспоминание о прошлом предназначении территории. Именно в этом здании когда-то проектировались новые автомобили, здесь же проводились финальные кузовные работы, отсюда они фактически уходили на продажу, – даже с учетом разницы между продукцией советского автопрома и моделями премиальных немецких брендов, преемственность очевидна.

И во-вторых. В соответствии с генеральным планом завода, разработанным в 1933 году Первой архитектурно-проектной мастерской Наркомтяжпрома под руководством братьев Весниных, модельный цех, разместившийся вдоль Автозаводской улицы, которая теперь стала частью Третьего транспортного кольца, вместе с инструментальным служил своеобразными парадными воротами ансамбля ЗИЛа. Именно отсюда начиналась главная внутренняя магистраль, сформированная зданиями основных цехов завода, каждый из которых признан сегодня образцом промышленного конструктивизма. Поскольку планировочную структуру завода, как часть архитектурного наследия, решено оставить в неприкосновенности, свою парадную функцию сохранит и бывший модельный цех.
Дилерский центр для Mercedes-Benz и Audi на территории ЗИЛа. Проект, 2016
Дилерский центр для Mercedes-Benz и Audi на территории ЗИЛа. Проект, 2016
© Kleinewelt Architekten
Дилерский центр для Mercedes-Benz и Audi на территории ЗИЛа. Проект, 2016
Дилерский центр для Mercedes-Benz и Audi на территории ЗИЛа. Проект, 2016
© Kleinewelt Architekten

Здание самого цеха – как и большинство других составляющих грандиозного ансамбля – сохранить не удалось. Историк архитектуры, Денис Ромодин, отмечает: «К сожалению, износ здания был большим, поскольку почти 12 лет оно не эксплуатировалось и не было законсервировано. Кроме того, назначение цеха постоянно менялось, и последняя реконструкция 1970-х годов оказалась губительной для каркаса здания. Укрепление и эксплуатация здания в дальнейшем была невозможна».

Конструкция, после проведения тщательных обмеров, была практически полностью разобрана при помощи лазерной резки, а её составляющие бережно складированы тут же, на территории завода.

Kleinewelt Architekten было приглашено к участию в тендере на разработку проекта уже после разбора предыдущего здания. Архитекторы бюро намерены, насколько это возможно, использовать сохранившиеся элементы, интегрируя их в структуру нового объекта. Технологии сложнейшие, работа по сборке грандиозного «конструктора» предстоит кропотливая, почти ювелирная, но цель – максимально честное воссоздание исторического здания – того стоит. Новый объект будет представлять собой прямоугольное в плане пятиэтажное здание с шестиэтажным выступом-пилоном, вровень с которым на кровле основного здания предполагается возведение мансардной конструкции.
Дилерский центр для Mercedes-Benz и Audi на территории ЗИЛа. Фасад. Проект, 2016
Дилерский центр для Mercedes-Benz и Audi на территории ЗИЛа. Фасад. Проект, 2016
© Kleinewelt Architekten

В новом центре для Mercedes-Benz и Audi будут и шоу-румы, и центры продаж подержанных автомобилей, и сервисные центры, причём всё это в двух экземплярах, которые категорически, даже в мелочах не должны повторять друг друга, – такой была принципиальная позиция конкурирующих брендов. «Раньше нам, конечно, приходилось вести непростые переговоры и с заказчиками, и со смежниками, и с согласующими инстанциями, – рассказывает один из авторов проекта Николай Переслегин, – но что такое по-настоящему сложный диалог, мы, кажется, поняли только сейчас, в ходе согласования проектов со Штутгартом и Ингольштадтом, где находятся штаб-квартиры автомобильных концернов». Между конкурентами выросла непреодолимая стена, причем не в переносном, а в самом что ни на есть буквальном смысле: две части здания разделяет глухой брандмауэр, и попасть из одного шоу-рума в другой можно будет только через улицу. Ни одна деталь внутри не повторится: если, например, на половине Audi в каком-то месте запланирована лестница, то во владениях Mercedes-Benz там будет эскалатор, и никаких исключений в этом правиле не допускается. Размежевание начинается уже с фасада, зрительно разделенного по вертикали широкой выемкой по всей высоте здания; входные порталы оформлены хоть и в одном стиле, но в разных, и даже контрастных, тонах, соответствующих колористическому решению фирменных эмблем двух брендов.
Дилерский центр для Mercedes-Benz и Audi на территории ЗИЛа. Проект, 2016
Дилерский центр для Mercedes-Benz и Audi на территории ЗИЛа. Проект, 2016
© Kleinewelt Architekten
Дилерский центр для Mercedes-Benz и Audi на территории ЗИЛа. Проект, 2016
Дилерский центр для Mercedes-Benz и Audi на территории ЗИЛа. Проект, 2016
© Kleinewelt Architekten

Что касается интерьерных решений, то тут спродюсировано множество различных сценариев, призванных максимально выигрышно представить автомобили потенциальному покупателю. Концерн «Авилон» придаёт большое значение эффектной подаче – достаточно вспомнить спроектированный «Архитектурным бюро Асадова» дилерский центр Mercedes-Benz на Волгоградском проспекте. Здесь же, на ЗИЛе, специфика ещё и в том, что благодаря обширной площади остекления будущий шоу-рум будет максимально открыт в город, точнее – на Третье транспортное шоссе, крупную магистраль, по которой, если не брать в расчёт пробки, на большой скорости проносится поток автомобилей. «В этой ситуации наш объект, который мы назвали для себя «Местом лучших автомобилей», будет восприниматься целостно, как некая скульптура, – считает Николай Переслегин. – При этом глаз автомобилиста должен успеть на большой скорости зацепиться за что-то потрясающее – например, грамотно подсвеченные силуэты старинных и новейших машин». По мнению архитекторов, подобная тематическая инсталляция за восстановленными витражами модельного цеха станет достойным оммажем великому прошлому легендарного завода.
Дилерский центр для Mercedes-Benz и Audi на территории ЗИЛа. В процессе строительства, 2017 © Kleinewelt Architekten
Дилерский центр для Mercedes-Benz и Audi на территории ЗИЛа. В процессе строительства, 2017 © Kleinewelt Architekten
Дилерский центр для Mercedes-Benz и Audi на территории ЗИЛа. В процессе строительства, 2017 © Kleinewelt Architekten
Дилерский центр для Mercedes-Benz и Audi на территории ЗИЛа. В процессе строительства, 2017 © Kleinewelt Architekten
Дилерский центр «Авилон» на территории ЗИЛа. В процессе строительства, 2017 © Kleinewelt Architekten
Дилерский центр «Авилон» на территории ЗИЛа. В процессе строительства, 2017 © Kleinewelt Architekten
Дилерский центр для Mercedes-Benz и Audi на территории ЗИЛа. В процессе строительства, 2017 © Kleinewelt Architekten
Дилерский центр для Mercedes-Benz и Audi на территории ЗИЛа. В процессе строительства, 2017 © Kleinewelt Architekten
Дилерский центр для Mercedes-Benz и Audi на территории ЗИЛа. В процессе строительства, 2017 © Kleinewelt Architekten
Дилерский центр для Mercedes-Benz и Audi на территории ЗИЛа. В процессе строительства, 2017 © Kleinewelt Architekten
Дилерский центр для Mercedes-Benz и Audi на территории ЗИЛа. В процессе строительства, 2017 © Kleinewelt Architekten
Дилерский центр для Mercedes-Benz и Audi на территории ЗИЛа. В процессе строительства, 2017 © Kleinewelt Architekten
Дилерский центр для Mercedes-Benz и Audi на территории ЗИЛа. В процессе строительства, 2017 © Kleinewelt Architekten
Дилерский центр для Mercedes-Benz и Audi на территории ЗИЛа. В процессе строительства, 2017 © Kleinewelt Architekten
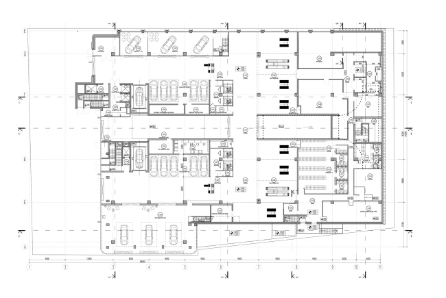
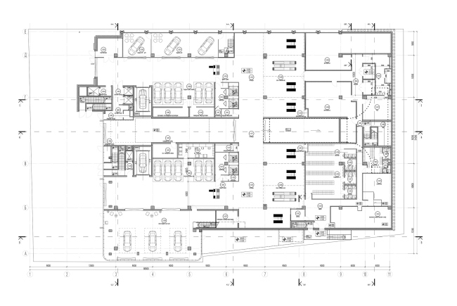
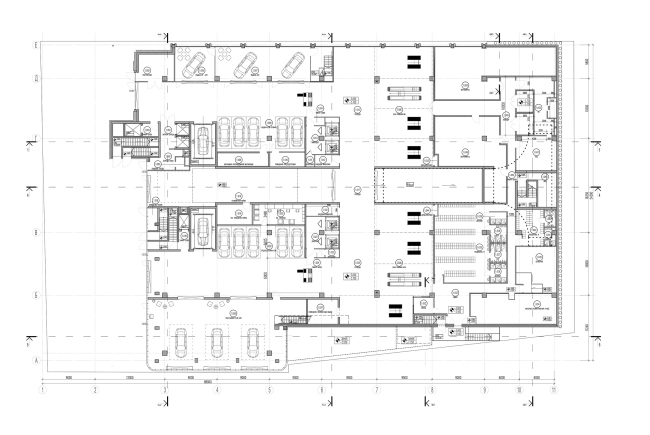
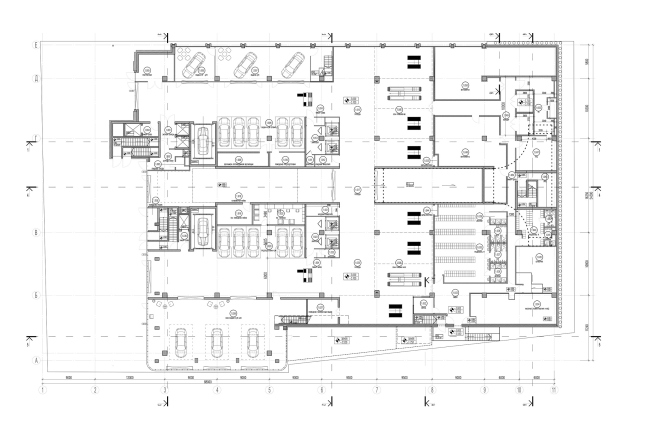
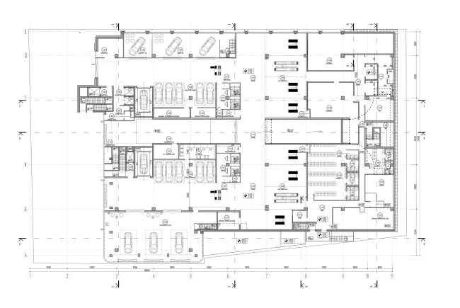
Дилерский центр для Mercedes-Benz и Audi на территории ЗИЛа. Схема плана -1 этажа. Проект, 2016
Дилерский центр для Mercedes-Benz и Audi на территории ЗИЛа. Схема плана -1 этажа. Проект, 2016
© Kleinewelt Architekten
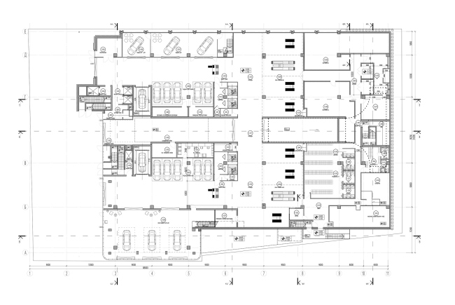
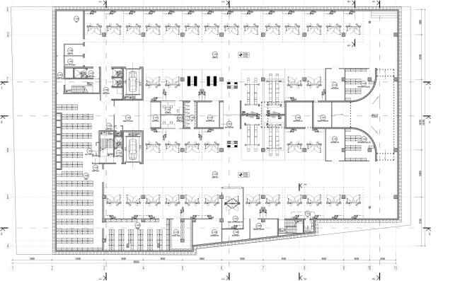
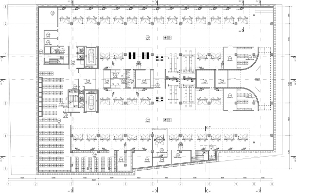
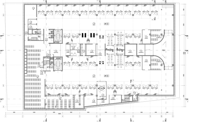
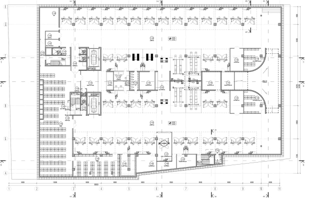
Дилерский центр для Mercedes-Benz и Audi на территории ЗИЛа. Схема плана 1 этажа. Проект, 2016
Дилерский центр для Mercedes-Benz и Audi на территории ЗИЛа. Схема плана 1 этажа. Проект, 2016
© Kleinewelt Architekten
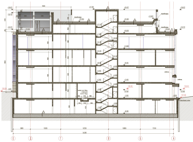
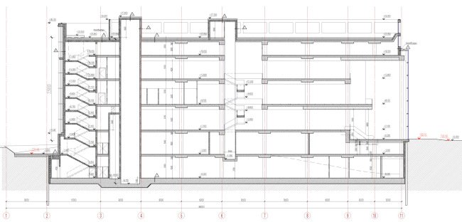
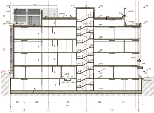
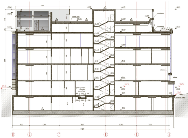
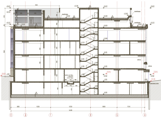
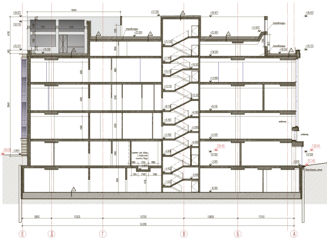
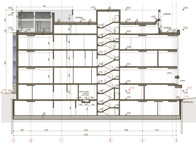
Дилерский центр для Mercedes-Benz и Audi на территории ЗИЛа. Разрез. Проект, 2016
Дилерский центр для Mercedes-Benz и Audi на территории ЗИЛа. Разрез. Проект, 2016
© Kleinewelt Architekten
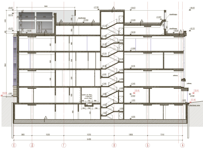
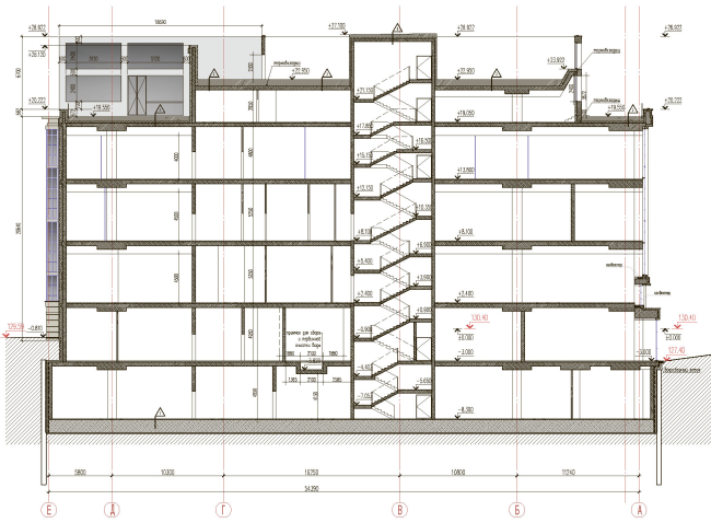
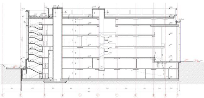
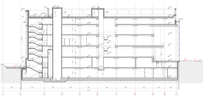
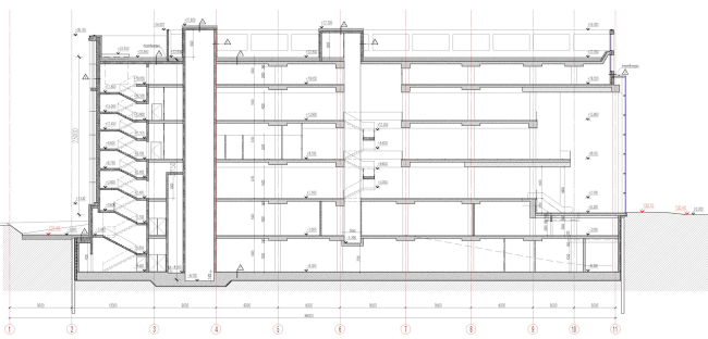
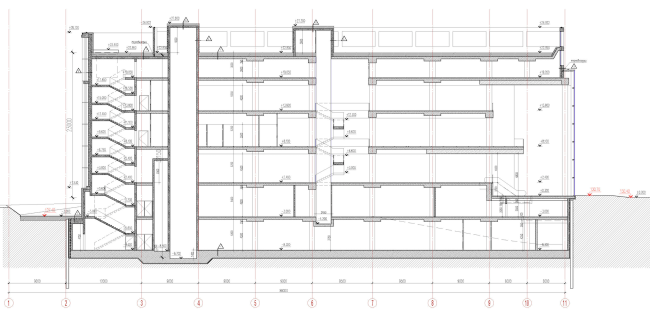
Дилерский центр для Mercedes-Benz и Audi на территории ЗИЛа. Разрез. Проект, 2016
Дилерский центр для Mercedes-Benz и Audi на территории ЗИЛа. Разрез. Проект, 2016
© Kleinewelt Architekten