Размещено на портале Архи.ру (www.archi.ru)

20.03.2017

С балконом на море

Ирина Бембель
Объект:
Жилой квартал LIFE-Приморский
Адрес:
Россия, Санкт-Петербург. Приморский пр., Д.52, лит. Д.
Мастерская:
Архитектурная мастерская Цыцина
Авторский коллектив:
Генеральный директор: Цыцин С.В.
Главный архитектор проекта: Николаева М.Л.
Главный инженер проекта: Брызгалов В.В.
 

В Петербурге по проекту Сергея Цыцина идёт строительство жилого комплекса с видом на Елагин остров и Финский залив.

Жилой квартал LIFE-Приморский. Фотография © Архитектурная мастерская Цыцина
Жилой квартал LIFE-Приморский. Фотография © Архитектурная мастерская Цыцина

Новый жилой комплекс «Лайф Приморский» расположен в дельте Невы, у слияния рек Большой и Средней Невки. Прямо напротив – виды на Елагин, Бычий и Крестовский острова. Эта зона островов, прежде рекреационная и спортивная, в последние годы стала застраиваться жильём.

С севера участок ограничен красной линией Приморского проспекта; с востока к нему примыкает бывшая дача Алсуфьевых XIX века, ныне «Петербургский яхт-клуб», – выявленный объект культурного наследия. Южным фронтом ЖК выходит на набережную реки Большой Невки. Таким образом, новый комплекс расположился в одном из живописнейших мест Санкт-Петербурга, что предопределило принадлежность жилой застройки к высокому ценовому сегменту. Комплекс возводится в три очереди: первая уже введена в эксплуатацию, вторая строится, третья прошла согласование и ждёт начала строительства.
Жилой квартал LIFE-Приморский, 1 очередь. Генплан  © Архитектурная мастерская Цыцина
Жилой квартал LIFE-Приморский, 1 очередь. Генплан © Архитектурная мастерская Цыцина
Жилой квартал LIFE-Приморский, 2 очередь. Генплан  © Архитектурная мастерская Цыцина
Жилой квартал LIFE-Приморский, 2 очередь. Генплан © Архитектурная мастерская Цыцина
Жилой квартал LIFE-Приморский, 3 очередь. Генплан  © Архитектурная мастерская Цыцина
Жилой квартал LIFE-Приморский, 3 очередь. Генплан © Архитектурная мастерская Цыцина

«Несмотря на то, что каждая очередь различается по архитектуре, комплекс создаётся как единая композиция, – рассказывает руководитель авторского коллектива Сергей Цыцин. – Вместе они формируют качественную жилую среду как единый ансамбль. Все очереди связаны структурно и стилистически, но в то же время различаются по цвету и деталям. Таким образом, возникает разнообразная, лишённая монотонности среда. Наиболее внимательно и ответственно разрабатывались фасады, выходящие на реку. Комплекс максимально раскрыт к воде, для лучшего обзора устроены дополнительные эркеры в тех квартирах, чьи окна не выходят непосредственно на воду. Квартир, из которых не видно акваторию, очень мало – по большей части это относится к корпусу, расположенному вдоль Приморского проспекта».
Жилой квартал LIFE-Приморский. 1-я очередь © Архитектурная мастерская Цыцина
Жилой квартал LIFE-Приморский. 1-я очередь © Архитектурная мастерская Цыцина

Проектирование велось с учетом раскрытия комплекса в сторону акватории и находящегося напротив парка Елагина острова. Передний фронт, выходящий на набережную – это точечные шестиэтажные дома второй очереди. За ними расположен неправильной формы квартал, сформированный крупными многосекционными корпусами первой очереди. К западу от него должны возникнуть ещё три отдельно стоящих корпуса третьей очереди. В соответствии с идеей раскрытия на воду высота домов постепенно возрастает от шести до тринадцати этажей.
Жилой квартал LIFE-Приморский. Перспективный вид © Архитектурная мастерская Цыцина
Жилой квартал LIFE-Приморский. Перспективный вид © Архитектурная мастерская Цыцина
Жилой квартал LIFE-Приморский. 3-я очередь © Архитектурная мастерская Цыцина
Жилой квартал LIFE-Приморский. 3-я очередь © Архитектурная мастерская Цыцина

В глубине участка корпуса выходят на уровень соседней застройки. Въезд на участок осуществляется с Приморского проспекта, тогда как набережная остаётся полностью пешеходной. Под большей частью пятна застройки комплекса размещена подземная автостоянка; предусмотрен встроенный детский сад.
Жилой квартал LIFE-Приморский. Фотография © Архитектурная мастерская Цыцина
Жилой квартал LIFE-Приморский. Фотография © Архитектурная мастерская Цыцина

Живописный, уступчатый силуэт комплекса, отвечающий задаче максимального видового обзора, имеет общий мотив верхней галереи – то открытой, то остеклённой, то лишь в виде декоративного рисунка, отдалённо напоминая рафинированный стиль неогрек. Этот мотив играет главную объединяющую роль в архитектуре комплекса, поскольку его композиция формировалась постепенно, по мере приобретения инвестором соседних участков. Общей для всех корпусов является также традиционное трёхчастное членение по горизонтали, обыгранное элегантным графическим рисунком. Протяженный корпус, расположенный вдоль Приморского проспекта, имеет классический симметричный объём. Его центральная часть выделена двухэтажной надстройкой, формирующей силуэт Приморского проспекта и отделяющей внутриквартальную застройку от шумной магистрали. В целом же облик домов – современный, спокойный, респектабельный, сочетающий в отделке фасадов стекло, камень и керамику.
Жилой квартал LIFE-Приморский. 1-я очередь © Архитектурная мастерская Цыцина
Жилой квартал LIFE-Приморский. 1-я очередь © Архитектурная мастерская Цыцина
Жилой квартал LIFE-Приморский. Эскиз © Архитектурная мастерская Цыцина
Жилой квартал LIFE-Приморский. Эскиз © Архитектурная мастерская Цыцина

Семьдесят процентов площади ЖК составляют квартиры класса «комфорт» и тридцать – «комфорт плюс», от студий до 4-комнатных. В соответствии с высоким классом жилья решены входные пространства – просторные, со стеклянными витражами на входах, оборудованные рецепцией, мебелью, колясочными и туалетами.
Жилой квартал LIFE-Приморский. 2-я очередь © Архитектурная мастерская Цыцина
Жилой квартал LIFE-Приморский. 2-я очередь © Архитектурная мастерская Цыцина

«Заказчик позволил нам создать интересный, выразительный, детализированный проект среды, включающий оригинальную дизайнерскую ландшафтную разработку, – говорит Сергей Цыцин, – с подпорной стенкой, устройством живописных газонов, цветников, посадкой декоративных кустарников, как на крыше подземной автостоянки, так и на свободных от застройки участках земли. Сейчас, весной уже должны начаться посадки. Предусмотрена интересная подсветка, как самих зданий, так и земли».
Жилой квартал LIFE-Приморский. Проект, 2014 © Архитектурная мастерская Цыцина
Жилой квартал LIFE-Приморский. Проект, 2014 © Архитектурная мастерская Цыцина

Окончание строительства намечено на лето 2018 года.
Жилой квартал LIFE-Приморский. Корпус 1, план 1 этажа © Архитектурная мастерская Цыцина
Жилой квартал LIFE-Приморский. Корпус 1, план 1 этажа © Архитектурная мастерская Цыцина
Жилой квартал LIFE-Приморский. Корпус 1, план 2 этажа © Архитектурная мастерская Цыцина
Жилой квартал LIFE-Приморский. Корпус 1, план 2 этажа © Архитектурная мастерская Цыцина
Жилой квартал LIFE-Приморский. Корпус 1, план 12 этажа © Архитектурная мастерская Цыцина
Жилой квартал LIFE-Приморский. Корпус 1, план 12 этажа © Архитектурная мастерская Цыцина
Жилой квартал LIFE-Приморский. Корпус 2, план 2-9 этажей © Архитектурная мастерская Цыцина
Жилой квартал LIFE-Приморский. Корпус 2, план 2-9 этажей © Архитектурная мастерская Цыцина
Жилой квартал LIFE-Приморский. Корпус 2, план 12 этажа © Архитектурная мастерская Цыцина
Жилой квартал LIFE-Приморский. Корпус 2, план 12 этажа © Архитектурная мастерская Цыцина
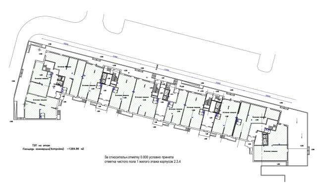
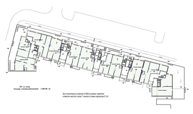
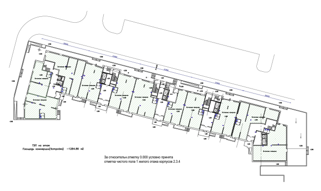
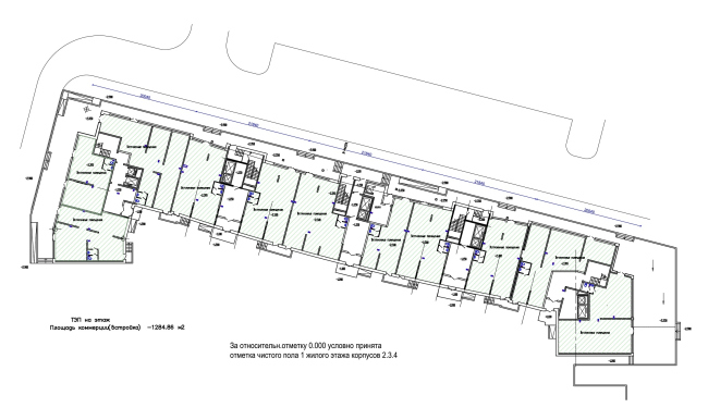
Жилой квартал LIFE-Приморский. Корпус 2, план 1 этажа © Архитектурная мастерская Цыцина
Жилой квартал LIFE-Приморский. Корпус 2, план 1 этажа © Архитектурная мастерская Цыцина
Жилой квартал LIFE-Приморский. Корпус 3, план 1 этажа © Архитектурная мастерская Цыцина
Жилой квартал LIFE-Приморский. Корпус 3, план 1 этажа © Архитектурная мастерская Цыцина
Жилой квартал LIFE-Приморский. Корпус 3, план 2-9 этажей © Архитектурная мастерская Цыцина
Жилой квартал LIFE-Приморский. Корпус 3, план 2-9 этажей © Архитектурная мастерская Цыцина
Жилой квартал LIFE-Приморский. Корпус 4, план 1 этажа © Архитектурная мастерская Цыцина
Жилой квартал LIFE-Приморский. Корпус 4, план 1 этажа © Архитектурная мастерская Цыцина
Жилой квартал LIFE-Приморский. Корпус 4, план 12 этажа © Архитектурная мастерская Цыцина
Жилой квартал LIFE-Приморский. Корпус 4, план 12 этажа © Архитектурная мастерская Цыцина
00000 Жилой квартал LIFE-Приморский. Схема сечений © Архитектурная мастерская Цыцина
00000 Жилой квартал LIFE-Приморский. Схема сечений © Архитектурная мастерская Цыцина