Размещено на портале Архи.ру (www.archi.ru)

31.03.2017

Апгрейд по-голландски

Анна Малахова

В некогда священных стенах нидерландских церквей теперь с комфортом живут, работают и отдыхают.

Вторую часть материала можно найти здесь.

В то время, как в России активно строятся новые храмы и разгорается борьба за церковную собственность, Западная Европа переживает охлаждение к религиозной традиции. Из-за массового сокращения числа верующих христиан за последнее десятилетие только в Нидерландах закрыто около тысячи пустующих церквей, куда уже некому ходить и которые попросту не на что содержать. Одним из самых доступных способов спасти эти памятники от разрушения сегодня остается передача их новым владельцам и трансформация в коммерческие и социально-востребованные объекты. Для этого в стране на государственном уровне разработана и действует программа реновации исторических культовых сооружений.

Теперь под старыми церковными сводами можно найти отель, библиотеку, магазин, ресторан, офис, жилой дом и даже скейт-парк. Архитектурная форма остается, но содержание и функция меняются принципиально. С точки зрения эстетики, все выглядит очень достойно – красиво и «цивильно». Этическая же сторона этих преобразований, при всей терпимости европейцев, вызывает публичный резонанс и полемику не только среди верующих. Но важна суть: исторически значимое архитектурное наследие все же сохраняется, а в случае перемен в духовных настроениях общества будет несложно вернуться и к формальным истокам.

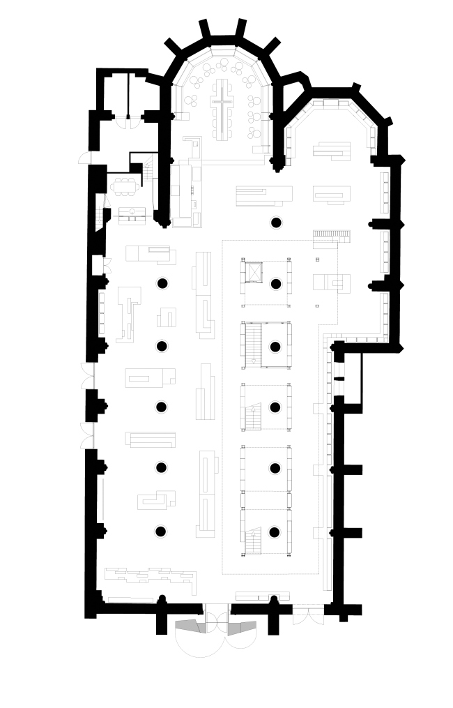
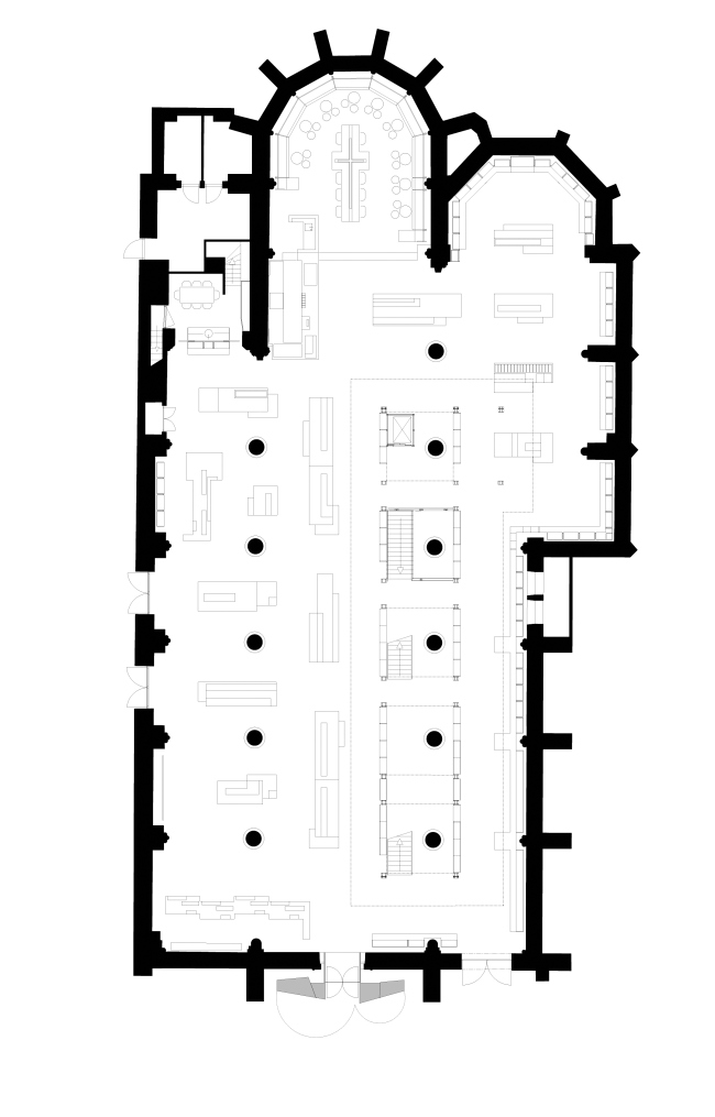
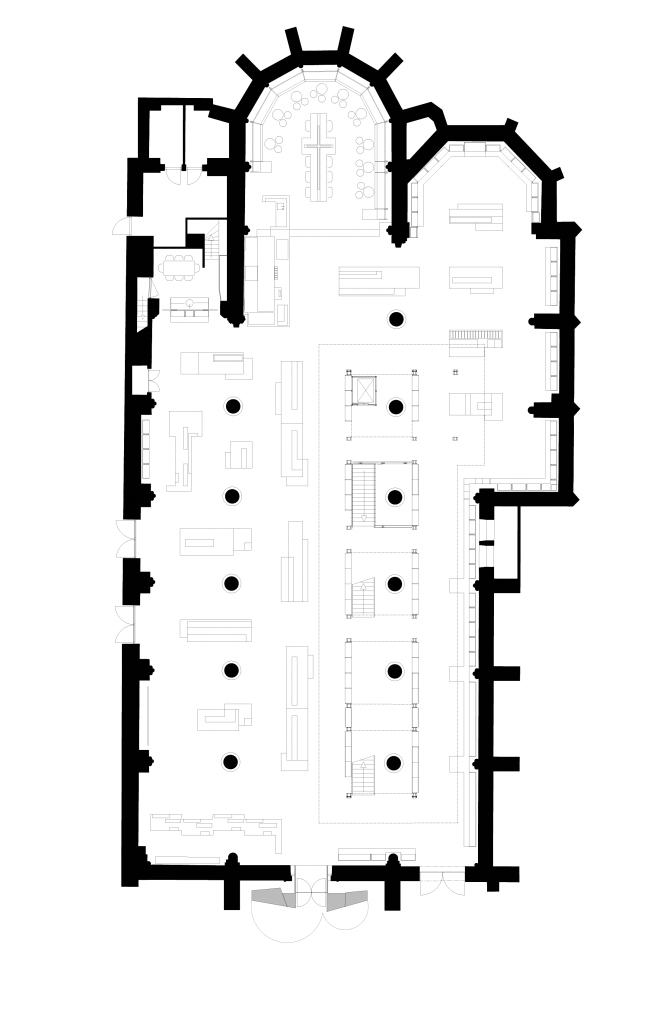
Проект: книжный магазин Selexyz Dominicanenkerk Maastricht
Место: Маастрихт
Мастерская: Merkx+Girod www.merk-x.nl
Фото: Roos Aldershoff

Книжный магазин Selexyz Dominicanenkerk Maastricht © Roos Aldershoff
Книжный магазин Selexyz Dominicanenkerk Maastricht © Roos Aldershoff

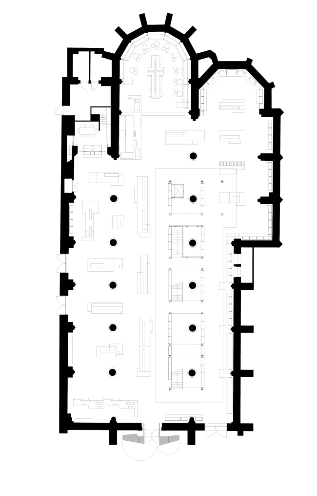
Магазин, спроектированный архитектурным бюро Merkx+Girod в здании бывшей доминиканской церкви в Маастрихте, недавно был назван лондонской газетой The Guardian «возможно, самым красивым книжным магазином в мире». В старинном здании уже давно не проводились службы: в разное время его использовали как велосипедную стоянку, боксерский ринг и цветочный магазин. Новому владельцу требовалось разместить 1200 м2 торговых площадей на исходных 750 м2, для чего он предложил дополнительно перекрыть пространство и создать еще один эксплуатируемый уровень. Но архитекторы сочли, что это разрушит целостность изначального интерьера и придумали свой вариант решения задачи. Гигантский «книжный шкаф-стеллаж» с проходами для покупателей установлен чуть в стороне от главной оси, оставляя полностью открытой левую половину здания. Легкая трехуровневая металлоконструкция не только решает проблему дополнительной полезной площади, но акцентирует вертикаль и колоссальные размеры сооружения, сохраняя исходную концепцию церковного пространства. Кроме того, изучая книги вдоль этой огромной этажерки, покупатель поднимается на самый верх, где вблизи может любоваться великолепными росписями сводов.
Книжный магазин Selexyz Dominicanenkerk Maastricht © Roos Aldershoff
Книжный магазин Selexyz Dominicanenkerk Maastricht © Roos Aldershoff
Книжный магазин Selexyz Dominicanenkerk Maastricht © Roos Aldershoff
Книжный магазин Selexyz Dominicanenkerk Maastricht © Roos Aldershoff

Ресторан с большим центральным столом, имеющим форму латинского креста, занимает всю алтарную часть здания. Он спроектирован уже другой архитектурной мастерской – SATIJNplus Architecten, также имеющей опыт интерьерной трансформации церкви в светское заведение.
Книжный магазин Selexyz Dominicanenkerk Maastricht © Merkx+Girod
Книжный магазин Selexyz Dominicanenkerk Maastricht © Merkx+Girod
Книжный магазин Selexyz Dominicanenkerk Maastricht © Merkx+Girod
Книжный магазин Selexyz Dominicanenkerk Maastricht © Merkx+Girod
Книжный магазин Selexyz Dominicanenkerk Maastricht © Merkx+Girod
Книжный магазин Selexyz Dominicanenkerk Maastricht © Merkx+Girod
Выставка цветов в стенах доминиканской церкви в 1899. Предоставлено Merkx+Girod
Выставка цветов в стенах доминиканской церкви в 1899. Предоставлено Merkx+Girod
Стоянка велосипедов в доминиканской церкви в 2002. Предоставлено Merkx+Girod
Стоянка велосипедов в доминиканской церкви в 2002. Предоставлено Merkx+Girod





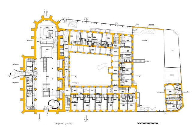
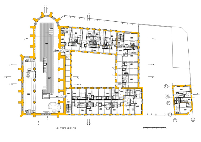
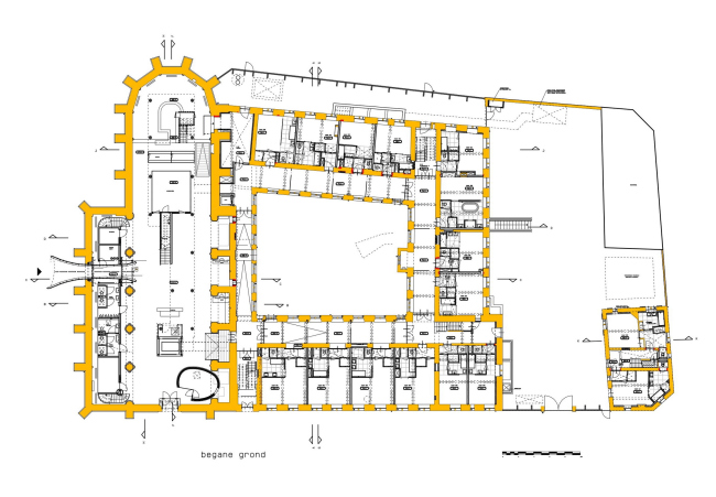
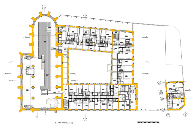
Проект: гостиница Kruisherenhotel
Место: Маастрихт
Мастерская: SATIJNplus Architecten www.satijnplus.nl
Фото: Etienne van Sloun
Гостиница Kruisherenhotel © Etienne van Sloun
Гостиница Kruisherenhotel © Etienne van Sloun

Готический собор с примыкающим к нему монастырским комплексом XVI века в одном из старейших кварталов Маастрихта пребывал в запустении еще с 1980-х. В начале нового тысячелетия судьбой зданий обеспокоился крупный голландский предприниматель, отельер и ресторатор Камиль Оствегель, известный своей любовью к старинным постройкам, которые он превращает в модные гостиницы и рестораны. После долгих бюрократических тяжб ему удалось получить разрешение на преобразование церкви с монастырем в фешенебельный дизайн-отель. Внутри старых стен по проекту SATIJNplus Architecten возвели архитектурную конструкцию с антресолью, лестницей и лифтом, благодаря которой внутри собора удалось разместить стойку портье, библиотеку, ресторан, винный бар и конференц-зону.
Гостиница Kruisherenhotel © Etienne van Sloun
Гостиница Kruisherenhotel © Etienne van Sloun
Гостиница Kruisherenhotel © Etienne van Sloun
Гостиница Kruisherenhotel © Etienne van Sloun
Гостиница Kruisherenhotel © Etienne van Sloun
Гостиница Kruisherenhotel © Etienne van Sloun

Над входом, оформленным в виде медного туннеля, находится стеклянная комната для переговоров. Полукруглые церковные капеллы превратили в комфортные лаунджи под стрельчатыми сводами.
Гостиница Kruisherenhotel © Etienne van Sloun
Гостиница Kruisherenhotel © Etienne van Sloun
Гостиница Kruisherenhotel © Etienne van Sloun
Гостиница Kruisherenhotel © Etienne van Sloun
Гостиница Kruisherenhotel © Etienne van Sloun
Гостиница Kruisherenhotel © Etienne van Sloun

Нижний уровень главного нефа занимает винный бар, а кафе для завтраков и ланчей оборудовано в антресольном уровне, откуда через огромные алтарные окна открываются чудесные виды старого Маастрихта.
Гостиница Kruisherenhotel © SATIJNplus Architecten
Гостиница Kruisherenhotel © SATIJNplus Architecten
Гостиница Kruisherenhotel © SATIJNplus Architecten
Гостиница Kruisherenhotel © SATIJNplus Architecten
Гостиница Kruisherenhotel © SATIJNplus Architecten
Гостиница Kruisherenhotel © SATIJNplus Architecten

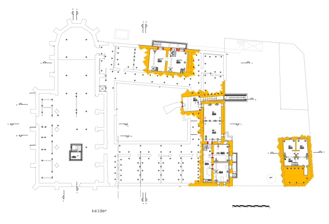
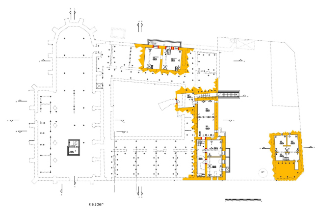
Прозрачный лифт поднимается наверх, к гостиничным номерам, которые обустроены на месте монашеских келий и в бывшем домике привратника. Комнаты постояльцев обставлены мебелью от самых именитых дизайнеров, оборудованы оригинальными светильниками и оформлены стильными росписями и принтами. Окна всех жилых помещений выходят в квадратный внутренний двор, где установлена эффектная световая инсталляция от Инго Маурера. Между ним и соседней постройкой в монастырском саду возвели современное здание-переход из стали и пластика, органично включив его в исторический контекст уже существующей застройки.




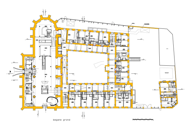
Проект: офисный центр Annastede
Место: Бреда
Мастерская: Oomen Architecten www.oomenarchitecten.nl
Фото: René van Dongen, Rob van Esch
Офисный центр Annastede © René van Dongen
Офисный центр Annastede © René van Dongen

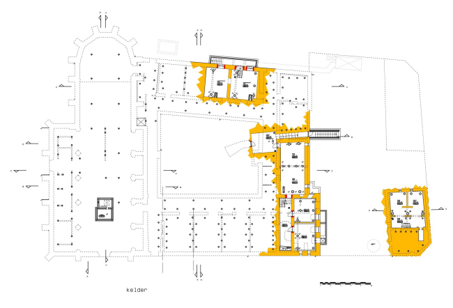
Базилика Св. Анны в Бреде была заложена в 1902. Ее спроектировал сын известного голландского архитектора Питера Кёйперса, автора Рейксмузеума и Центрального вокзала в Амстердаме. Аннакерк в стиле неоготики – пример «переходного периода» в культовой архитектуре Нидерландов. Собор давно перестал быть местом религиозных собраний, постепенно приходя в запустение. В 1992 он был передан из ведения церковных властей муниципалитету, при чьей финансовой поддержке бюро Oomen Architects разработало проект его сохранения и нового использования. С 2002 здание стали называть Annastede («место Анны»).
Офисный центр Annastede © Rob van Esch
Офисный центр Annastede © Rob van Esch
Офисный центр Annastede © René van Dongen
Офисный центр Annastede © René van Dongen
Офисный центр Annastede © René van Dongen
Офисный центр Annastede © René van Dongen
Офисный центр Annastede © Rob van Esch
Офисный центр Annastede © Rob van Esch
Офисный центр Annastede © René van Dongen
Офисный центр Annastede © René van Dongen
Офисный центр Annastede © René van Dongen
Офисный центр Annastede © René van Dongen
Офисный центр Annastede © René van Dongen
Офисный центр Annastede © René van Dongen

Теперь внутри него находится современный офисный центр с прозрачными стенами и изящными перекрытиями. Тщательно продуманная многоуровневая структура совершенно автономна и не противоречит исторической архитектуре. Легкие, едва видимые конструкции из стекла и металла будто парят в величественном окружении. Они составляют почти эстетский контраст с монументальностью старых стен, деликатно выявляя исторические детали и сохраняя особую атмосферу церковного пространства.
Офисный центр Annastede © Oomen Architecten
Офисный центр Annastede © Oomen Architecten
Офисный центр Annastede © Oomen Architecten
Офисный центр Annastede © Oomen Architecten
Офисный центр Annastede © Oomen Architecten
Офисный центр Annastede © Oomen Architecten
Офисный центр Annastede © Oomen Architecten
Офисный центр Annastede © Oomen Architecten





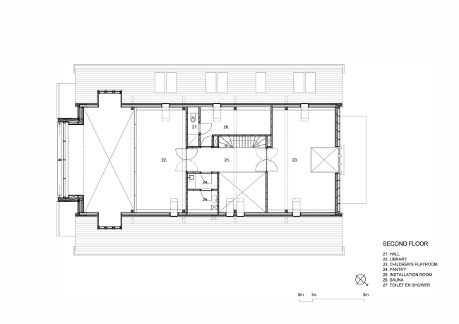
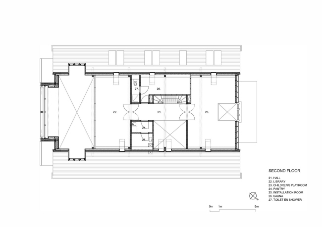
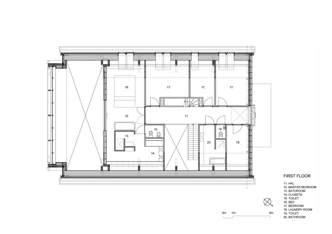
Проект: частный дом Woonkerk XL
Место: Утрехт
Мастерская: Zecc Architects www.zecc.nl
Фото: Frank Hanswijk
Частный дом Woonkerk XL © Frank Hanswijk
Частный дом Woonkerk XL © Frank Hanswijk

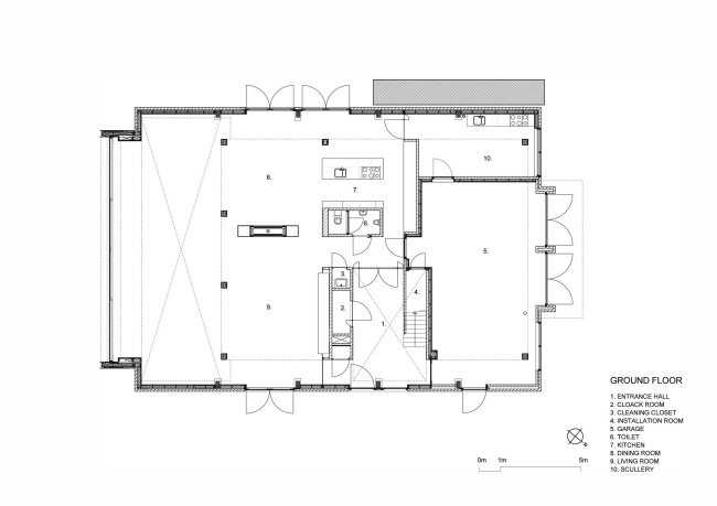
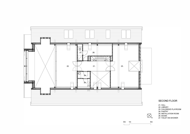
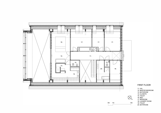
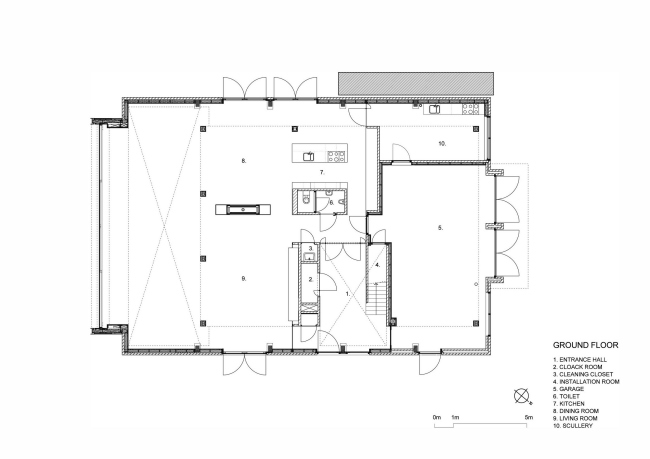
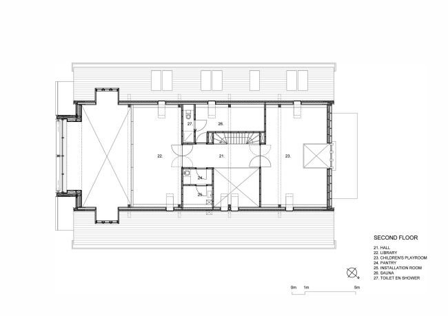
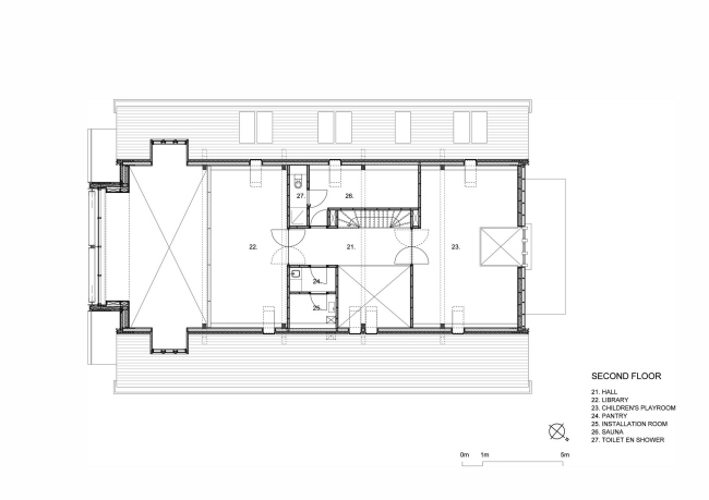
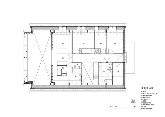
Фасад бывшей католической церкви Св. Якова в Утрехте выходит к городской набережной и почти не выделяется среди окружающих частных домов. После того, как службы здесь прекратились, здание использовалось как выставочный зал для антикварной мебели и концертная площадка. Для этого в 1990-е годы там был возведен дополнительный антресольный этаж, что стало важным моментом в ходе реновации, порученной в 2007 бюро Zecc Architects, хорошо известному в Голландии подобными проектами. Церковное помещение надо было превратить в современную резиденцию, сохранив его историческую основу. Архитекторы решили преобразовать старую непривлекательную антресоль в разноуровневую конструкцию с большими открытыми пространствами и множеством видовых точек. На самом верху находится комната для занятий, ниже – место отдыха и гостиная с библиотекой, а в самом низу – спальни и ванные комнаты. Зонирование происходит за счет перепада высотных уровней и стен-перегородок разной геометрии со сквозными проемами для максимального доступа света. В результате, весь жилой объем выглядит эффектной современной скульптурой, которая органично взаимодействует с исторической архитектурой и организует пространство.
Частный дом Woonkerk XL © Frank Hanswijk
Частный дом Woonkerk XL © Frank Hanswijk
Частный дом Woonkerk XL © Frank Hanswijk
Частный дом Woonkerk XL © Frank Hanswijk
Частный дом Woonkerk XL © Frank Hanswijk
Частный дом Woonkerk XL © Frank Hanswijk
Частный дом Woonkerk XL © Frank Hanswijk
Частный дом Woonkerk XL © Frank Hanswijk
Частный дом Woonkerk XL © Frank Hanswijk
Частный дом Woonkerk XL © Frank Hanswijk

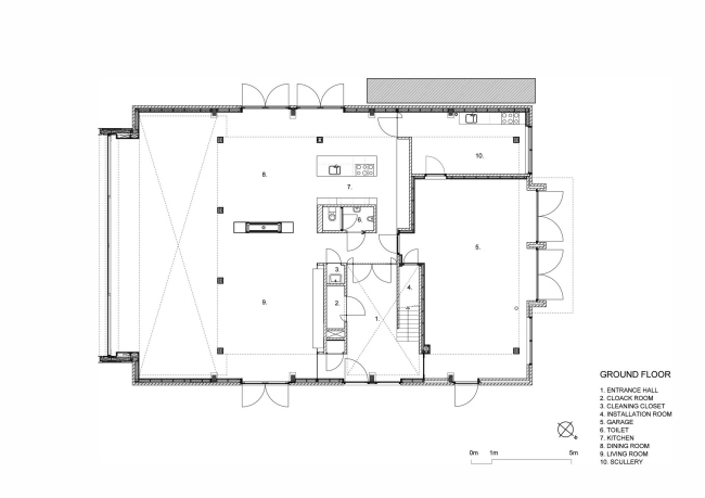
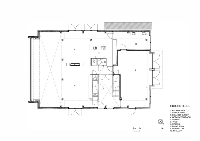
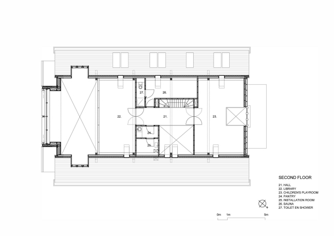
Столовая занимает подиум в бывшем алтаре, перпендикулярно которому стоит лаконичный кухонный остров. Старые церковные скамьи поставили вдоль обеденного стола, а нижнюю часть полукруглой алтарной стены прорезали тремя дополнительными проемами, один из которых служит входом в живописный внутренний дворик.
Частный дом Woonkerk XL © Frank Hanswijk
Частный дом Woonkerk XL © Frank Hanswijk
Частный дом Woonkerk XL © Frank Hanswijk
Частный дом Woonkerk XL © Frank Hanswijk
Частный дом Woonkerk XL © Frank Hanswijk
Частный дом Woonkerk XL © Frank Hanswijk
Частный дом Woonkerk XL © Zecc Architects
Частный дом Woonkerk XL © Zecc Architects
Частный дом Woonkerk XL © Zecc Architects
Частный дом Woonkerk XL © Zecc Architects
Частный дом Woonkerk XL © Zecc Architects
Частный дом Woonkerk XL © Zecc Architects

В случае смены владельца и назначения здания, такой интерьер легко можно приспособить под музей, библиотеку или же вернуть церкви – ведь новая конструкция не касается исторических стен, колонн, арок и может быть демонтирована. А старый деревянный пол, двери и витражи сохранены и бережно отреставрированы.




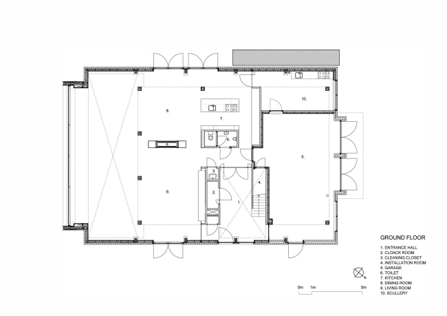
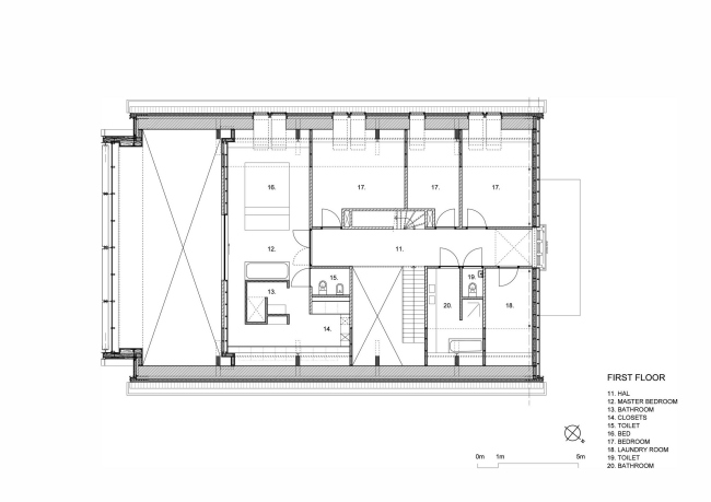
Проект: частный дом
Место: Роттердам
Мастерская: Ruud Visser Architects i.c.w. Peter Boer www.rvarchitectuur.nl
Фото: René de Wit
Частный дом в Роттердаме © René de Wit
Частный дом в Роттердаме © René de Wit

Небольшая деревянная церковь была построена на берегу реки Ротте в 1930 году, но уже много лет использовалась как гараж для сборки и продажи автомобилей. На момент передачи здания в работу архитекторам оно находилось в крайне запущенном состоянии, было сплошь обшито металлическими листами и напоминал ангар. Проект превращения его в жилой дом для семьи с двумя детьми разработало бюро Ruud Visser Architects в сотрудничестве с Петером Буром. Исходная площадь помещений значительно превышала размеры среднего голландского жилища. Архитекторы решили создать впечатляющее пространство, спроектировав отдельный дом непосредственно внутри существующей постройки – так, чтобы можно было его обойти, не выходя из церкви, ощутив границы сакрального и повседневного.
Частный дом в Роттердаме © René de Wit
Частный дом в Роттердаме © René de Wit
Частный дом в Роттердаме © René de Wit
Частный дом в Роттердаме © René de Wit
Частный дом в Роттердаме © René de Wit
Частный дом в Роттердаме © René de Wit

С алтарной стороны старой церкви находилась небольшая капелла, меньше и ниже основного объема, но выходившая прямо к реке. Ее заменили современным объемом тех же очертаний, но чуть короче – с полностью стеклянной стеной, огромными раздвижными дверями и жалюзи. Новый прозрачный фасад открывает прекрасный вид на реку и сам становится частью пейзажа. Бывший церковный трансепт действует как буфер между внешней церковной стеной и частным домом. Он решен как просторный пустой холл, откуда хорошо видны и дом, и церковь в целом.
Частный дом в Роттердаме © René de Wit
Частный дом в Роттердаме © René de Wit
Частный дом в Роттердаме © René de Wit
Частный дом в Роттердаме © René de Wit
Частный дом в Роттердаме © René de Wit
Частный дом в Роттердаме © René de Wit
Частный дом в Роттердаме © Ruud Visser Architects i.c.w. Peter Boer
Частный дом в Роттердаме © Ruud Visser Architects i.c.w. Peter Boer
Частный дом в Роттердаме © Ruud Visser Architects i.c.w. Peter Boer
Частный дом в Роттердаме © Ruud Visser Architects i.c.w. Peter Boer
Частный дом в Роттердаме © Ruud Visser Architects i.c.w. Peter Boer
Частный дом в Роттердаме © Ruud Visser Architects i.c.w. Peter Boer
Церковь в Роттердаме до перестройки. Предоставлено Ruud Visser Architects i.c.w. Peter Boer
Церковь в Роттердаме до перестройки. Предоставлено Ruud Visser Architects i.c.w. Peter Boer