Размещено на портале Архи.ру (www.archi.ru)

29.03.2017

Google для всех

Наталья Мурадова
Объект:
Новый кампус Google
Адрес:
США, None, Маунтин-Вью.
Мастерская:
BIG

Компания Google согласовала строительство своего нового офиса в Кремниевой долине по проекту Бьярке Ингельса и Томаса Хезервика.

Новый кампус Google. BIG и Heatherwick Studio. Изображение: Google
Новый кампус Google. BIG и Heatherwick Studio. Изображение: Google

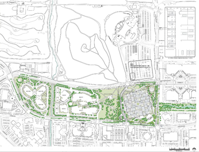
Власти Калифорнии одобрили проект кампуса компании Google в Маунтин-Вью, над которым бюро BIG и Heatherwick Studio работали более двух лет. Строительство начнется в ближайшие несколько недель и должно завершиться в 2019 году.

Бьярке Ингельс и Томас Хизервик спроектировали для Google штаб-квартиру нового типа. Она рассчитана не только на сотрудников компании: комплекс получит общественные пространства – плазу и парк – и зоны открытого доступа в самом здании.
Новый кампус Google. BIG и Heatherwick Studio. Изображение: Google
Новый кампус Google. BIG и Heatherwick Studio. Изображение: Google

На первом этаже, помимо офисов и лабораторий, расположатся зрительные и лекционные залы, магазины и кафе. Благоустройство предполагает высадку более 400 деревьев и создание множества прогулочных маршрутов, причем один из них – открытая для публики «зеленая петля» – пройдет сквозь нижний уровень постройки, объединив учреждения ритейла.
Новый кампус Google. BIG и Heatherwick Studio. Изображение: Google
Новый кампус Google. BIG и Heatherwick Studio. Изображение: Google

Здание будет двухэтажным, его площадь составит приблизительно 55 300 м2. В отделке фасадов используют только дерево, металл и стекло.
Новый кампус Google. BIG и Heatherwick Studio. Изображение: Google
Новый кампус Google. BIG и Heatherwick Studio. Изображение: Google

Основной объем в плане представляет собой прямоугольник, однако изогнутые свесы крыши выходят за пределы несущих конструкций, создавая пространство для павильонов.
Новый кампус Google. BIG и Heatherwick Studio. Изображение: Google
Новый кампус Google. BIG и Heatherwick Studio. Изображение: Google

Кровлю сделают из металлического сплава со специальным покрытием, способным, как утверждается, отпугивать птиц. Значительную часть крыши займет остекление с открытыми конструкциями, которые обеспечат максимум естественного освещения. Офис будет оснащен системой солнечных батарей на 4 мегаватта.
Новый кампус Google. BIG и Heatherwick Studio. Изображение: Google
Новый кампус Google. BIG и Heatherwick Studio. Изображение: Google
Здание станет не только энергоэффективным: крыша спроектирована таким образом, чтобы собирать дождевую воду для дальнейшего использования.
Новый кампус Google. BIG и Heatherwick Studio. Изображение: Google
Новый кампус Google. BIG и Heatherwick Studio. Изображение: Google

От большой парковки на территории кампуса отказались по принципиальным соображениям: сотрудников планируют пересадить на велосипеды и беспилотные автомобили, разработкой которых занимается Google.
Новый кампус Google. BIG и Heatherwick Studio. Изображение: Google
Новый кампус Google. BIG и Heatherwick Studio. Изображение: Google

Первоначальный масштабный проект кампуса, который BIG и Heatherwick Studio анонсировали в 2015 году, пришлось переделывать после того, как Google смог получить предполагаемую площадь под застройку. Также в нынешнем варианте нет упоминания об инновационых «крейботах», о которых говорилось ранее. За ландшафтный дизайн отвечает бюро Hargreaves Associates.