Размещено на портале Архи.ру (www.archi.ru)

27.03.2017

Белый покров

Нина Фролова
Объект:
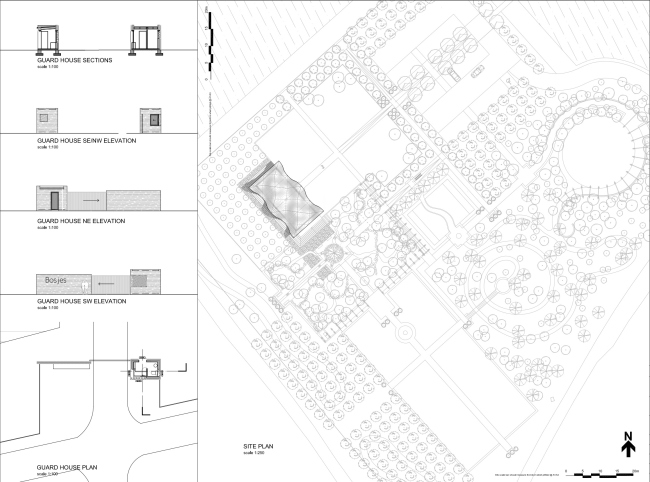
Часовня Бошьес
Адрес:
ЮАР, None,
Мастерская:
Steyn Studio

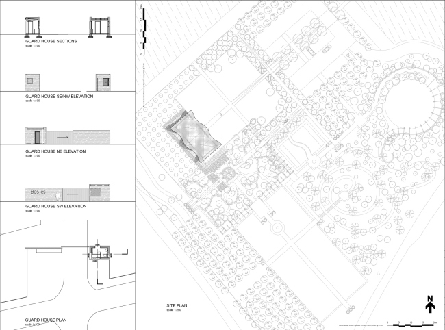
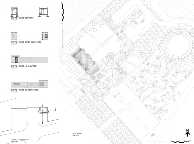
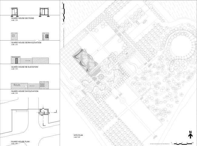
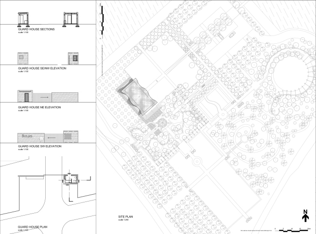
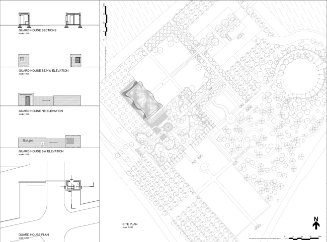
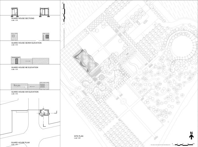
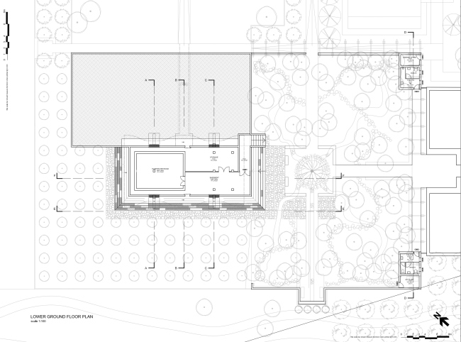
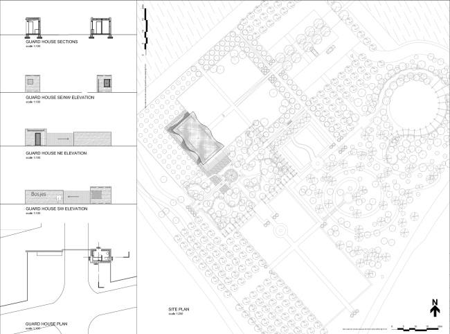
Часовня Бошьес на юге ЮАР по проекту бюро Steyn Studio.

Часовня Бошьес © Adam Letch
Часовня Бошьес © Adam Letch

Часовня возведена в имении Бошьес; ее окружают виноградники и высаженный специально для нее гранатовый сад. Волнообразная кровля из белого бетона – ключевой компонент проекта, она отсылает к 35-му Псалму: «Как драгоценна милость Твоя, Боже! Сыны человеческие в тени крыл Твоих покойны…»
 
Часовня Бошьес © Adam Letch
Часовня Бошьес © Adam Letch

Стены часовни выполнены из стекла, чтобы из интерьера открывались панорамы местности, в том числе горные гряды, также ставшие источником вдохновения для проекта – как и беленые фронтоны ферм в «капско-голландском стиле», характерные для ЮАР.
 
Часовня Бошьес © Adam Letch
Часовня Бошьес © Adam Letch

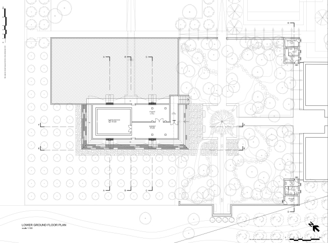
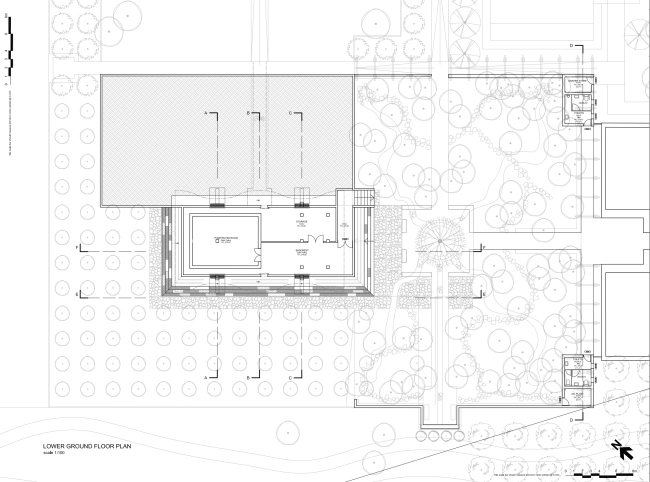
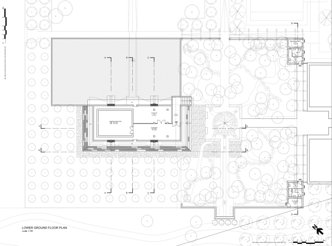
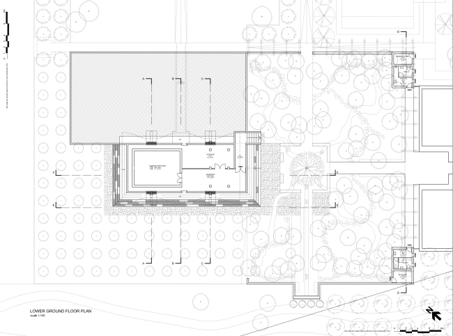
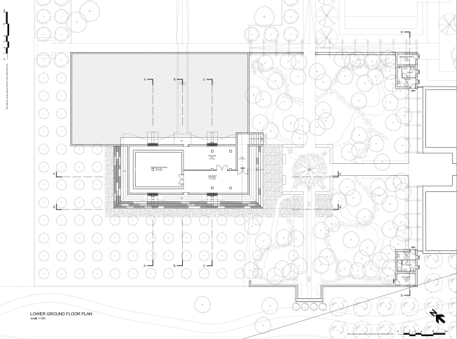
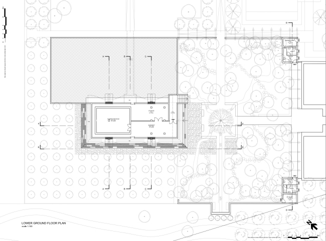
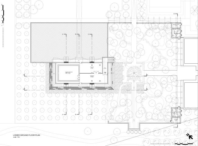
Чтобы полностью освободить интерьер, все дополнительные функции помещены на цокольный этаж или в отдельные павильоны в углах окружающего сада.
Часовня Бошьес © Adam Letch
Часовня Бошьес © Adam Letch
Часовня Бошьес © Adam Letch
Часовня Бошьес © Adam Letch
Часовня Бошьес © Adam Letch
Часовня Бошьес © Adam Letch
Часовня Бошьес © Adam Letch
Часовня Бошьес © Adam Letch
Часовня Бошьес © Adam Letch
Часовня Бошьес © Adam Letch
Часовня Бошьес © Adam Letch
Часовня Бошьес © Adam Letch
Часовня Бошьес © Adam Letch
Часовня Бошьес © Adam Letch
Часовня Бошьес © Adam Letch
Часовня Бошьес © Adam Letch
Часовня Бошьес © Adam Letch
Часовня Бошьес © Adam Letch
Часовня Бошьес © Steyn Studio
Часовня Бошьес © Steyn Studio
Часовня Бошьес © Steyn Studio
Часовня Бошьес © Steyn Studio
Часовня Бошьес © Steyn Studio
Часовня Бошьес © Steyn Studio
Часовня Бошьес © Steyn Studio
Часовня Бошьес © Steyn Studio
Часовня Бошьес © Steyn Studio
Часовня Бошьес © Steyn Studio
Часовня Бошьес © Steyn Studio
Часовня Бошьес © Steyn Studio
Часовня Бошьес © Steyn Studio
Часовня Бошьес © Steyn Studio
Часовня Бошьес © Steyn Studio
Часовня Бошьес © Steyn Studio
Часовня Бошьес © Steyn Studio
Часовня Бошьес © Steyn Studio
Часовня Бошьес © Steyn Studio
Часовня Бошьес © Steyn Studio
Часовня Бошьес © Steyn Studio
Часовня Бошьес © Steyn Studio
Часовня Бошьес © Steyn Studio
Часовня Бошьес © Steyn Studio
Часовня Бошьес © Steyn Studio
Часовня Бошьес © Steyn Studio
Часовня Бошьес © Adam Letch
Часовня Бошьес © Adam Letch
Часовня Бошьес © Adam Letch
Часовня Бошьес © Adam Letch