Размещено на портале Архи.ру (www.archi.ru)

23.03.2017

Пестование лесов

Арсений Матвеев
Объект:
Штаб-квартира госкомпании Lesy České republiky
Адрес:
Чехия, None, Градец-Кралове.
Мастерская:
Chybik+Kristof
Авторский коллектив:
Chybik+Kristof Architects & Urban Designers, K4, Ivo Stolek, Jan Stolek, Tomas Babka, breathe.earth.collective

В конкурсе на новую штаб-квартиру госкомпании «Леса Чешской республики» (LČR) победила команда молодых архитекторов во главе с бюро Chybik+Kristof.

Штаб-квартира госкомпании Lesy České republiky © Chybik+Kristof
Штаб-квартира госкомпании Lesy České republiky © Chybik+Kristof

Летом 2016 государственное предприятие «Lesy České republiky», управляющее лесными ресурсами Чехии, провело представительный конкурс на новое здание-символ для своего центрального кампуса. Авторы проекта-победителя были вдохновлены видами окружающего ландшафта: офис находится в Градец-Кралове у одноименного леса. Кроме того, под впечатлением от свежести лесного воздуха архитекторы обратились к концепции работы вне стен здания, когда в летний день можно взять ноутбук и уйти с ним из душного офиса под тень деревьев. Так появился проект, отмеченный жюри за новаторский подход к открытости административного учреждения, модульность и проработанное включение в природное окружение.
Штаб-квартира госкомпании Lesy České republiky © Chybik+Kristof
Штаб-квартира госкомпании Lesy České republiky © Chybik+Kristof

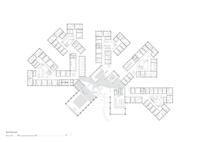
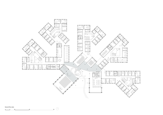
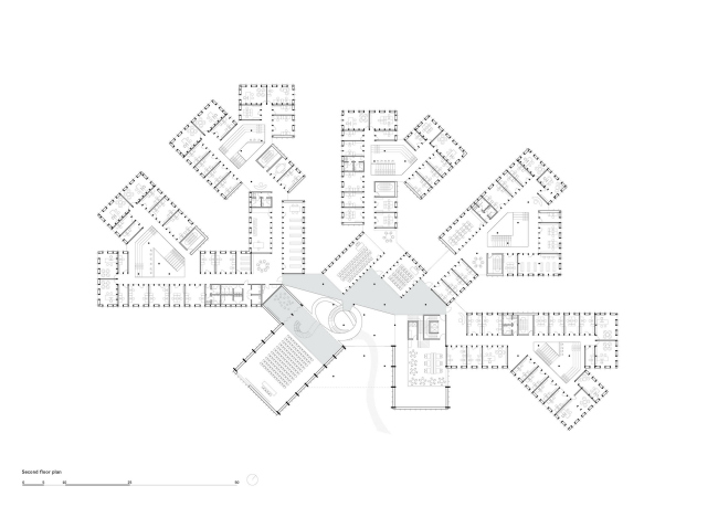
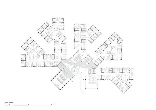
Здание в плане будто вырастает от главного входа. Он фланкирован объемами конференц-зала и кафе-столовой и приводит к ядру постройки, в котором сгруппированы общественные функции, в частности, библиотека и переговорная. Далее, в сторону леса тянутся пять «ветвей» для размещения пяти подразделений компании. Модульное построение обеспечивает автономность каждого блока, где обычные офисные коридоры заменены полуприватными «субцентрами» с кухней и кладовыми. Модули могут обособляться или объединяться в опен-спейс.
 
Штаб-квартира госкомпании Lesy České republiky © Chybik+Kristof
Штаб-квартира госкомпании Lesy České republiky © Chybik+Kristof

Так называемая природная тропа – ключевое звено, собирающее проект воедино: она берет начало на озелененной кровле, предназначенной для демонстрации элементов устойчивого развития лесов, а также размещения солнечных панелей. Далее, по скульптурной петле в вестибюле – лестнице с горкой – она спускается вниз и ведет наружу, очерчивая извилистый путь вокруг здания и обеспечивая доступ к наружным пространствам для работы и отдыха. Тропа будет открыта для «деловых» посетителей и туристов, для которых в здании даже предусмотрен информационный центр.
 
Штаб-квартира госкомпании Lesy České republiky © Chybik+Kristof
Штаб-квартира госкомпании Lesy České republiky © Chybik+Kristof

Территория вокруг штаб-квартиры поделена ее модулями на шесть секторов, в каждом из которых создадут «миниатюру» одного из видов леса, характерных для Чехии. Эти фрагменты по мере роста будут обеспечивать «вживление» объекта в среду, а обустройство окружающих пространств свяжет их с основным лесным массивом. Кроме того, форма здания позволит увидеть сразу все лесные сюжеты прямо из вестибюля. Над ландшафтным дизайном трудились чешский архитектор Томаш Бабка и австрийская команда breathe.earth.collective.
 
Штаб-квартира госкомпании Lesy České republiky © Chybik+Kristof
Штаб-квартира госкомпании Lesy České republiky © Chybik+Kristof

Одним из «экологических» условий конкурса было максимальное использование дерева в проекте, поэтому большинство конструкций предложено исполнить из клееного бруса, а фасады – составить из деревянных и стеклянных панелей. Кроме того, обилие дерева в залитом светом интерьере создаст ощущение лесной поляны.
 
Штаб-квартира госкомпании Lesy České republiky © Chybik+Kristof
Штаб-квартира госкомпании Lesy České republiky © Chybik+Kristof

Предполагается, что постройка будет потреблять практически нулевое количество энергии. Помимо обычных предложений вроде тепловых скважин, LED-освещения и упомянутых солнечных батарей, сама ее форма поспособствует более эффективному отводу тепла, а пруд для сбора дождевой воды станет элементом ландшафта. На подземном уровне запланированы паркинг, фитнес-центр и помещения для хранения.
Штаб-квартира госкомпании Lesy České republiky © Chybik+Kristof
Штаб-квартира госкомпании Lesy České republiky © Chybik+Kristof
Штаб-квартира госкомпании Lesy České republiky © Chybik+Kristof
Штаб-квартира госкомпании Lesy České republiky © Chybik+Kristof
Штаб-квартира госкомпании Lesy České republiky © Chybik+Kristof
Штаб-квартира госкомпании Lesy České republiky © Chybik+Kristof
Штаб-квартира госкомпании Lesy České republiky © Chybik+Kristof
Штаб-квартира госкомпании Lesy České republiky © Chybik+Kristof
Штаб-квартира госкомпании Lesy České republiky © Chybik+Kristof
Штаб-квартира госкомпании Lesy České republiky © Chybik+Kristof
Штаб-квартира госкомпании Lesy České republiky © Chybik+Kristof
Штаб-квартира госкомпании Lesy České republiky © Chybik+Kristof
Штаб-квартира госкомпании Lesy České republiky © Chybik+Kristof
Штаб-квартира госкомпании Lesy České republiky © Chybik+Kristof
Штаб-квартира госкомпании Lesy České republiky © Chybik+Kristof
Штаб-квартира госкомпании Lesy České republiky © Chybik+Kristof
Штаб-квартира госкомпании Lesy České republiky © Chybik+Kristof
Штаб-квартира госкомпании Lesy České republiky © Chybik+Kristof
Штаб-квартира госкомпании Lesy České republiky © Chybik+Kristof
Штаб-квартира госкомпании Lesy České republiky © Chybik+Kristof
Штаб-квартира госкомпании Lesy České republiky © Chybik+Kristof
Штаб-квартира госкомпании Lesy České republiky © Chybik+Kristof
Штаб-квартира госкомпании Lesy České republiky © Chybik+Kristof
Штаб-квартира госкомпании Lesy České republiky © Chybik+Kristof
Штаб-квартира госкомпании Lesy České republiky © Chybik+Kristof
Штаб-квартира госкомпании Lesy České republiky © Chybik+Kristof
Штаб-квартира госкомпании Lesy České republiky © Chybik+Kristof
Штаб-квартира госкомпании Lesy České republiky © Chybik+Kristof
Штаб-квартира госкомпании Lesy České republiky © Chybik+Kristof
Штаб-квартира госкомпании Lesy České republiky © Chybik+Kristof
Штаб-квартира госкомпании Lesy České republiky © Chybik+Kristof
Штаб-квартира госкомпании Lesy České republiky © Chybik+Kristof
Штаб-квартира госкомпании Lesy České republiky © Chybik+Kristof
Штаб-квартира госкомпании Lesy České republiky © Chybik+Kristof
Штаб-квартира госкомпании Lesy České republiky © Chybik+Kristof
Штаб-квартира госкомпании Lesy České republiky © Chybik+Kristof
Штаб-квартира госкомпании Lesy České republiky © Chybik+Kristof
Штаб-квартира госкомпании Lesy České republiky © Chybik+Kristof
Штаб-квартира госкомпании Lesy České republiky © Chybik+Kristof
Штаб-квартира госкомпании Lesy České republiky © Chybik+Kristof
Штаб-квартира госкомпании Lesy České republiky © Chybik+Kristof
Штаб-квартира госкомпании Lesy České republiky © Chybik+Kristof