Размещено на портале Архи.ру (www.archi.ru)

21.03.2017

«Восточная жилая единица» в Ивреа

Василий Бабуров

«Восточная жилая единица» (Residenze Est) в Ивреа – последняя по времени постройка фирмы «Оливетти» в её «компани-тауне». В этом здании воплотились почти все громкие идеи 1960–70-х годов.

«Восточная жилая единица» (Residenze Est) в Ивреа © Василий Бабуров
«Восточная жилая единица» (Residenze Est) в Ивреа © Василий Бабуров

В историческом центре старинного итальянского города Ивреа (Пьемонт) стоит сооружение необычной футуристической формы. Задуманное как ультрасовременный комплекс, объединяющий жильё для сотрудников компании «Оливетти» с конгресс-центром, кино- и выставочным залами, плавательным бассейном, кафе и магазинами, здание выглядит полузаброшенным и воспринимается сегодня как памятник архитектурным утопиям полувековой давности.
 
«Восточная жилая единица» (Residenze Est) в Ивреа. Фото нач. 1970-х гг.
«Восточная жилая единица» (Residenze Est) в Ивреа. Фото нач. 1970-х гг.
«Восточная жилая единица» (Residenze Est) в Ивреа © Василий Бабуров
«Восточная жилая единица» (Residenze Est) в Ивреа © Василий Бабуров
«Восточная жилая единица» (Residenze Est) в Ивреа © Василий Бабуров
«Восточная жилая единица» (Residenze Est) в Ивреа © Василий Бабуров

Это единственное из нескольких десятков зданий компании «Оливетти» в Ивреа, которое расположено в историческом центре (все остальные строились за его пределами). Место выбрано сознательно – комплекс задумывался как своеобразный подарок городу его главного (а по сути, единственного) градообразующего предприятия. На протяжении нескольких десятилетий компания строила разнообразные производственные, учебные, офисные, жилые и общественные объекты к югу от городской черты. При этом строительство велось упорядоченно, следуя вдумчивой градостроительной политике, выгодно отличавшей «Оливетти» от большинства крупных корпораций. Постепенно в южной части Ивреа сформировалось несколько хорошо спланированных кластеров (производственный и жилой) с привлекательной средой и первоклассными сооружениями, построенными известными – и не очень – итальянскими архитекторами. Однако их окраинное расположение создавало некоторую отчуждённость в отношениях «Оливетти» с местным сообществом, воспринимавшим её сотрудников как чужаков (при том, что её харизматичный лидер Адриано Оливетти пользовался уважением и симпатией жителей). Многофункциональный комплекс в старой части Ивреа, обслуживающий как «аборигенов», так и «пришлых», виделся решением этой проблемы. Более того, здание со сложной программой и необычным, ультрасовременным обликом должно было стать символическим мостом, связывающим не только компанию и город, но шире: древность и современность, Италию и остальной мир.
 
Иджинио Каппаи и Пьетро Майнардис
Иджинио Каппаи и Пьетро Майнардис
Адриано Оливетти и Ренцо Дзордзи
Адриано Оливетти и Ренцо Дзордзи



Затеяв столь амбициозный проект, «Оливетти» сделала не менее смелый выбор архитекторов: проектировать комплекс были приглашены молодые зодчие из Венеции Иджинио Каппаи (1932–1999) и Пьетро Майнардис (1935–2007), у которых на тот момент не было ни одной самостоятельной реализации. Несколько неожиданный, на первый взгляд, выбор объяснялся, с одной стороны, общим революционным настроем 1960-х, а с другой – соответствовал архитектурной политике компании, решавшей не только утилитарные, но также имиджевые задачи. В «Оливетти» существовал оригинальный механизм, который гарантировал создание дизайна высокого класса. Ответственность за внешний облик всего, что производила или заказывала фирма, несла особая структура – отдел культурных связей, промышленного дизайна и рекламы, возглавляемый писателем Ренцо Дзордзи (1921–2010) и подотчётный одному лишь Адриано Оливетти. Именно Дзордзи с его авторитетом, обширными связями (в т.ч. за пределами Италии) и слаженной командой подбирал архитекторов. Изначально предпочтение отдавалось соотечественникам, но по мере расширения международной экспансии компании стали привлекать профессионалов на местах, полагая, что те лучше чувствуют контекст при проектированнии магазинов и шоу-рум. Самые значительные фигуры в длинном списке зодчих, формировавших архитектурную коллекцию «Оливетти», – Иньяцио Гарделла, Эгон Айерманн, Кэндзо Тангэ, Луис Кан и Джеймс Стерлинг.

Имея сорокалетний опыт такого архитектурного меценатства и, соответственно, возможность привлечь гораздо более маститых зодчих, «Оливетти» всё же сделала ставку на молодость, ожидая получить нечто принципиально новое, и при этом «в рамках приличий» (ведь речь шла о строительстве в средневековом городе). Возможно, свою роль сыграло и то обстоятельство, что Каппаи и Майнардис долгое время работали с Гарделлой и, по-видимому, участвовали в его проекте в Ивреа.
 
«Восточная жилая единица» (Residenze Est) в Ивреа. Южный фасад © Василий Бабуров
«Восточная жилая единица» (Residenze Est) в Ивреа. Южный фасад © Василий Бабуров
«Восточная жилая единица» (Residenze Est) в Ивреа. Южный фасад © Василий Бабуров
«Восточная жилая единица» (Residenze Est) в Ивреа. Южный фасад © Василий Бабуров
«Восточная жилая единица» (Residenze Est) в Ивреа. Южный фасад © Василий Бабуров
«Восточная жилая единица» (Residenze Est) в Ивреа. Южный фасад © Василий Бабуров



Название «La Serra», которое сегодня носит здание, представляет собой игру слов: оранжерея / горный хребет. Эта многозначность символична: в своём проекте архитекторы синтезировали целый спектр популярных в 1960–70-е годы идей: создание мегаструктур, использование сложных, открытых (сознательно незавершённых) композиций, интеграция приватных и общественных пространств, уподобление здания машине (как функционально, так и образно), заменяемость отдельных функциональных модулей.

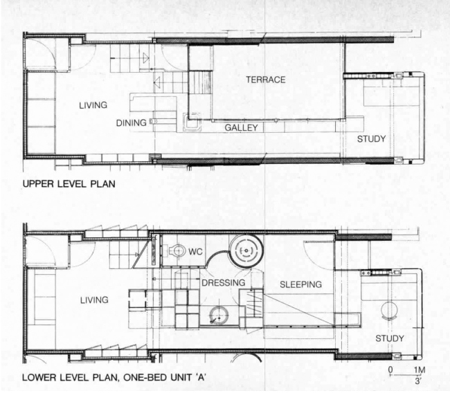
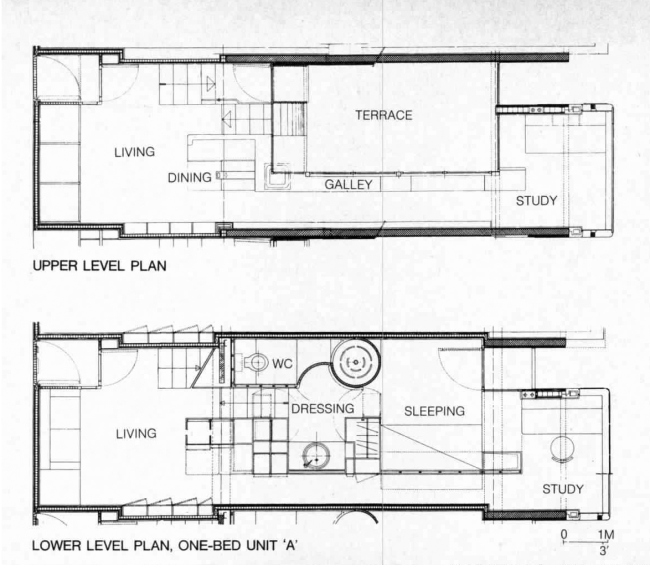
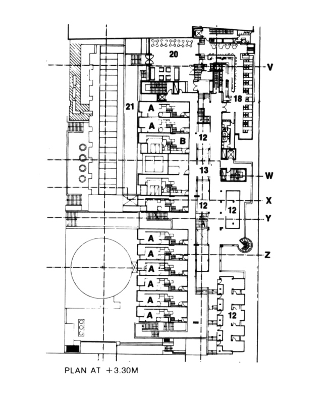
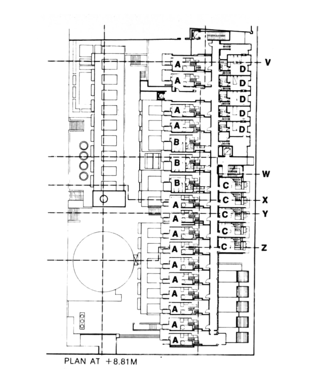
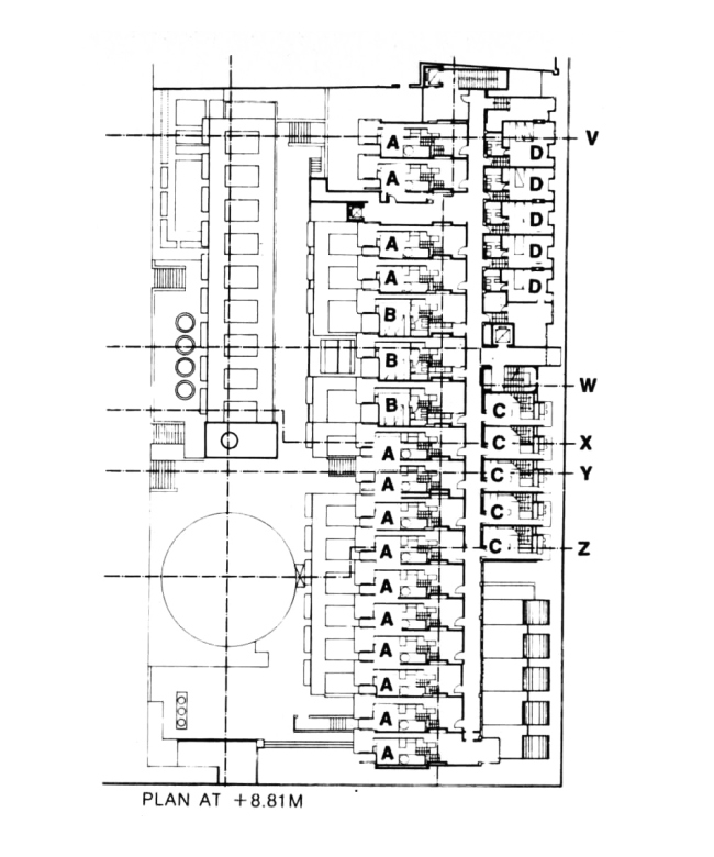
Нижние этажи, включая подземные, отведены под общественные функции: небольшие магазины (точнее, ларьки), ресторан, кафе, бар, кинозал, аудитория, плавательный бассейн, спортзал и пр. Верхние этажи – жилые, там располагаются квартиры / гостиничные номера, изначально предназначавшиеся для кратковременного проживания сотрудников «Оливетти» (всего их 55). Большая их часть выходит на юг, в небольшой сквер. Все жилые ячейки, независимо от размера, имеют оригинальную планировку: несколько уровней пола, встроенное оборудование и даже маленький дворик в центре; помещения интегрированы друг с другом, как на яхтах или в домах на колёсах. Каждая студия обозначена на фасаде металлическим кожухом-эркером; снаружи они напоминают корабли, пристыкованные к космической станции.
 
«Восточная жилая единица» (Residenze Est) в Ивреа. Южный фасад © Василий Бабуров
«Восточная жилая единица» (Residenze Est) в Ивреа. Южный фасад © Василий Бабуров
«Восточная жилая единица» (Residenze Est) в Ивреа. Южный фасад © Василий Бабуров
«Восточная жилая единица» (Residenze Est) в Ивреа. Южный фасад © Василий Бабуров
«Восточная жилая единица» (Residenze Est) в Ивреа. Фото сер. 1970-х гг.
«Восточная жилая единица» (Residenze Est) в Ивреа. Фото сер. 1970-х гг.

Многие подмечают, что La Serra выглядит, как огромная пишущая машинка, где клавиши – жилые ячейки, а каретка – консольная конструкция, нависающая над торцевым фасадом. Однако аллюзия не буквальная и далеко не единственная. В своём проекте Каппаи и Майнардис обыграли целый набор актуальных на тот момент тем: здание-мегаструктура (центр нового города Камбернолд в Шотландии), террасообразные структуры (университет в Норидже Дениса Ласдана, Habitat Моше Сафди), капсульная архитектура (Archigram и японские метаболисты). Благодаря этому синтезу внешний облик здания вызывает множество разных ассоциаций: со станком, с космическим кораблём, в общем, с некой огромной машиной. Можно считать это также развитием темы «Жилой единицы» Ле Корбюзье, а если копнуть чуть глубже, то и советского жилого комбината рубежа 1920–30-х гг.
 
Центр нового города Камбернолд (Великобритания). 1955-67 гг. Архитектор Джеффри Копкатт
Центр нового города Камбернолд (Великобритания). 1955-67 гг. Архитектор Джеффри Копкатт
Университет Восточной Англии в Норидже. 1964-1968 гг. Архитектор Денис Лэсдан
Университет Восточной Англии в Норидже. 1964-1968 гг. Архитектор Денис Лэсдан
Plug-In City. 1964 г. Archigram
Plug-In City. 1964 г. Archigram
Башня Nakagin в Токио. 1970-72 гг. Арх. Кисё Курокава
Башня Nakagin в Токио. 1970-72 гг. Арх. Кисё Курокава

Самое удивительное, что несмотря на крупные размеры и футуристический вид, комплекс вполне деликатно вписан в контекст, не разрывая, а органически продолжая городскую ткань. Добиться этого Каппаи и Майнардис стремились не стилистическими, а структурными средствами, подчинив внутреннюю пространственную структуру сооружения городской. Предполагалось, что на уровне земли здание будет полностью проницаемым: первый этаж должен быть стать своеобразной пьяцеттой, откуда посетители попадали бы в те или иные помещения на верхних и нижних уровнях.
 
«Восточная жилая единица» (Residenze Est) в Ивреа. Восточный фасад © Василий Бабуров
«Восточная жилая единица» (Residenze Est) в Ивреа. Восточный фасад © Василий Бабуров
«Восточная жилая единица» (Residenze Est) в Ивреа. Восточный фасад © Василий Бабуров
«Восточная жилая единица» (Residenze Est) в Ивреа. Восточный фасад © Василий Бабуров

Первоначальная концепция (1967 г.) была наполнена оптимизмом, выражая упоение научно-техническим и социальным прогрессом, которые были свойственны той эпохе. Однако за время строительства, растянувшегося почти на 10 лет, проект претерпел многократные изменения. Едва начавшись, стройка была остановлена на два года: при рытье котлована были обнаружены многочисленные остатки древнеримских сооружений. Проект был переработан так, чтобы все археологические находки остались в нетронутом виде и к ним был бы обеспечен свободный доступ. Гораздо более серьёзные переделки были вызваны внешними социальными и экономическими изменениями: разочарованием в прогрессистских утопиях, но главное – упадком самой компании, упустившей наступление очередного технологического цикла. Под удар было поставлено будущее не только комплекса, но и всего города, лишившегося главного работодателя. От многих утопических идей, положенных в основу концепции, пришлось отказаться: например, от отсутствия чёткого разграничения частных и общественных зон. Небольшие «настройки» функционального и управленческого характера удержали проект на плаву, позволив использовать комплекс в качестве гостиницы, однако общедоступностью большей части общественных помещений пришлось пожертвовать.
 
«Восточная жилая единица» (Residenze Est) в Ивреа. Северный фасад. Торговые павильоны расположены лесенкой – прозрачный намёк на венецианское происхождение архитекторов. © Василий Бабуров
«Восточная жилая единица» (Residenze Est) в Ивреа. Северный фасад. Торговые павильоны расположены лесенкой – прозрачный намёк на венецианское происхождение архитекторов. © Василий Бабуров
«Восточная жилая единица» (Residenze Est) в Ивреа. Северный фасад. Фото сер. 1970-х гг.
«Восточная жилая единица» (Residenze Est) в Ивреа. Северный фасад. Фото сер. 1970-х гг.
«Восточная жилая единица» (Residenze Est) в Ивреа. Северный фасад. Фото сер. 1970-х гг.
«Восточная жилая единица» (Residenze Est) в Ивреа. Северный фасад. Фото сер. 1970-х гг.
«Восточная жилая единица» (Residenze Est) в панораме города. Фото сер. 1970-х гг.
«Восточная жилая единица» (Residenze Est) в панораме города. Фото сер. 1970-х гг.
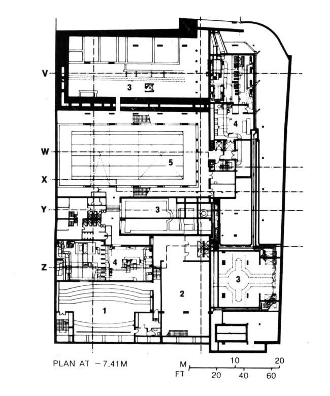
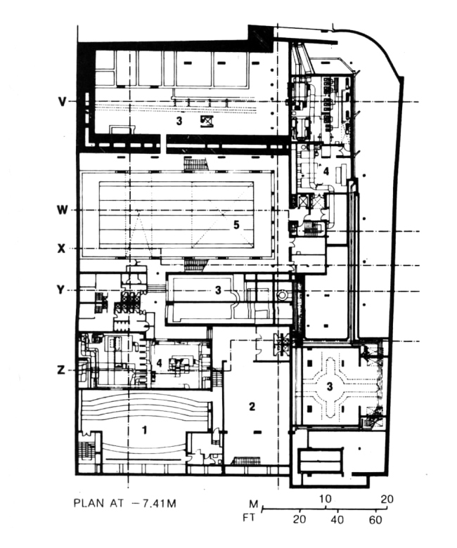
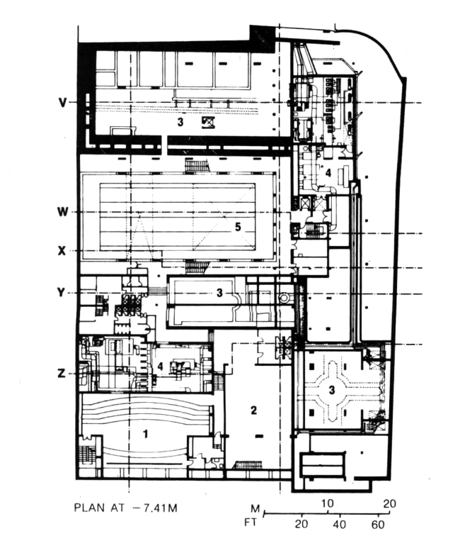
Бассейн (5)
Бассейн (5)
Конференц-зал
Конференц-зал
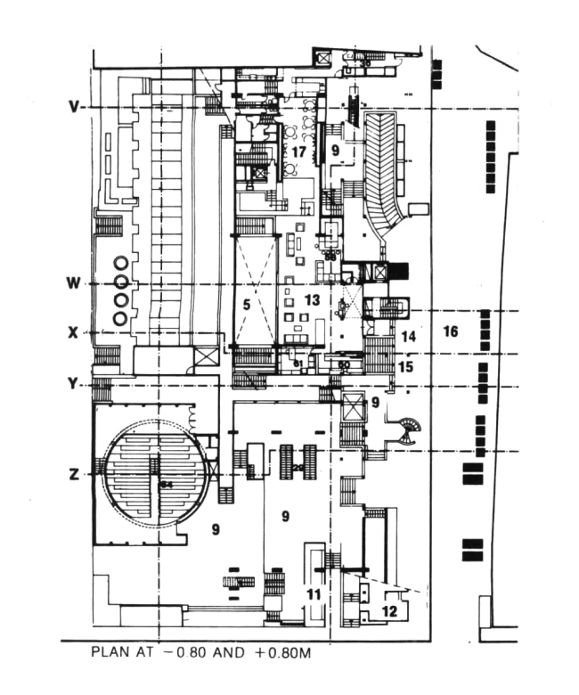
Цилиндрический бар (18)
Цилиндрический бар (18)
Цилиндрический бар (18)
Цилиндрический бар (18)
Цилиндрический бар (18)
Цилиндрический бар (18)
Кафе (17)
Кафе (17)
Вестибюль жилой части комплекса (13)
Вестибюль жилой части комплекса (13)

К сожалению, Ивреа разделила судьбу почти всех промышленных моногородов, не сумевших найти альтернативные источники деятельности. Она не входит в число популярных туристических направлений, а немногочисленные ценители современной архитектуры не способны обеспечить рентабельность отеля и тем более реставрацию, в которой нуждается здание. Это тем более обидно, что La Serra – наиболее яркое произведение Майнардиса и Каппаи, оказавшихся не самыми плодовитыми зодчими. Некоторую надежду внушает перспектива включения города в список Всемирного наследия ЮНЕСКО, чего Ивреа, несомненно, заслуживает.

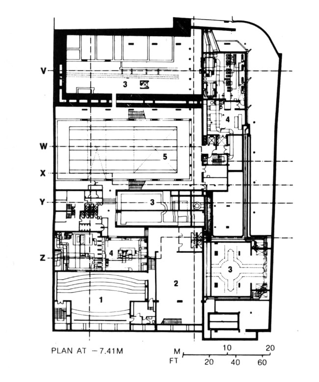
План на уровне -7.41
План на уровне -7.41
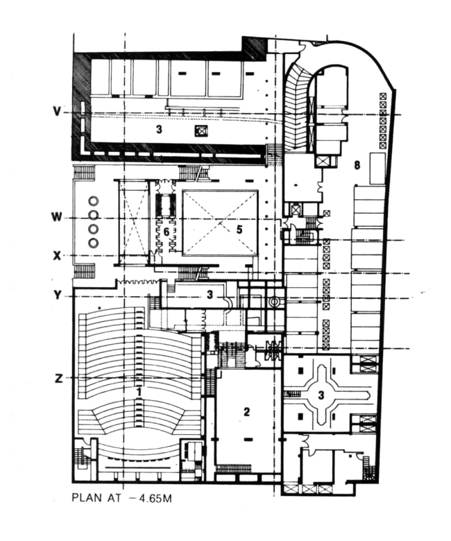
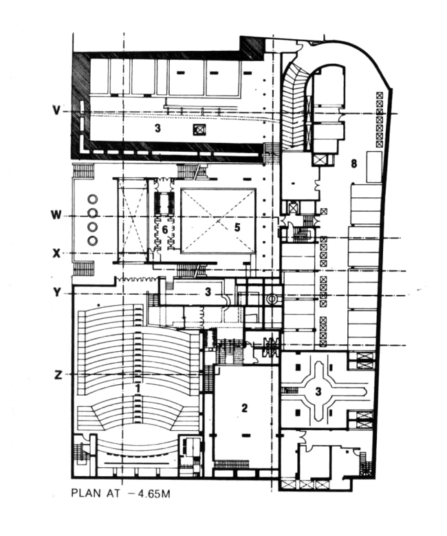
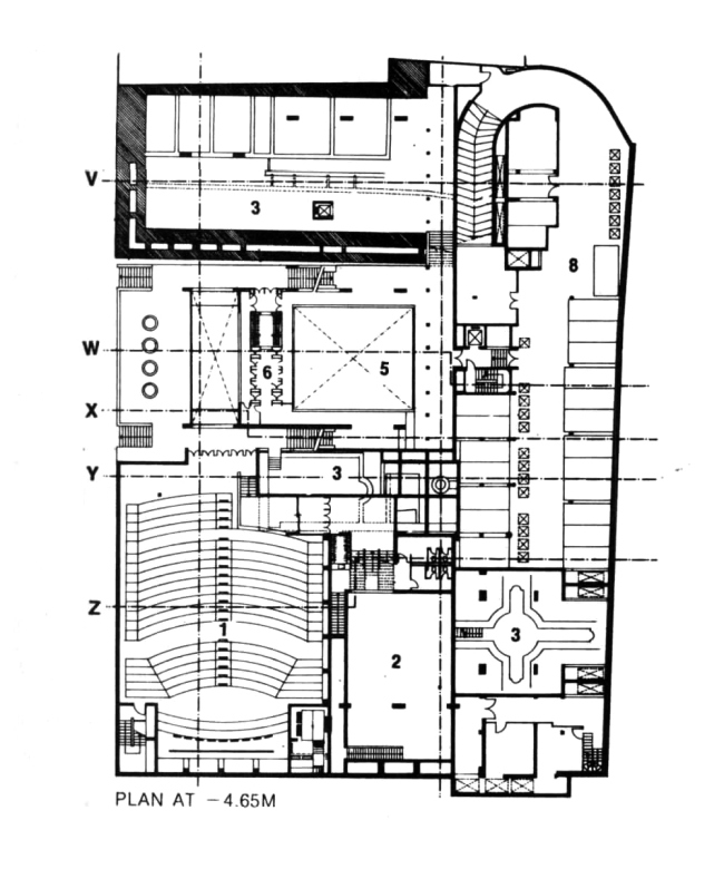
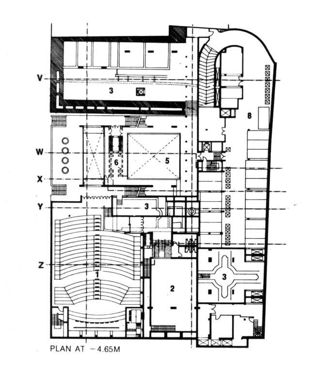
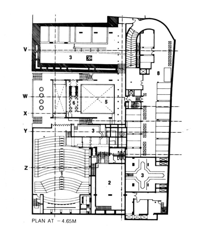
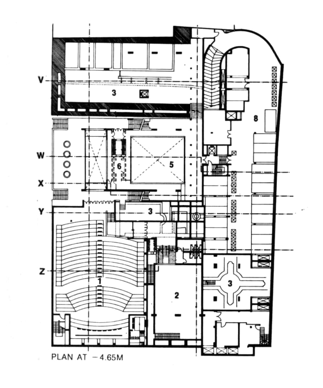
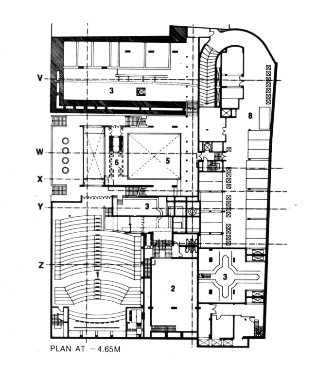
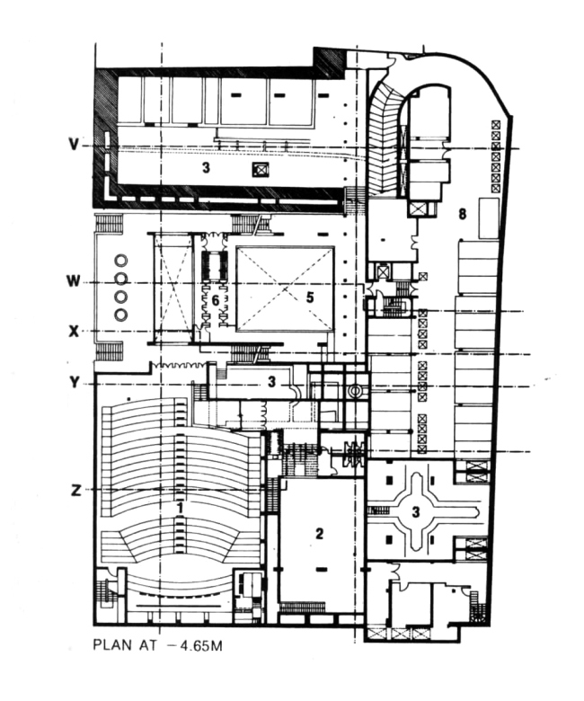
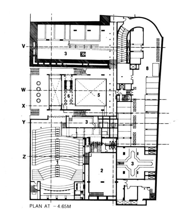
План на уровне -4.65
План на уровне -4.65
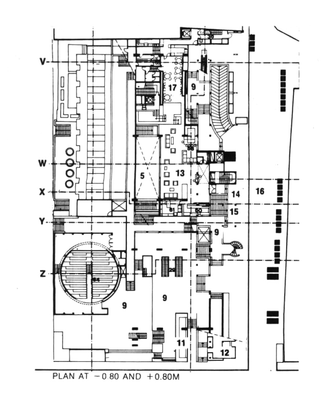
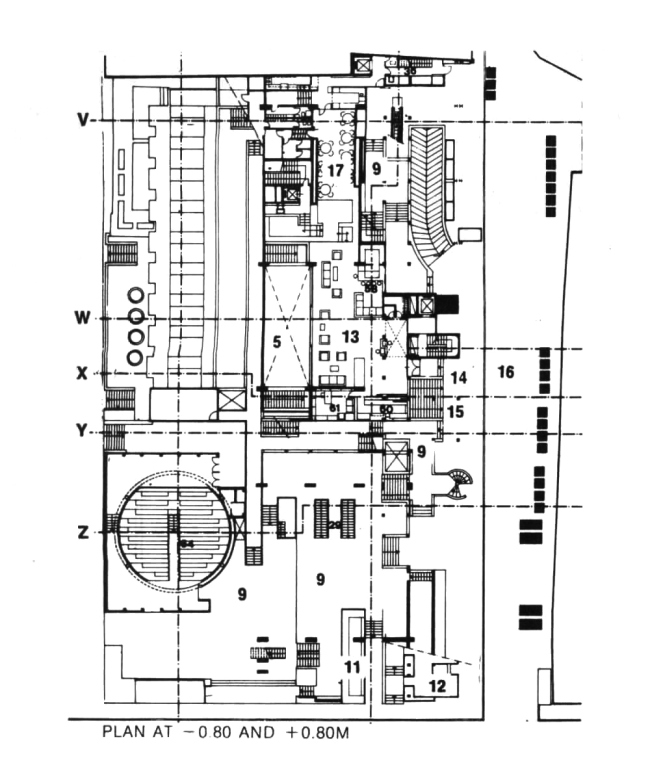
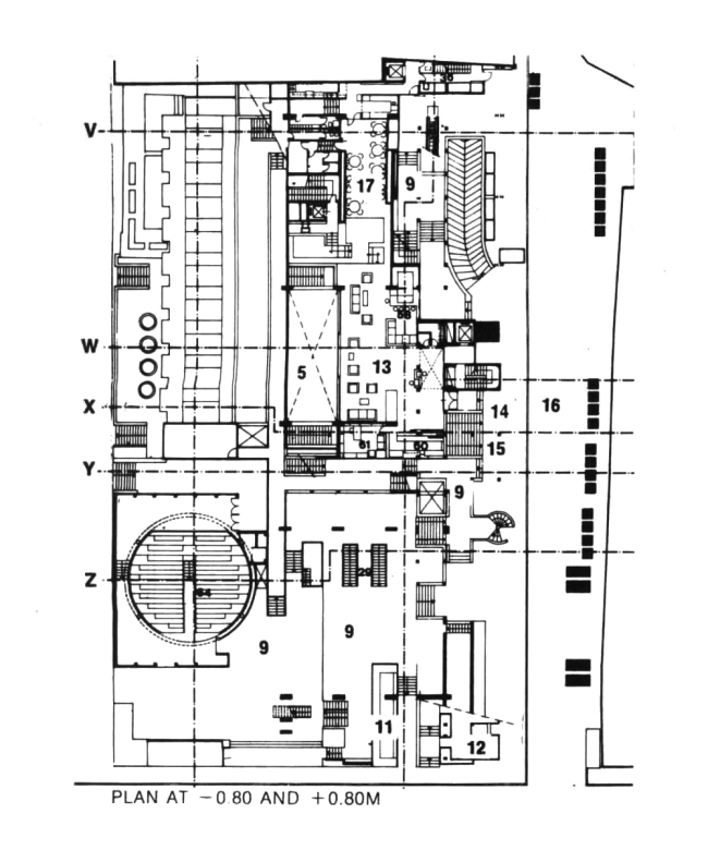
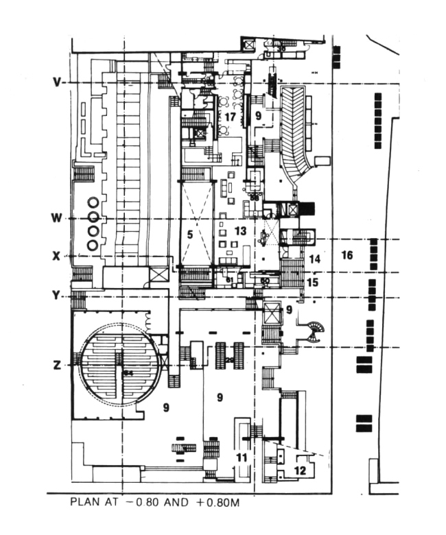
План на уровне -0.80
План на уровне -0.80
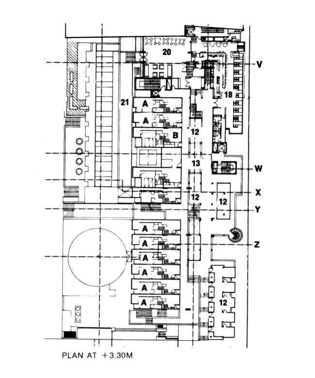
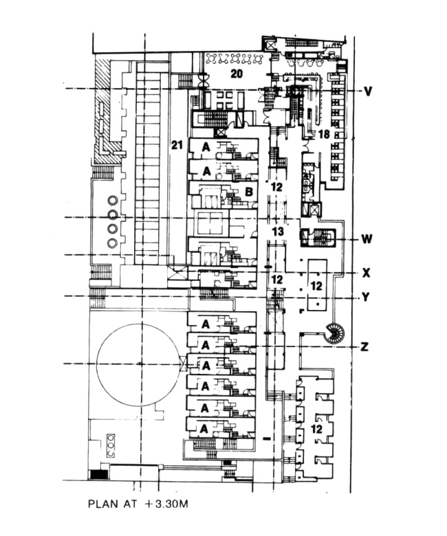
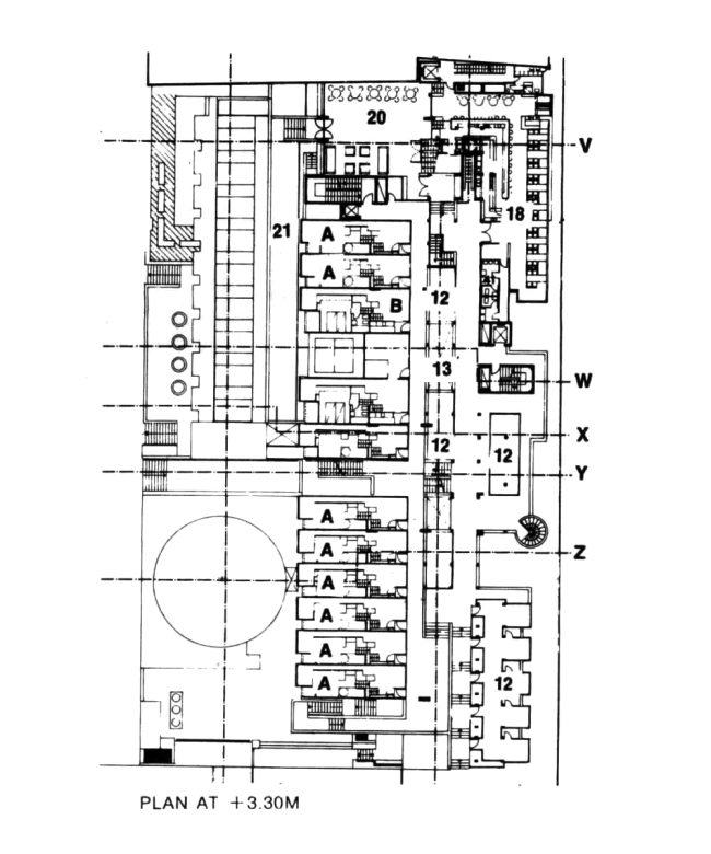
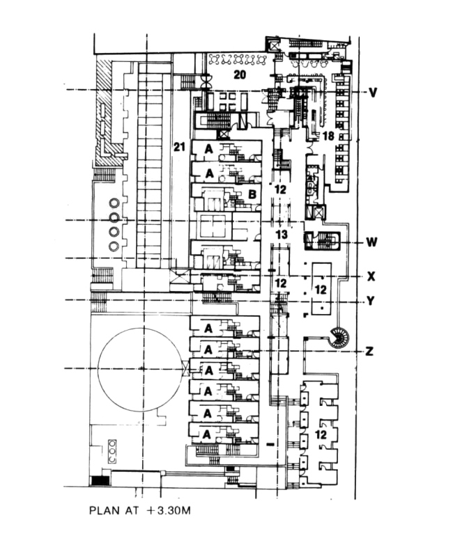
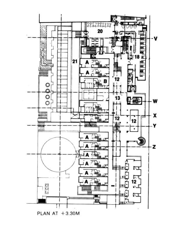
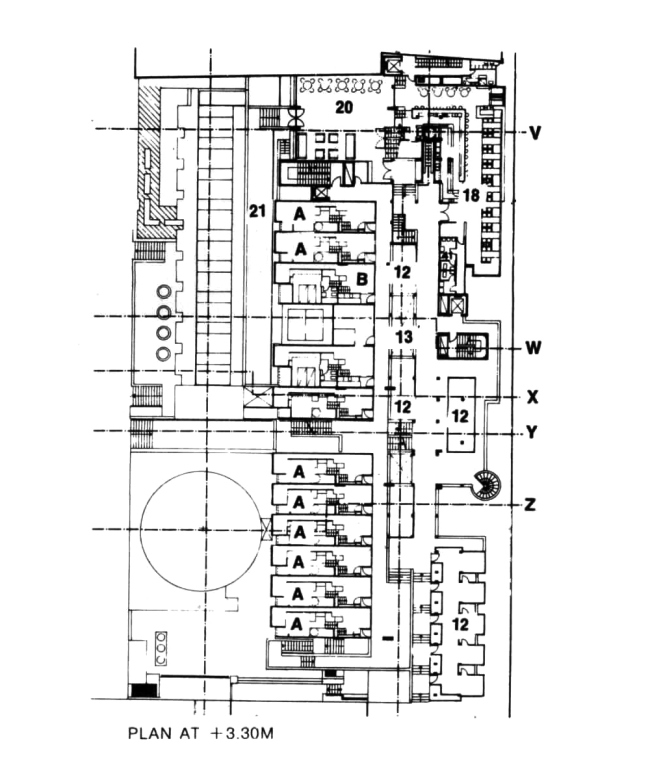
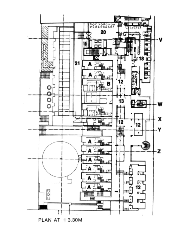
План на уровне +3.30
План на уровне +3.30
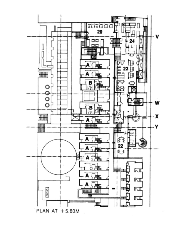
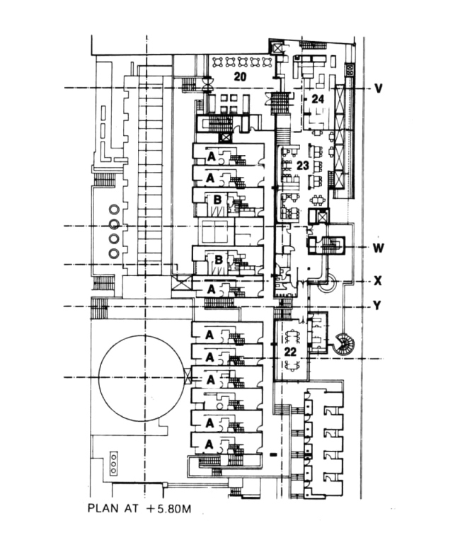
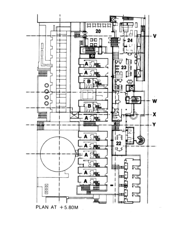
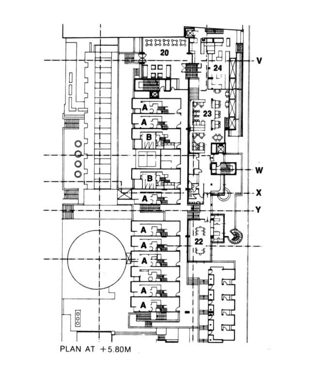
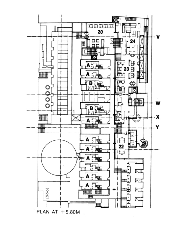
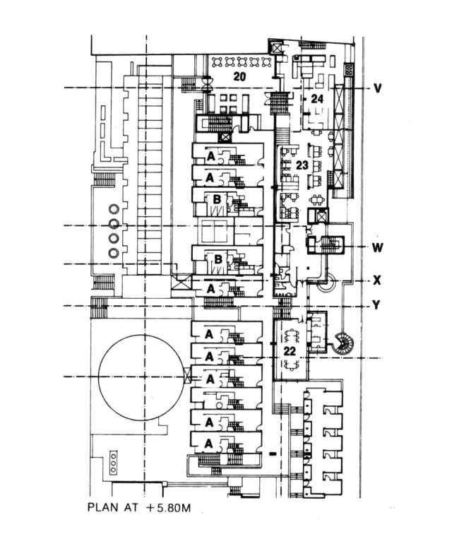
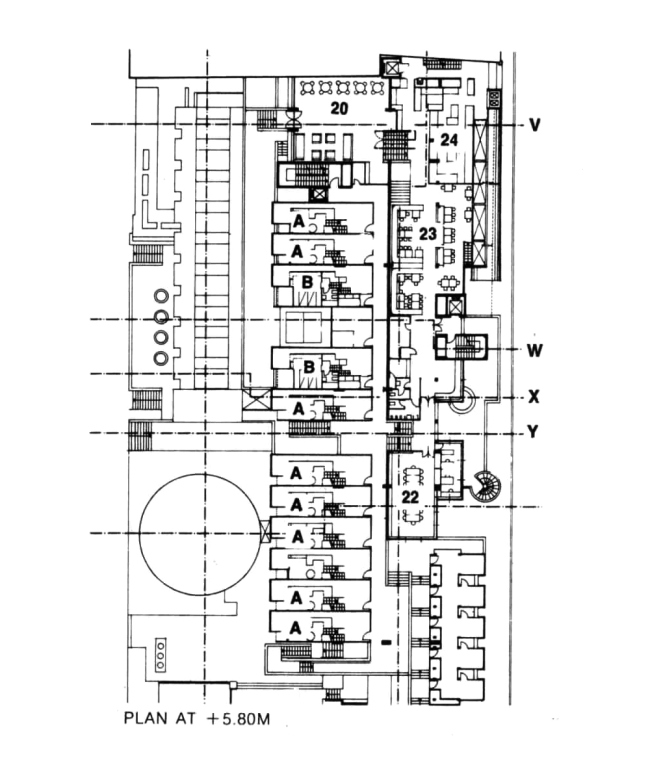
План на уровне +5.80
План на уровне +5.80
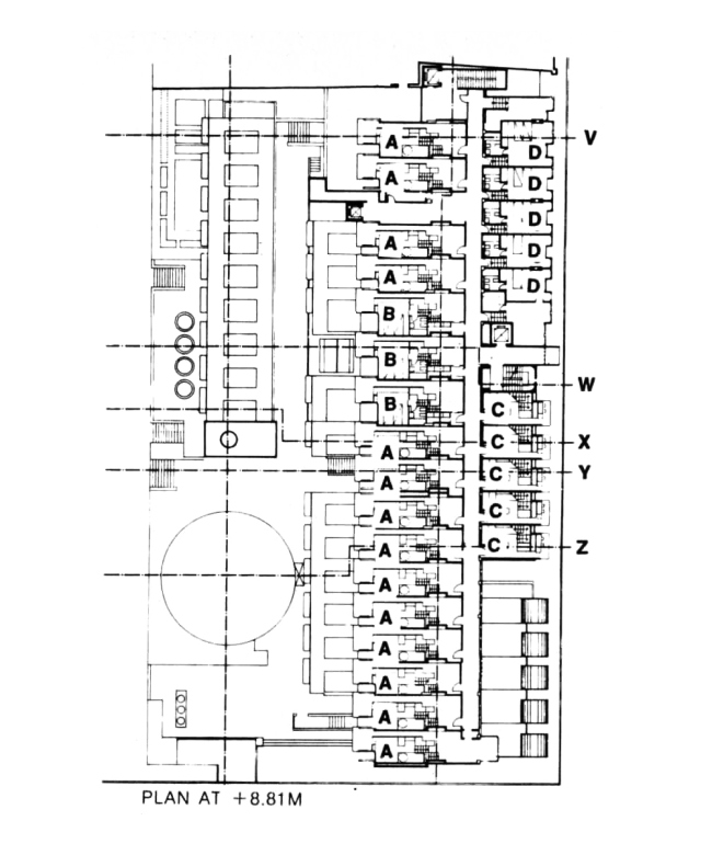
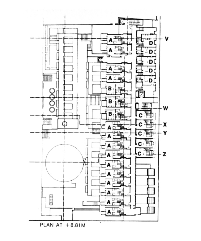
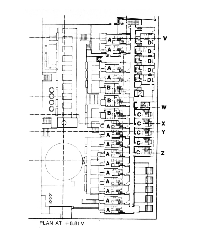
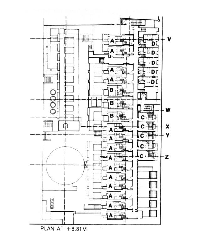
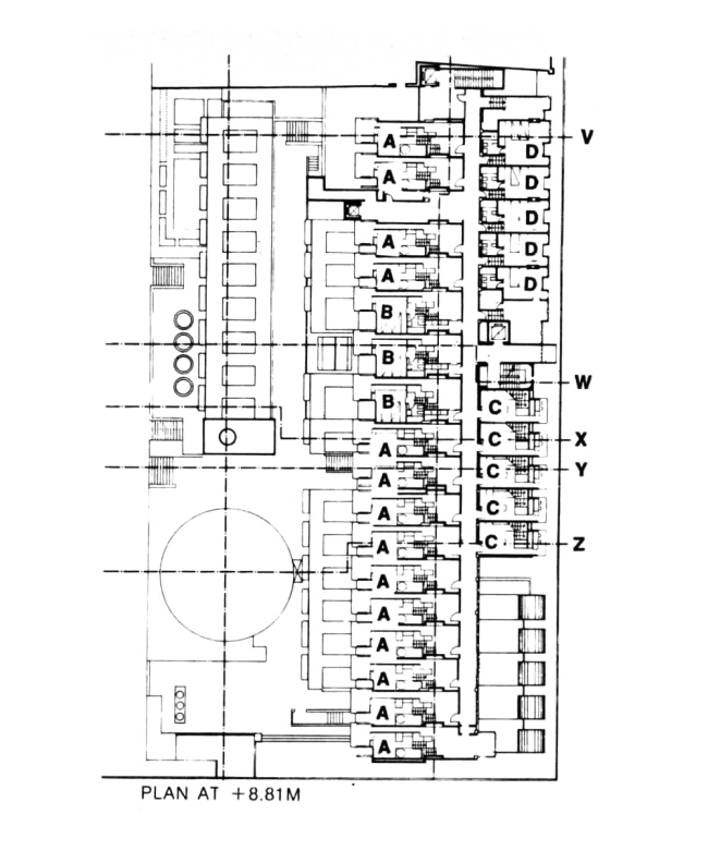
План на уровне +8.81
План на уровне +8.81



Экспликация:

1 кинозал
2 спортзал
3 археологические памятники
4 системы отопления, вентиляции и кондиционирования воздуха
5 плавательный бассейн
6 раздевалки
7 южный вход
8 паркинг
9 вестибюль
10конференц-зал
11большой бар
12лавки
13вестибюль жилой части комплекса
14вход жильцов
15вход в вестибюль общественной части
16крытая улица
17кафе
18цилиндрический бар
19бар
20кафе/банкетный зал
21кафе на террасе
22зал собраний
23ресторан
24кухня

Разрез по оси V-V
Разрез по оси V-V
Разрез по оси W-W
Разрез по оси W-W
Разрез по оси X-X
Разрез по оси X-X
Разрез по оси Y-Y
Разрез по оси Y-Y
Разрез по оси Z-Z
Разрез по оси Z-Z
Схематический разрез
Схематический разрез
Кожух-эркер
Кожух-эркер
Интерьер жилой ячейки
Интерьер жилой ячейки
Интерьер жилой ячейки
Интерьер жилой ячейки
Интерьер жилой ячейки
Интерьер жилой ячейки
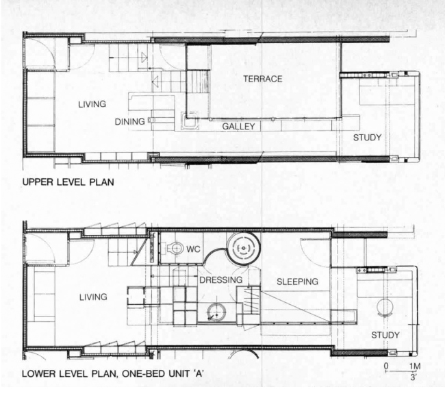
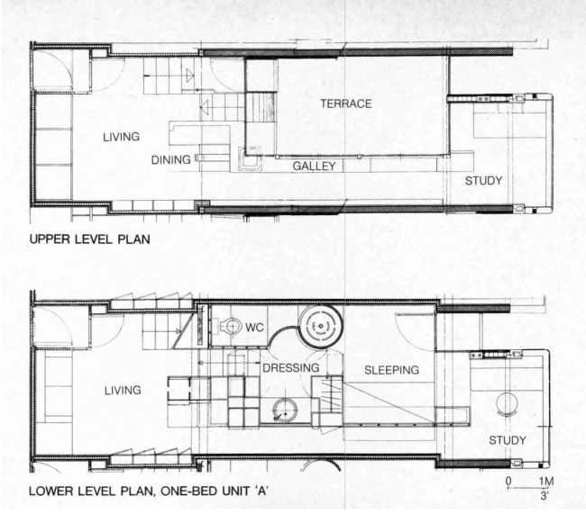
Планы жилой ячейки (тип А)
Планы жилой ячейки (тип А)
Разрез жилой ячейки (тип А)
Разрез жилой ячейки (тип А)