Размещено на портале Архи.ру (www.archi.ru)

23.03.2017

Дом перфекциониста

Наталья Мурадова
Объект:
Жилой комплекс V-House
Адрес:
Россия, Москва. Электролитный проезд, 16
Мастерская:
АМ Сергей Киселев и Партнеры
Авторский коллектив:
А.В. Никифоров, А.О. Бреславцев, А.Ю. Бусалов, Н.В. Анисимов, И.З. Шварцман, К.Ю. Спиридонов

Жилой комплекс V-House Архитектурной мастерской «Сергей Киселев и партнеры» недавно сдан в эксплуатацию. Бюро осуществляло авторский надзор, благодаря чему удалось добиться именно того качества, на какое проектировщики изначально рассчитывали.

Жилой комплекс V-House © Архитектурная мастерская «Сергей Киселев и Партнеры»
Жилой комплекс V-House © Архитектурная мастерская «Сергей Киселев и Партнеры»

Дома в Электролитном проезде архитектурная мастерская «Сергей Киселев и Партнеры» спроектировала в 2013 году, и сейчас они построены. За это время случился обвал рубля – заложенные в проекте материалы подорожали в несколько раз, произошли метаморфозы на рынке недвижимости – квартиры площадью от 50 м2 стали кошмарным сном риэлтора, разразился дипломатический скандал между Москвой и Анкарой, что существенно, поскольку подрядчиком была турецкая строительная компания «Ант Япы».

Каждое из этих событий по отдельности само по себе было способно привести реализацию далеко в не лучшую сторону. Однако название жилого комплекса V-House, которое девелоперы дали ему за расположение квартир, стало ещё и знаком победы над обстоятельствами. 
 
Тёмное и светлое
V-House находится в спальном районе, он стоит на границе микрорайона серии П-44, поэтому заказчик попросил сделать жилой комплекс оригинальным, это было его единственным эстетическим пожеланием.
Жилой комплекс V-House © Архитектурная мастерская «Сергей Киселев и Партнеры»
Жилой комплекс V-House © Архитектурная мастерская «Сергей Киселев и Партнеры»
Жилой комплекс V-House © Архитектурная мастерская «Сергей Киселев и Партнеры»
Жилой комплекс V-House © Архитектурная мастерская «Сергей Киселев и Партнеры»
Жилой комплекс V-House © Архитектурная мастерская «Сергей Киселев и Партнеры»
Жилой комплекс V-House © Архитектурная мастерская «Сергей Киселев и Партнеры»

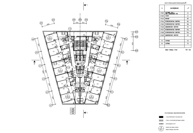
В глаза прежде всего бросается яркая «шахматная» отделка фасадов, но дома, которые на плане представляют собой равносторонние трапеции, необычны и по объемно-пространственному решению, и по планировке. Причём всё это связано между собой изящно и логично, как части математического уравнения.

По словам главного архитектора проекта Андрея Никифорова, форма зданий продиктована скорее расчётом, нежели соображениями композиции. «Изначально мы просто разворачивались к солнцу и набирали дополнительные квадратные метры. Трапеции позволили создать внутри дома нужную площадь тёмных помещений. Их ровно столько, чтобы разместить лифты, лестницы и всё необходимое. Если такое же количество тёмных помещений мы бы набрали в прямоугольнике, то образовался бы излишек. А трапеция этот излишек «съела», – объясняет он. 

Тёмная зона образует своего рода сердечник, на который нанизаны светлые помещения с окнами. В сущности такое решение – своего рода игра с домом коридорного типа, пластину которого «свернули» таким образом, чтобы всё то, что обычно располагается по краям секции, оказалось внутри. Помимо прочего, здесь удалось вместить без ущерба необходимую вторую лестницу – площадь на этажах превышает 500 м2.
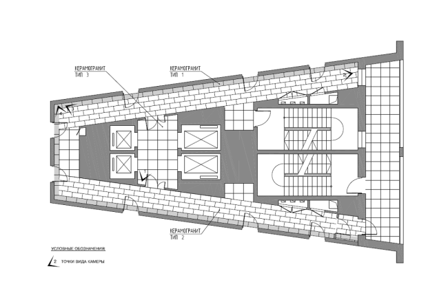
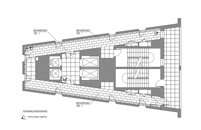
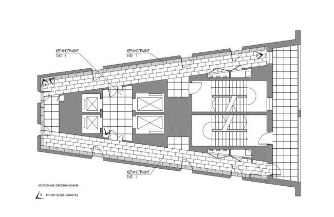
Жилой комплекс V-House. Общественные зоны. План пола типового этажа © Архитектурная мастерская «Сергей Киселев и Партнеры»
Жилой комплекс V-House. Общественные зоны. План пола типового этажа © Архитектурная мастерская «Сергей Киселев и Партнеры»

Нежилые зоны внутри квартир развернуты вдоль сторон «сердечника», где расположены все коммуникационные шахты. В светлой части, выходящей на фасад метрическим рядом одинаковых окон, нет ни одной несущей колонны и стены только межквартирные. Благодаря всему этому поэтажный план легко разбивался на квартиры любого размера, а девелоперы получили возможности свободно изобретать разнообразные планировки для маркетинговых предложений. Таких планировочных вариантов оказалось пять.
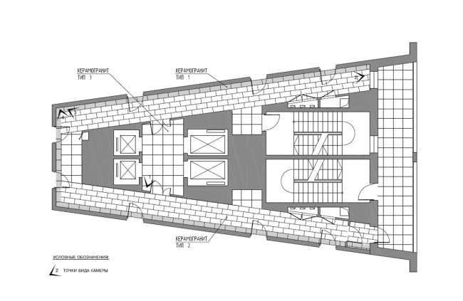
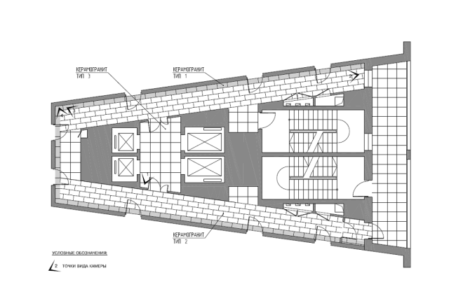
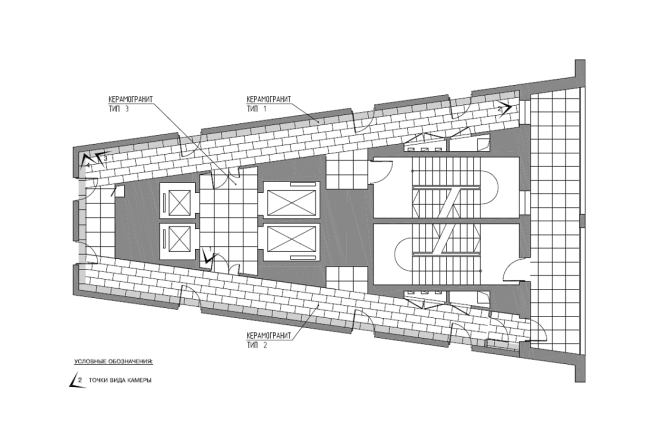
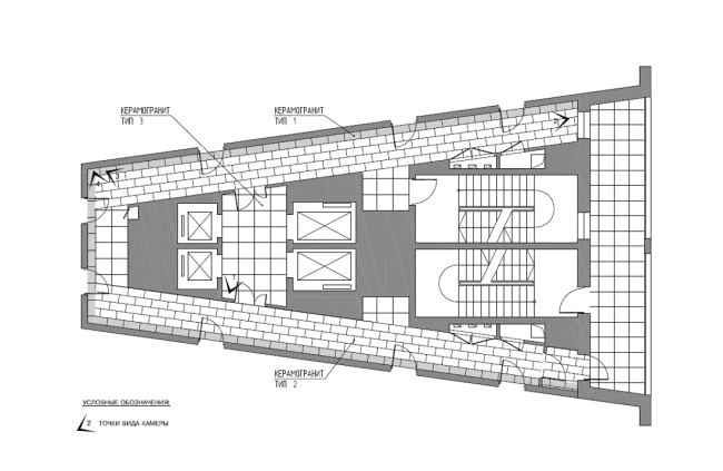
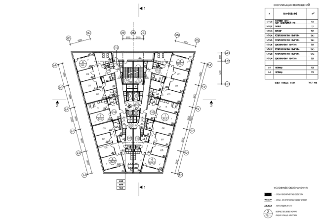
Жилой комплекс V-House. Корпус 5. Схема плана на отметке 73,50 © Архитектурная мастерская «Сергей Киселев и Партнеры»
Жилой комплекс V-House. Корпус 5. Схема плана на отметке 73,50 © Архитектурная мастерская «Сергей Киселев и Партнеры»

Чёрно-белые панели облицовки подчёркивают структуру здания: соотношение их сторон меняется в зависимости от расположения на фасаде. Архитекторы предлагают представить это как трапецию, на которую одели эластичную ткань с рисунком: в той части, где фасад широкий, рисунок растягивается, там, где узкий – сжимается, а по краям он нейтральный, квадратный.
 
Борьба за болты и шурупы
Чёрно-белый паттерн не только растёт вверх и в стороны, он «движется» по трём осям, создавая ещё и объём: тёмные «клетки» заглублены, светлые – выдаются вперёд. Архитекторам пришлось приложить немало усилий для того, чтобы такая облицовка получилась органичной. Сначала требовалось убедиться в том, что лучшим решением будут навесные фасады из HPL-панелей, затем убедить подрядчиков, что нужно использовать именно панели FunderMax, и для этого самим сделать приблизительный «раскрой», а затем даже придумать максимально деликатное крепление.

«Дело в том, что компании, которые занимаются фасадами, всегда немного их переделывают под свою технологию. И в нашем случае у них получился «бронепоезд», фасад весь из заклёпок. Но мы по такому пути не пошли. Во время стройки у нас всегда идёт борьба за болты и шурупы, чтобы ничего нигде не торчало», – говорит ГАП Андрей Никифоров.
Жилой комплекс V-House © Архитектурная мастерская «Сергей Киселев и Партнеры»
Жилой комплекс V-House © Архитектурная мастерская «Сергей Киселев и Партнеры»
Жилой комплекс V-House © Архитектурная мастерская «Сергей Киселев и Партнеры»
Жилой комплекс V-House © Архитектурная мастерская «Сергей Киселев и Партнеры»

На стройку архитекторы выезжали по нескольку раз в неделю, следили пристально за всеми нюансами, убеждали строителей переделывать даже то, на что можно было махнуть рукой. Рабочим пришлось демонтировать часть облицовки фасада, которая выбилась из задуманного сложного ритма, четыре раза перекрашивать стену, чтобы попасть в нужный оттенок, и сверлить каркас по диагонали на всех 23 этажах, для того чтобы кнопки лифта находились строго посередине стены.
 
Трудная простота
Бюро занималось и интерьерами общественных зон. Внутрь перебрался тот же чёрно-белый паттерн с фасада, а стена из живых растений, расположенная напротив входа, стала единственным цветовым пятном. Кажущаяся простота дизайн-проекта обязывала к безупречному исполнению.
Жилой комплекс V-House. Общественные зоны © Архитектурная мастерская «Сергей Киселев и Партнеры»
Жилой комплекс V-House. Общественные зоны © Архитектурная мастерская «Сергей Киселев и Партнеры»
Жилой комплекс V-House. Общественные зоны © Архитектурная мастерская «Сергей Киселев и Партнеры»
Жилой комплекс V-House. Общественные зоны © Архитектурная мастерская «Сергей Киселев и Партнеры»

Архитекторы настояли на том, чтобы двери всех квартир были одинаковыми и выбрали отделочные материалы высокого качества. Придумали дизайн табличек для номеров квартир, лифтовые холлы облицевали крупными плитами керамогранита от пола до потолка, чтобы избежать швов, инженерные люки подогнали миллиметр к миллиметру в одну плоскость со стеной, открывающиеся плиты подвесных потолков сделали не привычно квадратными, а вытянутыми, чтобы они не вступали в диссонанс с направлением движения. 
Жилой комплекс V-House. Общественные зоны © Архитектурная мастерская «Сергей Киселев и Партнеры»
Жилой комплекс V-House. Общественные зоны © Архитектурная мастерская «Сергей Киселев и Партнеры»

«Мы боролись за качество и пытались отстоять те решения, которые заложили. Мы делали много образцов узлов прямо на стройке. Подход к узлам в интерьерах был ещё более тщательным, чем на фасадах, потому что это уже другой уровень тактильного ощущения», – объясняет архитектор Андрей Бреславцев.
 
Совершенная крыша
С не меньшим перфекционизмом архитекторы отнеслись к элементам, которые вообще почти не видны. Серьёзное внимание уделили оформлению кровли. Андрей Бреславцев тщательно продумал, как должны выглядеть выходы инженерных коммуникаций, которые вместе составили композицию, он спроектировал удобную лестницу и придирчиво отбирал даже щебёнку.

Чтобы убедить заказчиков облицевать алюминиевыми ламелями не только эвакуационные балконы на фасаде, но и совсем незаметный технический этаж, архитекторы специально искали материал, не уступающий по качеству бельгийскому, но дешевле его в несколько раз, и в итоге сумели найти такого производителя на Урале. 
Жилой комплекс V-House © Архитектурная мастерская «Сергей Киселев и Партнеры»
Жилой комплекс V-House © Архитектурная мастерская «Сергей Киселев и Партнеры»

Благоустройство тоже поделили на чёрное и белое. Стены домов задают направление мощения тёмными и светлыми плитами, создавая эффект ветвистых теней от деревьев в лесу. Детская площадка стала ярким зелёным пятном на «шахматной доске». К тому же для того, чтобы представить заказчику проект благоустройства, бюро подготовилось тщательно, показав в презентации аэрофотосъемку Мальдивских островов, где газоны вторят очертаниям атоллов, а покрытие игровой площадки – изображает собой морскую гладь. 
Жилой комплекс V-House © Архитектурная мастерская «Сергей Киселев и Партнеры»
Жилой комплекс V-House © Архитектурная мастерская «Сергей Киселев и Партнеры»
Жилой комплекс V-House © Архитектурная мастерская «Сергей Киселев и Партнеры»
Жилой комплекс V-House © Архитектурная мастерская «Сергей Киселев и Партнеры»

Андрей Никифоров и Андрей Бреславцев говорят, что объект получился точь-в-точь таким, каким и был задуман, хотя для этого и приходилось пускаться в долгие переговоры. «Чтобы реализовать чертежи, приходилось очень много убеждать и доказывать. Несмотря на то, что некоторые заказчики считают авторский надзор необязательным, он – совершенно необходим: качество достигается только присутствием архитектора на стройке», – уверен ГАП. 

Жилой комплекс V-House © Архитектурная мастерская «Сергей Киселев и Партнеры»
Жилой комплекс V-House © Архитектурная мастерская «Сергей Киселев и Партнеры»