Размещено на портале Архи.ру (www.archi.ru)

13.03.2017

Гибрид жилья с учебой

Нина Фролова
Объект:
Башня 35XV
Адрес:
США, None, Нью-Йорк.
Мастерская:
FXCollaborative

Башня 35XV по проекту FXFOWLE в Нью-Йорке: базой для элитного жилья служит средняя школа Ксавье.

Башня 35XV © David Sundberg/Esto
Башня 35XV © David Sundberg/Esto

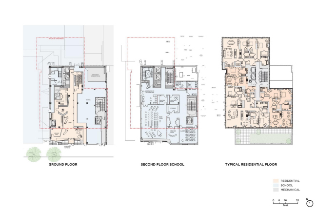
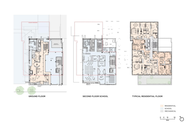
Шесть нижних этажей 35XV согласованы с фронтом улицы – облицованы светлым гранитом и получили «традиционную» решетку окон. Их облик отражает обе функции постройки, жилую и образовательную, хотя внутри находятся только классы, лаборатория, помещение для репетиций и общественное пространство школы Ксавье, иезуитского коллежа для мальчиков 14–18 лет. Старое здание школы расположено на соседней, параллельной улице, от новостройки его отделяет двор внутри квартала.
 
Башня 35XV © David Sundberg/Esto
Башня 35XV © David Sundberg/Esto

Верхняя часть башни, стеклянный объем, ориентируется не на соседние здания, а на небо, почти растворяясь на его фоне. Эти этажи заключены в кристалл сложной конфигурации: архитекторы творчески переработали манхэттенские нормы, требующие сокращать площадь этажей по мере возрастания высоты. Стальной каркас позволил, помимо прочего, устроить консоль с выносом 11 м над задним двором: это дало 40% площади жилых этажей.
 
Башня 35XV © David Sundberg/Esto
Башня 35XV © David Sundberg/Esto

Седьмой этаж занят предназначенными для всех жильцов спортзалом, салоном, детской игровой комнатой, винным погребом и террасой. Выше, на 17 этажах расположены квартиры площадью от одной до четырех спален.
Башня 35XV © David Sundberg/Esto
Башня 35XV © David Sundberg/Esto
Башня 35XV © David Sundberg/Esto
Башня 35XV © David Sundberg/Esto
Башня 35XV © David Sundberg/Esto
Башня 35XV © David Sundberg/Esto
Башня 35XV © David Sundberg/Esto
Башня 35XV © David Sundberg/Esto
Башня 35XV © Chris Cooper
Башня 35XV © Chris Cooper
Башня 35XV © FXFOWLE
Башня 35XV © FXFOWLE
Башня 35XV © FXFOWLE
Башня 35XV © FXFOWLE