Размещено на портале Архи.ру (www.archi.ru)

17.03.2017

Веретено

Наталья Мурадова
Объект:
Жилой дом на Ивановской ул., 16
Адрес:
Россия, Москва. ул. Ивановская, 16
Архитектор:
Андрей Асадов
Александр Асадов
Мастерская:
АБ ASADOV
Авторский коллектив:
А.А. Асадов, А.Р. Асадов, Т. Коновалова, Т. Лебедева, при участии: О. Григорьевой, Т. Черновой, Д. Суворова

Жилой дом рядом с парком делает всё возможное для того, чтобы деликатно вписать свой объём в контекст старого московского микрорайона.

Жилой дом на Ивановской ул., 16 © Архитектурное бюро Асадова
Жилой дом на Ивановской ул., 16 © Архитектурное бюро Асадова

Дом на Ивановской улице, спроектирован «Архитектурным бюро Асадова» для участка, примыкающего к восточной границе парка «Дубки» (однако сразу заметим, что 22-этажный ЖК, с которым были связаны недавние протесты жителей, расположен несколько севернее; рассматриваемый дом – 16-этажный, – прим. ред.). В силу расположения дом должен был отвечать трём условиям: корректно занять своё место в существующей жилой застройке, стать архитектурной доминантой квартала и при этом не вступать в диссонанс с парковой зоной, граница которой проходит в нескольких десятках метров. 

Под застройку был выделен очень компактный участок. По одну сторону от него идут ряды старых многоэтажек, которые начинаются от Дмитровского шоссе, по другую – автомобильная дорога в две полосы. Перейдя её, сразу же упираешься в ограду парка «Дубки». Давно сложившийся квартал, тихий и зелёный, требовал деликатного отношения к себе.
Ситуационный план. Жилой дом на Ивановской ул., 16 © Архитектурное бюро Асадова
Ситуационный план. Жилой дом на Ивановской ул., 16 © Архитектурное бюро Асадова

Опыт проектирования на участке почти такого же размера и конфигурации у бюро уже был – жилой комплекс «Измайлово Lane». Он состоит из двух поставленных рядом башен. В новом проекте ЖК на Ивановской улице архитекторы решили усложнить свою задачу и уместили тот же объем полезной площади в одном здании. Получился вместо двух башен – двухсекционный дом.
 Сперва появилась идея расположить здание так же, как и все здешние дома, то есть вытянуть вдоль Дмитровского шоссе. Однако потом, исходя из требований инсоляции, архитекторы предложили ориентировать его по оси север – юг. При таком расположении дом окажется на три четверти развернут к дороге, которая как раз здесь делает поворот на 45°. Благодаря чему главным ракурсом здания становится его «профиль». Как следствие, боковые плоскости было необходимо сделать не только максимально выразительными, но и визуально самодостаточными.
Жилой дом на Ивановской ул., 16 © Архитектурное бюро Асадова
Жилой дом на Ивановской ул., 16 © Архитектурное бюро Асадова
Жилой дом на Ивановской ул., 16 © Архитектурное бюро Асадова
Жилой дом на Ивановской ул., 16 © Архитектурное бюро Асадова
Жилой дом на Ивановской ул., 16 © Архитектурное бюро Асадова
Жилой дом на Ивановской ул., 16 © Архитектурное бюро Асадова

Выходящие на дорогу торцы дома должны были сыграть роль фасадов, главных акцентов, так что для их гармоничного восприятия потребовалось оставить пространство с обеих сторон – условие, на первый взгляд, совершенно невыполнимое, учитывая размер участка и число жилых секций, необходимых заказчику. Но архитекторы нашли выход из положения. «Чтобы сделать торец, насколько это возможно, изящным, мы постарались его сузить и решили, что будет достаточно нескольких ступеней, сжимающих дом к краям», – рассказывает главный архитектор проекта Андрей Асадов.
Жилой дом на Ивановской ул., 16 © Архитектурное бюро Асадова
Жилой дом на Ивановской ул., 16 © Архитектурное бюро Асадова

В одном из первоначальных вариантов здание сужалось эллиптически, напоминание об этом сохранилось в овальной траектории пожарного объезда. Однако в конечном счёте заказчики предпочли привычную прямоугольную геометрию. Теперь со стороны дороги боковые части дома будут издали казаться почти идеально плоскими, а по мере приближения начнёт раскрываться их подвижная пластика.
Со стороны двора расширение активнее – основных «ступеней» здесь пять, перепады между ними явно выражены. Фасад, обращённый к парку, плавнее – широкий выступ и обе части, ведущие к нему, по длине соразмерны друг другу.
Жилой дом на Ивановской ул., 16 © Архитектурное бюро Асадова
Жилой дом на Ивановской ул., 16 © Архитектурное бюро Асадова

Большие площади витражного остекления на фасадах призваны превратить шестнадцатиэтажный дом в подобие "лёгкого паркового павильона" или, как минимум, облегчить его массу. Именно остекление задает здесь тон, и может показаться, кажется, что не стекла встроены в несущие конструкции, а напротив – глухие части очерчивают стеклянный объём. «Чтобы заужение не читалось таким «градусником» снизу до верху, мы постарались сбить его «плетенкой» из обрамляющих элементов», – объясняет Андрей Асадов.
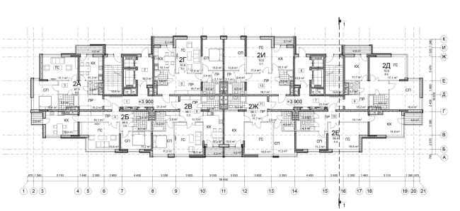
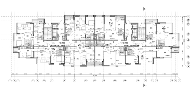
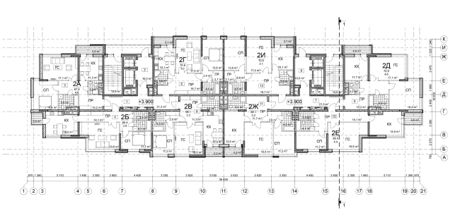
Жилой дом на Ивановской ул., 16. План типового этажа © Архитектурное бюро Асадова
Жилой дом на Ивановской ул., 16. План типового этажа © Архитектурное бюро Асадова

Помимо обрамляющих металлических конструкций внутри витражей предусмотрены вставки из керамических плит. Этот материал должен добавить в холод стекла и металла природные теплые ноты, без которых гармоничное соседство с парковым массивом едва ли стало бы возможным.
С тем же намерением подбиралась и цветовая гамма керамики: серые панели вступают в диалог со стеклянными и металлическими конструкциями, а также с привычно хмурым московским небом, тёплые жёлтые – разбавляют суровый «разговор» мягкостью и непосредственностью.
 Нижний этаж отведён кафе и магазинам и полностью остеклён. Симметрично полностью витражным станет и верхний этаж – этот приём рассчитан на визуальное «растворение» верхней границы здания, дабы лучше вписать его в окружение панельных двенадцатиэтажек. Впрочем несмотря на то, что фасады верхнего этажа отличаются, он не превращён в ярус пентхаусов: планировка не отличается от других этажей дома. ЖК на Ивановской – комплекс комфорт-класса, квартиры здесь от четырёх до двух комнат.
Жилой дом на Ивановской ул., 16 © Архитектурное бюро Асадова
Жилой дом на Ивановской ул., 16 © Архитектурное бюро Асадова

Подземная парковка занимает пятно участка полностью, сверху же удалось компактно разместить въезды для машин и детскую площадку, а озеленение территории в сочетании напоминающим садовые дорожки с мощением тротуара, кажутся ещё одним намеком на парковый характер проекта, который вроде бы должен был жёстко обозначить границу зелёного массива, но на самом деле логически приблизил его к существующим жилым постройкам.