Размещено на портале Архи.ру (www.archi.ru)

07.03.2017

Призма инноваций

Арсений Матвеев
Объект:
Дом студентов Высшей технологической школы
Адрес:
Канада, None, Монреаль.
Мастерская:
Menkès Shooner Dagenais LeTourneux

Дом студентов – ключевой корпус Высшей технологической школы в Монреале, призванный стимулировать обновление всего района Гриффинтаун.

Дом студентов Высшей технологической школы. Фото: Stéphane Brugger
Дом студентов Высшей технологической школы. Фото: Stéphane Brugger

Дом студентов, то есть студенческий центр, спроектирован бюро Menkès Shooner Dagenais LeTourneux, авторами многих заметных монреальских построек. Архитекторы обратились к промышленному прошлому района Гриффинтаун, где расположен кампус Высшей технологической школы (ÉTS): кристальная форма здания и его прозрачность – отсылка к когда-то находившемуся на участке ледохранилищу. Экспрессивная форма призвана составить противовес остальным, утилитарным корпусам кампуса и придать новому сооружению узнаваемый облик. На его фасады нанесён абстрактный рисунок, изображающий «сеть идей» – метафора инновационности ÉTS.
 
Дом студентов Высшей технологической школы. Фото: Stéphane Brugger
Дом студентов Высшей технологической школы. Фото: Stéphane Brugger

Главный вход открывает пространство атриума и вид на впечатляющую лестницу-консоль, которая служит местом для неформальных собраний и позволяет любоваться видами на городской ландшафт. Интерьер атриума следует концепции крытого парка: извилистая «тропа» ведёт на верхние этажи, а отделанный берёзой потолок – по сути, параметрический ландшафт. Ему вторят «уголки» – устроенные в стенах яркие ниши для отдыха. Студенческий центр служит мостом между жилой частью кампуса и основным зданием ÉTS: проектом предусмотрен подземный переход к учебному корпусу и надземный – к жилому.
 
Дом студентов Высшей технологической школы. Фото: Stéphane Brugger
Дом студентов Высшей технологической школы. Фото: Stéphane Brugger

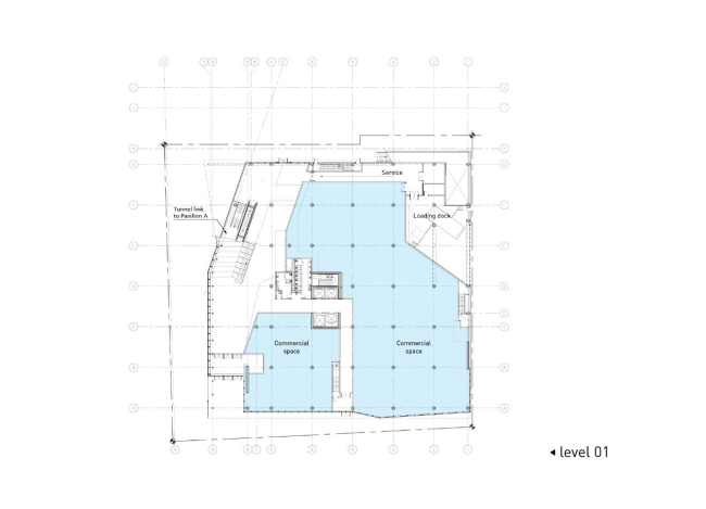
Учащиеся смогут найти в Доме все необходимое: заведения питания, места для отдыха, совместной работы по типу коворкинга и собраний, лаборатории и студенческие клубы. Но так как новое здание также играет ключевую роль в плане регенерации района, его основное пространство – атриум – открыт и для местных жителей. Кроме того, постройка непосредственно влияет на окружение: на продолжении участка предусмотрено устройство компактного парка, как бы вырастающего из её объёма. А улицу, к которой обращён атриум, предложено сделать пешеходной.
 
Дом студентов Высшей технологической школы. Фото: Stéphane Brugger
Дом студентов Высшей технологической школы. Фото: Stéphane Brugger

Строительство студенческого центра обошлось в 40 миллионов канадских долларов и было частично профинансировано инвестором, получившим в распоряжение коммерческие помещения на первом этаже, что также увеличило разнообразие городской среды. На подземных уровнях устроена парковка. Проект претендует на серебряный сертификат LEED: в здании использованы технологии для снижения потребления воды и энергии, применены материалы с высокой отражающей способностью, озеленена крыша атриума.
Дом студентов Высшей технологической школы. Фото: Stéphane Brugger
Дом студентов Высшей технологической школы. Фото: Stéphane Brugger
Дом студентов Высшей технологической школы. Фото: Stéphane Brugger
Дом студентов Высшей технологической школы. Фото: Stéphane Brugger
Дом студентов Высшей технологической школы. Фото: Stéphane Brugger
Дом студентов Высшей технологической школы. Фото: Stéphane Brugger
Дом студентов Высшей технологической школы. Фото: Stéphane Brugger
Дом студентов Высшей технологической школы. Фото: Stéphane Brugger
Дом студентов Высшей технологической школы © Menkès Shooner Dagenais LeTourneux Architectes
Дом студентов Высшей технологической школы © Menkès Shooner Dagenais LeTourneux Architectes
Дом студентов Высшей технологической школы © Menkès Shooner Dagenais LeTourneux Architectes
Дом студентов Высшей технологической школы © Menkès Shooner Dagenais LeTourneux Architectes
Дом студентов Высшей технологической школы © Menkès Shooner Dagenais LeTourneux Architectes
Дом студентов Высшей технологической школы © Menkès Shooner Dagenais LeTourneux Architectes
Дом студентов Высшей технологической школы © Menkès Shooner Dagenais LeTourneux Architectes
Дом студентов Высшей технологической школы © Menkès Shooner Dagenais LeTourneux Architectes
Дом студентов Высшей технологической школы © Menkès Shooner Dagenais LeTourneux Architectes
Дом студентов Высшей технологической школы © Menkès Shooner Dagenais LeTourneux Architectes
Дом студентов Высшей технологической школы © Menkès Shooner Dagenais LeTourneux Architectes
Дом студентов Высшей технологической школы © Menkès Shooner Dagenais LeTourneux Architectes
Дом студентов Высшей технологической школы © Menkès Shooner Dagenais LeTourneux Architectes
Дом студентов Высшей технологической школы © Menkès Shooner Dagenais LeTourneux Architectes
Дом студентов Высшей технологической школы © Menkès Shooner Dagenais LeTourneux Architectes
Дом студентов Высшей технологической школы © Menkès Shooner Dagenais LeTourneux Architectes