Размещено на портале Архи.ру (www.archi.ru)

09.03.2017

Конструктивизм сегодня

Лилия Аронова
Объект:
Реконструкция здания бывшей фабрики-кухни на ул. Новокузнецкая
Адрес:
Россия, Москва. ул. Новокузнецкая, 7/11
Архитектор:
Сергей Переслегин
Николай Переслегин
Георгий Трофимов
Мастерская:
Kleinewelt Architekten
Авторский коллектив:
Главные архитекторы проекта: Николай Переслегин, Сергей Переслегин, Георгий Трофимов
Ведущие архитекторы: Ксения Воробьева, Наталья Ланская
Архитекторы: Антон Баев, Оксана Новоскольцева, Арсений Афонин, Мария Зубкова, Александра Ташимова, Ольга Фомина
Главный конструктор: Пётр Иванилов, «ИВА-проект»

Реконструкция здания бывшей фабрики-кухни на Новокузнецкой улице стала «визитной карточкой» молодого московского бюро Kleinewelt.

Реконструкция здания бывшей фабрики-кухни на ул. Новокузнецкая. Реализация, 2014 © Kleinewelt Architekten
Реконструкция здания бывшей фабрики-кухни на ул. Новокузнецкая. Реализация, 2014 © Kleinewelt Architekten

Фабрика-кухня на углу Новокузнецкой и Старого Толмачевского переулка была построена в 1932 году – этим фактом, собственно, информация о происхождении здания и исчерпывается. Даже партнерам бюро Kleinewelt с их программной скрупулезностью в исследовании истории и окружения своих объектов так и не удалось, несмотря на все изыскания, обнаружить сведений об авторе первоначального проекта. Если вдуматься, ничего удивительного в этом нет: задуманные как один из опорных пунктов грандиозной всесоюзной программы обобществления быта, фабрики-кухни строились по типовым проектам, разрабатывавшимся не архитекторами-одиночками, а крупными домостроительными комбинатами. Так что в определенном смысле можно сказать, что автором таких построек, в том числе и здания на Новокузнецкой, было, пафосно выражаясь, само Время. Именно в этом, считает один из авторов проекта Николай Переслегин, и состоит его ценность. «Это здание настолько типовое, – говорит архитектор, – что как бы и само про себя не понимает, что является прекрасным образцом конструктивизма. Вот мы и хотели ему об этом напомнить».

А заодно и городу – ведь изначально бывшую фабрику-кухню (которая успела еще побыть заводом по производству витаминов, а потом вместилищем разнокалиберных офисов), учитывая ветхость конструкции и отсутствие защищающих законодательных актов, предполагалось снести. Архитекторы же не сомневались – оно достойно реконструкции, причём реконструкции бережной, подразумевающей сохранение и внутренней структуры, и фасадов, и общей эстетики. При этом авторам проекта хотелось, чтобы их объект, оставаясь конструктивистским по духу и по букве, стал образцом качественной современной архитектуры – таким, каким мог бы выглядеть конструктивизм сегодня, если бы его возводили высокопрофессиональные строители из хороших дорогих материалов.
Реконструкция здания бывшей фабрики-кухни на ул. Новокузнецкая. Существующее положение до реконструкции (строительство – 1932 г) © Kleinewelt Architekten
Реконструкция здания бывшей фабрики-кухни на ул. Новокузнецкая. Существующее положение до реконструкции (строительство – 1932 г) © Kleinewelt Architekten
Реконструкция здания бывшей фабрики-кухни на ул. Новокузнецкая. Существующее положение до реконструкции (строительство – 1932 г) © Kleinewelt Architekten
Реконструкция здания бывшей фабрики-кухни на ул. Новокузнецкая. Существующее положение до реконструкции (строительство – 1932 г) © Kleinewelt Architekten

К счастью, в плане качества их амбиции удачно совпали с задачами, поставленными заказчиком, который хотел на выходе получить офисное здание высокого уровня комфортности. Однако с инженерно-конструктивной точки зрения трудно было представить себе что-то более далекое от этого идеала, чем объект будущей реконструкции. Здание мало того что за время своего существования обветшало и подверглось всяческим переделкам, так ещё и изначально было построено из рук вон плохо. Колонны не попадали одна на другую, в качестве арматуры для бетона использовался натуральный металлолом, стены возводились буквально из всего, что оказалось под рукой, под одной из колонн нашли даже белокаменную плиту с гравировкой – явно из одного из разрушенных по соседству замоскворецких храмов. Так что архитекторы, а также работавшие с ними инженеры и конструкторы чувствовали себя, по образному выражению Николая Переслегина, «нейрохирургами в операционной». Результатом стала совершенно новая конструкция, интегрированная внутрь существующего здания.

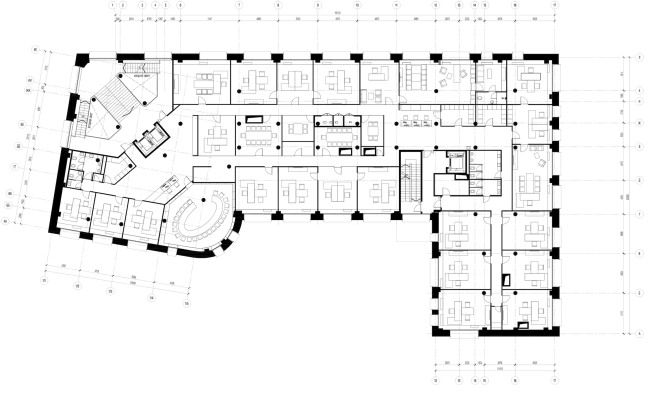
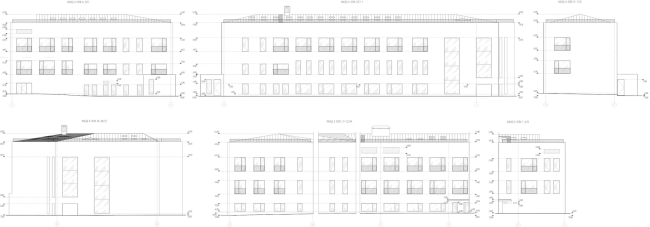
В плане постройка представляет собой букву «Г» с небольшим закругленным утолщением в основании «ножки», благодаря которому с внутренней стороны образуется небольшой двор. Фасадное решение основано на чередовании однородной белизны стен с большими оконными проемами, которые на углу Новокузнецкой и Старого Толмачевского переулка собраны в единые вертикальные блоки, обнажающие все три этажа. Проект бюро Kleinewelt предусматривал не только возвращение к первоначальной фасадной пластике, изрядно искажённой последующими хаотичными переделками, но и деликатное усиление эффекта контраста. Для этого оконные проемы обрамили тёмно-серыми гранитными слэбами, которые на 25 см выступают за плоскость стены. Такое же обрамление получили два входных портала, симметрично расположившиеся с обеих сторон угла; между ними и оконными вертикалями поместились логотипы единолично занимающей теперь здание Объединенной вагонной компании.
Реконструкция здания бывшей фабрики-кухни на ул. Новокузнецкая. Реализация, 2014 © Kleinewelt Architekten
Реконструкция здания бывшей фабрики-кухни на ул. Новокузнецкая. Реализация, 2014 © Kleinewelt Architekten
Реконструкция здания бывшей фабрики-кухни на ул. Новокузнецкая. Реализация, 2014 Kleinewelt Architekten. Фотография © И. Иванов
Реконструкция здания бывшей фабрики-кухни на ул. Новокузнецкая. Реализация, 2014 Kleinewelt Architekten. Фотография © И. Иванов
Реконструкция здания бывшей фабрики-кухни на ул. Новокузнецкая. Реализация, 2014. Kleinewelt Architekten. Фотография © И. Иванов
Реконструкция здания бывшей фабрики-кухни на ул. Новокузнецкая. Реализация, 2014. Kleinewelt Architekten. Фотография © И. Иванов
Реконструкция здания бывшей фабрики-кухни на ул. Новокузнецкая. Реализация, 2014 © Kleinewelt Architekten
Реконструкция здания бывшей фабрики-кухни на ул. Новокузнецкая. Реализация, 2014 © Kleinewelt Architekten
Реконструкция здания бывшей фабрики-кухни на ул. Новокузнецкая. Реализация, 2014 © Kleinewelt Architekten
Реконструкция здания бывшей фабрики-кухни на ул. Новокузнецкая. Реализация, 2014 © Kleinewelt Architekten
Реконструкция здания бывшей фабрики-кухни на ул. Новокузнецкая. Реализация, 2014 © Kleinewelt Architekten
Реконструкция здания бывшей фабрики-кухни на ул. Новокузнецкая. Реализация, 2014 © Kleinewelt Architekten
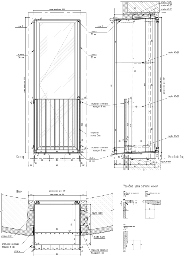
Реконструкция здания бывшей фабрики-кухни на ул. Новокузнецкая. Детали фасадов © Kleinewelt Architekten
Реконструкция здания бывшей фабрики-кухни на ул. Новокузнецкая. Детали фасадов © Kleinewelt Architekten

Именно этот «акцентный» угол, хорошо просматривающийся не только с Новокузнецкой, но и – через продолжение Старого Толмачевского – с Пятницкой улицы, взял на себя роль активного организатора данного фрагмента городского пространства. Происходит это за счёт не только внешней, но и – редкий случай – внутренней архитектуры здания, композиционным ядром которой стало четырехуровневое фойе с парадной лестницей. Лестницу эту уж точно собирались убрать, увеличив за её счёт офисное пространство, и архитекторам стоило немалого труда убедить заказчика этого не делать. Итог действительно впечатляет: безупречной белизны и столь же безупречных пропорций лестничные марши серпантином обвивают световой столб, исходящий из двух зенитных фонарей, а внутри него по всей высоте падает «дождь» из тонких чёрных штрихов грандиозной люстры. Отдельная и важная история – перила: если внутренние сделаны из того же белого бетона, что и вся лестница, то для внешних архитекторы выбрали стеклянное полотно, чтобы даже частично не закрывать вид на улицу. Поручни – такого же угольно-черного цвета, что и световые трубки. В холодное время года эта завораживающая графичность мощно работает на связь интерьера с городом за панорамными окнами. «Мы не можем сделать так, чтобы в Москве было больше солнца, – говорит Николай Переслегин, – но мы хотели показать, что и в пасмурном зимнем дне тоже есть своя своеобразная красота».
Реконструкция здания бывшей фабрики-кухни на ул. Новокузнецкая. Реализация, 2014. Kleinewelt Architekten. Фотография © И. Иванов
Реконструкция здания бывшей фабрики-кухни на ул. Новокузнецкая. Реализация, 2014. Kleinewelt Architekten. Фотография © И. Иванов
Реконструкция здания бывшей фабрики-кухни на ул. Новокузнецкая. Интерьер фойе. Реализация, 2014 © Kleinewelt Architekten
Реконструкция здания бывшей фабрики-кухни на ул. Новокузнецкая. Интерьер фойе. Реализация, 2014 © Kleinewelt Architekten
Реконструкция здания бывшей фабрики-кухни на ул. Новокузнецкая. Интерьер фойе. Реализация, 2014 © Kleinewelt Architekten
Реконструкция здания бывшей фабрики-кухни на ул. Новокузнецкая. Интерьер фойе. Реализация, 2014 © Kleinewelt Architekten
Реконструкция здания бывшей фабрики-кухни на ул. Новокузнецкая. Интерьер фойе. Реализация, 2014 © Kleinewelt Architekten
Реконструкция здания бывшей фабрики-кухни на ул. Новокузнецкая. Интерьер фойе. Реализация, 2014 © Kleinewelt Architekten
Реконструкция здания бывшей фабрики-кухни на ул. Новокузнецкая. Интерьер фойе. Реализация, 2014 © Kleinewelt Architekten
Реконструкция здания бывшей фабрики-кухни на ул. Новокузнецкая. Интерьер фойе. Реализация, 2014 © Kleinewelt Architekten
Реконструкция здания бывшей фабрики-кухни на ул. Новокузнецкая. Интерьер фойе. Реализация, 2014 © Kleinewelt Architekten
Реконструкция здания бывшей фабрики-кухни на ул. Новокузнецкая. Интерьер фойе. Реализация, 2014 © Kleinewelt Architekten

Что касается собственно рабочих интерьеров, то здесь сделано все, чтобы создать качественное пространство для бизнеса – рациональное, лаконичное, но при этом достаточно уютное, чтобы человеку было комфортно проводить там большую часть дня. Чёрно-белая графика кабинетов и коридоров оживляется большим количеством световых сценариев, разработанных для различных рабочих моментов. Особое внимание уделено материалам – и дерево, и бетон, и металл здесь не только качественные, но и приятные тактильно; тщательно разработаны также вопросы звукоизоляции и звукопоглощения. За этот проект бюро Kleinewelt получило премию Interni Design Awards в номинации «Дизайн общественного интерьера».
Реконструкция здания бывшей фабрики-кухни на ул. Новокузнецкая. Интерьер переговорной. Реализация, 2014 © Kleinewelt Architekten
Реконструкция здания бывшей фабрики-кухни на ул. Новокузнецкая. Интерьер переговорной. Реализация, 2014 © Kleinewelt Architekten
Реконструкция здания бывшей фабрики-кухни на ул. Новокузнецкая. Интерьер офисной части. Реализация, 2014 © Kleinewelt Architekten
Реконструкция здания бывшей фабрики-кухни на ул. Новокузнецкая. Интерьер офисной части. Реализация, 2014 © Kleinewelt Architekten
Реконструкция здания бывшей фабрики-кухни на ул. Новокузнецкая. Интерьер офисной части. Реализация, 2014 © Kleinewelt Architekten
Реконструкция здания бывшей фабрики-кухни на ул. Новокузнецкая. Интерьер офисной части. Реализация, 2014 © Kleinewelt Architekten
Реконструкция здания бывшей фабрики-кухни на ул. Новокузнецкая. Интерьер переговорной. Реализация, 2014 © Kleinewelt Architekten
Реконструкция здания бывшей фабрики-кухни на ул. Новокузнецкая. Интерьер переговорной. Реализация, 2014 © Kleinewelt Architekten
Реконструкция здания бывшей фабрики-кухни на ул. Новокузнецкая. Интерьер переговорной. Реализация, 2014 © Kleinewelt Architekten
Реконструкция здания бывшей фабрики-кухни на ул. Новокузнецкая. Интерьер переговорной. Реализация, 2014 © Kleinewelt Architekten

Любить и ценить историческое наследие – это, конечно, дело хорошее, считают создатели бюро Kleinewelt. Сложнее сделать так, чтобы сохранить его не на словах, а на деле: то, что можно, оставить в неприкосновенности, то, что необходимо, реконструировать, то, что безнадежно устарело, – воссоздать в реалиях нового времени. Именно эту, не побоимся этого слова, миссию они стараются воплотить на каждом отдельном «участке фронта», в каждом своем проекте. В случае со зданием на Новокузнецкой миссия, несомненно, удалась. 
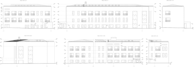
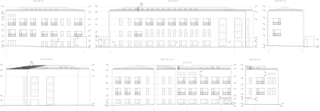
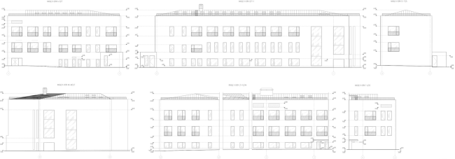
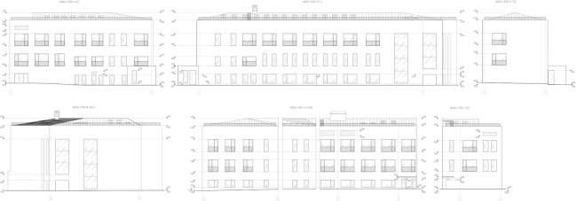
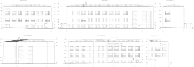
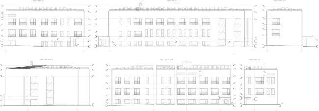
Реконструкция здания бывшей фабрики-кухни на ул. Новокузнецкая. Фасады © Kleinewelt Architekten
Реконструкция здания бывшей фабрики-кухни на ул. Новокузнецкая. Фасады © Kleinewelt Architekten
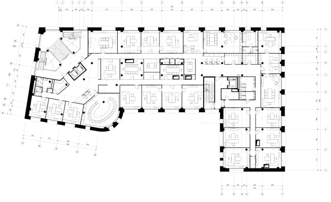
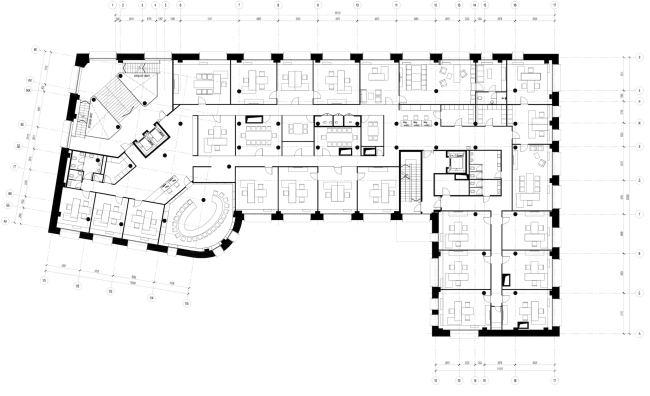
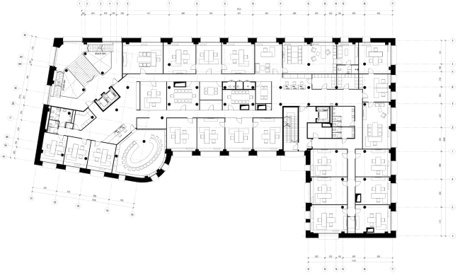
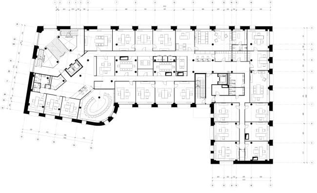
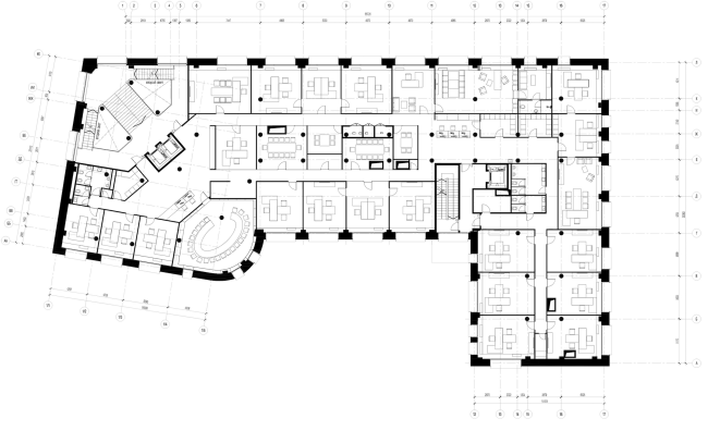
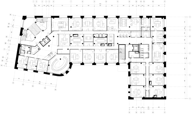
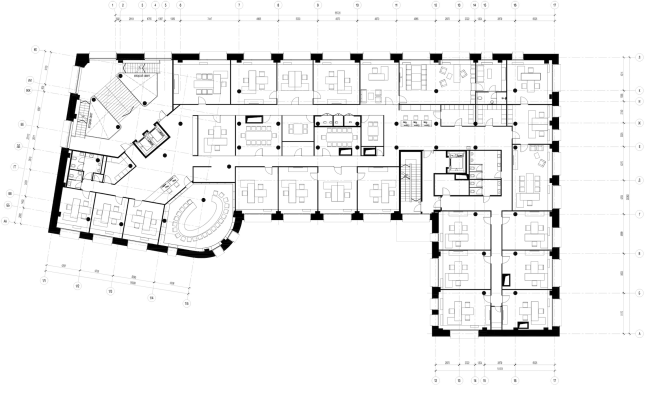
Реконструкция здания бывшей фабрики-кухни на ул. Новокузнецкая. План 3 этажа © Kleinewelt Architekten
Реконструкция здания бывшей фабрики-кухни на ул. Новокузнецкая. План 3 этажа © Kleinewelt Architekten
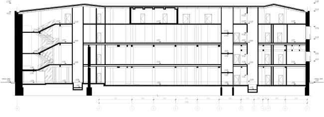
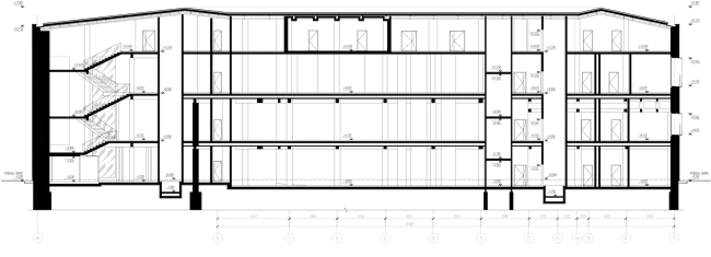
Реконструкция здания бывшей фабрики-кухни на ул. Новокузнецкая. Разрез © Kleinewelt Architekten
Реконструкция здания бывшей фабрики-кухни на ул. Новокузнецкая. Разрез © Kleinewelt Architekten