Размещено на портале Архи.ру (www.archi.ru)

03.03.2017

Торговые традиции

Анна Старостина
Объект:
Торговый комплекс Victoria Gate
Адрес:
Великобритания, None, Лидс.
Мастерская:
ACME

В центре города Лидс построены сразу три объекта по проекту бюро ACME: универмаг сети John Lewis, торговый центр Victoria Gate и многоуровневая парковка.

Торговый комплекс Victoria Gate © Jack Hobhouse
Торговый комплекс Victoria Gate © Jack Hobhouse

Совместный проект лондонских архитекторов и девелоперской компании Hammerson призван продолжить и вывести на новый, современный уровень богатые торговые традиции третьего по величине города Великобритании. В качестве источников для вдохновения использованы многие заметные здания Лидса второй половины XIX – первой четверти XX веков: и знаменитые викторианские пассажи, и классицизирующая ратуша, и овальная зерновая биржа, превращенная сегодня в торговый центр (оба здания спроектировал Катберт Бродрик), и дома Реджинальда Бломфильда на центральной улицы Хедроу, демонстрирующие вариант стиля ар деко. Освежить этот прихотливый, чопорный «коктейль», не нарушив при этом его целостности, и попытались архитекторы.
Торговый комплекс Victoria Gate © Jack Hobhouse
Торговый комплекс Victoria Gate © Jack Hobhouse

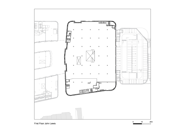
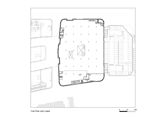
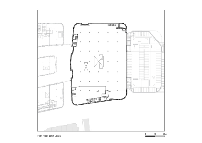
Центральную часть участка занимает пятиэтажный универмаг John Lewis с рестораном на крыше. Опоры здания, вертикальные в нижней части, постепенно «наклоняются», образуя диагональную сетку из так называемого восстановленного камня. Часть её ромбов закрыты стеклом, а часть заполнена керамическими вставками цвета бронзы и слоновой кости.
Торговый комплекс Victoria Gate © Jack Hobhouse
Торговый комплекс Victoria Gate © Jack Hobhouse

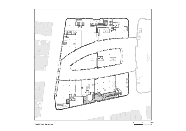
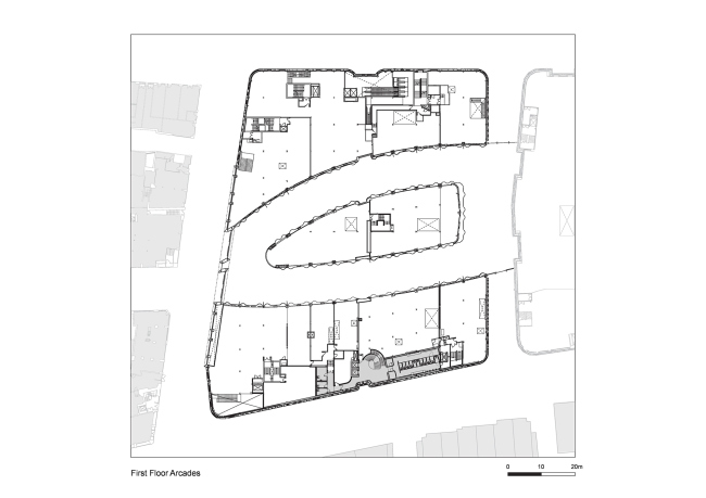
Соседнее здание торгового центра Victoria Gate имеет комбинированные фасады: в нижней части архитекторы использовали терракоту и кирпич, с помощью компьютерного моделирования собрав уникальную объемно-пластичную поверхность из 460 000 деталей, а выше добавили металлические панели либо цвета латуни, либо с имитацией ржавчины.
Торговый комплекс Victoria Gate © Jack Hobhouse
Торговый комплекс Victoria Gate © Jack Hobhouse

Светлое пространство пассажа организуют две внутренние улицы с перекрытиями из стали и стекла. Эффектный окулус над одной из них подчеркивает идею постоянного движения, которое продолжается и за пределами здания – эти же улицы, соединяясь, образуют между торговым центром и универмагом подобие высокого (22 м) двускатного атриума. Пол во всем этом защищенном, но уличном по своей сути пространстве выложен из натурального камня 15 оттенков серого цвета. Его вибрирующий рисунок вместе с конструкциями перекрытий создает затейливую светотеневую игру.
Торговый комплекс Victoria Gate © Jack Hobhouse
Торговый комплекс Victoria Gate © Jack Hobhouse

Многоярусная парковка на 800 машин плотно примыкает к зданию универмага с противоположной стороны. Именно она логично выходит на пересечение важных транспортных артерий и ведет основной диалог с городом. Её фасад собран из сотен алюминиевых ребер, повороты которых образуют затейливый рисунок, отдаленно напоминающий сетку конструкций универмага и обеспечивающий естественную вентиляцию.
Торговый комплекс Victoria Gate © Jack Hobhouse
Торговый комплекс Victoria Gate © Jack Hobhouse
Торговый комплекс Victoria Gate © Jack Hobhouse
Торговый комплекс Victoria Gate © Jack Hobhouse
Торговый комплекс Victoria Gate © Jack Hobhouse
Торговый комплекс Victoria Gate © Jack Hobhouse
Торговый комплекс Victoria Gate © Jack Hobhouse
Торговый комплекс Victoria Gate © Jack Hobhouse
Торговый комплекс Victoria Gate © Jack Hobhouse
Торговый комплекс Victoria Gate © Jack Hobhouse
Торговый комплекс Victoria Gate © Jack Hobhouse
Торговый комплекс Victoria Gate © Jack Hobhouse
Торговый комплекс Victoria Gate © Jack Hobhouse
Торговый комплекс Victoria Gate © Jack Hobhouse
Торговый комплекс Victoria Gate © Jack Hobhouse
Торговый комплекс Victoria Gate © Jack Hobhouse
Торговый комплекс Victoria Gate © Jack Hobhouse
Торговый комплекс Victoria Gate © Jack Hobhouse
Торговый комплекс Victoria Gate © Jack Hobhouse
Торговый комплекс Victoria Gate © Jack Hobhouse
Торговый комплекс Victoria Gate © Jack Hobhouse
Торговый комплекс Victoria Gate © Jack Hobhouse
Торговый комплекс Victoria Gate © Jack Hobhouse
Торговый комплекс Victoria Gate © Jack Hobhouse
Торговый комплекс Victoria Gate © Jack Hobhouse
Торговый комплекс Victoria Gate © Jack Hobhouse
Торговый комплекс Victoria Gate © Jack Hobhouse
Торговый комплекс Victoria Gate © Jack Hobhouse
Торговый комплекс Victoria Gate © Jack Hobhouse
Торговый комплекс Victoria Gate © Jack Hobhouse
Торговый комплекс Victoria Gate © Jack Hobhouse
Торговый комплекс Victoria Gate © Jack Hobhouse
Торговый комплекс Victoria Gate © Jack Hobhouse
Торговый комплекс Victoria Gate © Jack Hobhouse
Торговый комплекс Victoria Gate © Jack Hobhouse
Торговый комплекс Victoria Gate © Jack Hobhouse
Торговый комплекс Victoria Gate © Jack Hobhouse
Торговый комплекс Victoria Gate © Jack Hobhouse
Торговый комплекс Victoria Gate © Jack Hobhouse
Торговый комплекс Victoria Gate © Jack Hobhouse
Торговый комплекс Victoria Gate © Jack Hobhouse
Торговый комплекс Victoria Gate © Jack Hobhouse
Торговый комплекс Victoria Gate © Jack Hobhouse
Торговый комплекс Victoria Gate © Jack Hobhouse
Торговый комплекс Victoria Gate © Jack Hobhouse
Торговый комплекс Victoria Gate © Jack Hobhouse
Торговый комплекс Victoria Gate © Jack Hobhouse
Торговый комплекс Victoria Gate © Jack Hobhouse
Торговый комплекс Victoria Gate © Jack Hobhouse
Торговый комплекс Victoria Gate © Jack Hobhouse
Торговый комплекс Victoria Gate © Jack Hobhouse
Торговый комплекс Victoria Gate © Jack Hobhouse
Торговый комплекс Victoria Gate © Jack Hobhouse
Торговый комплекс Victoria Gate © Jack Hobhouse
Торговый комплекс Victoria Gate © Jack Hobhouse
Торговый комплекс Victoria Gate © Jack Hobhouse
Торговый комплекс Victoria Gate © Jack Hobhouse
Торговый комплекс Victoria Gate © Jack Hobhouse
Торговый комплекс Victoria Gate © Jack Hobhouse
Торговый комплекс Victoria Gate © Jack Hobhouse
Торговый комплекс Victoria Gate © Jack Hobhouse
Торговый комплекс Victoria Gate © Jack Hobhouse
Торговый комплекс Victoria Gate © Jack Hobhouse
Торговый комплекс Victoria Gate © Jack Hobhouse
Торговый комплекс Victoria Gate © Jack Hobhouse
Торговый комплекс Victoria Gate © Jack Hobhouse
Торговый комплекс Victoria Gate © Jack Hobhouse
Торговый комплекс Victoria Gate © Jack Hobhouse
Торговый комплекс Victoria Gate © Jack Hobhouse
Торговый комплекс Victoria Gate © Jack Hobhouse
Торговый комплекс Victoria Gate © Jack Hobhouse
Торговый комплекс Victoria Gate © Jack Hobhouse
Торговый комплекс Victoria Gate © Jack Hobhouse
Торговый комплекс Victoria Gate © Jack Hobhouse
Торговый комплекс Victoria Gate © Jack Hobhouse
Торговый комплекс Victoria Gate © Jack Hobhouse
Торговый комплекс Victoria Gate © Jack Hobhouse
Торговый комплекс Victoria Gate © Jack Hobhouse
Торговый комплекс Victoria Gate © Jack Hobhouse
Торговый комплекс Victoria Gate © Jack Hobhouse
Торговый комплекс Victoria Gate © Jack Hobhouse
Торговый комплекс Victoria Gate © Jack Hobhouse
Торговый комплекс Victoria Gate © Jack Hobhouse
Торговый комплекс Victoria Gate © Jack Hobhouse
Торговый комплекс Victoria Gate © Jack Hobhouse
Торговый комплекс Victoria Gate © Jack Hobhouse
Торговый комплекс Victoria Gate © Jack Hobhouse
Торговый комплекс Victoria Gate © Jack Hobhouse
Торговый комплекс Victoria Gate © Jack Hobhouse
Торговый комплекс Victoria Gate © Jack Hobhouse
Торговый комплекс Victoria Gate © Jack Hobhouse
Торговый комплекс Victoria Gate © Jack Hobhouse
Торговый комплекс Victoria Gate © Jack Hobhouse
Торговый комплекс Victoria Gate © Jack Hobhouse
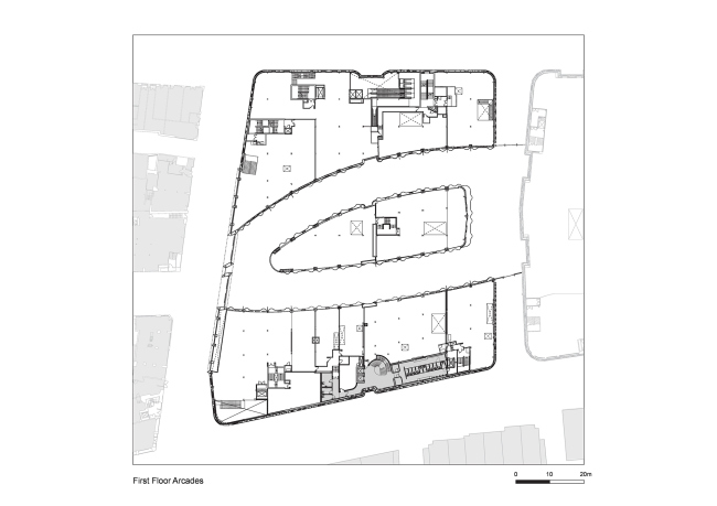
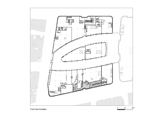
Торговый комплекс Victoria Gate © ACME
Торговый комплекс Victoria Gate © ACME
Торговый комплекс Victoria Gate © ACME
Торговый комплекс Victoria Gate © ACME
Торговый комплекс Victoria Gate © ACME
Торговый комплекс Victoria Gate © ACME
Торговый комплекс Victoria Gate © ACME
Торговый комплекс Victoria Gate © ACME
Торговый комплекс Victoria Gate © ACME
Торговый комплекс Victoria Gate © ACME
Торговый комплекс Victoria Gate © ACME
Торговый комплекс Victoria Gate © ACME
Торговый комплекс Victoria Gate © ACME
Торговый комплекс Victoria Gate © ACME
Торговый комплекс Victoria Gate © ACME
Торговый комплекс Victoria Gate © ACME
Торговый комплекс Victoria Gate © ACME
Торговый комплекс Victoria Gate © ACME
Торговый комплекс Victoria Gate © ACME
Торговый комплекс Victoria Gate © ACME
Торговый комплекс Victoria Gate © ACME
Торговый комплекс Victoria Gate © ACME
Торговый комплекс Victoria Gate © ACME
Торговый комплекс Victoria Gate © ACME
Торговый комплекс Victoria Gate © ACME
Торговый комплекс Victoria Gate © ACME
Торговый комплекс Victoria Gate © ACME
Торговый комплекс Victoria Gate © ACME
Торговый комплекс Victoria Gate © ACME
Торговый комплекс Victoria Gate © ACME
Торговый комплекс Victoria Gate © ACME
Торговый комплекс Victoria Gate © ACME
Торговый комплекс Victoria Gate © ACME
Торговый комплекс Victoria Gate © ACME
Торговый комплекс Victoria Gate © ACME
Торговый комплекс Victoria Gate © ACME
Торговый комплекс Victoria Gate © ACME
Торговый комплекс Victoria Gate © ACME
Торговый комплекс Victoria Gate © ACME
Торговый комплекс Victoria Gate © ACME
Торговый комплекс Victoria Gate © ACME
Торговый комплекс Victoria Gate © ACME
Торговый комплекс Victoria Gate © ACME
Торговый комплекс Victoria Gate © ACME
Торговый комплекс Victoria Gate © ACME
Торговый комплекс Victoria Gate © ACME
Торговый комплекс Victoria Gate © ACME
Торговый комплекс Victoria Gate © ACME
Торговый комплекс Victoria Gate © ACME
Торговый комплекс Victoria Gate © ACME
Торговый комплекс Victoria Gate © ACME
Торговый комплекс Victoria Gate © ACME