Размещено на портале Архи.ру (www.archi.ru)

02.03.2017

Пространство за экраном

Арсений Матвеев
Объект:
Кинотеатр Alésia – реконструкция
Адрес:
Франция, None, Париж. 73 Boulevard du Général Leclerc

Парижский кинотеатр Alésia после полной перестройки по проекту Мануэль Готран получил медиафасад и общественное пространство в интерьере.

Кинотеатр Alésia – реконструкция © Luc Boegly
Кинотеатр Alésia – реконструкция © Luc Boegly

Прежний кинотеатр в центре 14-го округа появился в 1921 и с тех пор – по мере развития индустрии кинопоказа – не раз перестраивался, последний раз – в 2004. В наши дни ограниченный изначальными конструкциями и объёмом кинозал было уже невозможно в нужной мере модернизировать, и потому владелец, Gaumont-Pathé, решил его снести: таким образом кинотеатры этой сети в целом избавлялись от имиджа устаревших, неудобных сооружений, занимающих, тем не менее, знаковые места.
 
Кинотеатр Alésia – реконструкция © Luc Boegly
Кинотеатр Alésia – реконструкция © Luc Boegly

Поэтому особенно важным был образ нового здания: привлекательный и оригинальный, ярко обозначающий его современность и функцию. Как и во многих других постройках Мануэль Готран, смелый фасад выделяет постройку из контекста, а его структура вдохновлена экспериментами с бумагой. Прозрачность дает возможность прочтения интерьера с улицы и открывает изнутри вид на бульвар, где расположена Alésia. Фасад составлен из однокамерных стеклопакетов шириной 1,7 м и высотой до 4,7 м. Вертикальная нарезка напоминает фрагменты киноплёнки, а горизонтальные изломы повторяют членения атриума. Выбор масштаба также обусловлен требованиями градостроительных регламентов. Внизу полосы отгибаются, выступая на 3 м и формируя навес.
 
Кинотеатр Alésia – реконструкция © Luc Boegly
Кинотеатр Alésia – реконструкция © Luc Boegly
Кинотеатр Alésia – реконструкция © Manuelle Gautrand Architecture
Кинотеатр Alésia – реконструкция © Manuelle Gautrand Architecture

Главная особенность «Алезии» – светодиодный медиафасад, расположенный на специальных направляющих поверх стеклянного. Его задача – показывать афиши и отрывки из фильмов, а также любой контент для оживления экстерьера кинотеатра. Экран состоит из 230 тысяч точек, с увеличением плотности к центру, а его яркость регулируется автоматически в зависимости от освещения. Пиксели имеют широкий угол обзора и не только позволяют заметить фасад издалека при приближении к нему по бульвару, то есть сбоку, но также освещают интерьер, создавая особую атмосферу внутри – особенно в темное время суток. Днём светодиодный слой дополнительно защищает здание от нагрева солнечными лучами.
 
Кинотеатр Alésia – реконструкция © Guillaume Guerin
Кинотеатр Alésia – реконструкция © Guillaume Guerin

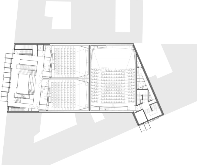
Внутри, на площади 3600 м2, расположено восемь залов общей вместимостью 1380 мест. Размеры постройки были существенно увеличены за счёт освоения подземного пространства. Объёмы четырёх залов «сложены» друг на друга и образуют композицию, в которой считываются уклоны зрительских рядов. Их продолжение в полость трёхсветного атриума-вестибюля образует перед залами ярусные зоны с лестницами-трибунами, где до и после сеанса проецируются рекламные ролики фильмов и т.п. Таким образом, кинотеатр отвечает на запрос горожан о доступном общественном пространстве: он способен вместить различные события и открыт для широкой публики. Уровни атриума связаны лестницами и эскалаторами. В вестибюле при входе расположены кассы, стойка информации, вендинг-машины, кафе. Кроме того, раскрыт сквозной проход между соседними улицами. На подземном уровне размещены ещё четыре небольших зала.
 
Кинотеатр Alésia – реконструкция © Luc Boegly
Кинотеатр Alésia – реконструкция © Luc Boegly

Интересны сложные инженерные решения, использованные при строительстве: в частности, для обеспечения доступа к остеклению снаружи пришлось разработать уникальные механизмы сдвижки панелей медиафасада, а соседство «Алезии» с жилыми домами потребовало уделить особое внимание звукоизоляции. Бюджет перестройки составил 12 млн евро.
Кинотеатр Alésia – реконструкция © Luc Boegly
Кинотеатр Alésia – реконструкция © Luc Boegly
Кинотеатр Alésia – реконструкция © Luc Boegly
Кинотеатр Alésia – реконструкция © Luc Boegly
Кинотеатр Alésia – реконструкция © Luc Boegly
Кинотеатр Alésia – реконструкция © Luc Boegly
Кинотеатр Alésia – реконструкция © Luc Boegly
Кинотеатр Alésia – реконструкция © Luc Boegly
Кинотеатр Alésia – реконструкция © Luc Boegly
Кинотеатр Alésia – реконструкция © Luc Boegly
Кинотеатр Alésia – реконструкция © Luc Boegly
Кинотеатр Alésia – реконструкция © Luc Boegly
Кинотеатр Alésia – реконструкция © Luc Boegly
Кинотеатр Alésia – реконструкция © Luc Boegly
Кинотеатр Alésia – реконструкция © Guillaume Guerin
Кинотеатр Alésia – реконструкция © Guillaume Guerin
Кинотеатр Alésia – реконструкция © Luc Boegly
Кинотеатр Alésia – реконструкция © Luc Boegly
Кинотеатр Alésia – реконструкция © Luc Boegly
Кинотеатр Alésia – реконструкция © Luc Boegly
Кинотеатр Alésia – реконструкция © Luc Boegly
Кинотеатр Alésia – реконструкция © Luc Boegly
Кинотеатр Alésia – реконструкция © Guillaume Guerin
Кинотеатр Alésia – реконструкция © Guillaume Guerin
Кинотеатр Alésia – реконструкция © Guillaume Guerin
Кинотеатр Alésia – реконструкция © Guillaume Guerin
Кинотеатр Alésia – реконструкция © Guillaume Guerin
Кинотеатр Alésia – реконструкция © Guillaume Guerin
Кинотеатр Alésia – реконструкция © Guillaume Guerin
Кинотеатр Alésia – реконструкция © Guillaume Guerin
Кинотеатр Alésia – реконструкция © Guillaume Guerin
Кинотеатр Alésia – реконструкция © Guillaume Guerin
Кинотеатр Alésia – реконструкция © Guillaume Guerin
Кинотеатр Alésia – реконструкция © Guillaume Guerin
Кинотеатр Alésia – реконструкция © Guillaume Guerin
Кинотеатр Alésia – реконструкция © Guillaume Guerin
Кинотеатр Alésia – реконструкция © Manuelle Gautrand Architecture
Кинотеатр Alésia – реконструкция © Manuelle Gautrand Architecture
Кинотеатр Alésia – реконструкция © Manuelle Gautrand Architecture
Кинотеатр Alésia – реконструкция © Manuelle Gautrand Architecture
Кинотеатр Alésia – реконструкция © Manuelle Gautrand Architecture
Кинотеатр Alésia – реконструкция © Manuelle Gautrand Architecture
Кинотеатр Alésia – реконструкция © Manuelle Gautrand Architecture
Кинотеатр Alésia – реконструкция © Manuelle Gautrand Architecture
Кинотеатр Alésia – реконструкция © Manuelle Gautrand Architecture
Кинотеатр Alésia – реконструкция © Manuelle Gautrand Architecture
Кинотеатр Alésia – реконструкция © Manuelle Gautrand Architecture
Кинотеатр Alésia – реконструкция © Manuelle Gautrand Architecture
Кинотеатр Alésia – реконструкция © Manuelle Gautrand Architecture
Кинотеатр Alésia – реконструкция © Manuelle Gautrand Architecture
Кинотеатр Alésia – реконструкция © Manuelle Gautrand Architecture
Кинотеатр Alésia – реконструкция © Manuelle Gautrand Architecture
Кинотеатр Alésia – реконструкция © Manuelle Gautrand Architecture
Кинотеатр Alésia – реконструкция © Manuelle Gautrand Architecture
Кинотеатр Alésia – реконструкция © Manuelle Gautrand Architecture
Кинотеатр Alésia – реконструкция © Manuelle Gautrand Architecture
Кинотеатр Alésia – реконструкция © Manuelle Gautrand Architecture
Кинотеатр Alésia – реконструкция © Manuelle Gautrand Architecture
Кинотеатр Alésia – реконструкция. Вид до реконструкции © Manuelle Gautrand Architecture
Кинотеатр Alésia – реконструкция. Вид до реконструкции © Manuelle Gautrand Architecture
Кинотеатр Alésia – реконструкция. Вид до реконструкции © Manuelle Gautrand Architecture
Кинотеатр Alésia – реконструкция. Вид до реконструкции © Manuelle Gautrand Architecture
Кинотеатр Alésia – реконструкция. Процесс строительства © Manuelle Gautrand Architecture
Кинотеатр Alésia – реконструкция. Процесс строительства © Manuelle Gautrand Architecture