Размещено на портале Архи.ру (www.archi.ru)

06.04.2017

Vis-a-vis с парком

Юлия Шишалова
Объект:
Административно-жилое здание на Малой Трубецкой улице
Адрес:
Россия, Москва. ул. Малая Трубецкая, владение 28, стр. 1, 3, 4, ул. Ефремова, владение 10, стр. 2
Архитектор:
Павел Андреев
Мастерская:
АМ «ГРАН» (Мастерская Павла Андреева)

Конкурсный проект мастерской «Гран» для Малой Трубецкой улицы – авторское видение того, каким мог бы быть клубный дом в плотном и обязывающем окружении. Два корпуса трактованы как объёмные рамы квартир, смотрящих на парк.

Административно-жилое здание на Малой Трубецкой улице
Административно-жилое здание на Малой Трубецкой улице
© Архитектурная мастерская «ГРАН»

Участок в самой гуще района Хамовники, прямо напротив парка Мандельштама и усадьбы Трубецких, – определённо лакомый кусок, но только если правильно его «преподнести». Ведь буквально через дом – «Садовые кварталы», с современной и запоминающейся архитектурой, развивающейся инфраструктурой и качественной средой, сулящей все 33 удовольствия: пруд, благоустроенная внутриквартальная площадь, многоуровневые зелёные дворы. Что можно противопоставить такому роскошному красавцу-соседу и его жизни «на широкую ногу»? Только аристократическое существование особняком, внутри закрытого «клуба» – а при малых допустимых площадях и высотах клубное жильё самое очевидное решение. Девелопер в этом случае продаёт не метры, а формат: уединение – в самом центре города. И если проводить аналогию между населённым кварталом и оживленно бурлящим «королевским двором», то клубный дом – очевидно «покои».
Административно-жилое здание на Малой Трубецкой улице. Генеральный план
Административно-жилое здание на Малой Трубецкой улице. Генеральный план
© Архитектурная мастерская «ГРАН»

Они должны быть со всеми удобствами: бассейн, фитнес-центр, коммерческие зоны, которые могли бы покрывать потребности жильцов в услугах и – за счёт арендной ренты – их затраты на обслуживание самого дома. Даже квартирография в такой ситуации не столь важна, хотя проект нельзя упрекнуть в непродуманности планировок. Но прежде всего – архитектура должна соответствовать: и формату, и «свите», которая делает «короля».

Так что заказчик объявил творческий конкурс – тоже «клубный», закрытый, для избранных. Платой за «членство» стало серьёзное, хотя и привычное для архитектора испытание: плотное окружение предъявляло к будущей постройке строгие требования по освещению, инсоляции, совидимости. Чтобы их выполнить и в то же время организовать к дому удобный подъезд, архитекторы «Гран» развили вытянутый участок вглубь, решив здание в виде двух сильно смещённых друг относительно друга объемов – так, что они почти не перекрывают друг друга. При этом дальний корпус на 5 этажей выше (13 против 8) и соединён с ближним одноэтажным стилобатом. В нём, помимо всех общественных, технических и административных помещений, включая офисы и бассейн, разместился просторный входной вестибюль.
Административно-жилое здание на Малой Трубецкой улице. Макет
Административно-жилое здание на Малой Трубецкой улице. Макет
© Архитектурная мастерская «ГРАН»

Входная зона снаружи не менее просторна и перекрыта мощной консолью. Большой «козырёк», уже ставший частью «фирменного стиля» руководителя мастерской «Гран» – Павла Андреева, – захватывает и ближайший вход прямо с Трубецкой улицы, который ведёт в офисную часть, и запрятанные в глубине, в стилобате стеклянные двери в приватную и основную жилую часть дома. Проехать сюда можно, свернув с Трубецкой, – вдоль торца соседнего «волнистого» здания. А двигаясь в том же направлении и свернув налево, оказываешься у въезда на подземную парковку.

С одной стороны от дома – штаб-квартира банка Алексея Воронцова, постройка начала 1990-х годов. А «волнистый» дом – ни что иное, как относительно новый жилой комплекс Сергея Ткаченко, плод экспериментальных поисков 2000-х. Тоже не самые «скромные» соседи. Однако, по словам Павла Андреева, на их архитектуру он отреагировал только тем, что сделал окна большинства квартир «смотрящими» на них лишь кухнями и спальнями. Из основных комнат открываются виды вперед, на парк – практически как у жителей нью-йоркского Манхэттена. Или назад – тоже на парк: тот, что архитектор предлагает устроить самому застройщику.

Таким образом, эксплуатируемая кровля стилобата – прежде всего забота о жильцах сверху. Хотя выходы на крышу и озеленённую площадку предусмотрены из обеих жилых секций и входного вестибюля. Окна, выходящие на импровизированный парк, расположены на высоте не менее 2,5 м от уровня кровли, так что любители побродить по крышам не доставят беспокойства окружающим. Впрочем, истинные поклонники «прогулок на высоте» однозначно бы выбрали один из пентхаусов, венчающих каждый корпус. Только здесь – крытые приватные террасы, где много воздуха и солнца, хотя снаружи они выглядят обычными этажами с панорамными окнами.
Административно-жилое здание на Малой Трубецкой улице
Административно-жилое здание на Малой Трубецкой улице
© Архитектурная мастерская «ГРАН»

В этом доме так со всем: авторы, следуя принципу «закрытости», упаковали в лаконичную «коробочку» все многочисленные функции, технические решения, включая лестницы и оборудование под землей и в верхней части пентхаусов, да и смыслы, в конце концов. Но сделали так, чтобы это «нутро» имело возможность «прорываться» наружу – через неожиданно изящный орнамент на обрамлении, проявляющийся, когда включается подсветка (это могут быть как металлические панели, так и ленты кориана); через возникающие по сторонам выносные балкончики, через люки в террасных крышах, через которые прорастают деревья, а обратно, внутрь, струится небо. 
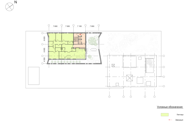
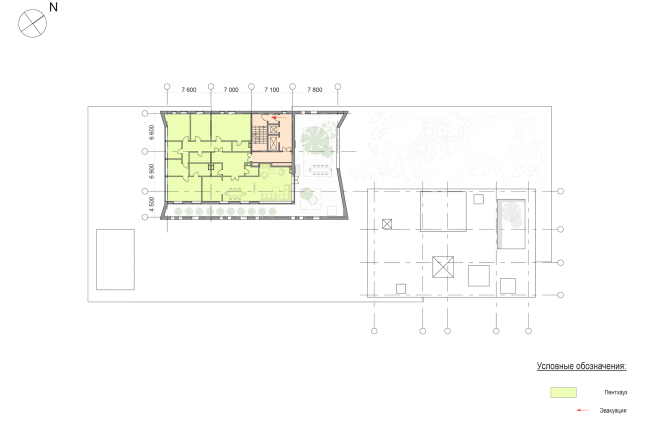
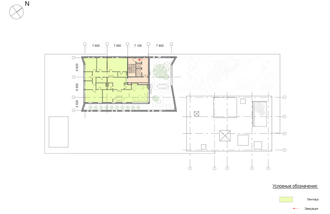
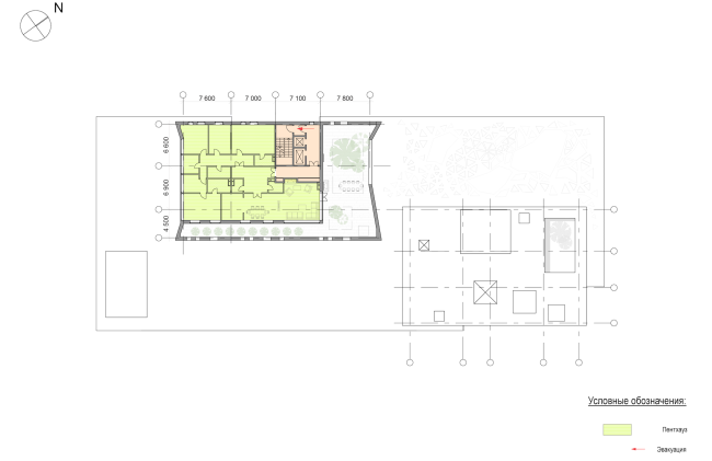
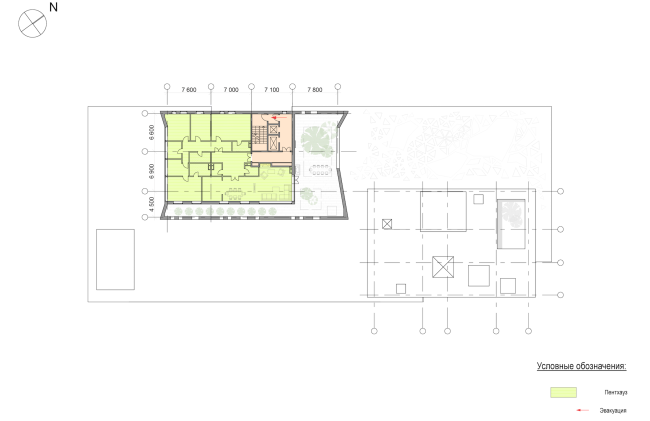
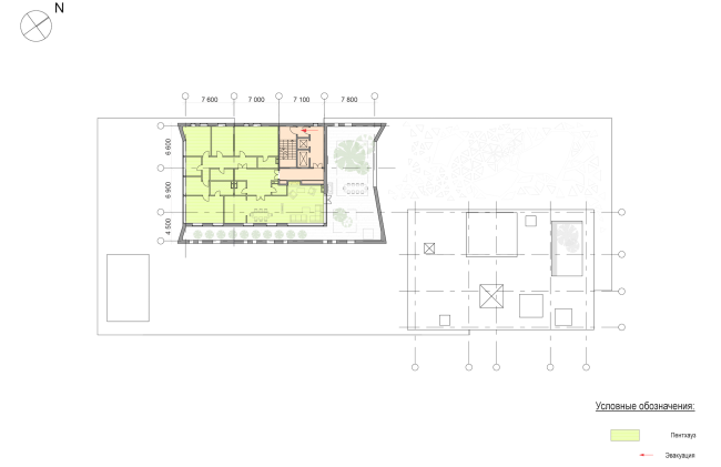
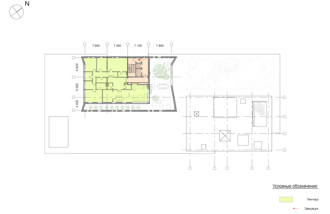
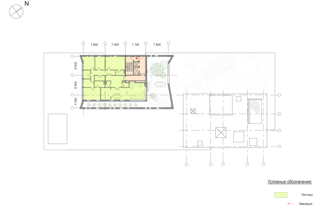
Административно-жилое здание на Малой Трубецкой улице. План верхнего жилого этажа
Административно-жилое здание на Малой Трубецкой улице. План верхнего жилого этажа
© Архитектурная мастерская «ГРАН»
Административно-жилое здание на Малой Трубецкой улице. План типового этажа
Административно-жилое здание на Малой Трубецкой улице. План типового этажа
© Архитектурная мастерская «ГРАН»
Административно-жилое здание на Малой Трубецкой улице. Разрез
Административно-жилое здание на Малой Трубецкой улице. Разрез
© Архитектурная мастерская «ГРАН»
Административно-жилое здание на Малой Трубецкой улице. План 1-го этажа
Административно-жилое здание на Малой Трубецкой улице. План 1-го этажа
© Архитектурная мастерская «ГРАН»
Административно-жилое здание на Малой Трубецкой улице. План 2-го  этажа
Административно-жилое здание на Малой Трубецкой улице. План 2-го этажа
© Архитектурная мастерская «ГРАН»