|
Масштабный проект реконструкции и приспособления территории, зданий и сооружений завода «Плутон», предложенный студентами МАРШ.
Ещё одна студия магистров первого года обучения в МАРШ взяла на себя непростую задачу – разработать проект реабилитации и интеграции в городской контекст территории завода «Плутон», прилегающей непосредственно к центру архитектуры и дизайна «Артплей». Руководителем программы стал Николай Лызлов, а также преподаватели МАРШ Филипп Якубчук, Андрис Шнепс-Шнеппе. Работа студии делилась на две части: «экспедиция» (исследование) и «освоение» (проектирование). В ходе исследования студентам стало ясно, что не существует практически никаких сведений о самом заводе, однако, удалось классифицировать основные части застройки, оценить потенциал территории и предположить возможные варианты новых функций реконструируемых зданий. Выбор функциональных характеристик основывался, в первую очередь, на анализе потребностей живущих и работающих в окружающей крайне плотной застройке людей. Далее студенты разработали единый мастер-план, затем разделили между собой индивидуальные проекты отдельных участков и существующие постройки.
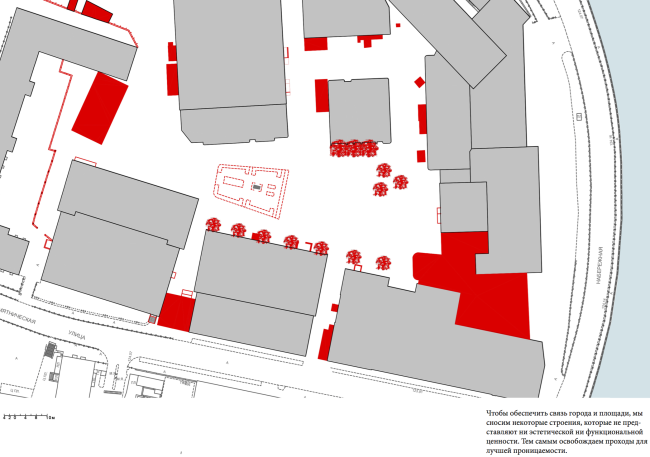
 Проект реконструкции корпусов завода «Плутон». Студия «Освоение Плутона». Связь с городом. Руководители: Николай Лызлов, Филипп Якубчук, Андрис Шнепс-Шнеппе © МАРШ, 2017
Проект реконструкции корпусов завода «Плутон». Студия «Освоение Плутона». Схема функционального наполнения. Руководители: Николай Лызлов, Филипп Якубчук, Андрис Шнепс-Шнеппе © МАРШ, 2017
Схема реконструкции корпусов завода «Плутон». Проект студии «Освоение Плутона». Руководители: Николай Лызлов, Филипп Якубчук, Андрис Шнепс-Шнеппе © МАРШ, 2017
Николай Лызлов, руководитель архитектурной мастерской Николая Лызлова, преподаватель МАРШ: «Здесь перед нами стояла некая суперзадача, цель – не проекты, а студенты. С одной стороны, можно быть довольным проделанной работой, процессом, а с другой стороны – проектами. Тем более, что вещи эти плохо разделимы. Можно сказать, что архитектура – труд коллективный, но почему-то за всё время преподавательской практики в МАРХИ мне никогда не удавалось добиться от студентов коллективной работы. Больше, чем два человека почему-то никак не собирались в команду. И, имея такой опыт, здесь мы попытались так построить нашу программу, чтобы работа была, с одной стороны, индивидуальной, с другой – командной.
Защита студентов магистратуры (1 курс) студии Николая Лызлова (тема: «Освоение Плутона») © МАРШ, 2017
Мы разделили работу на три этапа. Первый – исследование, и это самая механическая часть, которая не требовала особого синтеза, но требовала координации движений между всеми. Мы получили покинутую людьми территорию, занятую различными зданиями и сооружениями неясного назначения, о которой знали всего две вещи: здесь было производство и оно было засекречено. Как раз исследование все 14 человек делали вместе. Получилось удачно, потому что они, проделав эту работу вместе, научились взаимодействовать. Дальше 14 человек разделились на три команды, каждая из которых создавала свой мастер-план.
Существующее положение завода «Плутон». Студия «Освоение Плутона». Руководители: Николай Лызлов, Филипп Якубчук, Андрис Шнепс-Шнеппе © МАРШ, 2017
Существующее положение завода «Плутон». Студия «Освоение Плутона». Руководители: Николай Лызлов, Филипп Якубчук, Андрис Шнепс-Шнеппе © МАРШ, 2017
Конечно, все мастерпланы разные, но, тем не менее, каждый из трёх оказался вполне себе результатом коллективного труда. А потом, параллельно, каждый начал делать свою «захватку» внутри этого мастер-плана. Естественно, что одной из основных целей студентов стало синхронизировать работы, посматривая на мастер-планы. И это тоже удалось! Мне кажется, что в этом и состоит главный успех студии – ребята сделали коллективную работу, тем не менее, никто не нес бревно фиктивно, потому что в итоге всем пришлось отчитаться собственными проектами.
Мастер-план студии «Освоение Плутона». Руководители: Николай Лызлов, Филипп Якубчук, Андрис Шнепс-Шнеппе © МАРШ, 2017
Мы сразу сказали студентам, что в этой работе будет некий элемент соревновательности, что мы будем говорить, чья команда сделала лучше. Для этого у нас были промежуточные просмотры: кто-то вырывался вперед, кто-то отставал – как в настоящем спорте. А в конце они как-то совсем по-разному порвали эту финишную линию. И если теперь оценивать эту работу, то я бы предложил делать это как с кино, по номинациям – «самый реализуемый», «самый практичный», «самый фантастичный», «самый радикальный». Могу сказать, что мы с коллегами результатом довольны».
Макет реконструкции внешних корпусов завода «Плутон». Проект студии «Освоение Плутона». Руководители: Николай Лызлов, Филипп Якубчук, Андрис Шнепс-Шнеппе © МАРШ, 2017
Макет реконструкции внутрениих корпусов завода «Плутон». Проект студии «Освоение Плутона». Руководители: Николай Лызлов, Филипп Якубчук, Андрис Шнепс-Шнеппе © МАРШ, 2017
Макет реконутрукции корпусов завода «Плутон» с организацией Секретного сада. Проект студии «Освоение Плутона». Руководители: Николай Лызлов, Филипп Якубчук, Андрис Шнепс-Шнеппе © МАРШ, 2017
Публикуем некоторые из получившихся проектов:*** Чёрный ящикМария БрайловскаяПроект студентки магистратуры (1 курс) Марии Брайловской «Черный ящик». Руководители: Николай Лызлов, Филипп Якубчук, Андрис Шнепс-Шнеппе © МАРШ, 2017
Производство, остающееся на заводе «Плутон», сосредоточено в восьмиэтажном корпусе кубической формы, доступ в который строго контролируется. Это «чёрный ящик», недоступный для посторонних. В проекте предлагается возвести вокруг здания металлическую структуру и разместить на ней жилые модули, сделав, тем самым, замкнутый и отчужденный объём более дружелюбным и открытым, восстановить его связь с окружающей территорией. Вертикальная структура позволит более эффективно использовать ограниченное пространство, а появление жилья разнообразит её функциональное наполнение. Проект студентки магистратуры (1 курс) Марии Брайловской «Черный ящик». Руководители: Николай Лызлов, Филипп Якубчук, Андрис Шнепс-Шнеппе © МАРШ, 2017
Проект студентки магистратуры (1 курс) Марии Брайловской «Черный ящик». Руководители: Николай Лызлов, Филипп Якубчук, Андрис Шнепс-Шнеппе © МАРШ, 2017
Проект студентки магистратуры (1 курс) Марии Брайловской «Черный ящик». Руководители: Николай Лызлов, Филипп Якубчук, Андрис Шнепс-Шнеппе © МАРШ, 2017
Проект студентки магистратуры (1 курс) Марии Брайловской «Черный ящик». Руководители: Николай Лызлов, Филипп Якубчук, Андрис Шнепс-Шнеппе © МАРШ, 2017
Проект студентки магистратуры (1 курс) Марии Брайловской «Черный ящик». Руководители: Николай Лызлов, Филипп Якубчук, Андрис Шнепс-Шнеппе © МАРШ, 2017
Проект студентки магистратуры (1 курс) Марии Брайловской «Черный ящик». Руководители: Николай Лызлов, Филипп Якубчук, Андрис Шнепс-Шнеппе © МАРШ, 2017
*** Площадь ПлутонаАнвар Гарипов Проект студента магистратуры (1 курс) Анвара Гарипова «Площадь Плутона». Руководители: Николай Лызлов, Филипп Якубчук, Андрис Шнепс-Шнеппе © МАРШ, 2017
Автор проекта сравнивает центральную площадь завода по размеру и форме с площадями средневековых европейских городов. Такая площадь может стать важным центром для развивающегося «Артплея» и всего района, лишённого сегодня открытых общественных пространств. Для этого предлагается открыть все проходы с площади на окружающие улицы, сделать первые этажи окружающих её задний полностью общественными, выделить зону для уличных кафе и ярмарок. Памятник Ленину в центре площади сохраняется как часть истории. Проект студента магистратуры (1 курс) Анвара Гарипова «Площадь Плутона». Руководители: Николай Лызлов, Филипп Якубчук, Андрис Шнепс-Шнеппе © МАРШ, 2017
Проект студента магистратуры (1 курс) Анвара Гарипова «Площадь Плутона». Руководители: Николай Лызлов, Филипп Якубчук, Андрис Шнепс-Шнеппе © МАРШ, 2017
Проект студента магистратуры (1 курс) Анвара Гарипова «Площадь Плутона». Руководители: Николай Лызлов, Филипп Якубчук, Андрис Шнепс-Шнеппе © МАРШ, 2017
Проект студента магистратуры (1 курс) Анвара Гарипова «Площадь Плутона». Руководители: Николай Лызлов, Филипп Якубчук, Андрис Шнепс-Шнеппе. План демонтажа © МАРШ, 2017
Проект студента магистратуры (1 курс) Анвара Гарипова «Площадь Плутона». Руководители: Николай Лызлов, Филипп Якубчук, Андрис Шнепс-Шнеппе. Новые объекты © МАРШ, 2017
Проект студента магистратуры (1 курс) Анвара Гарипова «Площадь Плутона». Руководители: Николай Лызлов, Филипп Якубчук, Андрис Шнепс-Шнеппе. Эскиз площади © МАРШ, 2017
Проект студента магистратуры (1 курс) Анвара Гарипова «Площадь Плутона». Руководители: Николай Лызлов, Филипп Якубчук, Андрис Шнепс-Шнеппе. Поиск аналогий © МАРШ, 2017
*** Рядом с секретным садомДиана ТунянПроект студентки магистратуры (1 курс) Дианы Тунян «Освоение Плутона». Руководители: Николай Лызлов, Филипп Якубчук, Андрис Шнепс-Шнеппе © МАРШ, 2017
Следуя общей идее «Секретного сада» в центре «Плутона», автор предлагает создать на крыше пристройку к историческому зданию чаеразвесочной фабрики в виде лёгкой решётчатой конструкции, одновременно служащей переходом между корпусами, балконом, смотровой площадкой, вертикальным садом и открытым кафе. Проект студентки магистратуры (1 курс) Дианы Тунян «Освоение Плутона». Руководители: Николай Лызлов, Филипп Якубчук, Андрис Шнепс-Шнеппе © МАРШ, 2017
Проект студентки магистратуры (1 курс) Дианы Тунян «Освоение Плутона». Руководители: Николай Лызлов, Филипп Якубчук, Андрис Шнепс-Шнеппе © МАРШ, 2017
Проект студентки магистратуры (1 курс) Дианы Тунян «Освоение Плутона». Руководители: Николай Лызлов, Филипп Якубчук, Андрис Шнепс-Шнеппе © МАРШ, 2017
Проект студентки магистратуры (1 курс) Дианы Тунян «Освоение Плутона». Руководители: Николай Лызлов, Филипп Якубчук, Андрис Шнепс-Шнеппе. Конструкции © МАРШ, 2017
Проект студентки магистратуры (1 курс) Дианы Тунян «Освоение Плутона». Руководители: Николай Лызлов, Филипп Якубчук, Андрис Шнепс-Шнеппе © МАРШ, 2017
Проект студентки магистратуры (1 курс) Дианы Тунян «Освоение Плутона». Руководители: Николай Лызлов, Филипп Якубчук, Андрис Шнепс-Шнеппе. Генеральный план © МАРШ, 2017
Проект Секретного сада на территории завода «Плутон». Студия «Освоение Плутона». Руководители: Николай Лызлов, Филипп Якубчук, Андрис Шнепс-Шнеппе © МАРШ, 2017
***
|