Размещено на портале Архи.ру (www.archi.ru)

22.02.2017

Мерцающий монолит

Арсений Матвеев
Объект:
Жилой комплекс Urban Dock
Адрес:
Франция, None, Бордо.
Мастерская:
Hamonic+Masson & Associés

Жилой дом Urban Dock в гавани Бордо по проекту Hamonic+Masson & Associés формирует акцент в застройке, оставаясь строго контекстуальным.

Жилой комплекс Urban Dock © Takuji Shimmura
Жилой комплекс Urban Dock © Takuji Shimmura

Подобно другим новым зданиям в районе шлюзовых бассейнов – Bassins à flot (Архи.ру писал об этом проекте реконструкции здесь и здесь) – в гавани Бордо, дом Urban Dock обладает силуэтом и отделкой, присущей портовым сооружениям. При формировании объёмов, выборе материалов и цветового решения авторы проекта стремились отразить морскую тематику и ощущение жизни в порту, руководствуясь предписаниями бюро ANMA, разработавшего план регенерации территории.
 
Жилой комплекс Urban Dock © Takuji Shimmura
Жилой комплекс Urban Dock © Takuji Shimmura

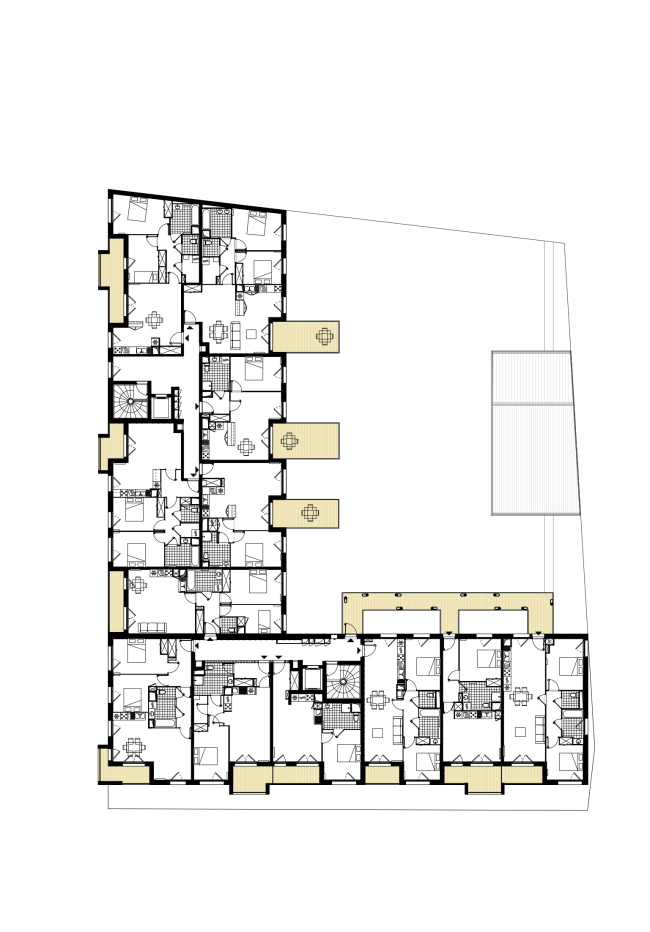
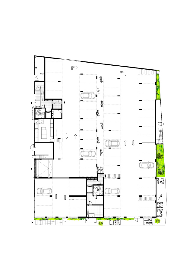
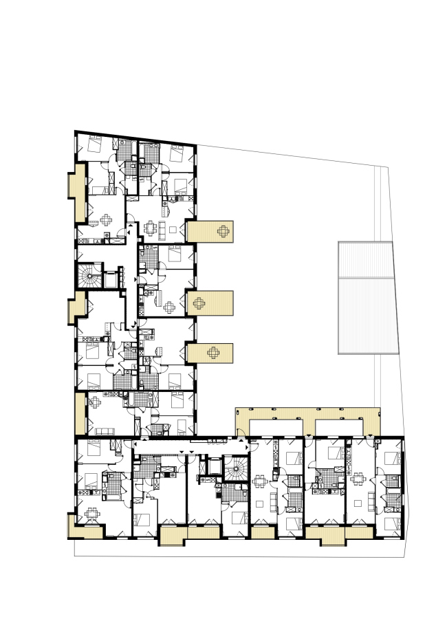
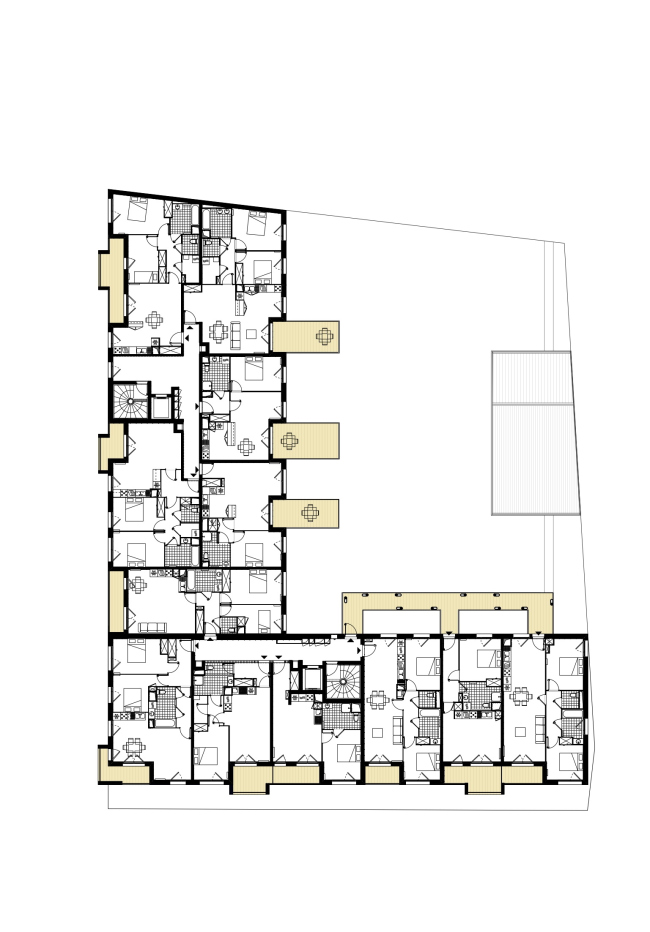
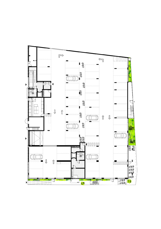
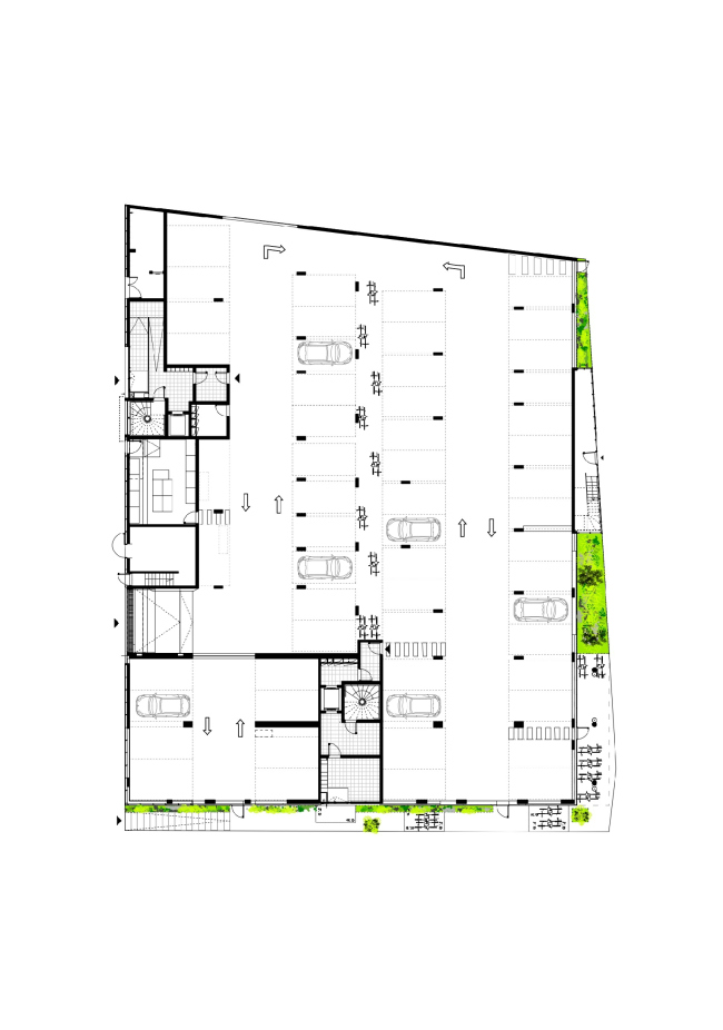
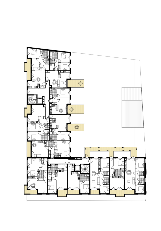
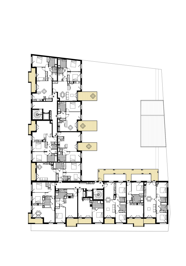
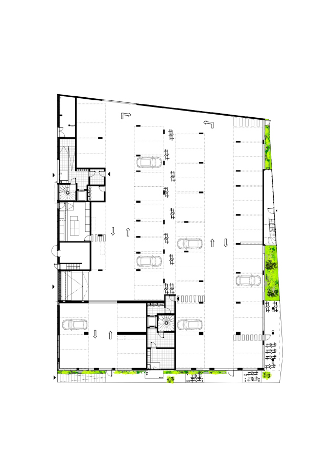
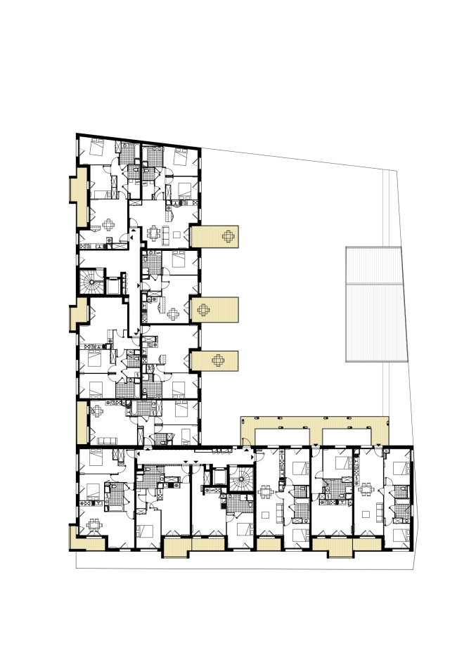
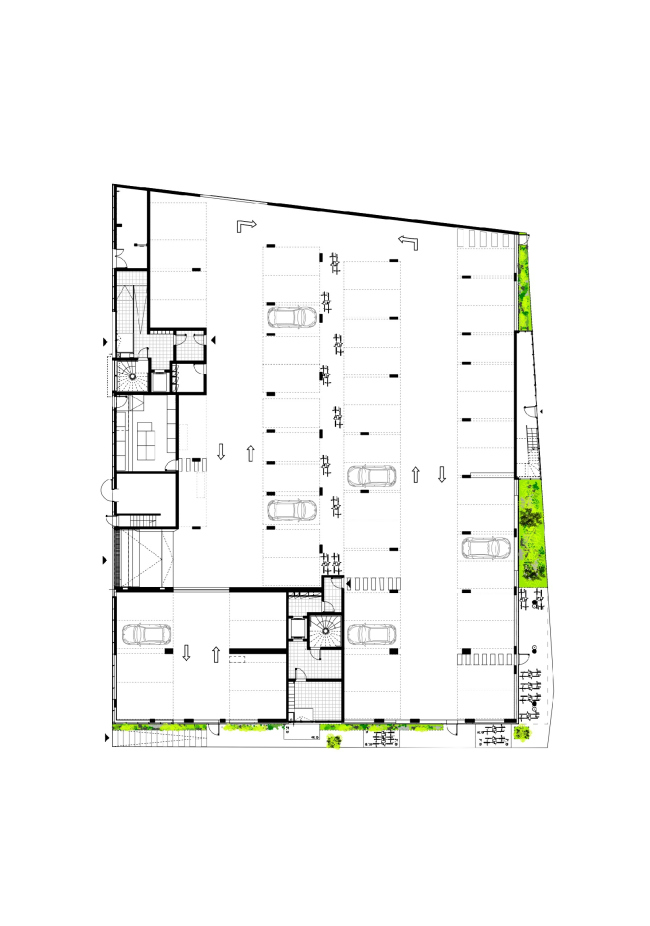
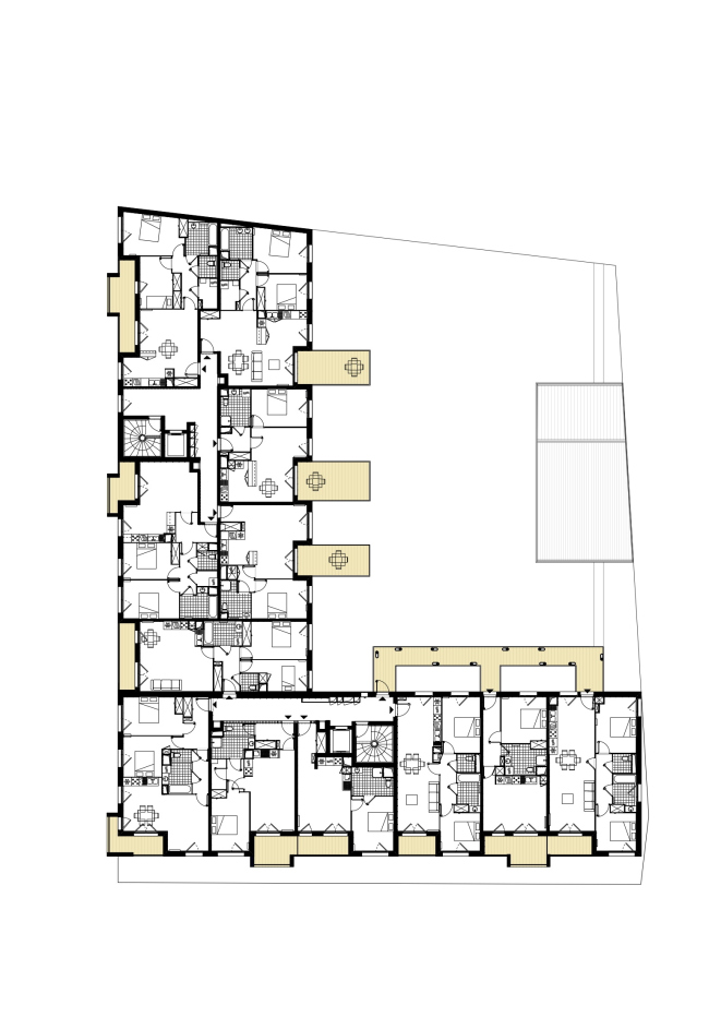
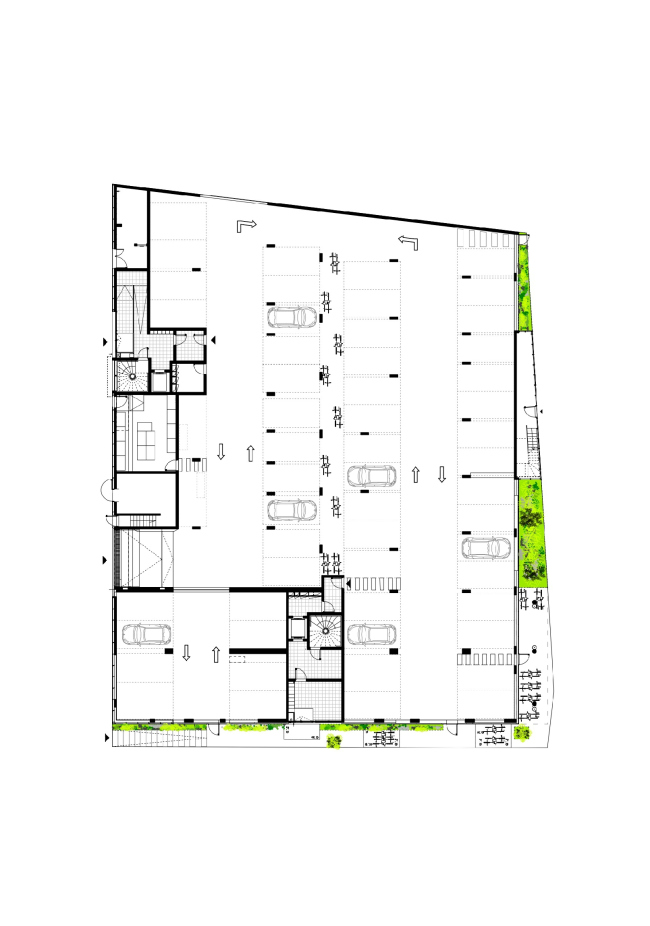
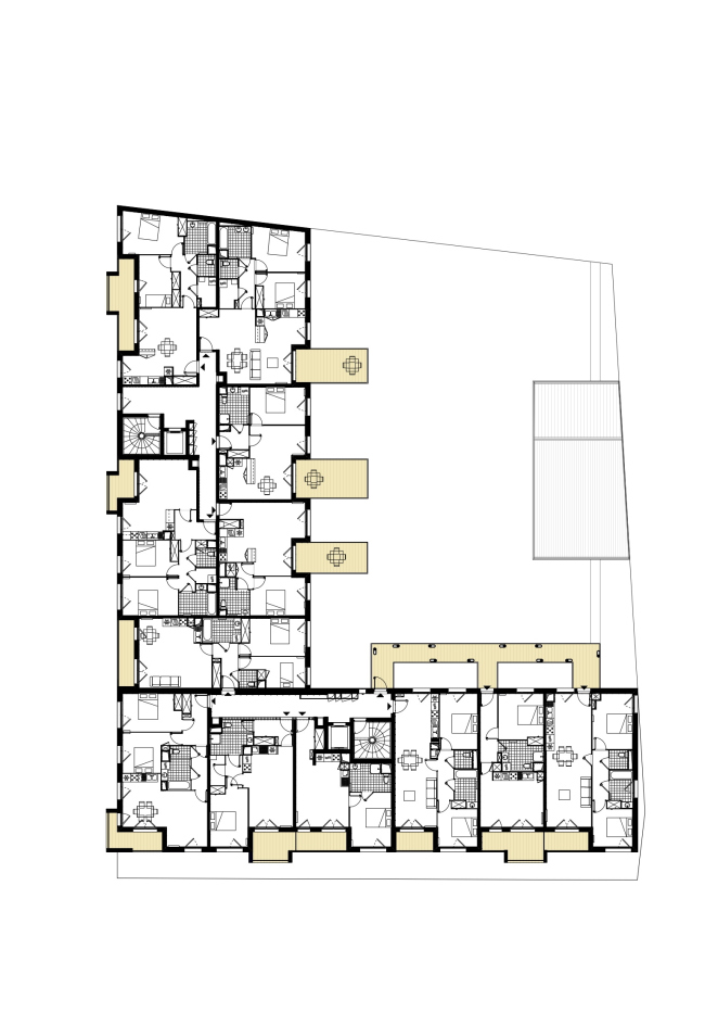
Здание общей площадью более 4000 м2 и стоимостью 4,3 млн евро включает 56 квартир в двух секциях. Дом выполнен в монолитном железобетоне и «висит» над парковкой, расположенной на уровне земли. Каждая жилая ячейка получила лоджию, балкон или террасу. Сложный силуэт (высота колеблется в диапазоне 5 – 9 – 3 жилых этажа) со скатными кровлями создаёт визуальную связь между внешним и внутренним пространством, задаёт игру масштабов, обеспечивает эксклюзивные видовые характеристики. Причём башню сами архитекторы ассоциируют с перископом, поднятым над горизонтом городского пейзажа: ещё одна морская метафора и как будто намек на расположенную в двух шагах базу подводных лодок BETASOM. Отсутствие у Urban Dock выраженных членений усиливает эффект промышленной архитектуры.
 
Жилой комплекс Urban Dock © Takuji Shimmura
Жилой комплекс Urban Dock © Takuji Shimmura

С внешней стороны здание имеет золотистый цвет, выделяющий его в окружающей застройке (Hamonic+Masson & Associés использовали такой приём и в Париже). Фасады облицованы профилированными стальными листами с полимерным покрытием. Монолитность объема подчеркнута с помощью элегантного решения: лоджии частично скрыты за листами той же текстуры, но перфорированными. Их ярко-белые квадратные проёмы нарочито смещены и скрывают жилой план здания. Использование перфорации также обеспечивает эффект двойной оболочки, дающий игру света и тени. Примечательно, что проектом предлагались приводные ставни для окон, которые бы придали облику дома ещё большую утилитарность.
 
Жилой комплекс Urban Dock © Takuji Shimmura
Жилой комплекс Urban Dock © Takuji Shimmura

Яркий объём скрывает за собой висячий сад на уровне первого жилого этажа, к которому обращены белые «дворовые» стены дома. Контраст усиливается противопоставлением внешней мерцающей оболочки и простого построения выходящих в сад открытых балконов. Озеленение охватывает весь участок, включая тропу-проход вдоль его восточной стороны и террасы на крыше.
Жилой комплекс Urban Dock © Takuji Shimmura
Жилой комплекс Urban Dock © Takuji Shimmura
Жилой комплекс Urban Dock © Atelier Positif
Жилой комплекс Urban Dock © Atelier Positif
Жилой комплекс Urban Dock © Takuji Shimmura
Жилой комплекс Urban Dock © Takuji Shimmura
Жилой комплекс Urban Dock © Takuji Shimmura
Жилой комплекс Urban Dock © Takuji Shimmura
Жилой комплекс Urban Dock © Takuji Shimmura
Жилой комплекс Urban Dock © Takuji Shimmura
Жилой комплекс Urban Dock © Atelier Positif
Жилой комплекс Urban Dock © Atelier Positif
Жилой комплекс Urban Dock © Takuji Shimmura
Жилой комплекс Urban Dock © Takuji Shimmura
Жилой комплекс Urban Dock © Atelier Positif
Жилой комплекс Urban Dock © Atelier Positif
Жилой комплекс Urban Dock © Atelier Positif
Жилой комплекс Urban Dock © Atelier Positif
Жилой комплекс Urban Dock © Takuji Shimmura
Жилой комплекс Urban Dock © Takuji Shimmura
Жилой комплекс Urban Dock © Atelier Positif
Жилой комплекс Urban Dock © Atelier Positif
Жилой комплекс Urban Dock © Atelier Positif
Жилой комплекс Urban Dock © Atelier Positif
Жилой комплекс Urban Dock © Atelier Positif
Жилой комплекс Urban Dock © Atelier Positif
Жилой комплекс Urban Dock © Atelier Positif
Жилой комплекс Urban Dock © Atelier Positif
Жилой комплекс Urban Dock © Hamonic+Masson & Associés
Жилой комплекс Urban Dock © Hamonic+Masson & Associés
Жилой комплекс Urban Dock © Hamonic+Masson & Associés
Жилой комплекс Urban Dock © Hamonic+Masson & Associés
Жилой комплекс Urban Dock © Hamonic+Masson & Associés
Жилой комплекс Urban Dock © Hamonic+Masson & Associés
Жилой комплекс Urban Dock © Hamonic+Masson & Associés
Жилой комплекс Urban Dock © Hamonic+Masson & Associés
Жилой комплекс Urban Dock © Hamonic+Masson & Associés
Жилой комплекс Urban Dock © Hamonic+Masson & Associés
Жилой комплекс Urban Dock © Hamonic+Masson & Associés
Жилой комплекс Urban Dock © Hamonic+Masson & Associés
Жилой комплекс Urban Dock © Hamonic+Masson & Associés
Жилой комплекс Urban Dock © Hamonic+Masson & Associés
Жилой комплекс Urban Dock © Hamonic+Masson & Associés
Жилой комплекс Urban Dock © Hamonic+Masson & Associés
Жилой комплекс Urban Dock © Hamonic+Masson & Associés
Жилой комплекс Urban Dock © Hamonic+Masson & Associés
Жилой комплекс Urban Dock © Hamonic+Masson & Associés
Жилой комплекс Urban Dock © Hamonic+Masson & Associés
Жилой комплекс Urban Dock © Hamonic+Masson & Associés
Жилой комплекс Urban Dock © Hamonic+Masson & Associés
Жилой комплекс Urban Dock © Hamonic+Masson & Associés
Жилой комплекс Urban Dock © Hamonic+Masson & Associés