Размещено на портале Архи.ру (www.archi.ru)

03.04.2017

Первая линия

Елена Петухова
Объект:
ЖК и офис Кленовый дом
Адрес:
Россия, Москва. Пречистенская наб. вл. 5-7
Архитектор:
Александр Скокан
Мастерская:
АБ «Остоженка»
«Юкон Инжиниринг»
Авторский коллектив:
Архитекторы: А. Скокан, К. Гладкий, К. Бердникова, М. Елизарова, С. Каверина, К. Капустина, А. Скачкова,
при участии: К. Артемьев, И. Воронежский, М. Скороход

Архитектура нового комплекса по проекту бюро «Остоженка» на Пречистенской набережной вступает в диалог с памятью об истории места и с современным контекстом, в том числе с соседним зданием банка, который 20 лет назад стал для бюро пропуском в большую архитектуру.

Жилой комплекс и офис на Пречистенской набережной. Реализация, 2015 Фото: И.Воронежский. © АБ Остоженка
Жилой комплекс и офис на Пречистенской набережной. Реализация, 2015 Фото: И.Воронежский. © АБ Остоженка

 
Ансамбль набережной
Среди архитектурных тем формирование ансамблевой застройки вдоль набережной – одна из самых сложных и интересных. Пластическое выражение границы между городской средой и водным пространством, специфика восприятия с дальних и ближних точек, привилегия или проклятье служить парадным фасадом и многие другие факторы усложняют задачу. Тем более когда речь идёт о набережной вдоль московской «Золотой мили», где каждый дом в той или иной степени является воплощением архитектурной моды середины 2000-х годов со свойственной ей борьбой между радикальным модернизмом и претенциозным историзмом. В окружении весьма разнообразной по своим стилистическим и геометрическим параметрам окружающей застройки найти собственную уникальную тему непросто. Особенно если приходится соревноваться не только с именитыми коллегами, но и с самим собой, со своим собственным успехом – построенным в 1995 году зданием банка, неоднократно премированного, а может быть, даже признанного точкой отсчета московской архитектуры новейшего времени.
Жилой комплекс и офис на Пречистенской набережной. Реализация, 2015 Фото: А.Лерер. © АБ Остоженка
Жилой комплекс и офис на Пречистенской набережной. Реализация, 2015 Фото: А.Лерер. © АБ Остоженка

Александр Скокан так комментирует ситуацию: «По прошествии около пятнадцати лет после окончания строительства банка нам предложили сделать дом на соседнем участке. Это был своего рода вызов для нас – интересный, интригующий. Обычно наша профессиональная позиция заключается в контекстуальном подходе к проектированию. А тут мы сами себе оказались контекстом». И вопрос: как избежать самоцитирования в положении, когда само соседство подталкивает к пространственной и образной перекличке – оказался не единственным. Для архитекторов «Остоженки» история проекта многофункционального комплекса на Пречистенской набережной, продолжавшаяся почти двадцать лет, стала настоящим тестом на стрессоустойчивость и преодоление всех возможных профессиональных задач: градостроительных, планировочных, художественных, строительных и дипломатических.
Жилой комплекс и офис на Пречистенской набережной. Реализация, 2015 Фото: И.Воронежский. © АБ Остоженка
Жилой комплекс и офис на Пречистенской набережной. Реализация, 2015 Фото: И.Воронежский. © АБ Остоженка
***
 
Предыстория
Глядя на современную Пречистенскую набережную, трудно представить, что буквально сто – сто пятьдесят лет назад тут был разбит живописный парк, спускавшийся к реке от лечебницы доктора Лодера, расположенной выше по берегу. В середине XIX века, на волне промышленной революции, здесь разместилась фабрика, часть территории которой уже в тридцатые годы прошлого века отдали под бетонный завод, обслуживающий строительство Дворца Советов. Технология производства определила конфигурацию зданий и самого участка, вытянутого узкой полосой более 170 м длины вдоль набережной. В жертву конвейеру была принесена часть Хилкова переулка, превращенного в тупик, ведущий на завод.

В 1960-е годы, после отказа от планов строительства гигантского дворца и смены идеологических приоритетов, корпуса завода снесли и на их месте к Олимпиаде 1980 года были построены крытые теннисные корты. Спортивная глава истории участка закончилась в конце 1990-х, когда статус и стоимость квадратных метров земли на Остоженке начали стремительно расти. Как и многим другим зданиям по соседству, бывшему заводу предстояло пережить очередную трансформацию и стать чем-то совершенно новым, чем именно, решал в 2004 году застройщик – «Банк Москвы», который заказал проект многофункционального комплекса бюро «Остоженка».
Жилой комплекс и офисное здание на Пречистенской набережной. Ситуационный план © Остоженка
Жилой комплекс и офисное здание на Пречистенской набережной. Ситуационный план © Остоженка
***
 
Композиция
Попытки архитекторов бюро «Остоженка» увлечь застройщика идеями реконструкции прома в тогда ещё не раскрученной лофт-стилистике успехом не увенчались. Все постройки бывшего завода были снесены. Большая часть освободившейся территории отошла под жилой комплекс, проект которого разрабатывался в «Моспроекте»-2. «Остоженке» досталась передняя линия – узкий участок вдоль набережной, отягощенный жёсткими ограничениями по высотным отметкам и выходу общих площадей.

В самом начале работы архитекторы приняли решение восстановить историческую ткань квартала и пробить сквозь участок проезд, восстанавливающий сквозное движение по Хилкову переулку. Сам комплекс на набережной оказывался разделён на две части: длинный четырёхэтажный объем высотой 17 м, протянувшийся от Турчанинова до Хилкова переулка – корпус 1, и более компактный, но и более высокий пятиэтажный блок между Хилковым и Коробейниковым переулком – корпус 3. Для цельности счёта добавили третью часть – компактный корпус 2 с отдельным входом фланкирует внутренний двор комплекса со стороны Турчанинова переулка; в зависимости от решения будущего покупателя он может стать городской виллой или офисным особняком.
Жилой комплекс и офис на Пречистенской набережной. Реализация, 2015 Фото: А.Лерер. © АБ Остоженка
Жилой комплекс и офис на Пречистенской набережной. Реализация, 2015 Фото: А.Лерер. © АБ Остоженка

Ещё одно принципиальное решение, которое помогло идеологически объединить новый комплекс со «старшим братом», соседним зданием банка – пешеходная галерея вдоль всего здания, в которую обращены подъезды и входы в общественные помещения первого этажа. Главный архитектор проекта Кирилл Гладкий так комментирует это решение: «Это была принципиальная для нас вещь. У нас в Москве такая погода, что позаботиться о пешеходах – хороший тон для архитектора. Мы сделали аналогичную галерею в банке и продолжили её здесь, подчеркнув связь между нашими проектами».
***
 
Поиск образа
Первые концептуальные проработки дома в виде нескольких блоков на едином стилобате, позволяющие сохранить визуальную связь с рекой для зданий, находящихся в глубине квартала, не были поддержаны ни заказчиком, ни городскими властями. Требовалось найти выразительное решение для протяжённого объёма, неизбежно напоминающего забор. Что делать с такой монотонной формой? Как использовать или трансформировать её горизонталь, учитывая, что комплекс будет восприниматься как фронтально – с противоположного берега реки, так и в ракурсе, при движении пешеходов и машин по Пречистенской набережной?
Первые идеи обыгрывали тему воды, архитектурную роль которой должно было исполнять стекло. Ломаные грани с чётким ритмом вертикальных импостов на витражах напоминали волны, покрытые рябью от ветра.

вариант 1: 
Жилой комплекс и офис на Пречистенской набережной. Фасады (вариант 1). Проект, 2005 © АБ Остоженка
Жилой комплекс и офис на Пречистенской набережной. Фасады (вариант 1). Проект, 2005 © АБ Остоженка
Жилой комплекс и офис на Пречистенской набережной. Фасады (вариант 1). Проект, 2005 © АБ Остоженка
Жилой комплекс и офис на Пречистенской набережной. Фасады (вариант 1). Проект, 2005 © АБ Остоженка

Решение оказалось слишком радикальным и было раскритиковано мэром Юрием Лужковым. Последовавшая затем смена застройщика – «Донстрой» сменил Банк «Москва» – привела не только к задержке реализации на четыре года, но и к кардинальным изменениям в облике здания.

вариант 2:
Жилой комплекс и офис на Пречистенской набережной. Фасады (вариант 2). Проект, 2009 © АБ Остоженка
Жилой комплекс и офис на Пречистенской набережной. Фасады (вариант 2). Проект, 2009 © АБ Остоженка

В 2009 году реконструированный пром стал популярен и востребован на рынке недвижимости и архитекторы разработали несколько вариантов, продолжающих брутальную кирпичную тему. В их числе был даже вариант, учитывающий интерес заказчика к историческим стилизациям. Длинный корпус был увенчан рядом скульптур à la «Зимний дворец» или ограда «Летнего сада». Был вариант, имитирующий рядовую застройку из однотипных блоков, выступающих ризалитами из стеклянной плоскости, а также вариант, где фасадный ритм задавали прямоугольные стеклянные эркеры в ажурных металлических обрамлениях.

вариант 3:
Жилой комплекс и офис на Пречистенской набережной. Фасады (вариант 3). Проект, 2009 © АБ Остоженка
Жилой комплекс и офис на Пречистенской набережной. Фасады (вариант 3). Проект, 2009 © АБ Остоженка

вариант 5: 
Жилой комплекс и офис на Пречистенской набережной. Фасады (вариант 5). Проект, 2009 © АБ Остоженка
Жилой комплекс и офис на Пречистенской набережной. Фасады (вариант 5). Проект, 2009 © АБ Остоженка

вариант 6:
Жилой комплекс и офис на Пречистенской набережной. Фасады (вариант 6). Проект, 2009 © АБ Остоженка
Жилой комплекс и офис на Пречистенской набережной. Фасады (вариант 6). Проект, 2009 © АБ Остоженка
***

Но наиболее удачным и перспективным был признан вариант со складчатой структурой фасада, состоящей из скругленных эркеров с огромными окнами. «Архитектура есть не что иное, как гармоничное членение стены. В нашем случае, когда у дома изначально были крайне неудачные пропорции, мы нашли оптимальное решение. Уступчатость, зигзагообразность фасада скрадывает его большую протяженность. При движении по набережной вы видите, как при смене ракурса и угла зрения меняется восприятие дома. Получается очень динамичная композиция», – комментирует Александр Скокан финальный вариант.
Жилой комплекс и офис на Пречистенской набережной. Реализация, 2015 Фото: А.Лерер. © АБ Остоженка
Жилой комплекс и офис на Пречистенской набережной. Реализация, 2015 Фото: А.Лерер. © АБ Остоженка

Единая тема объединяет оба корпуса, стоящих на набережной, но в каждом из них она получает индивидуальную трактовку, отвечающую параметрам здания и средовой ситуации. В корпусе 1 подчеркнута горизонтальная тема. Складчатая лента фасада высотой в три этажа словно бы парит над тротуаром, оторванная от него стеклянным стилобатом. Мерное зигзагообразное движение останавливает пятиэтажная масса корпуса 3, который, словно шипами, ощетинился угловатыми эркерами. Заглублённый витраж многосветного атриума разрезает фасад корпуса, визуально делая его ещё выше и обозначая вертикальную ось композиции в противовес горизонтали соседнего корпуса. По массе, материалам и пропорциям членений пятиэтажный объем гармонично сочетается с соседними зданиями и в первую очередь, с банком.
***
 
Память о парке
Помимо складчатой структуры фасада, здание выделяется из общего ряда застройки набережной большими окнами. Необычные размеры витражей затрудняют определение типологической принадлежности дома в соответствии со стереотипами, что в общественном здании стекло превалирует над массой стены, в жилье наоборот. При беглом взгляде трудно понять, что перед нами: офисный центр, гостиница или жилой дом. Но размер витражей – это не только дань открывающимся из дома видам, но и огромный «холст», на котором разворачивается грандиозное графическое панно, подарившее всему комплексу поэтическое имя «Кленовый дом». Идея родилась в общении с заказчиком, которого смущал радикальный модернизм и отсутствие литературной легенды, приличествующей элитному жилому комплексу в историческом центре города.
Жилой комплекс и офис на Пречистенской набережной. Реализация, 2015 Фото: А.Лерер. © АБ Остоженка
Жилой комплекс и офис на Пречистенской набережной. Реализация, 2015 Фото: А.Лерер. © АБ Остоженка

Архитекторы предложили свою версию: «Когда-то на этом месте была усадьба, потом это был парк и гуляли люди. Парка давным-давно нет, но память о нём осталась. А как она сохранилась? В какой форме может она проявиться в архитектуре? Как можно материализовать памяти об исчезнувших эпохах? Вот стеклянные окна, а на них запечатлелись деревья, тень того, чего нет, память, нарисованная на стекле», – так вспоминает этот момент Александр Скокан. Идея понравилась заказчику и для её разработки был приглашен известный художник Владимир Чайка.
Жилой комплекс и офис на Пречистенской набережной. Графическое изображение деревьев для принта на стекле. Проект, 2005 © АБ Остоженка
Жилой комплекс и офис на Пречистенской набережной. Графическое изображение деревьев для принта на стекле. Проект, 2005 © АБ Остоженка
Жилой комплекс и офис на Пречистенской набережной. Реализация, 2015 Фото: А.Лерер. © АБ Остоженка
Жилой комплекс и офис на Пречистенской набережной. Реализация, 2015 Фото: А.Лерер. © АБ Остоженка

Сфотографировав обнаженные ветви деревьев разных пород, авторы выбрали именно клёны. Оцифровали и увеличили панораму кленовой аллеи, из фрагментов которой изготовили трафареты для нанесения принта на каждое окно при помощи специальной серебряной краски. При взгляде изнутри дома рисунок практически не заметен, а снаружи краска активно проявляется, реагируя на внешний свет. Благодаря обилию стекла и принтам, облик дома чутко отзывается на изменения погоды, делая частью архитектурного облика блики от речной воды, отражения медиакартин с фасадов ЦДХ и последние закатные лучи.
***
 
Керамика и стекло
В застройке Пречистенской набережной преобладает кирпич, отличающий прагматичные постройки рубежа XIX – XX веков, и, не менее востребованный современной архитектурой. Немногочисленные светлые здания и белокаменные декоративные элементы лишь оттеняют мощную энергетику тёмного кирпича. В этом ряду здание банка с фасадами из розоватого керамогранита воспринимается как точно найденный компромисс между кирпичом, белым камнем и серой штукатуркой. Более светлый оттенок стен и активное использование стекла позволило сгладить ощущение массивности банковского здания без потери цельности формы.
Жилой комплекс и офис на Пречистенской набережной. Реализация, 2015 Фото: А.Лерер. © АБ Остоженка
Жилой комплекс и офис на Пречистенской набережной. Реализация, 2015 Фото: А.Лерер. © АБ Остоженка

Аналогичные приемы были использованы и для нового комплекса. «Поскольку здание большое, его надо было делать крупно. Если бы мы стали членить форму, она рассыпалась бы, особенно при восприятии с противоположной стороны реки», – поясняет Кирилл Гладкий. Нужна была спокойная тема, гармонично сочетающаяся с окружением, скрадывающая значительную протяженность здания, и в тоже время, подчеркивающая фасадную пластику эркеров. Нужен был отделочный материал, обладающий индивидуальным характером и энергетикой. Кирпич в качестве отделочного материала был отвергнут по причине его неиндустриальности. Было решено использовать для отделки навесного фасада керамические панели. Из широкой палитры производителей и оттенков в итоге остановились на немецкой керамике темно-терракотового оттенка фирмы NBK.

Голубоватое энергоэффективное стекло огромных окон с проступающей графикой ветвей и тонкими металлическими импостами нивелирует массивность керамической волны. На первый взгляд даже трудно определить, что превалирует на фасаде: стекло или керамика.
Жилой комплекс и офис на Пречистенской набережной. Реализация, 2015 Фото: А.Лерер. © АБ Остоженка
Жилой комплекс и офис на Пречистенской набережной. Реализация, 2015 Фото: А.Лерер. © АБ Остоженка

Ещё более радикально решен корпус 2, который в виде отдельного независимого объема фланкирует двор жилого комплекса со стороны Турчанинова переулка. Функция и окончательная внутренняя планировка «виллы» ещё не определена и ждёт своего покупателя, так что архитекторы использовали представившуюся возможность для органичного завершения трёхчастной композиции контрастным элементом. В пику керамической пластине и полу-стеклянному, полу-керамическому блоку, этот корпус сделан практически полностью стеклянным. Лишь первый из четырёх этажей облицован белым керамогранитом, подчеркивающим обособленность «виллы», её противопоставленность основному корпусу, декларированную в лаконичной скругленной форме, напоминающей рубку океанского лайнера, рассекающего волны, пусть даже терракотовые.
Жилой комплекс и офис на Пречистенской набережной. Реализация, 2015 Фото: А.Лерер. © АБ Остоженка
Жилой комплекс и офис на Пречистенской набережной. Реализация, 2015 Фото: А.Лерер. © АБ Остоженка

Для лаконичной модернистской архитектуры крайне важно совершенство исполнение всех конструктивных элементов и деталей отделки. И архитекторы бюро «Остоженка» занимавшиеся проектом комплекса на Пречистенской набережной десят лет довели его до максимального уровня профессионального качества. К сожалению, как это часто происходит на российских стройках, заказчику этот уровень не требовался и даже мешал закончить стройку как можно скорее. Договор об авторском надзоре был расторгнут. Последний этап строительства шел уже без участия архитекторов, что повлекло за собой многочисленные отступления от авторских решений по узлам и выбору материалов. И ответственность за окончательных облик дома полностью лежит на застройщике.
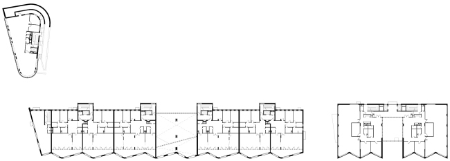
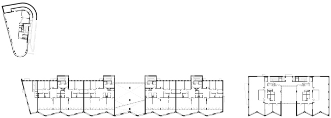
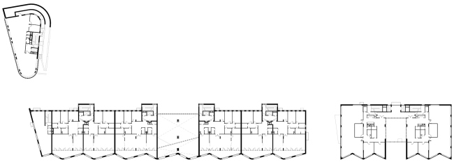
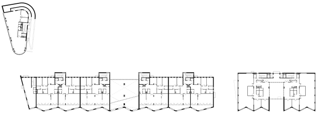
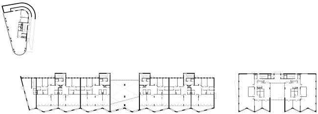
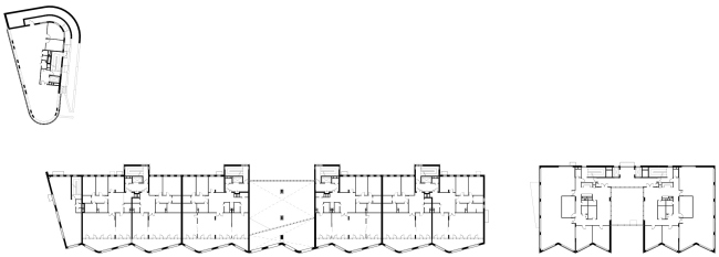
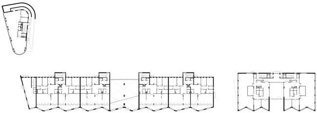
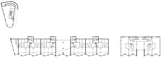
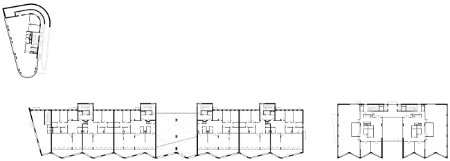
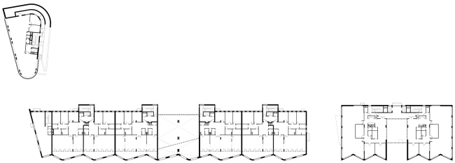
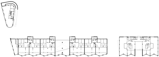
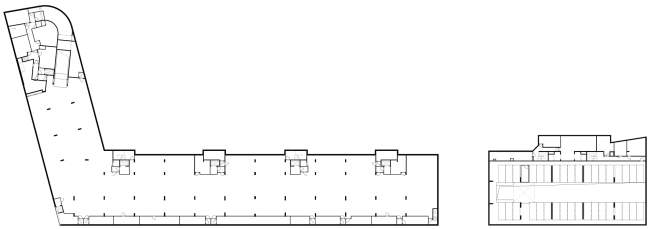
Жилой комплекс и офис на Пречистенской набережной. Общие планы, -1 этаж. Проект, 2005 © Остоженка
Жилой комплекс и офис на Пречистенской набережной. Общие планы, -1 этаж. Проект, 2005 © Остоженка
Жилой комплекс и офис на Пречистенской набережной. Общие планы, 1 этаж. Проект, 2005 © Остоженка
Жилой комплекс и офис на Пречистенской набережной. Общие планы, 1 этаж. Проект, 2005 © Остоженка
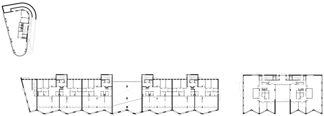
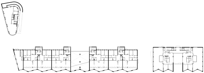
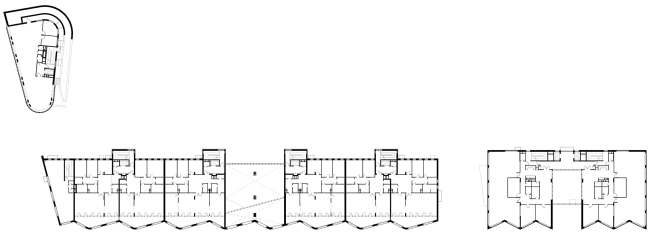
Жилой комплекс и офис на Пречистенской набережной. Общие планы, 2 этаж. Проект, 2005 © Остоженка
Жилой комплекс и офис на Пречистенской набережной. Общие планы, 2 этаж. Проект, 2005 © Остоженка
Жилой комплекс и офис на Пречистенской набережной. Общие планы, 4 этаж. Проект, 2005 © Остоженка
Жилой комплекс и офис на Пречистенской набережной. Общие планы, 4 этаж. Проект, 2005 © Остоженка
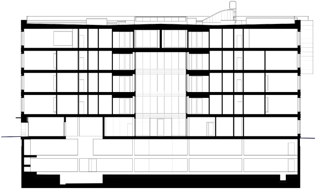
Пречистенской набережной. Разрез по корпусу 3. Проект, 2005 © Остоженка
Пречистенской набережной. Разрез по корпусу 3. Проект, 2005 © Остоженка
Пречистенской набережной. Разрез по лобби корпуса 1. Проект, 2005 © Остоженка
Пречистенской набережной. Разрез по лобби корпуса 1. Проект, 2005 © Остоженка
Пречистенской набережной. Разрез по корпусу 1. Проект, 2005 © Остоженка
Пречистенской набережной. Разрез по корпусу 1. Проект, 2005 © Остоженка
***
 
Жизнь дома
Для архитектора, работающего в историческом контексте, мерилом успеха или неуспеха его работы служит органичность включения нового здания в существующую среду. То, насколько естественно оно войдёт в жизнь квартала или улицы, сможет ли добавить какую-то новую ноту в общую мелодию, подарит ли местным жителям или просто горожанам новые возможности или наоборот, отнимет у них какой-то компонент привычной рутины. И дело не в выбранном стиле или насыщенности функциями, а в с трудом достижимом резонансе, совпадении нового ритма уже сложившемуся биению местной жизни. Проверить это не просто, но в данном случае оказалось возможно. Готовясь к участию в выставке Арх Москва 2016 года, бюро «Остоженка» пригласило не архитектурного, а репортажного фотографа поснимать дом и жизнь вокруг него.
Жилой комплекс и офис на Пречистенской набережной. Реализация, 2015 Фото: И.Воронежский. © АБ Остоженка
Жилой комплекс и офис на Пречистенской набережной. Реализация, 2015 Фото: И.Воронежский. © АБ Остоженка

Вот как комментирует Кирилл Гладкий получившийся результат: «Фотограф снял что-то совершенно другое. Архитектура стала частью жизни, кулисами для неё. Оказалось, что наш дом – отличная среда, фон для простых жизненных ситуаций: люди назначают там свидания, стоят, разговаривают, ездят на велосипедах, скейтбордах, ещё что-то постоянно происходит. И это очень здорово».

Жилой комплекс и офис на Пречистенской набережной. Реализация, 2015 Фото: И.Воронежский.© АБ Остоженка
Жилой комплекс и офис на Пречистенской набережной. Реализация, 2015 Фото: И.Воронежский.© АБ Остоженка
Жилой комплекс и офис на Пречистенской набережной. Реализация, 2015 Фото: И.Воронежский. © АБ Остоженка
Жилой комплекс и офис на Пречистенской набережной. Реализация, 2015 Фото: И.Воронежский. © АБ Остоженка

Ниже проекты общественных зон комплекса.
Жилой комплекс и офис на Пречистенской набережной. Интерьеры общественных зон корпуса 3. Проект, 2009 © АБ Остоженка
Жилой комплекс и офис на Пречистенской набережной. Интерьеры общественных зон корпуса 3. Проект, 2009 © АБ Остоженка
Жилой комплекс и офис на Пречистенской набережной. Интерьеры общественных зон корпуса 1. Проект, 2009 © АБ Остоженка
Жилой комплекс и офис на Пречистенской набережной. Интерьеры общественных зон корпуса 1. Проект, 2009 © АБ Остоженка
Жилой комплекс и офис на Пречистенской набережной. Интерьеры общественных зон корпуса 3. Проект, 2009 © АБ Остоженка
Жилой комплекс и офис на Пречистенской набережной. Интерьеры общественных зон корпуса 3. Проект, 2009 © АБ Остоженка