Размещено на портале Архи.ру (www.archi.ru)

17.02.2017

Разговор с соседом

Анна Старостина
Объект:
Частный дом House M
Адрес:
Швейцария, None, Мёлин.
Мастерская:
Jan Skuratowski Architektur

Ян Скуратовский спроектировал частный дом недалеко от Базеля, выстроив строгую иерархию между своей и соседней постройками.

Частный дом House M © Simon Menges
Частный дом House M © Simon Menges

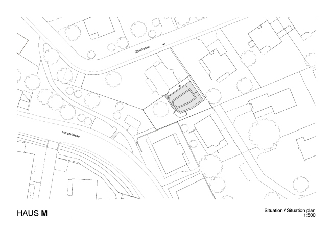
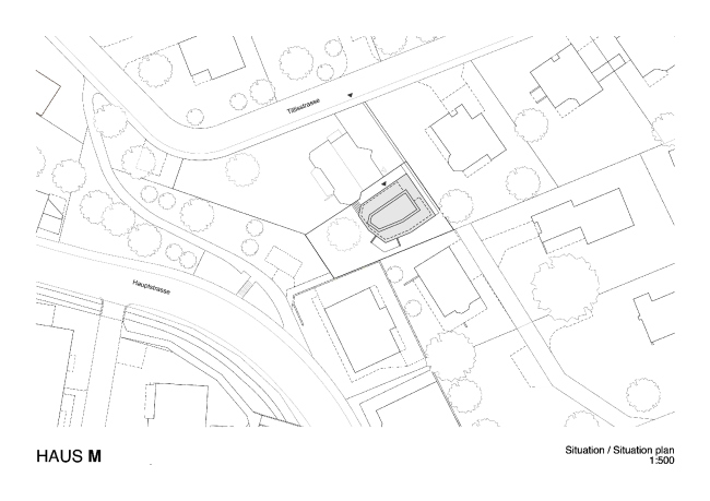
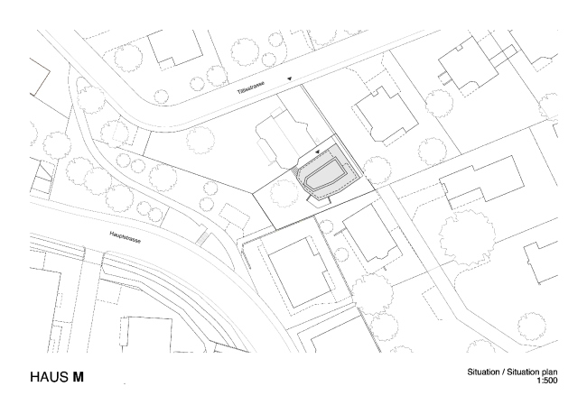
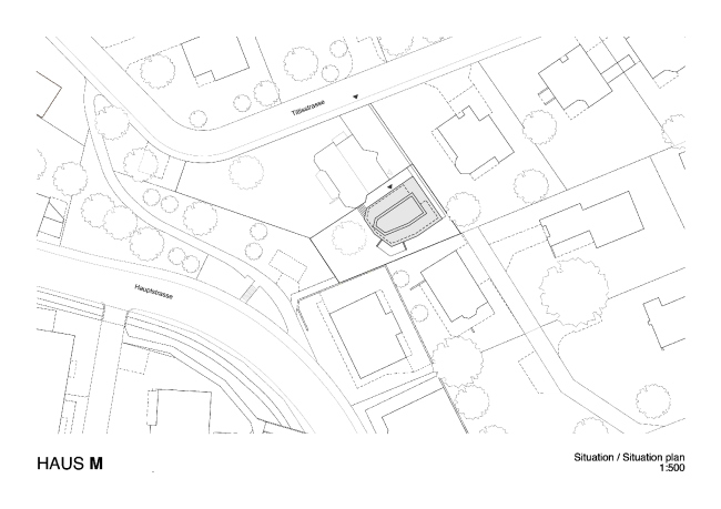
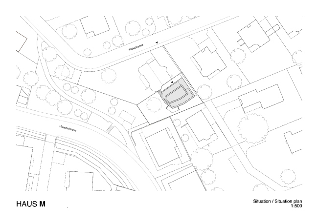
Вилла для семьи Кристофа Мюллера расположена в небольшой коммуне Мёлин. На территории, отличающейся заметным уклоном, в 1980-е годы уже был выстроен дом из силикатного кирпича, и новая постройка, расположенная на возвышении в удаленном конце участка, должна была уступить первенство «соседу», оставшись при этом самостоятельной. Четче показать связь двух соперничающих объемов помогли схожая по форме сложная, многоугольная планировка и связывающая их зеленая пергола (именно через нее устроен основной вход). В остальном же новый «жилец» играет по собственным правилам.
Частный дом House M © Simon Menges
Частный дом House M © Simon Menges

Чтобы подчеркнуть независимость и самостоятельность своей работы, Ян Скуратовский выбрал для внутренней и внешней отделки двух верхних этажей дерево. Специально подготовленные серые доски из лиственницы на фасаде активно противостоят тяжеловесному желтоватому кирпичу первого дома. Также на контрасте с двухскатной черепичной крышей старой постройки воспринимается абсолютно плоское завершение нового сооружения. Общая же композиция обоих объемов естественным образом использует имеющийся уклон.
Частный дом House M © Simon Menges
Частный дом House M © Simon Menges

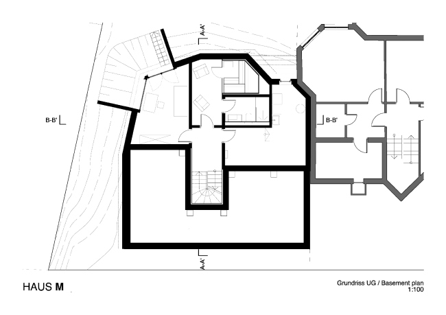
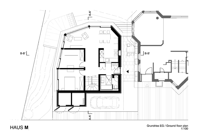
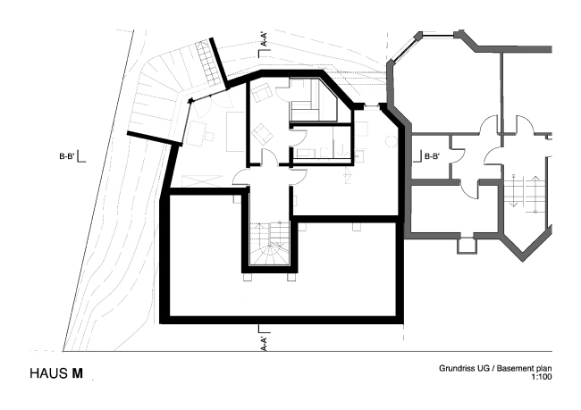
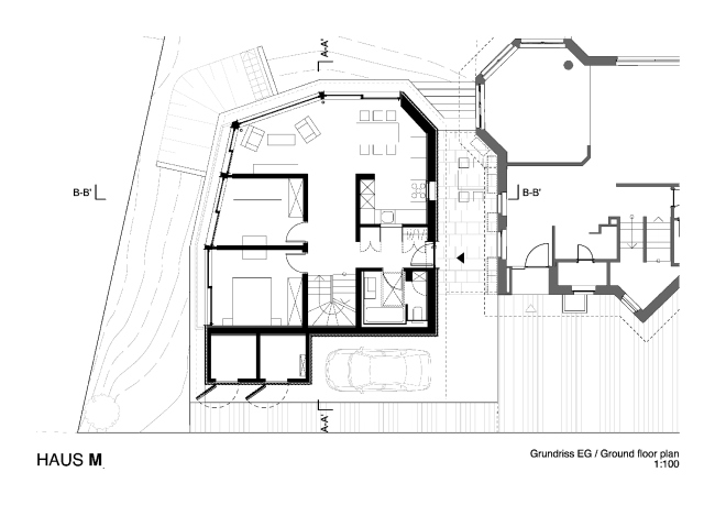
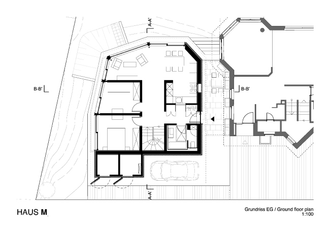
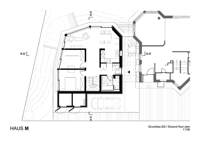
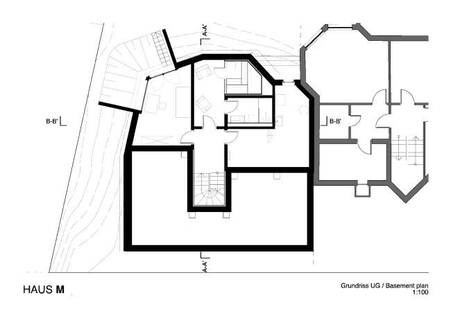
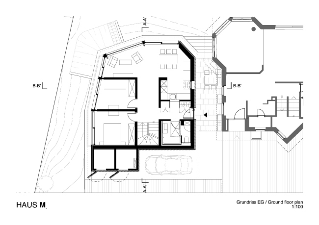
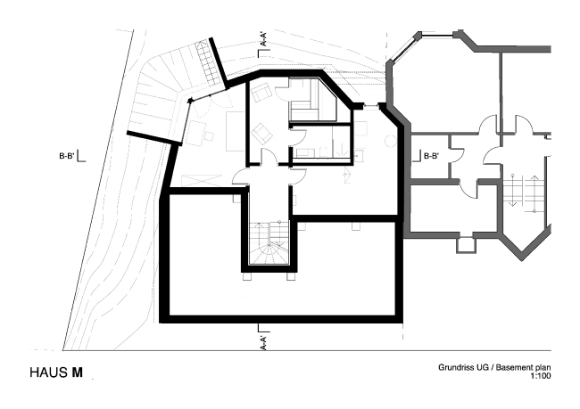
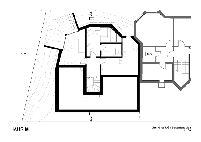
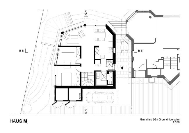
Открытые бетонные конструкции нижнего этажа вмещают комнату для гостей с собственным выходом в сад, а также сауну с зоной отдыха, погреб и постирочную. На основном, первом этаже размещены спальни с ванной и кухня со столовой зоной, а наверху устроена просторная гостиная с поворотным камином и большая озелененная терраса. Горизонтали членения демонстративно подчеркнуты массивными навесами, в которые встроены специальные защитные экраны. Большие панорамные окна выходят преимущественно на южную и на западную стороны, но навес устроен по всему периметру дома и на уровне второго этажа образует укромное место для парковки автомобиля.
Частный дом House M © Simon Menges
Частный дом House M © Simon Menges
Частный дом House M © Simon Menges
Частный дом House M © Simon Menges
Частный дом House M © Simon Menges
Частный дом House M © Simon Menges
Частный дом House M © Simon Menges
Частный дом House M © Simon Menges
Частный дом House M © Simon Menges
Частный дом House M © Simon Menges
Частный дом House M © Simon Menges
Частный дом House M © Simon Menges
Частный дом House M © Simon Menges
Частный дом House M © Simon Menges
Частный дом House M © Simon Menges
Частный дом House M © Simon Menges
Частный дом House M © Jan Skuratowski Architektur
Частный дом House M © Jan Skuratowski Architektur
Частный дом House M © Jan Skuratowski Architektur
Частный дом House M © Jan Skuratowski Architektur
Частный дом House M © Jan Skuratowski Architektur
Частный дом House M © Jan Skuratowski Architektur
Частный дом House M © Jan Skuratowski Architektur
Частный дом House M © Jan Skuratowski Architektur
Частный дом House M © Jan Skuratowski Architektur
Частный дом House M © Jan Skuratowski Architektur
Частный дом House M © Jan Skuratowski Architektur
Частный дом House M © Jan Skuratowski Architektur
Частный дом House M © Jan Skuratowski Architektur
Частный дом House M © Jan Skuratowski Architektur
Частный дом House M © Jan Skuratowski Architektur
Частный дом House M © Jan Skuratowski Architektur
Частный дом House M © Jan Skuratowski Architektur
Частный дом House M © Jan Skuratowski Architektur