Размещено на портале Архи.ру (www.archi.ru)

16.02.2017

Полкилометра вверх

Нина Фролова
Объект:
Башня Guangzhou CTF Finance Centre
Адрес:
Китай, None, Гуанчжоу.
Мастерская:
KPF - Kohn Pedersen Fox

530-метровый небоскреб CTF Finance Centre по проекту бюро KPF – самое высокое здание Гуанчжоу.

Башня Guangzhou CTF Finance Centre © Julien Lanoo
Башня Guangzhou CTF Finance Centre © Julien Lanoo

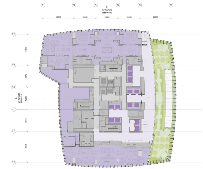
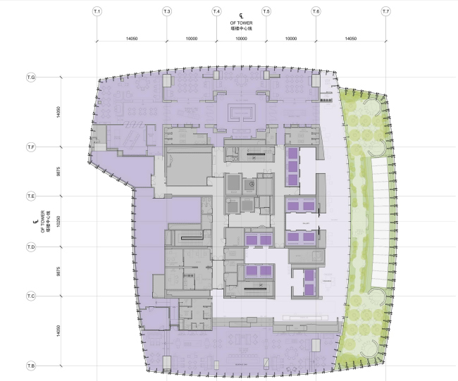
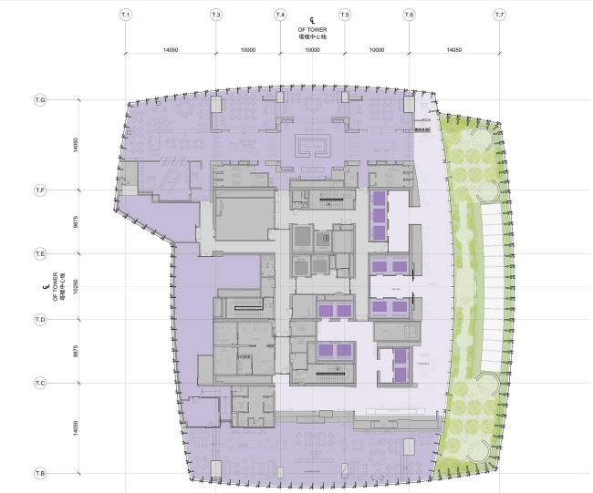
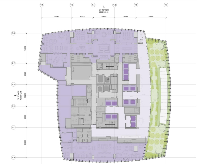
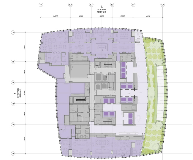
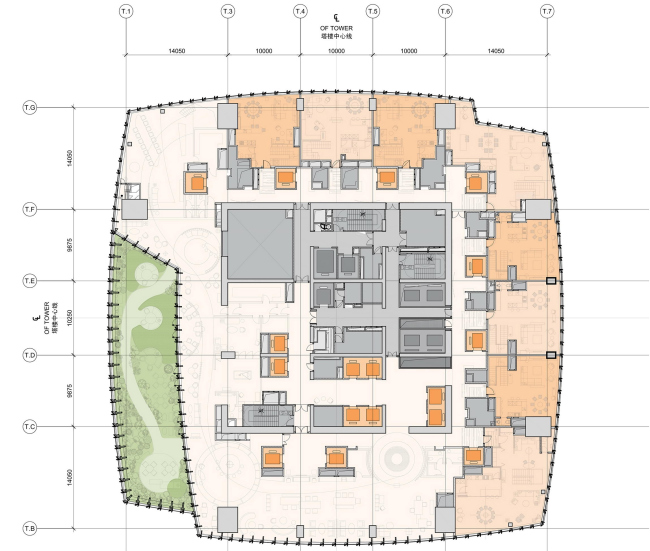
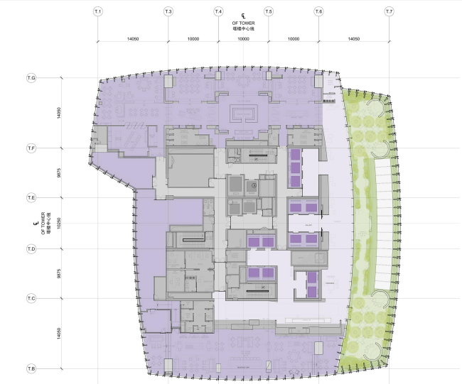
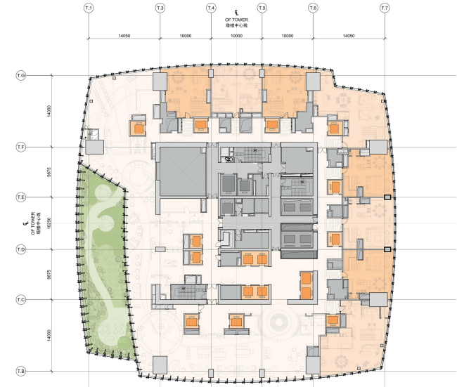
На своих 111 этажах башня вмещает (снизу вверх): 208 000 м2 офисов, 414 квартиры (75 000 м2) и 273 гостиничных номера (46 000 м2). В ее ступенчатом подиуме размещены принадлежащие отелю банкетный зал и пространство для торжественных приемов, а также еще 47 000 м2 площади – с магазинами, рестораном и кинотеатром. В «час-пик» в комплексе будут находиться порядка 30 000 человек.
 
Башня Guangzhou CTF Finance Centre © Julien Lanoo
Башня Guangzhou CTF Finance Centre © Julien Lanoo

CTF Finance Centre – самый высокий в Гуанчжоу (известном в истории как Кантон) – третьем по величине городе КНР и центре агломерации устья Жемчужной реки, где живет 42 миллиона человек. Он расположен в Центральном деловом районе, через улицу-эспланаду от предыдущего рекордсмена – 439-метровой башни Международного финансового центра по проекту Wilkinson Eyre (2010). Как и у соседа, фасад башни KPF расчерчен светлыми полосами: в его случае это керамические профили, которые также служат для защиты интерьера от солнца. Этот материал был выбран благодаря его сравнительно низкой «маркости» и устойчивости к воздействию окружающей среды. Кроме того, профили можно было просто и недорого произвести на китайских заводах, что к тому же сократило затраты на доставку материала и сопутствующий транспортировке выброс CO2 в атмосферу. По заявлению архитекторов, CTF Finance Centre – самое высокое здание в мире с керамическими деталями на фасадах, кроме того, это отсылка к эре первых небоскребов, которые на рубеже XIX – XX веков в США украшались терракотовыми панелями.
 
Башня Guangzhou CTF Finance Centre © Julien Lanoo
Башня Guangzhou CTF Finance Centre © Julien Lanoo

По силуэту новая башня – уступчатая и «кристаллическая». Каждый перепад высоты отмечает изменение функции и планировки; эти точки превращены в террасы, а в помещениях под ними удалось устроить эффектные остекленные перекрытия.
 
Башня Guangzhou CTF Finance Centre © Julien Lanoo
Башня Guangzhou CTF Finance Centre © Julien Lanoo

В подземных уровнях подиума расположены пересадочные пункты общественного транспорта, также имеются надземные переходы в соседние здания. В подземном паркинге можно разместить 1705 автомобилей.
Башня Guangzhou CTF Finance Centre © Julien Lanoo
Башня Guangzhou CTF Finance Centre © Julien Lanoo
Башня Guangzhou CTF Finance Centre © Julien Lanoo
Башня Guangzhou CTF Finance Centre © Julien Lanoo
Башня Guangzhou CTF Finance Centre © Julien Lanoo
Башня Guangzhou CTF Finance Centre © Julien Lanoo
Башня Guangzhou CTF Finance Centre © Julien Lanoo
Башня Guangzhou CTF Finance Centre © Julien Lanoo
Башня Guangzhou CTF Finance Centre © Julien Lanoo
Башня Guangzhou CTF Finance Centre © Julien Lanoo
Башня Guangzhou CTF Finance Centre © Julien Lanoo
Башня Guangzhou CTF Finance Centre © Julien Lanoo
Башня Guangzhou CTF Finance Centre © Julien Lanoo
Башня Guangzhou CTF Finance Centre © Julien Lanoo
Башня Guangzhou CTF Finance Centre © Julien Lanoo
Башня Guangzhou CTF Finance Centre © Julien Lanoo
Башня Guangzhou CTF Finance Centre © Kohn Pedersen Fox Associates
Башня Guangzhou CTF Finance Centre © Kohn Pedersen Fox Associates
Башня Guangzhou CTF Finance Centre © Kohn Pedersen Fox Associates
Башня Guangzhou CTF Finance Centre © Kohn Pedersen Fox Associates
Башня Guangzhou CTF Finance Centre © Kohn Pedersen Fox Associates
Башня Guangzhou CTF Finance Centre © Kohn Pedersen Fox Associates
Башня Guangzhou CTF Finance Centre © Kohn Pedersen Fox Associates
Башня Guangzhou CTF Finance Centre © Kohn Pedersen Fox Associates
Башня Guangzhou CTF Finance Centre © Kohn Pedersen Fox Associates
Башня Guangzhou CTF Finance Centre © Kohn Pedersen Fox Associates
Башня Guangzhou CTF Finance Centre © Kohn Pedersen Fox Associates
Башня Guangzhou CTF Finance Centre © Kohn Pedersen Fox Associates
Башня Guangzhou CTF Finance Centre © Kohn Pedersen Fox Associates
Башня Guangzhou CTF Finance Centre © Kohn Pedersen Fox Associates
Башня Guangzhou CTF Finance Centre © Kohn Pedersen Fox Associates
Башня Guangzhou CTF Finance Centre © Kohn Pedersen Fox Associates